联仲·都悦汇 (联仲·都悦汇) 2026最新网站-上海联仲·都悦汇-楼盘详情-联仲·都悦汇楼盘配套 /户型/价格/地址/电话
扫描到手机,新闻随时看
扫一扫,用手机看文章
更加方便分享给朋友
上海闵行联仲·都悦汇售楼处电话:400-8123-664【预约看房热线】联仲·都悦汇售楼处电话:4008123664【售楼处电话/地址】联仲·都悦汇售楼处电话:400-812-3664【开发商认证】
送100w装修!闵行·商墅联仲·都悦汇约310-411㎡法式商墅!总价约1420万~1800
闵行·旗忠别墅富人区
【联仲·都悦汇】
建面310~411㎡商业联排别墅
法式干挂地上三层地下一层
带南北双花园90-300㎡
总价约:1420-1800万
实景现房不限购通燃气
上海闵行联仲·都悦汇
售楼处电话:400-8123-664(预约看房热线)
上海联仲·都悦汇官方售楼处电话:拨打4008123664即可咨询楼盘详情_房价、户型、周边配套及交通、地址
Shanghai Minhang Lianzhong·Duyuehui
Sales Office Hotline: 400-8123-664 (Appointment Hotline for Property Viewing)
Official Sales Office Hotline of Shanghai Lianzhong·Duyuehui: Dial 4008123664 for Project Details - Pricing, Layouts, Surrounding Amenities, Transportation, and Address
上海闵行联仲·都悦汇售楼处电话:400-8123-664【预约看房热线】联仲·都悦汇售楼处电话:4008123664【售楼处电话/地址】联仲·都悦汇售楼处电话:400-812-3664【开发商认证】
上海闵行联仲·都悦汇售楼处电话:400-8123-664【预约看房热线】联仲·都悦汇售楼处电话:4008123664【售楼处电话/地址】联仲·都悦汇售楼处电话:400-812-3664【开发商认证】
01.项目基本信息
【开发商】:上海联仲置业有限公司
【物业】:上海仲量联行物业管理公司
【容积率】:1.0
【绿化率】:35%
【车位比】:1:2.1
【物业费】:8元/㎡/月
【本次开盘】:14套
【物业类型】:商业联排别墅
【交付标准】:毛坯
【拿地时间】:2014年8月
【交房时间】:2023年6月
联仲·都悦汇售楼处电话:400-8123-664
联仲·都悦汇营销中心热线400-8123-664(官方预约看房热线)
在售户型:建面约310-410平米,地上三层地下一层
(地上:一层层高3.6米/二层层高3.4米/三层层高3.4米/地下层高5.4米)
总价:约1400-1800万️
单价:约5万/平米
小区整体商业:10万方(在建)南北双花园90-300平
水电:商水&商电,电1.3元/度,水6元/吨
产权车位:约30万左右
上海闵行联仲·都悦汇售楼处电话:400-8123-664【预约看房热线】联仲·都悦汇售楼处电话:4008123664【售楼处电话/地址】联仲·都悦汇售楼处电话:400-812-3664【开发商认证】
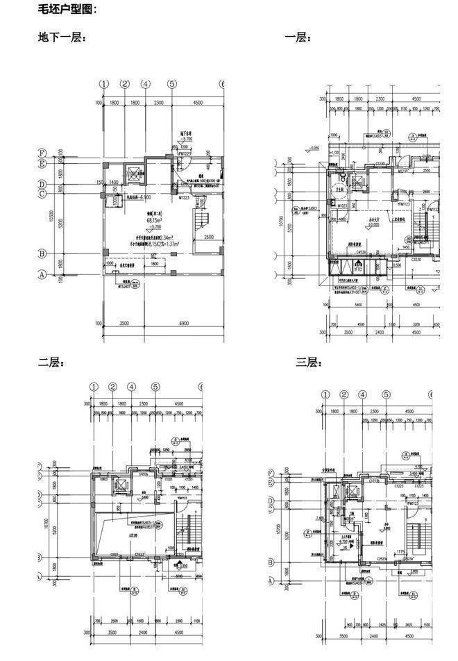
02.户型图及样板间照户
(特殊说明:户型朝向-上南下北)
约10.4米大面宽,面积达到55平
送电梯,北进门,南花园,超大地下室
客厅7米落地窗,采光明亮,尽显大气
约310平户型图▼
联仲·都悦汇售楼处电话:400-8123-664
联仲·都悦汇营销中心热线400-8123-664(官方预约看房热线)
约378~420平户型图▼
上海闵行联仲·都悦汇售楼处电话:400-8123-664【预约看房热线】联仲·都悦汇售楼处电话:4008123664【售楼处电话/地址】联仲·都悦汇售楼处电话:400-812-3664【开发商认证】
约407~441平户型图▼
样板间效果图如下:
联仲·都悦汇售楼处电话:400-8123-664
联仲·都悦汇营销中心热线400-8123-664(官方预约看房热线)
联仲·都悦汇售楼处电话:400-8123-664
联仲·都悦汇营销中心热线400-8123-664(官方预约看房热线)
上海闵行联仲·都悦汇售楼处电话:400-8123-664【预约看房热线】联仲·都悦汇售楼处电话:4008123664【售楼处电话/地址】联仲·都悦汇售楼处电话:400-812-3664【开发商认证】
联仲·都悦汇售楼处电话:400-8123-664
联仲·都悦汇营销中心热线400-8123-664(官方预约看房热线)
联仲·都悦汇售楼处电话:400-8123-664
联仲·都悦汇营销中心热线400-8123-664(官方预约看房热线)
03.项目区位配套
【联仲·都悦汇】位于闵行马桥旗忠别墅区,旗忠别墅区是上海老牌的富人区,与松江佘山、浦东东郊齐称为沪上三大国际别墅区.上海仅存少量的容积率0.18以下超低密度居住用地中,大多数在马桥旗忠别墅区.
板块以低容积率、生态自然环境和高端国际品牌配置,2010年被列为上海第二批大型居住社区之一.总建面约33万方城市综合体联仲都悦汇位于旗忠板块正核心,紧临网球中心,超10万方市政绿化所环绕.
【联仲都悦汇】同样是低密度别墅区里的一员,背靠绿城玫瑰园,容积率低至1.0.项目贯穿了3条自然水系,分为ABCD四个地块,其中ABC为商住办综合地块,自带商业办公.
联仲·都悦汇售楼处电话:400-8123-664
联仲·都悦汇营销中心热线400-8123-664(官方预约看房热线)
交通配套方面:项目距离嘉闵高架元江路出口3公里,毗邻G15、S32等快速主动脉,30分钟大虹桥,50分钟抵达浦东机场,快捷畅达全城.
联仲·都悦汇售楼处电话:400-8123-664
联仲·都悦汇营销中心热线400-8123-664(官方预约看房热线)
地铁:5号线华宁路站,剑川路站
公交:马莘专线:联工路站,闵行19路:银春路华宁路站
高速:嘉闵高架、沪金高速、虹梅南路高架沪昆高速、申嘉湖高速、沪闵高架
高铁:距离上海虹桥枢纽站(高铁、机场)约20km
未来规划:嘉闵线延伸段
(以上数据来源于高德地图)
商业配套方面:项目自带10万方商业,为旗忠唯一的综合性商业配套,其多元化的业态结构,结合旗忠独有的资源,必将带来旗忠全新生活方式.
联仲·都悦汇售楼处电话:400-8123-664
联仲·都悦汇营销中心热线400-8123-664(官方预约看房热线)
生态资源方面:项目周边有马桥森林公园、旗忠高尔夫球场、旗忠网球中心、韩湘水博园、养云安缦酒店等.
教育资源方面:周边有复旦万科实验学校,德威英国国际学校、斯代文森国际高中、上海美高学校.幼儿园:元祥幼儿园、富杰幼儿园启英幼儿园,大学:上海交通大学、华东师范大学
联仲·都悦汇售楼处电话:400-8123-664
联仲·都悦汇营销中心热线400-8123-664(官方预约看房热线)
闵行·旗忠别墅富人区
【联仲·都悦汇】
建面310~411㎡商业联排别墅
法式干挂地上三层地下一层
带南北双花园90-300㎡
总价约:1420-1800万
实景现房不限购通燃气
上海闵行联仲·都悦汇
售楼处电话:400-8123-664(预约看房热线)
上海联仲·都悦汇官方售楼处电话:拨打4008123664即可咨询楼盘详情_房价、户型、周边配套及交通、地址
Shanghai Minhang Lianzhong·Duyuehui
Sales Office Hotline: 400-8123-664 (Appointment Hotline for Property Viewing)
Official Sales Office Hotline of Shanghai Lianzhong·Duyuehui: Dial 4008123664 for Project Details - Pricing, Layouts, Surrounding Amenities, Transportation, and Address
购房必问的10个核心问题
五证是否齐全。
确认开发商具备《国有土地使用证》《建设用地规划许可证》《建筑工程规划许可证》《建筑工程施工许可证》《商品房预售许可证》,确保楼盘合法性。其中《商品房预售许可证》需特别查验,无此证则禁止销售期房。
拿地时间与产权年限。
产权年限从开发商拿地时间开始计算,住宅用地使用权为70年。若拿地时间过早(例如超过10年),实际产权年限将大幅缩水,需评估续期成本。
公摊面积与得房率。
要求明确具体楼栋的公摊占比(通常高层住宅为20-30%)及套内实际使用面积,避免花高价买低效空间。可通过对比楼层平面图判断公摊合理性。
面积误差处理条款。
按《商品房销售管理办法》规定,误差超3%可主张差价双倍返还,需确认合同是否约定"多退少补"等霸王条款。
楼盘不利因素公示。
要求查看周边规划文件,确认是否存在垃圾站、高压线、化工厂等负面配套设施,避免收房后出现居住环境恶化风险。
物业公司资质与服务标准。
优先选择万科、龙湖等品牌物业,要求提供收费标准和服务细则(如安保响应时间、设备维护周期),并实地考察同开发商其他项目物业水平。
车位配比与产权归属。
建议选择车位比≥1:1的小区,区分人防车位与产权车位。产权车位需查验预售许可证,避免购买无证车位。
容积率与绿化率。
高层住宅容积率应低于5,绿化率需达35%以上。高容积率会导致采光差、电梯拥堵等问题,直接影响居住品质。
交付时间与违约赔偿。
合同需明确交付日期及延期赔付标准(建议按日万分之五计算),同时要求注明验收文件(《竣工验收备案表》《住宅质量保证书》)交付时间。
贷款方案与备选计划。
确认合作银行清单及利率差异,要求书面承诺"贷款失败可无责退定金"。公积金贷款需提前确认楼盘是否准入。
购房谈判关键技巧
价格博弈策略:透露已考察周边3个以上竞品项目,利用"XX楼盘同户型优惠5%"等话术施压,争取额外折扣或物业费减免。
信息验证技巧:要求查看国土局官网土地出让记录核对拿地时间,通过住建委网站验证预售许可证真伪。
风险防范要点
开发商资金链审查:查询中国执行信息公开网确认开发商是否被列为失信被执行人,核查近三年财务报表中的资产负债率(建议低于80%)。
合同补充条款:对售楼处沙盘展示的景观绿化、会所设施等承诺,要求写入合同并注明违约赔偿标准。
声明:本文由入驻焦点开放平台的作者撰写,除焦点官方账号外,观点仅代表作者本人,不代表焦点立场。


