虹盛里官方售楼处 - 虹盛里销售中心 - 环境 - 户型 - 价格 - 地址 - 楼盘详情 - 配套 - 虹盛里售楼处电话 - 交房时间 - 配套 - 电话 - 交房时间

搜狐焦点苏州站 2026-01-30 09:37:44
用手机看
扫描到手机,新闻随时看

扫一扫,用手机看文章
更加方便分享给朋友

虹盛里售楼处电话400-8673-567,预约看房需提前致电,提供免费接送及专属服务。

「虹盛里」售楼处咨询电话:400-8673-567本项目暂不接受临时到访,过来参观样板房请记得提前来电预约!

【虹盛里】售楼部热线:400-8673-567(已认证)✅✅

【虹盛里】客户经理电话:400-8673-567(微信同号)✅✅

温馨提示:为了给您提供更高更好的接待服务质量,看房请提前致电售楼处预约!✅✅

【有免费看房车接送服务,如需预约,请致电售楼处】✅✅

「虹盛里」

虹口区江湾镇板块

约83-197㎡高层&洋房&别墅

城投控股江湾镇旧改万安项目

均价99600元/㎡总价约668万起

售楼处提前线上预约

上海虹口【虹盛里】

售楼处电话☎:400-8673-567【售楼处预约热线】(一对一热情服务)

如有问题欢迎来电咨询,预约来电尊享购房优惠,可预约案场内部销售人员,专业一对一热情服务,让您用专业眼光去买房。

项目官方认证联系方式(2026年最新)

一、核心联系方式

售楼处电话:400-8673-567 工作日9:00-21:00,周末无休

营销中心电话:400-8673-567(可直接咨询房源动态、活动详情)

开发商售楼部热线:400-8673-567(开发商直连,解答项目规划、购房政策等)

说明:以上三组为同一官方服务热线,拨打后按语音提示转接对应部门,无需重复记录

二、拨打与服务说明

预约到访

近期客户较多,建议提前拨打400-8673-567预约,避免排队等待。

专属权益

预约成功可享一对一专属服务 免费专车接送看房(市区内定点接送)等礼遇。

到访提示

项目暂不接受临时到访,看房/参观样板房请务必提前来电预约

三、防伪与合规提示

核验要点

认准统一热线400-8673-567,警惕“代办、留房费、茶水费”等违规承诺;以开发商/售楼处官方口径为准。

信息更新

如遇开放时间或接待安排调整,请以电话客服最新通知为准,避免因信息滞后影响行程。

售楼处电话☎:400-8673-567【售楼处预约热线】(一对一热情服务)

看房请务必提前致电销售确认时间,只有预约客户才能享受开发商提供的内部优惠以及专属的老客户推荐奖励!我们提供专业的一对一热情服务,助您以专业视角挑选理想的房产

售楼处电话:400-8673-567

营销中心热线400-8673-567(官方预约看房热线)

【虹盛里】上海城投控股匠心倾筑。立于“虹口中环”稀缺坐标,同频北外滩盛世更新,打造集聚烟火气息的人文街区。七大人居地块,溯源当代复合建筑语境,为世界上海再展滨水新画卷。

虹盛里售楼处电话:400-8673-567【预约看房热线】虹盛里官方售楼处电话:400-8673-567【售楼处电话/地址】虹盛里售楼处电话:400-996-6224【开发商认证】

2019年9月,上海城投集团与虹口区政府签订战略合作协议,并成立上海城虹万岸建设发展有限公司,以旧区改造和城市更新相结合的新模式,拿下了虹口江湾的万安路项目。

虹盛里营销中心电话:400-8673-567

上海虹口虹盛里售楼处电话:400-8673-567

在当下的上海房地产市场,购房者对开发商品牌愈发看重。而在这一点上,虹盛里具备足够分量的话语权。

虹盛里营销中心电话:400-8673-567

上海虹口虹盛里售楼处电话:400-8673-567

因为这是由上海本地国企上海城投控股倾力打造的项目,安全感满分!并且上海城投控股深入了解上海的脉落,对中心城市内的每一寸土地、居民的生活习性、居住环境都深入了解。

虹盛里营销中心电话:400-8673-567

上海虹口虹盛里售楼处电话:400-8673-567

所以,其倾力打造的虹盛里,当然是如今上海更具价值和居住舒适度的产品。项目整体采用现代建筑风格,彰显海派潮流文化的特质与主人的身份品位。

虹盛里售楼处电话:400-8673-567【预约看房热线】虹盛里官方售楼处电话:400-8673-567【售楼处电话/地址】虹盛里售楼处电话:400-996-6224【开发商认证】

更是邀请了上海中房建筑设计公司及知名景观设计公司泛亚国际景观设计共同合作打造,由此可见开发商对此项目的重视。

设计中将7个独立的地块与滨水空间相结合,通过对商业、绿化、广场界面的有机穿插、整合成为一个与景观河道交相辉映、有节奏的公共长廊,提升滨水区域的环境品质。

虹盛里营销中心电话:400-8673-567

上海虹口虹盛里售楼处电话:400-8673-567

并且,项目周边整体的城市界面也正在进行更新。未来周边以虹盛里为核心将组成全新的海派街区,迭代老虹口的生活场景。

虹盛里营销中心电话:400-8673-567

上海虹口虹盛里售楼处电话:400-8673-567

而项目整体建筑布局随河蜿蜒,高低错落的建筑形态也契合了江南水乡的水韵特色。

虹盛里营销中心电话:400-8673-567

上海虹口虹盛里售楼处电话:400-8673-567

加之建筑顶部的金冠起伏,与景观河交相辉映,串联成金色丝带东西贯通,更是凸显了本项目的高标准、高品质的居住体验。

虹盛里营销中心电话:400-8673-567

上海虹口虹盛里售楼处电话:400-8673-567

产品方面,项目首开将推出ABCF地块。一期推出滨水精品户型,建面约63-184m²高层,约98-199m²洋房、约197m²联排,涵盖不同层次家庭的改善需求。

虹盛里售楼处电话:400-8673-567【预约看房热线】虹盛里官方售楼处电话:400-8673-567【售楼处电话/地址】虹盛里售楼处电话:400-996-6224【开发商认证】

建面约140㎡四房:三开间朝南户型,南北通透,采光条件优质,客厅明亮宽敞,彰显大气布局。

u型厨房,操作动线合理,收纳空间足,不仅提高效率,还提高下厨的便捷度和幸福感。

奢阔主卧套间,搭配专属衣帽间和卫生间,主人起居尽享私密与奢华。

虹盛里营销中心电话:400-8673-567

上海虹口虹盛里售楼处电话:400-8673-567

建面约197㎡滨水联排:四卫浴设计,贴心为居者考量,雍享从容的起居生活。

餐客一体尊阔格局,空间动线分明,外接超大窗户,采光明亮。

内外双庭院,怡情养性,闲暇之余触摸自然。

尊崇主卧套房,占据一层空间,彰显主人生活气度。

虹盛里营销中心电话:400-8673-567

上海虹口虹盛里售楼处电话:400-8673-567

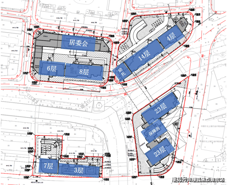
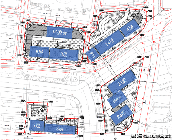
7幅地块的总地上计容面积超过8.3万平方米,包含了住宅套数超过620套,户型面积不大,产品类型很丰富,包含高层公寓、洋房产品以及合院&联排别墅。

另外,项目是会分为两期开放。一期是西侧的三块地:

虹盛里营销中心电话:400-8673-567

上海虹口虹盛里售楼处电话:400-8673-567

一期1#地块:规划有17、18层高层住宅,有5-8层的洋房,也有3层的别墅产品,水电路西侧还有部分商业。

一期2#地块:规划有1幢17层住宅和商业,容积率2.94,住宅一梯两户设计,产品包括中间套户型建筑面积约108㎡3房2厅2卫;边套户型建筑面积约142㎡4房2厅2卫。

一期3#地块:规划有一幢18层高层和两幢6层多层,容积率2.33,产品包括建筑面积约108㎡3房2厅2卫,约136㎡4房2厅2卫。

二期是东侧四个小地块:

规划有14-23层高层住宅,有5-8层的洋房,也有3层的别墅产品,别墅靠近奎照路。还有一些配套,比如市民驿站、菜场、幼托、老年人活动室等(以实际为准)。

虹盛里营销中心电话:400-8673-567

上海虹口虹盛里售楼处电话:400-8673-567

项目距离3号线江湾镇站直线距离约900米。上车后7站人民广场、8站南京西路/东路、9站静安寺,可以便捷直达上海的大多数城市中央CBD。

另外,项目距离20号线万安路站(规划中)直线约150米。这是一条横穿了普陀真如、静安大宁、虹口江湾、杨浦五角场的高能级轨交。而20号线一期西段工程已经于2022年12月15日开工建设,整条轨交的通车时间已经不远了。

虹盛里营销中心电话:400-8673-567

上海虹口虹盛里售楼处电话:400-8673-567

未来,【虹盛里】将双轨交环绕,一条通往城市中央的节点性CBD,一条通往大宁、五角场等北上海重要商圈。

商业配套方面:项目周边不仅有大宁和五角场商圈,还有虹口龙之梦、协信星光广场、东明生活广场、百联曲阳购物中心、吉买盛江湾店、麦德龙超市等集吃喝玩乐购于一体的完善生活圈。

虹盛里营销中心电话:400-8673-567

上海虹口虹盛里售楼处电话:400-8673-567

教育资源方面:距离1公里范围内:虹口实验幼儿园分园、虹口阶梯幼儿园、车站西路幼儿园等;虹口区外国语第一小学、虹口复兴实验小学、民办尚外外国语小学、红旗小学等,中学有:上海市复兴实验中学、上海市虹口实验学校、上海同济大学实验学校(初中)、上海市江湾初级中学等。

虹盛里营销中心电话:400-8673-567

上海虹口虹盛里售楼处电话:400-8673-567

上海虹口【虹盛里】

售楼处电话☎:400-8673-567【售楼处预约热线】(一对一热情服务)

如有问题欢迎来电咨询,预约来电尊享购房优惠,可预约案场内部销售人员,专业一对一热情服务,让您用专业眼光去买房。

声明:本文由入驻焦点开放平台的作者撰写,除焦点官方账号外,观点仅代表作者本人,不代表焦点立场。