金鸡湖畔的静奢生活,从这里开始
扫描到手机,新闻随时看
扫一扫,用手机看文章
更加方便分享给朋友
最近,苏州的购房政策迎来了一波利好,特别是“三低一宽”金融政策的出台,让不少购房者看到了希望。低首付、低利息、低月供,再加上宽期限的贷款政策,简直是给年轻人和新市民量身定制的购房福利。首付最低只要15%,月供前五年每月只需还100元本金,这样的政策无疑降低了购房门槛,让更多人有机会在苏州安家。而今天要给大家介绍的楼盘——紫金·翡丽甲第,正好位于苏州园区的核心地段,金鸡湖东岸,无论是生活配套还是未来发展潜力,都是不可多得的优质选择。
紫金·翡丽甲第:湖东核芯的静奢大宅
基本信息
紫金·翡丽甲第,备案名为紫金翡丽雅筑,是由北京金隅和保利置业联合开发的顶级住宅项目。项目位于苏州园区中心大道北、西洛巷南、锦溪街东,地理位置十分优越。整个项目占地约4.9万平方米,容积率1.5,总建筑面积11.9万平方米,规划打造6-9层的洋房,主打大户型,面积从190㎡到275㎡不等,精装标准不低于5000元/㎡,堪称苏州高端住宅的代表作。2023年11月29日,这块地以39027元/㎡的楼面价成交,成为苏州首个不限价地块,备案均价高达63595元/㎡,足见其稀缺性和价值。
18662309054
区域配套
紫金·翡丽甲第所在的湖东板块,是苏州园区发展的核心区域,也是金鸡湖向东延伸的价值金线。这里汇聚了苏州最国际化的生活配套,无论是商业、教育还是医疗资源,都是一流的。项目周边有多个大型购物中心,如久光百货、圆融时代广场等,满足日常购物需求。教育方面,苏州工业园区外国语学校、苏州德威英国国际学校等名校环绕,为孩子们提供了优质的教育资源。医疗方面,苏州大学附属儿童医院、苏州九龙医院等三甲医院也在附近,保障了居民的健康需求。

品牌价值
紫金·翡丽甲第的开发品牌是保利置业和金隅地产,这两家都是国内知名的房地产开发商,有着丰富的开发经验和良好的口碑。保利置业作为央企,一直以高品质的住宅项目著称,而金隅地产则是北京的老牌房企,专注于打造高端住宅。2023年11月29日,金隅地产在苏州第八批集中供地中,经过15家房企的激烈竞争,最终以28.97亿元拿下这块地,成交楼面价39027元/平方米,溢价率超30%,可见其对该项目的重视和信心。
户型鉴赏
紫金·翡丽甲第的户型设计非常考究,主打大户型,面积从190㎡到275㎡不等,每个户型都做到了四房两厅三卫的设计,充分考虑了现代家庭的居住需求。190㎡的户型空间宽敞,主卧套房设计,私密性极佳;225㎡的户型则更加注重功能性,南北通透,采光极好;275㎡的户型则是顶级享受,超大客厅和餐厅,适合大家庭居住。每个户型的精装标准都不低于5000元/㎡,细节处理非常到位,无论是地板、墙面还是厨卫设备,都选用了国际一线品牌,确保居住的舒适性和品质。
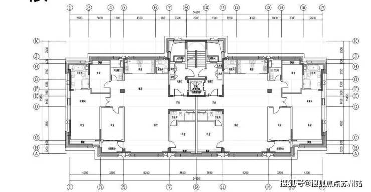
▲楼栋布局图
建面约190㎡户型,四房两厅三卫:
建面约225㎡户型,四房两厅三卫:

建面约290㎡户型,四房两厅三卫:

优劣势分析
优势:
地段稀缺:位于苏州园区湖东核心板块,周边配套成熟,未来发展潜力巨大。
品牌保障:保利置业和金隅地产联合开发,品质有保障。
户型设计:大户型设计,空间宽敞,适合大家庭居住。
精装标准:精装标准不低于5000元/㎡,细节处理到位,居住舒适度高。
劣势:
价格较高:备案均价63595元/㎡,属于苏州高端住宅,购房门槛较高。
大户型为主:适合大家庭或改善型购房者,对于刚需购房者来说可能不太适合。
未来展望:湖东核芯的无限可能
随着苏州园区的不断发展,湖东板块的价值也在不断提升。紫金·翡丽甲第作为该区域的高端住宅项目,未来的升值潜力不可小觑。无论是从地段、配套还是品牌来看,这个项目都具备了成为苏州顶级住宅的所有条件。再加上苏州购房政策的利好,现在入手无疑是明智之选。想象一下,未来在金鸡湖畔,拥有一套属于自己的静奢大宅,享受着国际化生活配套,这样的生活,谁不向往呢?
联系方式
如果您对紫金·翡丽甲第感兴趣,欢迎随时联系我们的售楼处,了解更多详情。联系电话:18662309054。
声明:本文由入驻焦点开放平台的作者撰写,除焦点官方账号外,观点仅代表作者本人,不代表焦点立场。


