7#标准层平面图如下:同步曝光2个户型,2梯3户。3#标准层平面图如下:同步曝光1个户型,2梯4户。3#南、北立面图如下:层高3.1米,米白色、银白色、灰色铝板外立面。14#标准层平面图如下:同步曝光1个户型…
园区洋房上新!
园区月亮湾象屿五一展厅公开
案名暂定(天熠东方)
打造10栋6-11F纯洋房
6栋楼首层全部架空+下沉式庭院会所
4大改善户型曝光!
建面约160/180/220/260㎡
最大3.3米层高
南向约20米面宽、超75㎡边厅
户型无敌!装标不低于3000元/㎡
又一个天字系豪宅,据说品质比天誉东方还高
咨询热线:18662309054
01
五一公开!象屿月亮湾豪宅
建面160-260㎡四大户型曝光
6F起纯洋房、3.3米层高!
项目即苏地2024-WG-Z32号地块,位于工业园区星湖街西、创苑路南,南边紧邻美颂花园,占地约3.44公顷,容积率1.5-1.6。
鸟瞰图如下:

拟建10栋6-11F纯洋房,其中6栋楼首层全部架空,并配建一个 下沉式庭院会所。小区在八达街设有2个车型出入口及一个人行出入口。
总平面图如下:

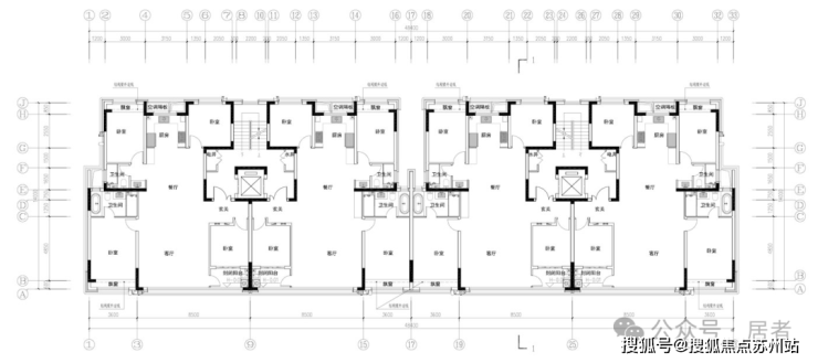
7#标准层平面图如下:同步曝光2个户型,2梯3户。

具体来看
约260㎡边厅4房2厅3卫豪华套房
1梯1户,带一个家政间,入户双动线
南向双套房,约19.5米面宽
超75㎡边厅,南向开间约7.1米
西侧外接超10米开敞阳台
南次卧外接封闭阳台
主卧套房设计,开间约4.3米
主卫双台盆带浴缸,全明卫
咨询热线:18662309054

这一层东边是约180㎡改善户型
具体来看,4房2厅3卫
南向双套房,约15米面宽
客厅阳台一体化设计
南向开间约8.15米,采光无敌
南次卧外接封闭阳台
主卧套房设计,开间约3.6米

7#南、北立面图如下:层高3.1米,银白色、灰色铝板外立面,点缀墨绿色奢石。

7#东、西立面图如下:同样是大面积铝板。

3#标准层平面图如下:同步曝光1个户型,2梯4户。

具体来看,约160㎡4房2厅2卫设计
南向三开间,约12.1米面宽
同样是客厅阳台一体化设计
南向开间约8.5米,采光更优
南次卧外接封闭阳台
主卧套房设计,开间约3.6米
咨询热线:18662309054

3#南、北立面图如下:层高3.1米,米白色、银白色、灰色铝板外立面。

14#标准层平面图如下:同步曝光1个户型,1梯2户。

具体来看,约220㎡4房2厅3卫设计
南向四开间,约17米面宽
南向双套房+家政间
同样是客厅阳台一体化设计
南向开间约9.75米,景观视野非常好
南次卧外接封闭阳台
主卧套房设计,开间约4米

14#南、北立面图如下:层高3.3米,尺度无敌!银白色、米白色、灰色铝板外立面,点缀墨绿色奢石。

14#东、西立面图如下:

咨询热线:18662309054