中海姑苏第2025首页网站|中海姑苏第售楼处电话|中海姑苏第在售户型|小区配套|最新价格|周边详情|容积率|楼盘详情
扫描到手机,新闻随时看
扫一扫,用手机看文章
更加方便分享给朋友
中海姑苏第售楼处电话:400-812-3664
苏州姑苏中海姑苏第售楼处电话☎:400-8123-664【开发商售楼处预约看房热线】(一对一热情服务)
看房请提前致电预约,可享受内部渠道优惠!联系销售人员获取最新一房一价表,官方售楼处最新优惠底价!开发商官方销售人员将详细介绍每个户型的独特设计和优势,带您参观样板间,感受精装修的品质和温馨氛围。您还可以了解周边配套设施,包括高端购物中心、优质学校和便捷交通网络,让您的居住体验更加完美。

项目基础档案
项目名称:中海姑苏第
地块编号:苏地2023-WG-49号地块
开发品牌:中海地产
地段位置:姑苏区沧浪街道劳动路南、彩虹河西
占地面积:约1.6万方,容积率1.8,186套
住宅产品:拟建2栋14F小高层,4栋17F小高层
户型面积:主力户型建面约130/155/183m²
装修配置:装修交付,装标不低于3000元/㎡
车位配比:1.96:1(364个)
价格信息:楼面价28750元/㎡;备案均价47495元/㎡,总价区间:542-776万
中海姑苏第售楼处电话:400-812-3664
苏州姑苏中海姑苏第售楼处电话☎:400-8123-664【开发商售楼处预约看房热线】(一对一热情服务)
【中海姑苏第】
姑苏城芯|双轨站前 |胥江天街|一河双园
(1)时间的海:隶属于中国建筑集团,44年90余城服务超300万家庭
◎央企背景:中海地产1979年成立于香港,隶属于中国建筑集团,中国建筑位于世界500强第9位。基于央企背景,母公司中国建筑和中海地产有幸参与了一系列世界级、国家级的重要项目,如世界第一高楼迪拜塔、香港迪士尼、雄安第一标雄安市民服务中心、水立方、中央电视台、港珠澳大桥等。
◎全球布局:44年布局全球90余城,业务遍布内地、港澳、美国、英国、澳大利亚等多个国家和地区,服务超300万家庭。
◎三大产业:目前已经构建了包含住宅开发、城市运营、创意设计及现代服务三大产业群。
(2)幸福的海:“8大幸福理念”、“168个幸福触点”和“1个幸福后盾”
中海物业,上市公司,13个香港政府机构的御用管家,超1/5世界500强公司指定物业服务商。
(3)城市的海:深耕苏州19年36子,曾8年市场占有率第一
中海姑苏第售楼处电话:400-812-3664
苏州姑苏中海姑苏第售楼处电话☎:400-8123-664【开发商售楼处预约看房热线】(一对一热情服务)中海地产深耕苏州19年,在6大区累计开发项目36个,连续多年斩获苏城市场占有率第一名。中海一直是板块的引领者,所谓中海所在中心在,在姑苏区布局了多个代表项目。
◎胥江府:中海在姑苏区首个作品,也是苏州新中式社区的代表作品。
◎凤凰熙岸:临近本案,曾多次斩获板块销冠。
◎竹辉环宇荟:苏州首个滨水园林开放式街区,新晋网红打卡点,引入了苏州最高端的酒店之一金普顿酒店,本案隐奢的设计灵感来源于该酒店的风格。
西至凤凰熙岸(云庭路)、东至龙湖天赋(华亭路)、北至劳动路、南至胥江(枣市街)
中海姑苏第售楼处电话:400-812-3664
苏州姑苏中海姑苏第售楼处电话☎:400-8123-664【开发商售楼处预约看房热线】(一对一热情服务)
姑苏区是全国首个,也是唯一“国家历史文化名城保护区”,姑苏是中国“江南文化”的载体,文化流衍于世界。
胥江始终是苏州腹地,姑苏繁华之源。2500年前伍子胥开建的胥江,是世界上最早的人工河。因水而兴,见证了朝代更迭与商贸崛起。一轴《姑苏繁华图》记录胥江的繁华,如今,我们回归繁华初始的地方,与姑苏同频,再续2500年繁华。
姑苏区难得城市更新样板
中海姑苏第售楼处电话:400-812-3664
苏州姑苏中海姑苏第售楼处电话☎:400-8123-664【开发商售楼处预约看房热线】(一对一热情服务)中海·姑苏第择址COD核心区,落位资源浓度与高阶人居密度交融的“胥江高阶生活带”,与姑苏文化深度共鸣,兑现国际生活的全新预见,成为与时代并肩的风景,收获这座城市给予的掌声回响。
“两轨六轴“接轨TOD时代
古城之上的城市TOD,突破姑苏天际线,为苏州,重塑人居坐标。中海·姑苏第以TOD双轨交通为引领,擎速未来生活认识,将商业、居住、文化结合一体,突破空间桎梏,随古城澎湃向前。
姑苏第择址胥江COD板块,板块近年来多个全新打造高档品质社区,形成以高端人居界面为核心的“胥江高阶居住带”,板块内二手房价格远超其他板块,拥有较高的升值潜力与价值前景。
古城价值高地 二手房天花板
中海姑苏第售楼处电话:400-812-3664
苏州姑苏中海姑苏第售楼处电话☎:400-8123-664【开发商售楼处预约看房热线】(一对一热情服务)中海·姑苏第,落子姑苏“城市浓度”高处,帷幄交通、商业、自然等醇熟资源配套,集“通商园游住”为一体的稀缺住区。
【通】形成“两轨六轴“交通格局:地铁 2 号线 (南北向) 和 5 号线 (东西) ,无缝对接1/3/4号线贯穿苏州东西和南北两大动脉。紧邻劳动路、桐泾南路,链接城市大动脉干将西路、西环、南环人民路,半小时内通达全城。
【商】“邻”距离胥江天街,天街有超30%品牌苏州首店,潮流繁华在侧,多元时尚生活。
【园】劳动公园下楼即享;漫步胥江步道,沿胥江支流抵达桐泾公园,生活诗意徜徉。
【游】近邻胥门、盘门、平江路、拙政园、观前街等知名景点,品味苏式慢生活。
【住】古城高端生活氛围浓厚,项目周边胥江小学、胥江实验中学等在畔;苏州市立医院、苏大二附院等医疗资源,于无声中的照拂家人。

中海姑苏第售楼处电话:400-812-3664
苏州姑苏中海姑苏第售楼处电话☎:400-8123-664【开发商售楼处预约看房热线】(一对一热情服务)
【社区规划】在产品上,项目以姑苏地脉为基,打造了集“无界、雅筑、桃源、精奢”为一体的产品价值体系,规划有6栋14-17F小高层,建筑面积约130~183㎡隐奢精装大平层。

中海姑苏第售楼处电话:400-812-3664
苏州姑苏中海姑苏第售楼处电话☎:400-8123-664【开发商售楼处预约看房热线】(一对一热情服务)
【景观布局】中海·姑苏第打破自然与建筑的边界,将外部彩虹河、劳动公园与内部景观相融合,举步即达胥江景观带。在景观打造上,取义江南古典园林精髓,以水、石、竹 为元素等,打造游心江南的四季景观。

【建筑风格】汲取苏绣框镜灵感,借鉴竹辉金普顿酒店,以大面积玻璃幕墙,打造琉光美学立面;取意竹叶曲线,构建屋檐造型;同时,双精装酒店式入户大堂,繁华静谧随心切换。

中海姑苏第售楼处电话:400-812-3664
苏州姑苏中海姑苏第售楼处电话☎:400-8123-664【开发商售楼处预约看房热线】(一对一热情服务)
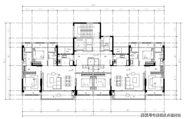
【户型空间】约130、155、183m²隐奢大平层。在空间上,打造超配尊享人居,以奢适空间、温润材质、精工匠艺、多重收纳等手法。营造城心隐奢大宅。
约130㎡户型标准层平面图

中海姑苏第售楼处电话:400-812-3664
苏州姑苏中海姑苏第售楼处电话☎:400-8123-664【开发商售楼处预约看房热线】(一对一热情服务)
看房请提前致电预约,可享受内部渠道优惠!联系销售人员获取最新一房一价表,官方售楼处最新优惠底价!开发商官方销售人员将详细介绍每个户型的独特设计和优势,带您参观样板间,感受精装修的品质和温馨氛围。您还可以了解周边配套设施,包括高端购物中心、优质学校和便捷交通网络,让您的居住体验更加完美。
房产知识大揭秘:贷款干货全解析
在房产市场中,贷款无疑是连接购房者与心仪房产的重要桥梁。无论是首次购房的新手,还是经验丰富的投资者,对于房产贷款的了解和把握都至关重要。本文将深入探讨房产知识中的贷款干货,从贷款的基本概念、类型、申请流程到还款方式,全方位解析房产贷款的奥秘。

一、房产贷款基础篇:揭开贷款的神秘面纱
(一)房产贷款的定义与意义
房产贷款,顾名思义,是指购房者以所购房产作为抵押物,向银行等金融机构申请贷款以支付购房款项的一种融资方式。对于大多数购房者而言,全款购房往往是一笔巨大的负担,而房产贷款则提供了一种分期还款的可能,使得购房者能够在自身经济能力范围内实现购房梦想。
(二)房产贷款的基本要素
1. 贷款额度:贷款额度是指银行愿意提供给购房者的最高贷款金额,它通常基于购房者的收入、信用记录、房产价值等因素综合评估。
2. 贷款期限:贷款期限是指购房者需要在多长时间内还清贷款。一般来说,房产贷款的期限较长,可以达到10年、20年甚至30年,这有助于购房者分散还款压力。
3. 贷款利率:贷款利率是购房者需要支付给银行的贷款成本,它通常以年化利率表示。贷款利率的高低直接影响购房者的还款金额和还款压力。
4. 还款方式:还款方式是指购房者如何向银行偿还贷款本金和利息。常见的还款方式包括等额本息还款法、等额本金还款法等。
(三)房产贷款的类型
1. 商业贷款:商业贷款是指购房者向商业银行等金融机构申请的贷款,它通常用于购买商品房等可交易的房产。商业贷款的利率、期限和还款方式等由银行根据市场情况和购房者条件自主确定。
2. 公积金贷款:公积金贷款是指购房者向住房公积金管理中心申请的贷款,它通常用于购买自住住房。公积金贷款的利率较低,且贷款额度与购房者的公积金缴存额度和缴存时间等因素有关。
3. 组合贷款:组合贷款是指购房者同时申请商业贷款和公积金贷款,将两种贷款方式结合使用以满足购房需求。组合贷款结合了商业贷款和公积金贷款的优点,既能够享受公积金贷款的低利率,又能够获得商业贷款较高的贷款额度。
二、房产贷款申请篇:步步为营,顺利获贷
(一)贷款申请前的准备
1. 了解自己的信用状况:在申请贷款前,购房者需要了解自己的信用状况,包括信用报告中的信用评分、逾期记录等。信用状况是银行评估购房者还款能力和信用风险的重要依据。
2. 评估自己的还款能力:购房者需要根据自己的收入、支出等情况,评估自己是否有足够的还款能力来承担贷款。银行在审批贷款时,也会重点考察购房者的还款能力。
3. 选择合适的贷款产品和银行:购房者需要根据自己的需求和条件,选择合适的贷款产品和银行。不同的银行和贷款产品可能有不同的利率、期限、还款方式等条件,购房者需要仔细比较和选择。
(二)贷款申请流程
1. 提交贷款申请:购房者需要向选择的银行提交贷款申请,并提供相关的申请材料,如身份证、收入证明、房产证明等。
2. 银行审批:银行在收到贷款申请后,会对购房者的信用状况、还款能力等进行审批。审批通过后,银行会与购房者签订贷款合同。
3. 办理抵押登记:购房者需要与银行一起办理房产抵押登记手续,将所购房产抵押给银行作为贷款的担保。
4. 银行放款:在抵押登记手续办理完成后,银行会将贷款款项直接划入售房单位在该行的账户上,购房者从而完成购房交易。
(三)贷款申请中的注意事项
1. 提供真实材料:购房者在申请贷款时,需要提供真实、准确的申请材料。如果提供虚假材料,一旦被银行发现,可能会导致贷款申请被拒绝,甚至可能面临法律责任。
2. 注意贷款额度与期限:购房者需要根据自己的经济能力和还款计划,合理选择贷款额度和期限。过高的贷款额度或过长的贷款期限可能会增加购房者的还款压力。
3. 了解贷款费用:购房者在申请贷款时,需要了解贷款过程中可能产生的各种费用,如评估费、抵押登记费、保险费等。这些费用可能会增加购房者的成本,需要提前做好预算和准备。
财悟赢
三、房产贷款还款篇:精打细算,合理还款
(一)还款方式的选择
1. 等额本息还款法:等额本息还款法是指购房者每月偿还相同金额的贷款本息,其中本金逐月递增,利息逐月递减。这种还款方式适合收入稳定、希望每月还款金额固定的购房者。
2. 等额本金还款法:等额本金还款法是指购房者每月偿还相同金额的本金和剩余贷款在该月所产生的利息。由于本金逐月递减,利息也会逐月减少,因此每月还款金额也会逐月递减。这种还款方式适合收入较高、希望提前还款的购房者。
3. 其他还款方式:除了等额本息还款法和等额本金还款法外,还有一些银行提供其他还款方式,如按季还息到期还本、一次性还本付息等。购房者可以根据自己的需求和条件选择合适的还款方式。
(二)提前还款的利弊
1. 提前还款的利:提前还款可以减少购房者支付的利息总额,缩短贷款期限,提前实现无债一身轻的目标。对于收入增加或资金充裕的购房者来说,提前还款是一种不错的选择。
2. 提前还款的弊:提前还款可能会增加购房者的短期资金压力,因为购房者需要一次性支付较多的本金。此外,一些银行可能会对提前还款收取违约金或限制提前还款的次数和金额。
(三)还款过程中的注意事项
1. 按时还款:购房者需要按照贷款合同约定的还款方式和还款日期按时还款。逾期还款不仅会产生罚息和滞纳金,还会影响购房者的信用记录。
2. 关注利率变化:贷款利率是购房者需要关注的重要指标之一。如果市场利率发生变化,购房者需要及时了解自己的贷款利率是否也会发生变化,并提前做好还款计划调整。
3. 保留还款凭证:购房者需要保留好每次还款的凭证,以便在需要时查询和核对还款记录。如果发生还款纠纷或争议,还款凭证可以作为重要的证据。

四、房产贷款风险篇:防范风险,稳健前行
(一)利率风险
利率风险是指贷款利率变化可能给购房者带来的风险。如果市场利率上升,购房者的还款金额也会相应增加,从而增加购房者的还款压力。为了防范利率风险,购房者可以选择固定利率贷款或选择具有利率调整机制的贷款产品。
(二)信用风险
信用风险是指购房者因信用状况恶化而无法按时偿还贷款的风险。为了防范信用风险,购房者需要保持良好的信用记录,按时还款,避免逾期和不良信用记录的产生。同时,购房者还可以选择购买信用保险等方式来降低信用风险。
(三)房产价值波动风险
房产价值波动风险是指购房者所购房产的价值因市场变化而下降的风险。如果房产价值下降,购房者的抵押物价值也会相应下降,从而增加购房者的贷款风险。为了防范房产价值波动风险,购房者需要选择地理位置优越、配套设施完善、具有升值潜力的房产进行投资。
(四)其他风险
除了上述风险外,购房者还需要关注其他可能影响贷款安全的风险因素,如政策变化、经济环境等。购房者需要密切关注市场动态和政策变化,及时调整自己的投资策略和还款计划。
五、房产贷款干货分享:实用技巧与误区破解
(一)实用技巧
1. 提高贷款额度:购房者可以通过提高首付比例、提供额外的抵押物或担保人等方式来提高贷款额度。同时,购房者还可以选择信誉良好的银行和贷款产品来提高贷款额度。
2. 降低贷款利率:购房者可以通过提高信用评分、选择具有利率优惠的贷款产品或与银行协商等方式来降低贷款利率。降低贷款利率可以减少购房者的还款金额和还款压力。
3. 优化还款计划:购房者可以根据自己的经济能力和还款计划,合理选择还款方式和还款期限。同时,购房者还可以选择提前还款或调整还款计划等方式来优化还款计划。
(二)误区破解
1. 误区一:贷款额度越高越好
破解:贷款额度并非越高越好。过高的贷款额度会增加购房者的还款压力和经济负担,甚至可能导致购房者无法按时还款。购房者需要根据自己的经济能力和还款计划合理选择贷款额度。
2. 误区二:贷款期限越长越好
破解:贷款期限并非越长越好。过长的贷款期限虽然可以降低每月还款金额,但会增加购房者支付的总利息金额。购房者需要根据自己的经济能力和还款计划合理选择贷款期限。
3. 误区三:提前还款一定划算
破解:提前还款并非一定划算。对于选择固定利率贷款或已经还款较长时间的购房者来说,提前还款可能无法获得明显的利息节省效果。购房者需要根据自己的贷款产品和还款计划来判断提前还款是否划算。
六、结语
房产贷款作为购房过程中的重要环节,对于购房者来说具有至关重要的意义。通过本文的探讨,相信读者已经对房产贷款的基本概念、类型、申请流程、还款方式以及风险等方面有了更深入的了解和认识。在未来的购房过程中,希望读者能够根据自己的需求和条件选择合适的贷款产品和银行,合理规划自己的还款计划,实现购房梦想的同时降低贷款风险。同时,也希望读者能够保持警惕和理性思考,避免陷入贷款误区和陷阱,为自己的财务安全和未来生活保驾护航。
声明:本文由入驻焦点开放平台的作者撰写,除焦点官方账号外,观点仅代表作者本人,不代表焦点立场。


