在来看下220m²顶楼的露台,顶楼直通露台,也是看湖景最好的位置,这个真的是顶楼业主的至尊专属特权项目是70年公寓,几个户型设计都很优秀,主要还是因为项目是洋房和叠墅,在得房率上比较占优势。200多平的大平层…
苏州金鸡湖畔中锐瑞园
售楼处电话:18118152573【同微信】
如有问题欢迎来电咨询,来电即可享受买房优惠!

还有一个难买的就是旁边的金螳螂·柏悦楼盘。
主打建面约165-324㎡大平层和叠墅产品。
有房产大V为了买它从19年就开始着手各种准备,千万资金早已备好,结果渠道、中介接触了不下十个,靠谱的基本没有。最近这个盘的热度又起来了,看朋友圈有人疯狂发圈,一哥一咨询茶水费用达到300万以上!
No.1壹
金鸡湖畔瑞园示范区已建成
单价10W起,总价2200万起
从6月中旬开始、微信平台就有中介刷屏:“目前签约最快的楼盘金鸡湖畔瑞园”“苏州最好位置最神秘的新盘”开售了!

此次项目流露出产品信息如下:
1、面积220平、330平;
2、单价10-15万/平,也就是说总价2200万起步;好楼栋更贵。
3、320平叠加,上叠比下叠贵,最高已超过4000万!
虽然目前苏州楼市已经迈入改善,但要说起200+㎡的终极改善产品终究还是少数,但瑞园最小户型就是220平!
而且产品单价高达10万+/平,绝对是创造了新房成交价纪录。

传说苏州神盘瑞园的购房模式到底是什么呢?
瑞园不像其他项目,一般的新盘开售都是取得预售证、然后进入市场销售,而瑞园走的是财产份额转让方式,这样的好处是可以避开备案销售,达到避开限价的目的。
简单说,开发商成立合伙公司,购房者以认购股权基金的方式获得主体公司部分股权,进而实现对房屋所有权的占有。
买家主要会签两个协议:合伙企业入伙协议,合伙企业财产份额转让协议。
从瑞园来看,首先开发商中锐成立合伙企业,将瑞园资产装入合伙企业,再将每一套房产货值对应的份额转让给买家。比如一套220平标准层,货值大概在2200万,对应约4%的财产份额,以财产份额转让的方式卖给买家。
而对于购房人来说,要实现购房方式有三步。
第一步、选房
选好具体房号,确定价格。
第二步、认购增资股权基金
每套房根据面积、楼层、朝向对应相应的股权及总额,业主选定具体房源后,需签订一份增资协议和投资合作意向书,协议签订后5个工作日付全款。
第三步,办产证
瑞园如今给出的时间是2023年底左右交房,预计2024年左右办理产证,但具体可能需要等待限价放开后才能下证。
看上去与普通买房流程差距不大,但项目协议签订后5个工作日内需要付清全款,也就是2200万-4000多万!对现金流要求很高。
单单有很多很多钱还不过,一定需要更多更多钱才行。
据规划,整个项目分南北两个地块,共建造19栋楼,其中3幢商业,14幢住宅(70年产权酒店公寓)。

回顾这块地的拿地历程,2016年,商旅以10.25亿拿下,溢价率181.9%,其中住宅的成交楼面地价高达34016元/㎡。
之后又与中锐联合开发,分为东西两个地块:
每栋楼楼层不高,最低的4层,最高也只有6层。容积率只有0.4。
1-3#、5-12#、15-17#为住宅楼
18#、19#为商业楼,13#包含商业及酒店
4#为配套楼幢

No.2贰
外立面干挂石材➕铝板
大平层➕叠墅,不可复制地段
项目位于钟园路南、思安街西。论地段,恐怕近几年上市的新房,很少有能够与之匹敌的。
湖东CBD地段,70年产权公寓有学区,限价、稀缺,属于少数人的炫耀性资产。

- 规划:3栋商业+14栋70年产权公寓

金鸡湖畔瑞园,即中锐摩天轮项目,就在柏悦的对面。
一样的绝佳地段,一样的一线湖景!
楼栋外立面
小区内所有楼栋外立面以白色为主,侧面墙为灰白相间。
根据已经建成的楼栋来看,外立面采用的干挂石材+铝板,简洁大方,品质感十足。


这张照片是从正面来呈现的风格,说句实话这个白色的铝板有点耐脏,还是缺少一点金属质感。

这张是有夕阳下的照片呈现,窗体呈翠绿,已然异形。

部分楼顶设计成了空中花园,而且面积还不小,目测少说也有100㎡。

这个是8栋的叠墅,叠墅的院子很大

在来看下220m²顶楼的露台,顶楼直通露台,也是看湖景最好的位置,这个真的是顶楼业主的至尊专属特权


小区景观
小区正对金鸡湖,风景确实不错,但因为楼层不高,外围又有一圈茂密的香樟树,所以想要在家眺望湖景,恐怕只能上顶楼了。
小区只做了示范区的景观,内部至少还有一半用绿网铺设。

虽然没有多余的色彩,但是层次分明,设计感十足。与周围灰白相间的建筑融合,有一种高级感。
社区规划14幢住宅,共计约102户,主力面积段约165-324㎡,有大平层和叠墅,层高在4-6层。

5#15#为165m²只有2栋约22套大平层
10#11#16#17#为220m²共4栋约48套大平层
1#2#3#6#7#8#9#12#为320m²共8栋约32套叠墅

项目是70年公寓,几个户型设计都很优秀,主要还是因为项目是洋房和叠墅,在得房率上比较占优势。165的得房率大概是86.7%。220的得房率是89.41%。叠加的得房率在96.4%,整体得房率挺高的。
165m²大平层
4房2厅3卫

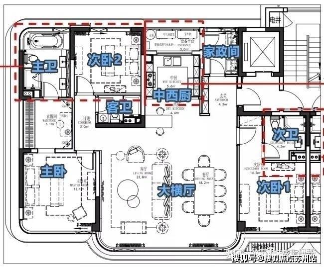
四开间朝南,南北通透,大横厅,中西厨,双套房设计,主卧衣帽间、卫生间都超大,入户玄关处还设计了家政间。
220m²大平层
4房2厅4卫

200多平的大平层,3+1房,舒适度就不用说了。因为是一梯一户的设计,入户门被安排在了北侧中部,这个在大平层中也比较常见。
320m²下叠
5房3厅5卫


324m²上叠
5房5卫


上叠和下叠户型一模一样,都是两层,有楼梯和私家电梯,房间、卫生间多到数不清,客厅部分挑高,主卧大套房设计,上叠会有楼台。
话不多说看下样板间碟照
样板间整体装修风格偏暖色调。客厅是餐客一体的大横厅,开间尺寸感还不错。

客厅和院子之间整整一面都是大落地玻璃。


在来看下部分卧室和厨房照片


这个是厨房吧台。



返回搜狐,查看更多

苏州金鸡湖畔中锐瑞园
售楼处电话:18118152573【同微信】
如有问题欢迎来电咨询,来电即可享受买房优惠!