涌潮府(浦东涌潮府售楼处电话)首页网站-涌潮府-楼盘详情-户型配套-在售房源
扫描到手机,新闻随时看
扫一扫,用手机看文章
更加方便分享给朋友
上海浦东 涌潮府
售楼处电话/地址:400-8123-664(预约热线)✔✔✔
如有问题欢迎来电咨询,专业一对一热情服务,让您用专业眼光去买房。
涌潮府售楼处电话☎:400-8123-664【售楼热线】✔✔✔营销中心热☎400-8123-664售楼处地址☎400-8123-664
温馨提示:看房需提前预约,感谢您的配合!
———————————————————————
地铁3站直达金桥
浦东500万级全新地铁房
「」售楼处电话☎:400-8123-664✔✔
看房请务必致电与销售确认时间,避免空跑
建面约88-129㎡3-4房
均价约5.15万/㎡
已开盘 少量房源
直接认购中...
「涌潮府」售楼处电话☎:400-8123-664✔✔看房请务必致电与销售确认时间,避免空跑
最新一房一价表:
「涌潮府」售楼处电话☎:400-8123-664✔✔看房请务必致电与销售确认时间,避免空跑
01.
买房就是买地段
从地图来看,「涌潮府」位于浦东曹路,西侧紧邻金桥城市副中心。
从发展的角度来看,曹路整体几乎可以媲美唐镇!
首先是规划定位:
「涌潮府」售楼处电话☎:400-8123-664✔✔看房请务必致电与销售确认时间,避免空跑在《上海2035规划》中,曹路与浦东唐镇、合庆共同定位为城镇圈,并以唐镇和曹路镇为核心,实现区域协同发展、城乡融合发展。

示意图
「涌潮府」售楼处电话☎:400-8123-664✔✔看房请务必致电与销售确认时间,避免空跑规划中明确,唐镇-曹路-合庆城镇圈是浦东东部近郊被主城区大产业环绕的、且处于沿江通道上的重要功能板块。
板块将依托金桥城市副中心、张江科学城的产业联动契机和沪通铁路开通、轨道交通连通带来的交通区位提升契机,联动周边城市功能板块,整合城镇圈内部各功能板块,打造地区经济发展新亮点。

示意图
其次是地理位置:
从地图来看,曹路整体地理位置与唐镇、外高桥、周康等板块非常相似,全都位于外环旁,且紧邻金桥、张江等产业高地。
曹路向西,依次可至金桥副中心、花木-龙阳路副中心、张江副中心、陆家嘴中央活动区,各大商圈均在非常便捷的通勤范围内。
尤其是从曹路新市镇中心实际驾车到到金桥副中心核心区,距离仅约4.4公里!
如果乘坐轨道交通,3站地铁即可抵达金桥!
「涌潮府」售楼处电话☎:400-8123-664✔✔看房请务必致电与销售确认时间,避免空跑这样近的距离,完全可以住在曹路,享受城市副中心的配套服务。

示意图
02.
性价比才是硬道理
众所周知,楼市热度与板块新房供应量息息相关。
「涌潮府」售楼处电话☎:400-8123-664✔✔看房请务必致电与销售确认时间,避免空跑目前曹路由于新盘供应较少,所以很多朋友对于曹路的热度并不是很了解,曹路上一个全新盘供应还要追溯到一年以前,并且认购率连续2次超过150%!
当然,由于板块楼市处于较为初始的阶段,所以洼地属性非常明显:
同总价板块,地段一枝独秀!
从纬度地段,性价比无出其右!
从同总价板块来看:
「涌潮府」11批次过会均价约5.15万/㎡,总价约500万级。
「涌潮府」售楼处电话☎:400-8123-664✔✔看房请务必致电与销售确认时间,避免空跑而目前整个浦东500万级的板块,「涌潮府」无论是在地理位置方面,还是交通便捷方面,全部堪称遥遥领先。

示意图
从同环线板块来看:
「涌潮府」直线距离外环仅约3公里,通过北侧的五洲大道可直抵中环。
「涌潮府」售楼处电话☎:400-8123-664✔✔看房请务必致电与销售确认时间,避免空跑整个浦东外环旁区域的新房价格如下,三林约10万+、周浦约6万+、康桥约6万+、唐镇约7万+,也就是说「涌潮府」足以匹配约600-1000万级才有的地段价值。

示意图
03.
配套价值是资源的占有
除了优质地段和过人的性价比之外,「涌潮府」还占据着高能级全维度的城市资源。
根据规划,「涌潮府」所在的曹路板块将依托交通区位优势和区域产业、高校、院所资源,打造融合城市商贸服务、文化、休闲娱乐、生活居住等多种功能的复合型地区中心。
双轨交汇
「涌潮府」售楼处电话☎:400-8123-664✔✔看房请务必致电与销售确认时间,避免空跑项目周边坐拥地铁9号线和崇明线(在建)双轨交,步行仅约600米即可到达崇明线(在建)凌空北路站!

示意图
「涌潮府」售楼处电话☎:400-8123-664✔✔看房请务必致电与销售确认时间,避免空跑崇明线是上海轨道交通“十四五”开局之年的先行线路,建成后将大大提升曹路板块交通服务功能和城市空间组织效能。
通过崇明线(在建)凌空北路站进站,2站即可到达申江路站换乘12号线,3站即可到达金桥核心区换乘9号线。

示意图
值得注意的是,申江路站与凌空北路站仅仅相隔2站,但是房价却相差很多。
「涌潮府」售楼处电话☎:400-8123-664✔✔看房请务必致电与销售确认时间,避免空跑据网上房地产数据显示,申江路站最新一期的新房均价已经达到7.95万/㎡,与「涌潮府」仅约5.15万/㎡的均价相差约2.8万/㎡!
另外据贝壳数据显示,申江路站沿线的次新房挂牌价基本已经站稳10万+/㎡,与「涌潮府」仅约5.15万/㎡的均价相差超过5万/㎡!

示意图
紧邻外环
「涌潮府」直线距离外环高速仅约3公里,可以快速通勤金桥城市副中心、张江城市副中心和陆家嘴中央活动区等热门商圈,便捷交通处处快人一步。
「涌潮府」售楼处电话☎:400-8123-664✔✔看房请务必致电与销售确认时间,避免空跑另外,「涌潮府」转至杨高中路直线距离约18公里即可直接到达世纪大道、陆家嘴中心。

示意图
教育高地
「涌潮府」周边教育氛围非常浓厚,包括浦东模范中学东校、浦东复旦附中分校等优质教育资源,据统计项目周边直线1公里内共计拥有/规划了9块教育用地。
更重要的是,「涌潮府」南侧规划的教育用地,目前也正在施工。
「涌潮府」售楼处电话☎:400-8123-664✔✔看房请务必致电与销售确认时间,避免空跑(新房不承诺学区,具体以实际交付为准)

示意图
优质医疗
「涌潮府」直线2公里以内可以到达三级甲等医院海军军医大学第二附属医院(上海长征医院)浦东新院(在建)。
另外,「涌潮府」西侧规划了占地面积约3.5万方的医疗卫生用地。
「涌潮府」售楼处电话☎:400-8123-664✔✔看房请务必致电与销售确认时间,避免空跑根据配套设施规划,该地块还将建设约1800㎡的健身馆及建面约800㎡的游泳池等社区服务配套。

示意图

示意图
04.
建面约88-129㎡3-4房
杭州城建(大家房产),秉承“杭派精工,大美为家”,续承至高府系基因,于杭州和上海先后打造了包括武林府、金麟府、传宸府、上海文澜府等经典著作。
「涌潮府」售楼处电话☎:400-8123-664✔✔看房请务必致电与销售确认时间,避免空跑其中的钱江大家·文澜府,不仅取得了三开三罄的优异成绩,入围积分甚至达到了74分,创造了上海入围分以来同总价段新房的记录!

示意图
而本次,「涌潮府」仅为焕新浦东人居高度而来,项目不仅将“前进式建筑+围合式花园”两大看家本领带到了「涌潮府」,更是为曹路带来了史无前例的高得房率产品。
「涌潮府」售楼处电话☎:400-8123-664✔✔看房请务必致电与销售确认时间,避免空跑,「涌潮府」得房率最高可以达到约80%!

效果示意图
「涌潮府」售楼处电话☎:400-8123-664✔✔看房请务必致电与销售确认时间,避免空跑「涌潮府」南向立面加入大量玻璃,建筑配色经过层层臻选,最终采用大面积米白色,大地色系点缀其间。
「涌潮府」景观方面以“围合式中央公园”为核心,通过时光草坪、园林小径、运动聚场等多维度景观组团序列,深度串联社区多场域景观节点,让业主在生活中深切感受人与自然、建筑亲密共生的场景力。

「涌潮府」售楼处电话☎:400-8123-664✔✔看房请务必致电与销售确认时间,避免空跑
示意图
杭州城建(大家房产),秉承“杭派精工,大美为家”,续承至高府系基因,于杭州和上海先后打造了包括武林府、金麟府、传宸府、上海文澜府等经典著作。
其中,文澜府曾取得了74分的超高分,创下了惠南的积分记录,这是杭州城建(大家房产)实力的见证。
「涌潮府」售楼处电话☎:400-8123-664✔✔看房请务必致电与销售确认时间,避免空跑而本次,涌潮府仅为焕新浦东人居高度而来,先来欣赏下项目的最新效果图:
【Modern Style 当代潮建筑】
「涌潮府」售楼处电话☎:400-8123-664✔✔看房请务必致电与销售确认时间,避免空跑有别于传统住宅单元式立面风格,本案南立面大面积玻璃辅以流畅线条,加之考究配色,营造现代高级的精工建筑质感。
效果示意图

【Central Park 围合式花园】
「涌潮府」售楼处电话☎:400-8123-664✔✔看房请务必致电与销售确认时间,避免空跑【涌潮府】景观方面以“围合式中央公园”为核心,通过时光草坪、园林小径、运动聚场等多维度景观组团序列,深度串联社区多场域景观节点,让业主在生活中深切感受人与自然、建筑亲密共生的场景力。

示意图
「涌潮府」售楼处电话☎:400-8123-664✔✔看房请务必致电与销售确认时间,避免空跑效果示意图,红线外仅为示意,最终以实际交付为准

【Ideal Rooms 理想式居住】
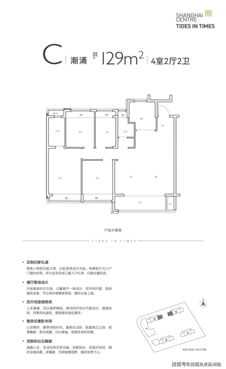
「涌潮府」售楼处电话☎:400-8123-664✔✔看房请务必致电与销售确认时间,避免空跑项目推出建筑面积约88-129㎡户型,南向大面宽、舒适尺度、阳台+多飘窗设计等,打造具有国际生活想象的理想心居。

「涌潮府」售楼处电话☎:400-8123-664✔✔看房请务必致电与销售确认时间,避免空跑「涌潮府」本次将一次性推出253套全部可售房源,主力户型为建面约88㎡3房2厅1卫,建面约95/97㎡3房2厅2卫以及129㎡4房2厅2卫。
全套户型图如下:
「涌潮府」售楼处电话☎:400-8123-664✔✔看房请务必致电与销售确认时间,避免空跑建面约88㎡3房产品,3开间朝南+3飘窗+宽阳台的3房设计,在保证实用性的同时,也让室内的通风以及视野都做到了更好。
更重要的是,该户型总价预计仅约400万级,价格非常亲民,特别适合刚需客户上车!
「涌潮府」售楼处电话☎:400-8123-664✔✔看房请务必致电与销售确认时间,避免空跑
建面约95-97㎡3房2卫,户型3开间朝南+T字动线+动静分离,主卧也设计了套房,让室内采光、通风、私密性都做了进一步升级。
「涌潮府」售楼处电话☎:400-8123-664✔✔看房请务必致电与销售确认时间,避免空跑另外,双卫的设计,完全可以轻松应对常住人员数量大于1的家庭,家中“关键时刻”对卫生间的“拥挤需求”,让家庭生活更从容、更方便。

「涌潮府」售楼处电话☎:400-8123-664✔✔看房请务必致电与销售确认时间,避免空跑
建面约129m²样板间实拍▼

涌潮府售楼处电话☎:400-8123-664【售楼热线】✔✔✔


涌潮府售楼处电话☎:400-8123-664【售楼热线】✔✔✔


涌潮府售楼处电话☎:400-8123-664【售楼热线】✔✔✔


「涌潮府」售楼处电话☎:400-8123-664✔✔看房请务必致电与销售确认时间,避免空跑
建面约95m² 样板间实拍▼

涌潮府售楼处电话☎:400-8123-664【售楼热线】✔✔✔


涌潮府售楼处电话☎:400-8123-664【售楼热线】✔✔✔

「涌潮府」售楼处电话☎:400-8123-664✔✔看房请务必致电与销售确认时间,避免空跑
建面约129㎡的4房户型,在浦东非常少见,另外这也是曹路今年唯一一个4房户型,对于居住尺度有一定要求的改善朋友千万不要错过。
大尺度宽厅+双卧朝南,采光真的很不错,值得注意的是,该户型的宽厅还可以随时根据自身需求进行功能空间的加减,也可以设计成为一个开放式的书房,让生活多了一种可能。
「涌潮府」售楼处电话☎:400-8123-664✔✔看房请务必致电与销售确认时间,避免空跑除了户型设计之外,「涌潮府」在装修标准方面也甄选国内外一线家装品牌。
「涌潮府」售楼处电话☎:400-8123-664✔✔看房请务必致电与销售确认时间,避免空跑
全屋精装“三大件”:日立(或同等品牌)中央空调、威能(或同等品牌)地暖、中科赛睿(或同等品牌)新风系统。
厨房配有老板两件套(或同等品牌)油烟机+燃气灶,特别配置摩恩(或同等品牌)水槽和奥普(或同等品牌)厨房凉霸。
卫生间的配置科勒(或同等品牌)洁具+龙头+花洒,浴室柜臻选人造石材台面。
写在最后:
无论是媲美唐镇的地段、2站相差超过5万/㎡的性价比、双轨交3站金桥的交通,还是源自杭派精工的社区品质,「涌潮府」都将是浦东500万级产品的优选之选。
地铁3站直达金桥
浦东500万级全新地铁房
「涌潮府」售楼处电话☎:400-8123-664✔✔
看房请务必致电与销售确认时间,避免空跑
建面约88-129㎡3-4房
均价约5.15万/平
上海浦东 涌潮府
售楼处电话/地址:400-8123-664(预约热线)✔✔✔
如有问题欢迎来电咨询,专业一对一热情服务,让您用专业眼光去买房。
涌潮府售楼处电话☎:400-8123-664【售楼热线】✔✔✔营销中心热☎400-8123-664售楼处地址☎400-8123-664
温馨提示:看房需提前预约,感谢您的配合!
———————————————————————
房产知识解答:
一、现房和期房:
现房是已经建好的房子,而且可以直接领到房产证,过户入住。
二、70年产权
70年产权在我国法律规定中,“土地使用权”与“房屋产权”是两个不同的概念,土地使用权出让的较高年限是:居住用地70年,70年土地使用期满后,土地收归国有,地上建筑物仍然属于业主所有,如果再次申请土地使用权,则应该根据当时的地价水平,补缴土地出让金。
三、公摊
所谓公摊面积,是分摊的公用建筑面积的简称,它与套内建筑面积之和构成了一套商品房的建筑面积。需要分摊的共有建筑面积为整幢建筑物的建筑面积扣除整幢建筑物各套套内建筑面积之和,并扣除作为独立使用的地下室、车棚、车库,为多幢服务的警卫室、管理用房,以及人防工程等之后的建筑面积。
四、容积率
容积率,是指一个小区的地上总建筑面积与用地面积的比率。对于开发商来说,容积率决定地价成本在房屋中占的比例,而对于住户来说,容积率直接涉及到居住的舒适度。一个良好的居住小区,高层住宅容积率应不超过4,多层住宅应不超过1.5,绿地率应不低于40%。
五、得房率
得房率售楼处电话:400-8123-664【售楼热线】=(建筑面积-公摊面积)/销售面积,是买房比较重要的一个指标。计算房屋面积时,计算的是建筑面积,所以得房率太低,不实惠;太高,不方便。因为得房率越高,公共部分的面积就越少,住户也会感到压抑。一般,得房率在80%左右比较合适,公共部分既宽敞气派,分摊的面积也不会太多,比较实惠。
六、房屋使用面积
房屋使用面积是指住宅中以户(套)为单位的分户(套)门内全部可供使用的空间的水平投影面积。包括日常生活起居使用的卧室、起居室和客厅、亭子间、厨房、卫生间、室内走道、楼梯、壁橱、阳台、地下室、假层、附层(夹层)、阁楼(暗楼)等面积。住宅使用面积按住宅的内墙面水平投影线计算。内墙面装修厚度计入使用面积。
七、建筑类型
多层:高于10米、低于或等于24米的建筑物。多层房屋一般为4~8层,一般采用砖混结构,少数采用钢筋混凝土结构。
高层:高于24米的建筑。8层以上(可含8层)的建筑体,一般可分为小高层、高层和超高层。人们一般把8层至12或13层的建筑称为“小高层”。
低层:高度低于或等于10米的建筑物,一般是1~3层建筑物,如平房、别墅等。
房地产基础专业知识
1、房地产:指房产和地产的总称(又称不动产)。
2、房地产的三种存在形态:
单纯的土地、单纯的房屋、土地房屋的综合体
3、房地产的特征:
a、房地产位置的固定性(土地不可移,房屋也不可动);
b、房地产地域的差别性(每宗房地产的价值都不同);
c、房地产的高值、耐久性(价格贵、土地永久的);
d、房地产的保值、增值性(货币贬值、房产保值、货币增值、房产增值);
4、房产:是房屋及其权利的总称(占有、使用、收益、处分等权利)。
5、房屋分类:
a、功能用途:居住用房(小区、高品住宅)、工业用房(厂房、仓库)、商业用房(门面、商场)、办公用房(写字楼)、行政用房(军事、学校等单位用房及城市);
b、建筑结构:钢结构、钢筋混凝土结构、砖混结构、砖木结构和其他;
c、所有权归属:公房(直管公房和自管公房等)和私房;
6、地产:是土地及其权利的总称(使用、收益、转让等权利)。
7、土地分类:
a、开发利用:生地和熟地;
b、建筑功能:建筑用地和非建筑用地;
c、用途:居住用地、商业服务用地、工业用地、仓储用地、市政公共设施用地、交通用地、绿化用地、特殊用地等;
8、房地产业:指从事房产开发、经营、管理和服务的行业。包括:
a、土地开发;
b、房屋建设、维修、管理;
c、土地使用权的有偿划拔、转让;
d、房屋所有权的买卖、租赁;
e、房地产抵押贷款;
f、房地产市场;
9、土地使用权:就是土地所有者根据土地分类对土地加以利用的权利(指依法对土地经营、利用和收益的权利)。土地公有制采取了两种形式:即集体所有制和国家所有制。a)农村土地采用了集体所有制,属于农民集体所有;b)城市土地采取国家所有制的形式,属于全民所有;任何个人不能取得土地的所有权。
土地使用获得的方式:
划拔:无偿使用,如学校、医院、军事用地、机场等市政建设工程;
出让:从国家有偿取得使用权,方式:协议(如200-250万/亩)、招标(提出底价,根据使用用途和价格取得)、拍卖(价高者竟得,不违法的前提下,通过正规渠道取得);
10、房地产市场:
a、一级市场:以土地为体(亦称土地市场、土地交易市场);
b、二级市场:开发商获得土地后,投入一定的奖金建设,通过有偿或赠与将产权转买给需求者(新建商品房的买卖市场);
c、三级市场:房屋在消费市场的再次流通,包括:买卖、抵押、转让、租凭(二手房);
声明:本文由入驻焦点开放平台的作者撰写,除焦点官方账号外,观点仅代表作者本人,不代表焦点立场。


