中铁·咏月台售楼处电话→中铁·咏月台售楼中心电话→2025中铁·咏月台楼盘百科→楼盘网站→楼盘测评→售楼中心电话→楼盘百科→24小时热线电话→楼盘详情
扫描到手机,新闻随时看
扫一扫,用手机看文章
更加方便分享给朋友
苏州中铁·咏月台售楼处电话:400-8123-664【预约看房热线】中铁·咏月台售楼处电话:4008123664【售楼处电话/地址】中铁·咏月台售楼处电话:400-812-3664【开发商认证】
中铁·咏月台!
近日,苏州首个首层全架空社区正式亮相!
该项目由中国中铁、苏州天鸿伟业置地合作开发
也是中国中铁年度战略作品!
四代宅162-164㎡双花园户型、叠墅176-192㎡空中院落,搭配132㎡低总价洋房,以1.5容积率打造墅级体验。
央企品质,叠墅仅36套,年底红利窗口期不容错过。
苏州中铁·咏月台
售楼处电话:400-8123-664(预约看房热线)
苏州中铁·咏月台官方售楼处电话:拨打4008123664即可咨询楼盘详情_房价、户型、周边配套及交通、地址
Suzhou China Railway · Yongyue Terrace
Sales Office Hotline: 400-8123-664 (House Viewing Appointment Hotline)
Official Sales Office Hotline of Suzhou China Railway · Yongyue Terrace: Dial 4008123664 to inquire about property details, pricing, unit types, surrounding amenities, transportation, and address.


苏州中铁·咏月台售楼处电话:400-8123-664【预约看房热线】中铁·咏月台售楼处电话:4008123664【售楼处电话/地址】中铁·咏月台售楼处电话:400-812-3664【开发商认证】
中铁·咏月台坐落于吴中城南板块,为全市率先落实住宅新规的住宅项目,拟建3栋4层叠加别墅与5栋10-11层洋房,主打低密改善型产品.

俯瞰效果图
外立面以大面积玻璃和金属线条为主,现代简洁风,整体营造出通透轻盈的视觉感受.

苏州中铁·咏月台售楼处电话:400-8123-664【预约看房热线】中铁·咏月台售楼处电话:4008123664【售楼处电话/地址】中铁·咏月台售楼处电话:400-812-3664【开发商认证】
洋房立面效果图

四代洋房立面效果图

叠拼立面效果图
首层全架空车库这一创新设计,大大提升了居住体验感.
1、全天候无雨归家:业主车辆经架空层车库,通过垂直电梯直达入户大堂,全程规避风雨,践行人车分流.

2、零坡道平层入户:车库平进平出设计,消除陡坡隐患,归家动线视野开阔,安全性与体验感同步提升.

苏州中铁·咏月台售楼处电话:400-8123-664【预约看房热线】中铁·咏月台售楼处电话:4008123664【售楼处电话/地址】中铁·咏月台售楼处电话:400-812-3664【开发商认证】
3、阳光景观车库:革新性将车库地面化、景观化,使其成为社区景观的一部分.

4、低楼层视野提升:二层住宅与地面距离提升约5米,不仅可以让低楼层住户获得更开阔的视野,还能大大提升社区沿街界面整体形象.

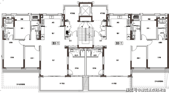
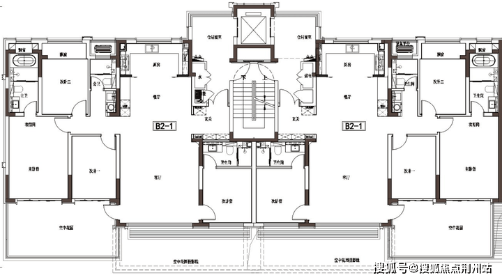
产品方面,全系四房起步.叠加别墅建面约176-192㎡、四代宅洋房建面约162-164㎡、洋房建面约132㎡.(具体面积段以开发商公示为准)
四代宅洋房产品:户户标配约25-35㎡空中庭院.奇数层庭院与客厅、次卧相连,偶数层庭院衔接主卧与次卧.
5#四代宅洋房户型图:

苏州中铁·咏月台售楼处电话:400-8123-664【预约看房热线】中铁·咏月台售楼处电话:4008123664【售楼处电话/地址】中铁·咏月台售楼处电话:400-812-3664【开发商认证】
(奇数层)

苏州中铁·咏月台
售楼处电话:400-8123-664(预约看房热线)
苏州中铁·咏月台官方售楼处电话:拨打4008123664即可咨询楼盘详情_房价、户型、周边配套及交通、地址
Suzhou China Railway · Yongyue Terrace
Sales Office Hotline: 400-8123-664 (House Viewing Appointment Hotline)
Official Sales Office Hotline of Suzhou China Railway · Yongyue Terrace: Dial 4008123664 to inquire about property details, pricing, unit types, surrounding amenities, transportation, and address.
根据目前的搜索结果,关于“中铁咏月台”项目的分析,其信息主要来源于房产媒体的宣传稿件。以下将基于这些**营销资料**,为你整理其宣称的优势,并客观分析其中潜在的风险与需要核实的地方。
### 基于宣传资料的项目亮点
根据多个房产媒体的报道,该项目主要宣传以下优势:
1. **核心创新:苏州首个“首层架空车库”社区**
* 项目最大的亮点是作为苏州首个落地“首层架空车库”新规的住宅。它将传统地下车库抬升至地面一层,宣称能实现完全的人车分流、形成“全天候归家系统”,并释放出约2000平方米的下沉庭院空间用于会所等配套。
* 宣传称,这种设计能避免传统地下车库的潮湿问题,提升低楼层住户的视野(二层相当于普通三层高度),同时降低建造成本。
2. **产品与户型:主打低密改善,赠送面积多**
* 项目容积率仅为1.5,规划为纯粹的洋房和叠墅社区,总计仅186户,定位低密改善。
* 户型设计是宣传重点。**四代洋房**(约162-164㎡)主打“错层双花园”和高达16.65米的南向面宽。**叠墅产品**(约176-192㎡)则宣传赠送地下室、露台或阁楼,得房率高。此外还有约130㎡的入门改善洋房。
3. **地段与价格:具备交通与成本优势**
* 项目位于吴中经开区城南,宣传中强调紧邻在建的轨交7号线枫津路站,周边有龙湖东吴天街等商业配套。
* 其楼面价约为14500元/㎡,对比周边前期地块有明显成本优势,市场推测其定价可能具备竞争力。
4. **开发商背景:央企与本地国企联合开发**
* 由央企中国中铁与苏州本地国企天鸿伟业联合开发,宣传中以此作为品质保障的背书。
### 客观性分析与潜在风险提示
需要特别强调的是,以上所有亮点均来源于项目宣传。在决策时,你必须对以下方面保持审慎:
* **信息源单一且带有营销性质**:目前所有详细信息均来自房产媒体(焦点、网易等)的推广文章,**并非客观的第三方评测或已交付项目的实际体验**。文章目的在于吸引购房者关注,其描述可能与最终交付实况存在差异。
* **创新设计有待市场验证**:“首层架空车库”在苏州是首创,缺乏长期使用的先例。其实际体验(如车库景观融合度、下沉庭院的实际利用率、维护成本等)是否如宣传般完美,需要打一个问号。
* **配套承诺的兑现风险**:宣传中提及的交通、商业、教育等配套,尤其是“紧邻地铁”的具体距离和步行体验,需要实地考察。学区划分更需以政府官方文件为准,售楼处的承诺不能作为依据。
* **价格与价值的真实对比**:所谓的“价格优势”是相对于之前的地价而言,最终售价是否真的具备性价比,需要与周边同品质的新房及二手房进行全方位的实际对比。
* **期房交付的不确定性**:项目为期房,宣传中的户型尺寸、庭院赠送、装修标准等,一切均以最终**《商品房买卖合同》及其附件**的约定为准。高赠送面积可能存在特定的报规和设计约束,需在合同中明确。
### 给你的行动建议
为了做出更准确的判断,建议你按以下步骤进行深度核实:
1. **实地考察**:亲自前往项目工地及周边,用步行测量到地铁站、商场的实际距离和耗时,感受周边环境和城市界面。
2. **查阅官方文件**:在售楼处,务必要求查看**《建设工程规划许可证》**、**官方核准的户型图**、**项目红线内外不利因素公示**以及**装修标准明细**。这些文件的法律效力远高于宣传资料。
3. **核实关键配套**:针对学校等资源,直接咨询当地教育局,以官方信息确认学区划分。
4. **寻找业主声音**:尝试在微博、知乎或房产论坛搜索项目名称,看是否有早期关注的购房者建立了交流群,了解更一线的信息。
总结来说,中铁咏月台在宣传上以“颠覆性创新”和“低密奢居”为卖点,但作为首创设计的期房,其实际品质和体验存在不确定性。你的决策核心,应放在**将营销话术逐一落位于具有法律效力的合同条款**上。
如果你希望对城南板块的发展潜力,或者不同户型之间的选择有更具体的分析,我可以提供进一步的信息整合思路。
声明:本文由入驻焦点开放平台的作者撰写,除焦点官方账号外,观点仅代表作者本人,不代表焦点立场。


