最新新房盘点!只剩3个纯新盘,姑苏区今年供货少了
扫描到手机,新闻随时看
扫一扫,用手机看文章
更加方便分享给朋友
很意外,今年的姑苏区纯新盘居然急剧减少了,经过去年的爆仓之后,现在的姑苏区剩下的纯新盘只有平江新城、石路和胥江板块了!
分别是平江新城的55号地块,石路的和昌凌云阁和胥江的胥江致新51号地块,今年姑苏区也没有新地块挂出!
而随着各个板块项目的相继入市,各板块价格天花板也接连出炉,平江新城3.6W,胥江4.7W,南门5.2W,沧浪新城3.6W。
不过好在现在的姑苏区还不缺项目了,甚至个别板块已经爆仓了,胥江、金门、石路等,今年,你要买哪里呢?
平江新城 最高3.6W
平江新城板块今年共计有4家纯新盘,即,熙和平江雅园、绿城春月锦园、华润置地润宸和城投55号地块。
其中,熙和平江雅园是在2022年土地成交的;绿城春月锦园、华润置地润宸均是在2023年5月30日成交,这速度是真的快。
目前,其中三个项目都已经取证了,价格上也从3.3W-3.6W不等。
熙和平江雅园
熙和平江雅园,即,苏地2022-WG-3号地块项目,位于姑苏区苏锦街道广济路以西、日益路以南03-05地块,是2022年5月9日,苏州市保障性住房建设有限公司以总价191062万元竞得,成交楼面价18295元/平,溢价率1.64%。
项目占地面积40167平,容积率2.6。
根据规划,项目拟建13栋8+1F-26F住宅,其中,1栋8+1F洋房、4栋9+1F洋房、1栋11F洋房、1栋22F高层、1栋23F高层、1栋24F高层,4栋26F高层。
项目的建筑面积段在105-169平。首批房源260套住宅房源,全装修交付,整体备案均价32922元/平,备案总价区间在308-796万元。
绿城春月锦园
绿城春月锦园,即,苏地2023-WG-13号地块,位于姑苏区苏锦街道日益路北、广济路东,是2023年5月30日,绿城以总价83566万元竞得,成交楼面价18670元/平,溢价率3.72%。
地块用途为城镇住宅用地,占地面积20345平,容积率2.2。
根据规划,项目拟建9栋8-26F住宅,其中,2栋8F洋房、2栋10F洋房、2栋17F小高层、1栋22F高层、2栋26F高层。
项目目前公布了三种官方户型,户型面积在143-176平,可以说是纯改善户型了!
项目首批房源整体备案均价35669元/平,备案总价区间在366-723万元,筑面积段135.03-177.39平。
华润置地润宸
华润置地润宸 ,即,苏地2023-WG-14号地块,位于姑苏区苏锦街道日益路北、文陵路西,是2023年5月30日,华润置地以总价144967万元竞得,成交楼面价19192元/平,溢价率6.62%。
地块用途为城镇住宅用地,占地面积34335平,容积率2.2。
根据规划,项目拟建12栋10-26F住宅,其中,8栋10F洋房、3栋25F高层、1栋26F高层。
项目目前公布了三种户型,户型面积段在110-168平!
项目首批房源整体备案均价33881元/平,备案总价区间在321-646万元,建筑面积段109.8-167.84平。
建筑面积约168平,4房2厅3卫8
建筑面积约144平,4房2厅2卫
建筑面积约110平,2+1房2厅2卫
城投55号地块
城投平江新城55号地块项目,即,苏地2023-WG-55号地块,位于姑苏区平江街道苏城大道南、江宇路西,是10月18日,苏州城投保障房有限公司以底价57604万元竞得,成交楼面价10506元/平。
地块用途为商住混合用地,占地面积29519平。
根据公示信息,项目总建筑面积81776.73平,计容建筑面积54829.73平,整体容积率1.857,其中,住宅容积率1.93。
根据规划,项目拟建9栋住宅、1栋商业和酒店。
其住宅部分,拟建8栋10-17F住宅,其中1栋10F洋房、7栋17F小高层。
项目公示了17#小高层的户型标准层示意图。
17F小高层,每层层高3米,另外1F层高3.6米,4梯4户。
东西边户,4房2厅2卫
根据当时地块的出让要求:
1,其住宅部分,含182套定销商品房和普通商品房,可以分割销售;
2,该地块定销商品房销售方式为现房销售;
3,普通商品房部分装修标准≥2000元/平;
胥江
下一个入市的会是?
胥江板块,有4个项目,即澜庭湾、万科璞拾胥江、中海姑苏第和胥江致新51号地块。
这两年,胥江板块应该是不缺新盘了,同时,内卷严重,竞争也是激烈的。
其中,中海姑苏第和胥江致新51号地块项目都是8月份刚刚拍出来的新地块,不过中海姑苏第已经规划正式出炉了,目前在胥江天街也公开了城市展厅!
目前万科璞拾胥江已经取证,均价在4.25W。
万科璞拾胥江
万科璞拾胥江,位于姑苏区吴门桥街道运泰路南、凌波路东!
历经38轮报价该地块触顶,进入线下摇号,万科摇中,成交楼面价23000元/平,溢价率15%。
项目速度也很快,已经正式公开了售楼处,大概率开盘也要提上日程了!
该项目的地块用途为城镇住宅用地,占地面积18648平,总建筑面积44152.72平,计容建筑面积29836.80平,容积率1.6。
根据规划,项目拟建8栋10-16F住宅,其中,3栋10F洋房、3栋11F洋房、2栋16F小高层。
项目已经首次取证,均价在4.25W,板块内其他项目价格可以以此为参考。
项目目前发布了4种户型,分别为建筑面积约143平、180平和186平!
澜庭湾
澜庭湾,即,苏地2022-WG-48号地块,位于姑苏区吴门桥街道胥涛路南、西环路西,是2022年10月31日,苏州市观前建设开发有限公司以底价73002万元成交,楼面价7518元/平。
地块用途为商住混合用地,有4宗地块组成,其中1宗为城镇住宅用地、1宗科研用地、1宗商服用地、1宗地下空间,总占地面积39135平。
项目已经正式公开了案名,为澜庭湾,户型面积在152-156平!
关于更多苏州楼市的楼盘信息,咨询热线:18662309054
A区:占地面积16265平,用途为城镇住宅用地;
B区:占地面积15917平,用途为科研用地;
C区:占地面积6953平,用途为商业用地;
其住宅部分,A区,建筑面积37140.15平,计容建筑面积24372.7平,容积率1.499。
根据规划,其住宅部分,拟建7栋10-12F住宅,其中,3栋10F洋房、4栋12F洋房.
目前发布了建筑面积约156平户型图。
项目已经在今年首次取证,备案均价40000元/平,备案总价区间在502-650元/平,建筑面积段在128.92-155.6平。
胥江致新51号地块
胥江致新51号地块,位于姑苏区吴门桥街道劳动路南、凌波路东,城镇住宅用地、商服用地(公共设施用地),出让面积56841平,地块由苏州市胥江致新城市发展有限公司底价竞得,成交楼面价13035元/平。
根据规划,项目拟建12栋15-17F住宅和1栋31F商业大厦;
其住宅部分,拟建12栋15-17F住宅,其中2栋15F小高层、4栋16F小高层、6栋17F小高层;
项目规划户型图也曝光了!
3房2厅2卫
根据要求,
1,地块的住宅为全装修交付,最低装标2000元/平;
2,其商服用地,需要设置酒店,不可建设零售、批发市场及服务型公寓;
3,其商服用地内需要设置一座变电站;
沧浪新城
价格已经官宣
截止目前,沧浪新城板块仅有1个纯新盘项目,即,润鸿四季,位于姑苏区宝带西路南、福运路西,是2023年5月31日,在现场摇号环节,华发中签!
其成交总价为该地块的最高限价162567.4752万元,成交楼面价19968元/平。
根据公示信息,项目建筑面积119034平,计容建筑面积81414平,容积率2.0.
根据规划,项目拟建12栋住宅和1栋配套用房、1栋体育运动馆。
其住宅方面,12栋17-23F住宅,其中,5栋17F小高层、1栋21F高层、6栋23F高层。
关于更多苏州楼市的楼盘信息,咨询热线:18662309054
据了解,只有两种户型,户型面积为143、182平。首批80套住宅房源,全装修交付,整体备案均价36111元/平,备案总价区间在339-727万元。
建筑面积约143平
根据要求,该地块内户型建筑面积不低于120平,装修成本在3000-5000元/平,未来也会是个高品质改善小区!
另外,在地块北侧还需设置一处3000㎡以上的体育运动场馆,包含泳池、篮球、羽毛球等场地。
南门板块
备案均价5.2W
南门目前为止只有一个纯新盘,即中建泊月峯,地块成交楼面价28456元/平。
地块位置也是非常不错的,就在苏州市实验小学的北面,属于南门板块,也房荒了很长时间了!
该地块速度也是非常快的,已经公开了售楼处!
中建泊月峯位于姑苏区吴门桥街道人民路西,端文路北。
根据规划,项目拟建12栋住宅和1栋商业物业、1栋科研办公。
在住宅方面,12栋14-17F小高层,(B区2栋17F小高层、A区10栋14-17F小高层),其中,14F小高层、1栋15F小高层、2栋16F小高层、7栋17F小高层。
项目已经首次取证,整体备案均价52000元/平,备案总价区间在809-1297万元,建筑面积段161.47-239.04平。
二批次共计67套住宅房源,全装修交付,整体备案均价52076元/平,备案总价区间在835-1014万元,建筑面积段162.06-186.69平。
项目目前公布了3种户型,分别是建筑面积约164平、186平和239平!
关于更多苏州楼市的楼盘信息,咨询热线:18662309054
金门板块:11年后再补仓,地价涨了
截止目前,姑苏区金门板块仅有1个纯新盘项目,保利臻悦,即保利发展36号地块项目,这也是第四批集中供地中竞争最为激烈的地块了,其溢价率高达12.5%。
保利臻悦,即,苏地2023-WG-46号地块,位于姑苏区金阊街道金门路北、后文家巷西,保利发展以总价121521万元成交,楼面价27562元/平。
根据规划,项目拟建10栋6-16F住宅,其中,1栋6F洋房、2栋7F洋房、2栋9F洋房、2栋10F洋房、3栋16F小高层。
项目已经取证,备案均价4.6W,户型面积约143平、160平、180平,户型设计上来看,也都是四房设计,纯改善了!
石路板块仅1个项目
石路板块目前就一个项目,即和昌·凌云阁了,项目已经正式公开了售楼处和官方户型图,也是今年速度最快的项目了。
位置上来看,项目地处石路核心区区域,也是一个房荒很久的板块,更是姑苏区核心了。
周边界面来看,项目北面是石路国际和石路步行街,东面是爱河桥路与金门商城,南侧则是石路商圈,西侧是2号线。
从规划来看,项目是由两栋超高层住宅+裙房商业组成的综合体,占地面积1.3万平,容积率8.73,总建面17.44万平,其中住宅可售面积9.19万平,底裙商业0.98万平。
项目规划一、二层为商业;三-五层为停车场;负一层为局部商业+停车场;负二层-负四层为停车场(负三-负四层为人防地库);6~43层为70年产权住宅,这也就是和昌·凌云阁的可售住宅部分!
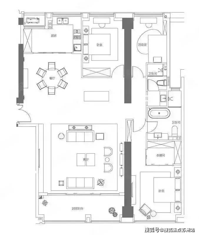
住宅部分来看,均在6层及以上,共计524户,户型面积在约123-284平。其中5种主力户型分别为:建筑面积约123平,2房2厅2卫;建筑面积约143平,3房2厅2卫;建筑面积约146平,3房2厅2卫;建筑面积约200平,3房2厅2卫;建筑面积约284平,4房2厅3卫。
声明:本文由入驻焦点开放平台的作者撰写,除焦点官方账号外,观点仅代表作者本人,不代表焦点立场。


