2024最新!吴中太湖新城纯洋房|金融街融悦沁庭|金融街融悦沁庭户型|配套|价格|地址|图文详解
扫描到手机,新闻随时看
扫一扫,用手机看文章
更加方便分享给朋友
项目基本信息
金融街融悦沁庭坐落在吴中太湖新城,是个纯粹的洋房社区。项目占地约4.8万方,建筑面积约11.5万方,规划了609户住宅。社区容积率仅1.6,车位配比达到1:1.5,居住舒适度很高。
外立面采用干挂铝板和三玻两腔Low-E玻璃,都是7-10层的纯洋房。交付时标配中央空调、新风系统、地暖三大件,还特别配备了软水系统,让品质生活更上一层楼。
18662309054
区域配套
项目周边配套相当完善,150米内就是4号线和在建的7号线木里站,出行非常方便。周边还有友新高架、东太湖大道、沪常高速等主干道,轻松串联全城。

教育资源更是亮点,与华中师范大学苏州湾实验小学仅一路之隔,还有华中师范大学苏州实验中学、北美国际高级中学等多所优质学校环绕。

商业配套也很丰富,永旺梦乐城、歌林小镇、苏州湾中心广场都在周边,金融街融悦湾中心正在建设中。文体设施有快手天鹅港国际电竞馆、苏州橙天嘉禾360剧场,医疗资源包括在建的苏州市立医院总院和星晨儿童医院。
品牌价值
项目由金融街控股和苏州国太发展联合打造。金融街控股是中国华尔街的缔造者,在吴中太湖新城已经成功开发了融悦湾、融悦时光两个标杆项目。
苏州国太发展作为吴中太湖新城的开发建设主体,累计在这里投资约300亿,持续推动区域高质量发展。这是金融街在苏州的第三座融悦系作品,品质有保障。
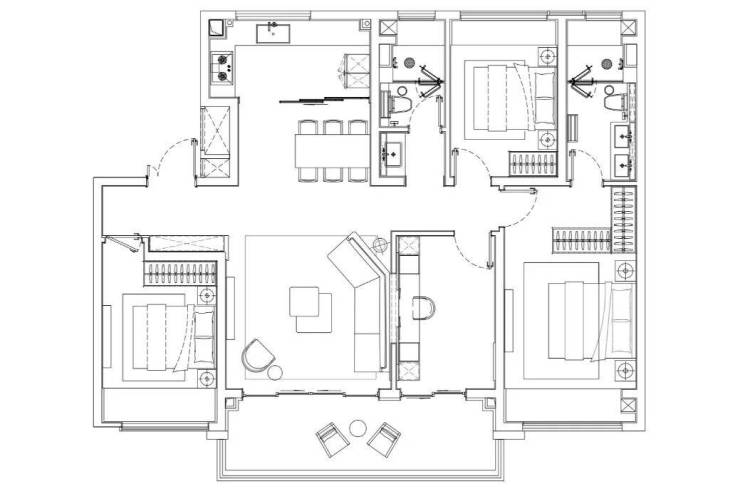
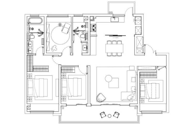
户型鉴赏
项目推出115-152㎡三种户型,得房率都很高。
115㎡的"心悠"户型,三开间朝南,约5.5米宽厅,2米进深的南向大阳台,全屋飘窗,主卧是套房设计。
130㎡的"心悦"户型,三个卧室都朝南,LDKB一体化设计,双联阳台约2米进深,3+1灵动空间,主卧套房。
152㎡的"心雅"户型,LDBK聚场设计,厨房联通家政阳台,配备中岛台,南北双阳台,四开间朝南,主卧套房。
优势分析
这是区域内稀缺的纯洋房社区,居住密度低,圈层纯粹。外立面采用干挂铝板和大面积三玻两腔玻璃,既美观又实用。
精装标准很高,除了三大件还配备了软水系统,所有装修材料都是精选的国际品牌。


在政策利好的大环境下,选择金融街融悦沁庭就是选择了品质生活。这里不仅有优质的居住环境,更有着完善的生活配套和便捷的交通网络。随着吴中太湖新城的持续发展,这里的价值必将与日俱增。
欢迎致电售楼处了解更多详情:18662309054
声明:本文由入驻焦点开放平台的作者撰写,除焦点官方账号外,观点仅代表作者本人,不代表焦点立场。


