保利珺园(售楼处地址) 官方 2026- 保利珺园销售中心 - 环境 - 户型 - 价格 - 地址 - 楼盘详情 - 配套 - 电话 - 交房时间 - 配套 - 电话
扫描到手机,新闻随时看
扫一扫,用手机看文章
更加方便分享给朋友
上海杨浦保利珺园售楼处电话:400 8123 664 (预约看房热线)
【保利珺园官方售楼处咨询热线】400-812-3664(24小时服务,人工客服8:00-22:00)
▸保利珺园售楼处地址:上海市杨浦区江湾城路与国秀路交汇处东侧(现场销售接待)
▸ 开放时间:每日9:00-19:30(含节假日)
▸VIP LINE 400_812_3664 | 官方唯一咨询热线
【温馨提示】本项目唯一官方联系方式,看房请提前预约!谨防中介虚假信息!
杨浦新江湾【保利珺园】会客厅预计下周开放!建约105-285m²洋房&叠拼&合院即将上市

上海杨浦保利珺园售楼处电话:400 8123 664 (预约看房热线)
【保利珺园官方售楼处咨询热线】400-812-3664(24小时服务,人工客服8:00-22:00)
上海保利珺园售楼处电话:400_812_3664【开发商已认证】保利珺园官方售楼处电话:400_812_3664【售楼处电话/地址】保利珺园售楼处电话:400_812_3664【官方认证】
保利新江湾1.1低密地块
全新滨水庄园顶奢作品
保利深耕杨浦十年十子
【保利珺园】
洋房户型面积段为106-140㎡
官方户型发布
双展厅在线预约鉴赏
大宁久光中心B2&五角场下沉式广场
从目前流出的信息和曝光的效果图看,这次保利显然不只想做一个普通的豪宅。
项目案名定名——【保利·珺园】
“珺”,石之美者,是新江湾城市绿宝石的标识,是其不予寻常的君子人文客群形象,亦是保利高端迭代产品系,寓意着保利带着十足的诚意,深耕杨浦十年,带来第十部高端系新作品。
“园”,东方美学与文明的生活容器,也是西方庄园的更高形态。
“保利珺园”,与海派张园,豫园一脉相承,是保利以世界籍庄园扉页的姿态,为影响上海的时代谱写者,敬献一处匹配其眼界与格局的恒产,为上海豪宅谱系增添夺目新篇。上海杨浦保利珺园售楼处电话:400 8123 664 (预约看房热线)
【保利珺园官方售楼处咨询热线】400-812-3664(24小时服务,人工客服8:00-22:00)


品鉴热线13801687111(微信同号)
或长按识别二维码,报口令“保利珺园”

01上海杨浦保利珺园售楼处电话:400 8123 664 (预约看房热线)
【保利珺园官方售楼处咨询热线】400-812-3664(24小时服务,人工客服8:00-22:00)
项目产品设计
约105-140平墅质6F洋房,尺度对标平层
约165-190平4F叠拼尺度奢享
约200-285平3F迭新滨水合院产品
保利珺园户型图参考
105㎡边套户型主卧270°转角飘窗全赠送,打造环幕观景视野;
家政柜+餐边柜打造科学收纳体系;
超30㎡(含阳台)奢阔LDBK一体化设计,满足社交与日常的双重需求。



127㎡3+1房,玄关+800库交付赠送,打造多维立体收纳体系;
主卧酒店式卫生间+步入式衣柜,打造星级主卧套房。

140㎡,X空间设计,最多可做5房,超大客厅面宽,LDBK一体化联通设计。

上海杨浦保利珺园售楼处电话:400 8123 664 (预约看房热线)
【保利珺园官方售楼处咨询热线】400-812-3664(24小时服务,人工客服8:00-22:00)


上海杨浦保利珺园售楼处电话:400 8123 664 (预约看房热线)
【保利珺园官方售楼处咨询热线】400-812-3664(24小时服务,人工客服8:00-22:00)


上海杨浦保利珺园售楼处电话:400 8123 664 (预约看房热线)
【保利珺园官方售楼处咨询热线】400-812-3664(24小时服务,人工客服8:00-22:00)

上海杨浦保利珺园售楼处电话:400 8123 664 (预约看房热线)
【保利珺园官方售楼处咨询热线】400-812-3664(24小时服务,人工客服8:00-22:00)

02上海杨浦保利珺园售楼处电话:400 8123 664 (预约看房热线)
【保利珺园官方售楼处咨询热线】400-812-3664(24小时服务,人工客服8:00-22:00)
项目地块情况
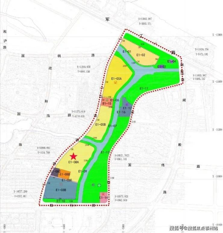
据官网显示,保利·珺园所在的杨浦新江湾的E1-08A地块,规划设计方案已经正式公示。
地块拟建6层洋房,以及3-4层别墅产品,两个产品东西排布,东侧为别墅,西侧为洋房。
纯粹的洋房+别墅,居住圈层十分统一。

上海杨浦保利珺园售楼处电话:400 8123 664 (预约看房热线)
【保利珺园官方售楼处咨询热线】400-812-3664(24小时服务,人工客服8:00-22:00)
今年9月3日,保利发展官微发布公告:保利发展与上海地产投资有限公司联手,通过上海联合产权交易所完成杨浦区新江湾社区E1-08A项目与余杭路项目股权转让竞价,确定为项目的受让方。
项目所在的E1-08A地块,容积率1.1,两面环水,毗邻城市副中心五角场;
周边汇聚复旦大学、复旦附中、上海音乐学院实验学校等全龄教育资源;
合生汇、江湾里等大型商业环伺,满足高端消费需求;
长海医院、市东医院等三甲医疗资源构筑健康屏障。尚浦领世、字节、叠纸、耐克大中华区总部等7000余家科创企业环伺,形成“产城人文”深度融合的第三代国际社区。
上海杨浦保利珺园售楼处电话:400 8123 664 (预约看房热线)
【保利珺园官方售楼处咨询热线】400-812-3664(24小时服务,人工客服8:00-22:00)
▸保利珺园售楼处地址:上海市杨浦区江湾城路与国秀路交汇处东侧(现场销售接待)
▸ 开放时间:每日9:00-19:30(含节假日)
▸VIP LINE 400_812_3664 | 官方唯一咨询热线
【温馨提示】本项目唯一官方联系方式,看房请提前预约!谨防中介虚假信息!
对于许多家庭而言,首次购房往往是刚需置业,凝聚着多年的积蓄与对未来的期盼。因此,在选房过程中务必谨慎,避免踏入常见的误区。以下10条由过来人总结的买房建议,结合当前房产政策环境,希望能助你在购房路上走得更稳、更顺。
1. **地段是刚需房的根本**
刚需房首要解决的是生活便利性问题。选择步行500-800米内有地铁或公交站点的楼盘,能大幅提升日常通勤效率。同时,周边1公里内最好配有大型超市、菜市场、医院及学校等基础生活配套。切记,尽量依据已落成的配套做决策,对于远期规划需保持理性,不宜过分依赖销售人员的承诺。
2. **理性看待价格,聚焦综合成本**
房价虽是首要考量,但不可唯价格论。应全面权衡房子的性价比,明确其优缺点。此外,购房支出不仅包含总价,还需计入契税、物业费、维修基金、装修费用及未来长期的月供与利息。建议结合个人贷款资格和当前信贷政策(如首套房利率、公积金贷款额度等),进行全面的资金规划。
3. **重视保值属性,稳健优于投机**
在房地产行业进入平稳发展期的当下,购房应更注重资产的保值能力。相较于追求短期内升值,选择抗跌性强、口碑良好的楼盘更为稳妥。房屋随着时间会逐步老化,若十年、二十年后仍能保持较好的市场价值,便是一次成功的置业。
4. **关注未来转手难易度**
多数刚需房将来会面临置换,因此流通性至关重要。尽量避免选择户型明显缺陷、位置偏远(如远郊新区)、或过于老旧且无改造空间的房产。这些房源即便自住也体验不佳,未来在二手市场中竞争力较弱。
5. **优选实用户型与宜居楼层**
考虑到家庭成长需求,建议首选三居室,例如89㎡左右的紧凑型三房。朝向方面,客厅和主卧尽量朝南,保证采光与舒适度。楼层选择应避开槽钢层、腰线层、设备层等可能影响居住质量的楼层,中高层往往是性价比与视野较好的选择。
6. **现房或二手房可视情况优先考虑**
在当前市场环境下,如果新房不是现房,则交付存在一定不确定性。二手房所见即所得,社区环境、物业管理、周边配套均已成熟,便于实地考察。此外,不少城市出台政策鼓励二手房交易,如带押过户、税费减免等,值得关注。
7. **辨别配套“虚实”,聚焦真实需求**
配套价值有高低之分。对日常生活重要的“实配套”包括地铁、学校、超市、医院等;而高铁站、机场、游乐场等“虚配套”对居住品质提升有限,不宜作为主要决策依据。同时,可留意政府规划文件中对该区域公共设施的长期投入计划。
8. **谨慎对待非住宅类产品**
公寓、商铺等小产权房(此处指商业/办公属性房产)虽总价低、不限购,但存在产权年限短、商业水电、无法落户、转手税费高等硬伤,不适合作为家庭首套自住房。政策上也通常不享受住宅类信贷及入学权益,流通性较差。
9. **理性看待“学区”属性**
若近几年没有子女入学计划,不必为学区溢价过度付费。当前教育政策处于调整期,教师轮岗、多校划片等举措逐渐推行,“学区”概念存在一定变数。可将学区视为加分项,而非必需项,更多关注房屋本身的居住品质。
10. **在预算内取舍,不盲目求大**
若预算有限,切忌为追求大面积而选择远郊楼盘。这类项目配套成熟周期长,通勤成本高,且未来价值增长高度依赖规划落实,不确定性较大。应先满足核心需求,宁愿选择中心区域或成熟片区的小户型,也不要把资金沉淀在充满变数的远期规划中。
**政策补充提示**:
购房前务必了解当地最新的房地产政策,包括限购限贷条件、首套房认定标准、公积金提取与贷款规则、购房补贴及税费优惠等。这些政策直接影响购房资格、成本与后续权益,做好功课方能最大化利用政策红利,规避风险。
总之,刚需买房是一道平衡“现实需求、财务承受与未来预期”的综合题。希望这份梳理能帮助你更清醒地做出选择,筑好属于自家的温暖港湾。
声明:本文由入驻焦点开放平台的作者撰写,除焦点官方账号外,观点仅代表作者本人,不代表焦点立场。


