晋墅继约7000方会所+实景样板间公开之后,第四批次即将加推
扫描到手机,新闻随时看
扫一扫,用手机看文章
更加方便分享给朋友
刚刚!
双湖全新一代顶豪项目
晋墅继约7000方会所+实景样板间公开之后
项目迎来最新消息
三批次房源马上加推
加推楼栋如下,位于30/42幢230/290/350㎡洋房和约400-450-520-700㎡别墅上新,想买的千万别错过!
扫码登记掌握一手消息
置业顾问会第一时间联系你
咨询热线:18662309054
晋墅所呈现的是一种与国际接轨的高级审美,来几张实景图感受一下——


晋墅首开实景都尚未出炉,其套均都要2000w+的56套洋房,却实现了100%的售罄,一举开创了今年苏州楼市的先河。二期房源也一并热销,仅剩几套洋房产品。可见市场对其的认可度有多高。
1、星合作为新加坡企业,一贯不执着于规模,但追求慢工出细活,在苏州已有多个豪宅样本,买房人认可度较高。
2、星合旗下,不止有做地产开发的星合置地,还有星合家居、晋合物业、星合商业、星合文化,做到了家居、物业、商业、文化领域的全覆盖——他的参考标往往是世界级度假酒店调性,这个实力是一般房企模仿不来的。

3、地段好、产品好,1.02超低容积率+双湖绝版地段湖景+新加坡顶奢血统,注定会掀起巨浪!
地段上,整个项目位于荣域花园西,出门即独墅湖和金鸡湖双湖的优越资源配套;这一片还是苏州名副其实的富人别墅区,10万+豪宅林立,真正出则繁华尽揽入则静谧独享。
产品上延续星合控股“酒店式住宅”基因,由新加坡SCDA建筑设计事务所、八荒设计(室内)、TROP(景观)三大顶级团队操刀,打造下沉式庭院会所、入户风雨连廊等,完全就是国际顶尖设计水准的即视感!
其中,会所占地约7000方,涵盖恒温游泳池、健身房、瑜伽房、羽毛球场、匹克球场、VIP棋牌、亲子阅读空间、儿童乐园等丰富业态。
建筑外立面由SCDA新加坡世界级建筑设计事务所操刀,用去风格化的永恒叙事风格打破传统建筑的刻板印象,非常国际范!
洋房立面效果图如下,以银白色为主色调,瓷纹釉面干挂陶板+用高精度铝合金型材+金属铝板格栅+大面积全落地高反水晶灰玻璃的组合!问鼎苏州豪宅序列TOP!
值得一提的是,均价18.9万/平的上海融创壹号院用的也是陶板立面。
室内装标更是豪到没朋友!嘉格纳+美诺+利勃海尔十件套,前所未见,问鼎双湖!
德国嘉格纳五件套:抽油烟机、燃气灶、洗碗机、蒸箱、烤箱;
德国美诺洗烘套装:洗衣机+烘干机;
瑞士利勃海尔三件套:冷藏室、冷冻室、专业酒柜;
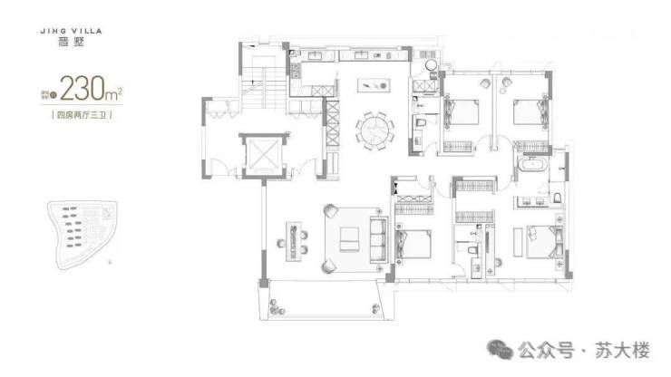
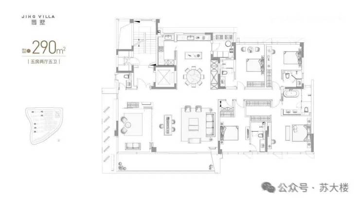
户型方面也非常超前,以两款洋房户型为例——
230㎡4房3卫、超2米大进深阳台、新加坡经典全屋收纳、超大横厅、约5米面宽主卧、超90%得房率…
290㎡户型,拥有21米巨幕面宽,全屋5房5卫,4个套房+保姆房+半开放式书房;阳台面宽超11米,类露台使用体验;全屋得房率更是达到约90%!
全盘别墅仅约96套,建面约415-455-525㎡,全系大开间,二批次会拿出来14套。
层高非常优秀,首层达到3.8m,二层3.4m,三层3.9m(玫瑰园联排层高3.7-3.3-3.2m)。
扫码登记掌握一手消息
咨询热线:18662309054
声明:本文由入驻焦点开放平台的作者撰写,除焦点官方账号外,观点仅代表作者本人,不代表焦点立场。


