和畅雅苑首次取证,共68套房源!
扫描到手机,新闻随时看
扫一扫,用手机看文章
更加方便分享给朋友
最新,位于相城的和畅雅苑首次取证,共68套房源。
5#
68套住宅房源,装修交付
整体备案均价20500元/平
备案总价区间在277-372万元
建筑面积段137.58-177.64平
咨询热线:18662309054
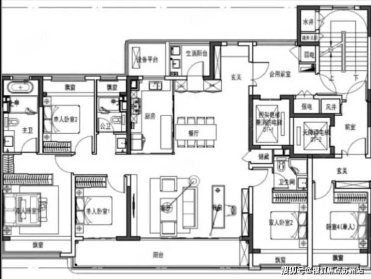
本次取证主力户型约138、178平。
建筑面积约138平
和畅雅苑,即,苏地2022-WG-14号地块项目,位于相城区渭塘镇渭中路北、钻石路东,是2022年5月9日,和恒置地以底价84308万元竞得,成交楼面价10457元/平。
项目占地面积35055平,容积率 2.30。
根据规划,项目拟建8栋住宅和1栋商业配套。
其住宅方面,为8栋15-17F小高层,其中,2栋15F小高层、6栋17F小高层。
据悉,旭辉建管中标苏地20221-WG-14号地块,将与相城城投联合开发。
这是旭辉建管在苏州的第5个代建服务项目。
旭辉建管在苏州拿下了相城陆慕地块、昆山巴城地块、相城黄桥地块、相城娄北地块以及本次的渭塘地块。
项目定位板块内纯改善项目,仅八栋,得天独厚的自然景观加持加上旭辉建管卓越的产品营造力,项目品质毋庸置疑。极致的空间营造,必将为渭塘人居再献高阶品质范本。
咨询热线:18662309054
声明:本文由入驻焦点开放平台的作者撰写,除焦点官方账号外,观点仅代表作者本人,不代表焦点立场。


