1#17F小高层,4房2厅3卫6#16F小高层,4房2厅3卫作为斜塘的及时补仓宅地,该地块地段配套成熟,楼面价约2.2w/㎡,与珺华赋一致,只是珺华赋有洋房、有会所,作为邻居该项目压力还是很大的,感兴趣的朋友…
刚刚
建屋全新低密项目
新棠玥正式亮相
打造11栋13-17F的产品
3大户型同步曝光
项目城市展厅即将亮相!

1
打造11栋13-17F小高层产品
建屋新棠玥即将亮相
刚刚,园区奥体南上新!全新项目案名正式曝光: 建屋新棠玥,国企强势出品,为园区再造改善精品。
据悉,项目 城市展厅近期即将公开!
新棠玥即斜塘置业86号地块,位于园区星塘街西、独墅湖大道北,在保利珺华赋隔壁,是2023年11月份,苏州斜港置业 总价15亿竞得,成交 楼面价22000元/㎡。
咨询热线:18662309054

根据规划,该地块拟建 11栋13-17F小高层,精装交付。

咨询热线:18662309054
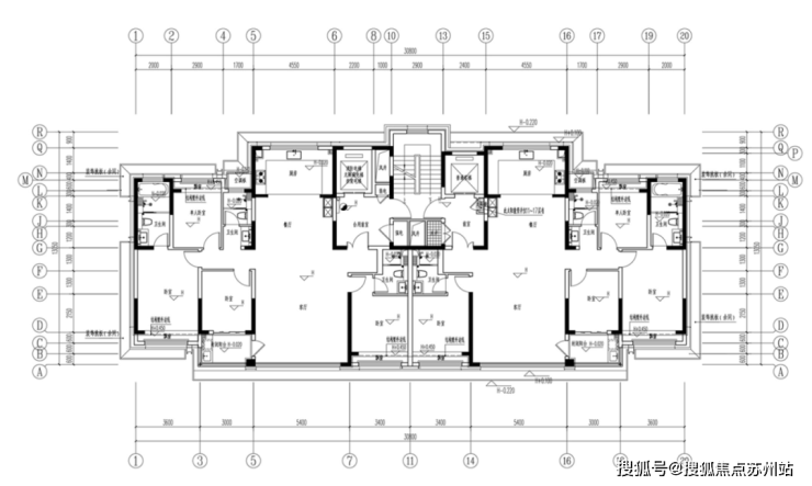
此前公布了 1#、6#、10#的标准层平面示意图,并同步曝光了3种户型设计。
10#14F小高层,3房2厅2卫
2梯4户布局

3开间朝南开间约10.3米,客厅开间约4米;两个朝南卧室,一个北向卧室,全屋飘窗,其中,南向主卧套房设计,满足一家三口居住需求。
据悉,该 户型不超过100平,是整个奥体南难得的小户型,大家提前关注起来。
1#17F小高层,4房2厅3卫
2梯2户的设计

独立入户玄关,4开间朝南,客厅开间 约5.4米;三卧室朝南,开间都在3~3.6米,其中两个套房卧室,可满足三代同堂的居住需求。

6#16F小高层,4房2厅3卫
2梯2户

独立入户玄关,4开间朝南,开间18.1米,客厅开间约6.9米,南向双套房,三个南向卧室开间分别为3.3米、3.7米、4.2米,空间非常阔绰。

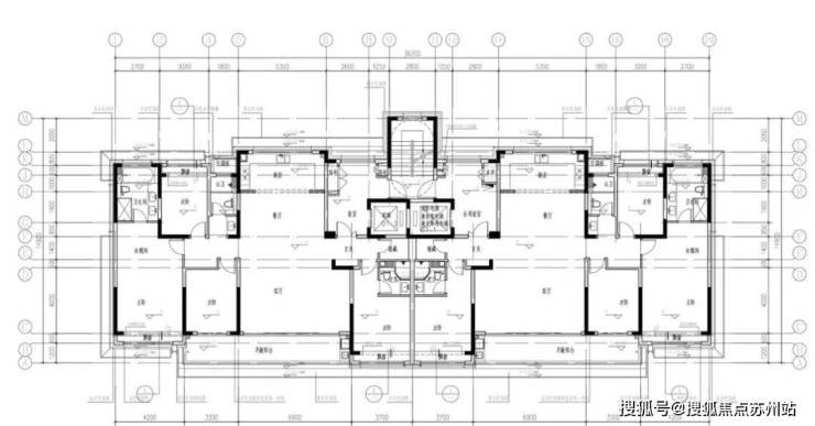
1#立面图如下:

6#立面图如下:

根据地块要求, 装修标准2000-5000元/平。

咨询热线:18662309054
2
周边配套成熟
居住氛围浓厚
建屋新棠玥位于园区星塘街西、独墅湖大道北,在保利珺华赋隔壁。

交通方面:西面有地铁站8号线,东面是地铁站6号线,出门南边就是独墅湖大道,向东通中环东线,向西通园区湖西及市区,出行很便捷。
商业配套:距离较近的包括 翰林邻里中心、文荟商业街、莲花商业街。大型商业设施上则要去往奥体中心、联丰广场、斜塘邻里中心等。
教育资源:中外大学众多,基础教育有 莲花学校、斜塘学校、苏州工业园区文景实验学校等。
医疗资源:附近有 苏大附属独墅湖医院、苏大附属儿童医院。
值得一提的是,这块地靠近独墅湖大学城,距离独墅湖很近,周末平时都是很好的去处。
作为斜塘的及时补仓宅地, 该地块地段配套成熟,楼面价约2.2w/㎡,与珺华赋一致,只是珺华赋有洋房、有会所,作为邻居该项目压力还是很大的,感兴趣的朋友,扫下方二维码咨询了解更多!
咨询热线:18662309054