——虹盛里——
虹盛里售楼处电话☎:400-8787-554【售楼处预约热线】(一对一热情服务)看房请务必提前致电销售确认时间,只有预约客户才能享受开发商提供的内部优惠以及专属的老客户推荐奖励!我们提供专业的一对一热情服务,助您以专业视角挑选理想的房产。
虹口老牌核心区 中环旁江湾板块
7站达人民广场
地铁3号线江湾镇站与20号线环伺
江湾城投万安路【虹盛里】热销中
全户型:高层+洋房+联排 精装交付
约83-180㎡瞰景高层 约727万-1955万
约97-195㎡臻稀洋房 约1023-2196万
约196㎡滨水墅居 约2963-3058万
综合均价约9.96万/㎡
【虹盛里】上海城投控股匠心倾筑。立于“虹口中环”稀缺坐标,同频北外滩盛世更新,打造集聚烟火气息的人文街区。七大人居地块,溯源当代复合建筑语境,为世界上海再展滨水新画卷。

在当下的上海房地产市场,购房者对开发商品牌愈发看重。而在这一点上,虹盛里具备足够分量的话语权。

因为这是由上海本地国企上海城投控股倾力打造的项目,安全感满分!并且上海城投控股深入了解上海的脉落,对中心城市内的每一寸土地、居民的生活习性、居住环境都深入了解。

所以,其倾力打造的虹盛里,当然是如今上海更具价值和居住舒适度的产品。项目整体采用现代建筑风格,彰显海派潮流文化的特质与主人的身份品位。

更是邀请了上海中房建筑设计公司及知名景观设计公司泛亚国际景观设计共同合作打造,由此可见开发商对此项目的重视。
设计中将7个独立的地块与滨水空间相结合, 通过对商业、绿化、广场界面的有机穿插、整合成为一个与景观河道交相辉映、有节奏的公共长廊,提升滨水区域的环境品质。

并且,项目周边整体的城市界面也正在进行更新。未来周边以虹盛里为核心将组成全新的海派街区,迭代老虹口的生活场景。

而项目整体建筑布局随河蜿蜒,高低错落的建筑形态也契合了江南水乡的水韵特色。

加之建筑顶部的金冠起伏,与景观河交相辉映,串联成金色丝带东西贯通,更是凸显了本项目的高标准、高品质的居住体验。

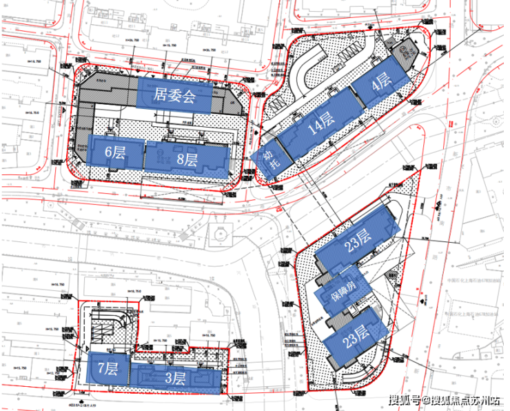
7幅地块的总地上计容面积超过8.3万平方米,包含了住宅套数超过620套,户型面积不大,产品类型却包罗万象,包含高层公寓、6层8层的洋房产品以及2-3层的合院及联排别墅,沿着走马塘一字排开,独有韵味。

部分地块的一层带有架空层,规划有一些儿童活动设施、会客交流、健身设施等功能,可以满足不同年龄段业主不出小区即可活动、社交

高层户型图



珍稀洋房户型图






7幅地块的总地上计容面积超过8.3万平方米,包含了住宅套数超过620套,户型面积不大,产品类型很丰富,包含高层公寓、洋房产品以及合院&联排别墅。
另外,项目是会分为两期开放。一期是西侧的三块地:


一期1#地块:规划有17、18层高层住宅,有5-8层的洋房,也有3层的别墅产品,水电路西侧还有部分商业。
一期2#地块:规划有1幢17层住宅和商业,容积率2.94,住宅一梯两户设计,产品包括中间套户型建筑面积约108㎡3房2厅2卫;边套户型建筑面积约142㎡4房2厅2卫。
一期3#地块:规划有一幢18层高层和两幢6层多层,容积率2.33,产品包括建筑面积约108㎡3房2厅2卫,约136㎡4房2厅2卫。
二期是东侧四个小地块:
规划有14-23层高层住宅,有5-8层的洋房,也有3层的别墅产品,别墅靠近奎照路。还有一些配套,比如市民驿站、菜场、幼托、老年人活动室等(以实际为准)。


项目一、二期2022年6月开始打桩施工,现场实拍如下:



交通方面:项目距离3号线江湾镇站直线距离约900米。19号线(在建)车站北路站直线距离仅200m,将来出行十分便捷。自驾方面,周边有中环高架、南北高架、逸仙路高架等快速路。

教育方面:项目周边有凉城第四小学以及江湾初级中学。
医疗方面:项目周边有同济大学附属上海市第四人民医院、上海中医药大学附属岳阳中西医结合医院等。

最新消息,虹口中环 虹盛里 建面 83-197㎡高层、洋房与联排!总价约 668 万起!稀缺机会!感兴趣的伙伴报名看房进行中!
总建面积:140626.88㎡
计容面积:83427㎡
综合容积率:2.608
综合车位配比:1:1.1
可售户数:608户
产品信息:建面约60-180㎡瞰景高层 ,建面约90-195㎡臻稀洋房,建面约196㎡滨水墅居,虹口新品 全城预约!
最新一房一价表:









上海城投控股:上海城投集团市场化板块的核心企业。发展至今,形成了以房地产为核心主业,开发、运营和金融三大业务协同的发展格局。三十载,始终专注经营土地开发、旧区改造、历史风貌区保护、住宅和商业地产开发、超高层建筑等项目,焕新城市生活,与上海共卓越。

【虹盛里】上海城投控股匠心倾筑。立于“虹口中环”稀缺坐标,同频北外滩盛世更新,打造集聚烟火气息的人文街区。七大人居地块,溯源当代复合建筑语境,为世界上海再展滨水新画卷。

2019年9月,上海城投集团与虹口区政府签订战略合作协议,并成立上海城虹万岸建设发展有限公司,以旧区改造和城市更新相结合的新模式,拿下了虹口江湾的万安路项目。

在当下的上海房地产市场,购房者对开发商品牌愈发看重。而在这一点上,虹盛里具备足够分量的话语权。

因为这是由上海本地国企上海城投控股倾力打造的项目,安全感满分!并且上海城投控股深入了解上海的脉落,对中心城市内的每一寸土地、居民的生活习性、居住环境都深入了解。

所以,其倾力打造的虹盛里,当然是如今上海更具价值和居住舒适度的产品。项目整体采用现代建筑风格,彰显海派潮流文化的特质与主人的身份品位。

更是邀请了上海中房建筑设计公司及知名景观设计公司泛亚国际景观设计共同合作打造,由此可见开发商对此项目的重视。
设计中将7个独立的地块与滨水空间相结合, 通过对商业、绿化、广场界面的有机穿插、整合成为一个与景观河道交相辉映、有节奏的公共长廊,提升滨水区域的环境品质。

并且,项目周边整体的城市界面也正在进行更新。未来周边以虹盛里为核心将组成全新的海派街区,迭代老虹口的生活场景。

而项目整体建筑布局随河蜿蜒,高低错落的建筑形态也契合了江南水乡的水韵特色。

加之建筑顶部的金冠起伏,与景观河交相辉映,串联成金色丝带东西贯通,更是凸显了本项目的高标准、高品质的居住体验。

一:户型介绍:


建面约140㎡四房:三开间朝南户型,南北通透,采光条件优质,客厅明亮宽敞,彰显大气布局。
u型厨房,操作动线合理,收纳空间足,不仅提高效率,还提高下厨的便捷度和幸福感。
奢阔主卧套间,搭配专属衣帽间和卫生间,主人起居尽享私密与奢华。

建面约197㎡滨水联排:四卫浴设计,贴心为居者考量,雍享从容的起居生活。
餐客一体尊阔格局,空间动线分明,外接超大窗户,采光明亮。
内外双庭院,怡情养性,闲暇之余触摸自然。
尊崇主卧套房,占据一层空间,彰显主人生活气度。
















【虹盛里】位于虹口区江湾镇核心区域,纵享虹口的城市底蕴、发展红利。约1km范围内双轨交环绕纵享虹口、静安、杨浦三区配套。

项目距离3号线江湾镇站直线距离约900米。上车后7站人民广场、8站南京西路/东路、9站静安寺,可以便捷直达上海的大多数城市中央CBD。
另外,项目距离20号线万安路站(规划中)直线约150米。这是一条横穿了普陀真如、静安大宁、虹口江湾、杨浦五角场的高能级轨交。而20号线一期西段工程已经于2022年12月15日开工建设,整条轨交的通车时间已经不远了。

未来,【虹盛里】将双轨交环绕,一条通往城市中央的节点性CBD,一条通往大宁、五角场等北上海重要商圈。
商业配套方面:项目周边不仅有大宁和五角场商圈,还有虹口龙之梦、协信星光广场、东明生活广场、百联曲阳购物中心、吉买盛江湾店、麦德龙超市等集吃喝玩乐购于一体的完善生活圈。

教育资源方面:距离1公里范围内:虹口实验幼儿园分园、虹口阶梯幼儿园、车站西路幼儿园等;虹口区外国语第一小学、虹口复兴实验小学、民办尚外外国语小学、红旗小学等,中学有:上海市复兴实验中学、上海市虹口实验学校、上海同济大学实验学校(初中)、上海市江湾初级中学等。

总建面积:140626.88㎡
计容面积:83427㎡
综合容积率:2.608
综合车位配比:1:1.1
可售户数:608户
产品信息:建面约60-180㎡瞰景高层 ,
建面约90-195㎡臻稀洋房,建面约196㎡滨水墅居,虹口新品 全城预约!
虹盛里售楼处电话:400-8787-554✔【已认证】
虹盛里营销中心电话:400-8787-554✔✔【已认证】
上海虹盛里官方售楼处电话:400-8787-554 VIPLINE✔✔✔【已认证】
如有问题可来电咨询,线上售楼中心,预约销售专员,一对一为您服务!
想了解虹盛里更多信息?拨打售楼处营销中心热线:400-8787-554【24小时热线】
楼盘项目全面介绍,本电话为开发商提供线上预约售楼电话,楼盘项目全面介绍(包含楼盘简介,均价,房价,现房,期房,别墅,叠墅,大平层,价格,楼盘地址,户型图,交通规划,备案价,备案名,项目配套,样板间,开盘时间,认筹时间,楼盘详情,售楼处电话,最新消息,最新详情,周边配套,一房一价,最新进展等详情咨询)楼盘详情丨价格丨更多优惠丨机不可失丨欢迎致电丨诚邀品鉴!售楼处位置丨特价房丨工抵房丨剩余房源丨户型图丨最新消息丨免责声明:将文章内容综合来源于网络、只作分享,版权归原作者所有!!如有侵权,请联系我们,我们第一时间处理如有问题欢迎来电咨询,专业一对一热情服务,让您用专业眼光去买房.如果您想了解更多楼盘详情,欢迎提前预约拨打