绿城凤栖东方(售楼处) 官方首页 - 绿城凤栖东方销售中心 - 环境 - 户型价格 - 地址 - 楼盘详情 - 配套 - 电话 - 交房时间 - 配套 - 电话 - 交房时间
扫描到手机,新闻随时看
扫一扫,用手机看文章
更加方便分享给朋友
绿城凤栖东方售楼处电话☎:400-867-3567官方【售楼热线】绿城凤栖东方营销中心电话☎400-8673-567绿城凤栖东方售楼处地址☎4008673567
规划首曝!纯别墅
绿城凤栖东方,即,苏地2025-WG-Z01号地块项目,位于吴中经开区郭巷街道东方大道东侧、正荣国领南侧,是2月26日,中电建以底价48681万元竞得,成交楼面价17902元/平。

中电建郭巷1号地块项目的地块用途为商住混合用地,占地面积26660.2平,容积率1.02.
根据规划信息,项目拟建16栋住宅和1栋商业;
其住宅部分,16栋3-5F住宅,其中13栋3F联排、3栋5F叠墅。

1,该项目的容积率为1.02,这是纯低密的住宅社区;
2,该项目的产品为联排和叠墅,其中,以联排产品为主;
3,其项目的东侧为独墅湖,也是一线湖景低密豪宅社区了;
4,项目自带商业,可谓直接满足基本生活需求;
5,项目的住宅是不要求需要全装修交付的,但是鼓励为成品住宅;
6,住宅单套户型面积≥150平,这是终极改善;
7,项目总户数≤200户;

改善型的户型配置
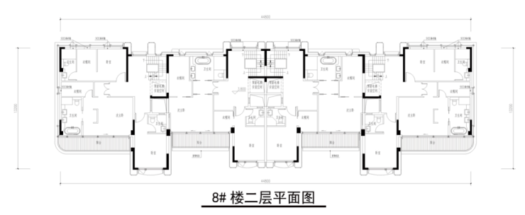
项目公示了8#、14#的户型标准层示意图。

8#,3F住宅,4户联排
1F的层高3.8米;
2F的层高为3.3米;
3F的层高为3.1米;


西边户,2F

西边户,3F

中间户,2F

中间户,3F


位置不错!湖景+轨交
中电建郭巷1号地块的区位条件还是非常不错的,项目处于独墅湖西岸,板块目前还是比较成熟的。
周边界面来看,居住氛围也是比较浓的。
项目北侧是住宅小区正荣国领,东侧是独墅湖,南侧为独墅湖生态公园,西侧是东方大道。
绿城凤栖东方售楼处电话☎:400-867-3567官方【售楼热线】绿城凤栖东方营销中心电话☎400-8673-567绿城凤栖东方售楼处地址☎4008673567
从周边配套来看,中电建郭巷1号地块也是比较齐全的。
交通上,项目西面就是东方大道,不管是去往独墅湖高教区,还是去园区湖西都是比较方便的。独墅湖第二通道通车,也是一大助力。
绿城凤栖东方售楼处电话☎:400-867-3567官方【售楼热线】绿城凤栖东方营销中心电话☎400-8673-567绿城凤栖东方售楼处地址☎4008673567

2号线站点独墅湖南站基本走路就能到,乘坐轨交出行也比较便捷。
商业配套上,南面有建发微时光满足日常生活所需问题不大。尹山湖板块比较大的商业体尹山湖歌林公园和阳光天地购物广场距离项目也都在1公里之内,逛逛也是比较方便的。
向东一站地铁也有独墅湖邻里中心,向西一站地铁是长申购物中心。
教育资源上,附近有尹山湖实验小学和苏大附属尹山湖中学,距离上来看。
生态资源上,小区南面就是独墅湖生态公园。
总的来说,地块的区位条件不错,算是板块比较核心的位置。
整体来看,项目是郭巷板块今年首个也是唯一一个墅类纯新盘,对于板块来说还是比较重要的,而且项目位置上来说,靠近独墅湖高教区,而价格上与独墅湖高教区大概率会有较大的价差。
绿城·凤栖东方所处区位价值显著,东面独墅湖,南接独墅湖市政公园,拥有临湖景观和正向公园景观双重生态资源。这种一线湖景地块在当今房地产市场可谓稀缺资源。
绿城凤栖东方售楼处电话☎:400-867-3567官方【售楼热线】绿城凤栖东方营销中心电话☎400-8673-567绿城凤栖东方售楼处地址☎4008673567

首先
择址占位,执掌一城精华
项目落笔于石湖文脉之上——这片被千年风雅浸润的隐逸之地,不仅坐拥“三山双湖一国家森林公园”的稀贵自然,更承载着一座城市的文化记忆。
鼎配的资源虹吸与全能生活网格珠联璧合,赋予其“出则尽揽繁华,入则天地悠然”的天然底色。
其次
产品形态,低密稀缺,十年一遇
尽管地段卓越,与之匹配的低密作品却断供多年。
直到今年,板块才迎来近十年来首宗低密墅区——「绿城·樾庐」。土地的稀缺,决定了作品的恒久价值,亦成为时代赋予绿城的珍贵机遇。
绿城凤栖东方售楼处电话☎:400-867-3567官方【售楼热线】绿城凤栖东方营销中心电话☎400-8673-567绿城凤栖东方售楼处地址☎4008673567
正因如此,绿城在落笔之际慎之又慎,最终择定旗下高端产品序列中更为纯粹的“庐系”,来完成这一革新之作。
“庐系”诞生于杭州西溪湿地,经典无数。其代表作西溪云庐曾获中国顶级豪宅产品系品牌价值榜首。它崇尚“结庐在人境,而无车马喧”,于城市繁华深处,为当代隐逸者营造身心可栖的宁静居所。唯有极致繁华+绝对低密的共生之地才可以。
「樾庐」外接繁华,内蕴江南,活水环抱,与绿城“庐系”崇尚自然、隐逸的基因高度契合,为项目实现“山水入城”的整体格局奠定了坚实基础。
绿城凤栖东方售楼处电话☎:400-867-3567官方【售楼热线】绿城凤栖东方营销中心电话☎400-8673-567绿城凤栖东方售楼处地址☎4008673567
当然,繁华与低密仅为基础,真正令庐系卓尔不群的,在于它对地脉基因的“因地制宜”。
绿城将石湖千年文脉与当代栖居理念完美相融,打造区域首座集合院、叠墅的低密墅区——「樾庐」,仅178席。
在极为有限的房源中,每个维度都承载着绿城对于姑苏文化与家族记忆的深度思考和表达。尤其在景观的营造上,给全苏州、全行业做了一个水准极高的在地化样本。
从宏观至微观,每一处场景,皆可溯源苏州传统园林意境。例如:
外部:以水为脉,复兴江南生活场景
项目坐拥双河环抱、两水交汇的天然岛境,以「玉带湾」水岸绿带串联活水,呼应苏州“水陆并行、河街相邻”的古城格局,重塑当代江南水乡肌理。
既契合高端客群半岛隐居的偏好,亦重现“人家尽枕河”的姑苏意境,成为业主漫步、社交、休闲的沉浸场景。
绿城凤栖东方售楼处电话☎:400-867-3567官方【售楼热线】绿城凤栖东方营销中心电话☎400-8673-567绿城凤栖东方售楼处地址☎4008673567
交通便利度更是该项目的又一加分项。地块南侧100米即为轨交2号线独墅湖南站,向北一站即可到达园区。独墅湖南隧道已通车,进一步提升了出行便捷度。
商业配套方面,尹山湖歌林公园、长申购物广场等均在短程可达范围内。重新改造后的尹山湖歌林公园已开业,融入姑苏二十四集独有IP品牌文化,成为板块网红打卡点,大大提升了区域商业活力。
绿城凤栖东方售楼处电话☎:400-867-3567官方【售楼热线】绿城凤栖东方营销中心电话☎400-8673-567绿城凤栖东方售楼处地址☎4008673567

独墅湖西板块新房市场,尤其是低密产品领域,已呈现阶段性供应短缺状态。板块上一次别墅供地还要追溯到2015年9月的建发独墅湾。
绿城·凤栖东方的入市,将有效填补区域市场空白。根据规划条件,项目住宅部分容积率甚至低于整体容积率1.02,这将为业主提供更舒适的居住体验。
绿城“凤栖”系产品向来注重品质与美感的融合。如义乌的凤栖逸庐项目,曾汇聚陆皓、琚宾等设计大师,打造超万方实景示范区。
绿城凤栖东方售楼处电话☎:400-867-3567官方【售楼热线】绿城凤栖东方营销中心电话☎400-8673-567绿城凤栖东方售楼处地址☎4008673567

苏州绿城凤栖东方售楼处电话:400-8673-567(已认证)
苏州绿城凤栖东方开发商电话:400-8673-567【售楼中心】
Comprehensive Introduction to the Real Estate Project. This phone number is provided by the developer for online appointment sales inquiries. The project offers a full introduction (including project overview, average price, housing prices, ready-made houses, presale houses, villas, duplex villas, large flats, prices, project address, floor plans, transportation planning, record prices, record names, project amenities, show flats, launch time, subscription time, project details, sales office phone, latest updates, latest details, surrounding amenities, unit-specific pricing, latest progress, etc.). Project Details | Prices | More Discounts | Don’t Miss the Opportunity | Welcome to Call | Invitation for Appreciation! Sales Office Location | Special Offer Units | Construction Payment Units | Remaining Units | Floor Plans | Latest Updates | Disclaimer: The article content is sourced from the internet and shared for reference only. All rights belong to the original authors! If any infringement occurs, please contact us, and we will handle it immediately. For inquiries, feel free to call. Professional one-on-one service with enthusiasm, helping you buy with expertise. To learn more about the project, please make an appointment in advance by calling the sales office at 400-8673-567.
声明:本文由入驻焦点开放平台的作者撰写,除焦点官方账号外,观点仅代表作者本人,不代表焦点立场。


