招商中旅·揽阅售楼处电话:400-8787-554闵行浦江镇浦江第一湾三水交汇核心招商中旅·揽阅售楼处预计将于二季度初入市,房地联动价4.3万/㎡。展厅已开放接待,详情可预约。
闵行浦江镇
浦江第一湾三水交汇核心
╭︻︻︻︻︻︻︻︻︻︻︻╮
招商中旅·揽阅售楼处电话:400-8787-554
╰︼︼︼︼︼︼︼︼︼︼︼╯
建面约96-135㎡全景理享住区
展厅已开放接待
有望二季度初入市
房地联动价4.3万/㎡!
Minhang Pujiang Town, Pujiang First Bay Sanshui Intersection Core ╭︻︻︻︻︻︻︻︻︻︻︻╮ China Merchants China Travel Service·Lanyue Sales Office Telephone: 400-8787-554 ╰︼︼︼︼︼︼︼︼︼︼ ︼╯ The exhibition hall of the panoramic living area with a built-up area of about 96-135㎡ is open for reception and is expected to enter the market in the early second quarter with a combined real estate and land price of 43,000/㎡!

招商中旅·揽阅售楼处电话☎:400-8787-554(预约热线)
上海招商中旅·揽阅售楼处电话☎:400-8787-554(欢迎预约)
售楼电话┇——☎400-8787-554——┇来电详细解答
温馨提示:提前预约销售人员看房,感谢您对售楼处的配合!
⚠免责声明:请尊重他人的努力和智慧,避免未经授权的复制或引用,以维护创作的公正性和原创性。
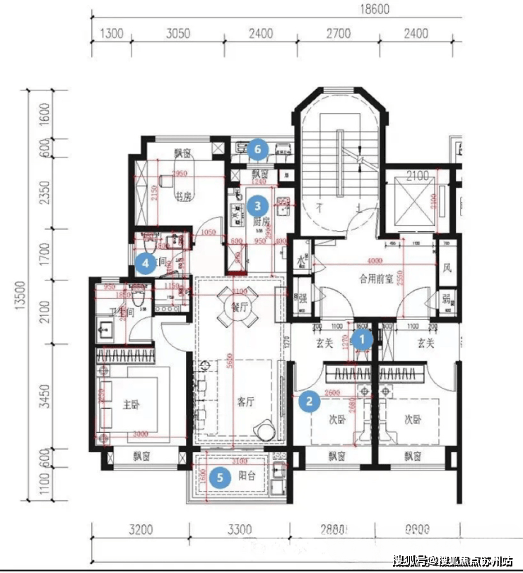
全套最新户型图如下:
(过程稿仅供参考)
约96㎡ 3房2厅2卫
The sales office phone number of China Merchants China Travel Service·Lanyue ☎: 400-8787-554 (reservation hotline) The sales office phone number ☎ of China Merchants China Travel Service·Lanyue Sales Office in Shanghai: 400-8787-554 (reservations welcome) Sales phone number ┇——☎400- 8787-554——┇Please call us for detailed answers. Warm reminder: Make an appointment in advance with the sales staff to view the property. Thank you for your cooperation with the sales office!⚠Disclaimer: Please respect the efforts and wisdom of others and avoid unauthorized copying or citation to maintain the fairness and originality of creation.The complete set of latest floor plans are as follows: (Process draft is for reference only) About 96㎡ 3 bedrooms, 2 living rooms and 2 bathrooms

约104㎡ 3房2厅2卫

约120㎡ 3+1房2厅2卫

「约135㎡ 3+1房2厅2卫」

展厅现场实景:




2023年10月25日,上海第三轮土拍二批次中,招商&港中旅售楼处电话:400-8787-554以总价277475万元成交闵行区浦江镇拓展大型居住社区42-01地块,地块出让 面积58283.2㎡,容积率2.0。溢价率10%, 楼板价23804元/㎡, 装修标准3000元/㎡, 房地联动价43000元/㎡。

四至范围:该地块东至规划九路,南至闸航路,西至规划十路,北至规划四路。

根据项目规划设计方案,拟建 17幢12-20F住宅(含保障房)以及其他配套用房等建筑。

具体经济指标如下:

1 项目前景
项目售楼处电话:400-8787-554位于闵行浦江镇板块,这里也是 滨江3.0的核心区,纵享上海的顶层规划利好。

据浦江新市镇的规划显示:浦江总绿地面积约773万㎡,包括1处城市公园、10处地区公园和120余处社区公园,达到社区绿化全覆盖, 是整个黄浦江沿岸少有的绿色生态居住区。

黄浦江、大治河和金汇港在此交汇,形成上海独特的 “三水八岸、十字水系”格局,特殊的区位、空间格局、生态价值,使得这里的价值潜力,值得期待!

2 项目配套
交通方面:从项目出发,BRT1站换乘8号线,7站直达前滩,同时还可直达上海新天地、人民广场等市区多个核心商圈和CBD;此外,8号线延长线汇臻路站距离项目也仅约1.4公里。

商业方面:项目北面约400米便是浦江万达广场,据悉在浦江万达广场的西侧也有块商业用地,后期开发后,占地面积将超过万达。
项目附近还有一座约8万㎡的商业综合体一一山钢和润旭辉里;另外在项目西侧,上师大学校的北侧,在建一个约2100㎡的菜场,预计今年12月竣工。

教育配套:项目附近就是九年一贯制学校一一上海师范大学附属闵行实验学校,目前初中已在去年9月开学,小学已经建成即将投入使用; 距离项目1-2km还有浦江三小和浦江三中;附近上海知名高中七宝中学浦江分校,今年9月已开学。(教育免责:政府不对预售房屋进行学区划分,项目对口学校最终以交房后教育主管部门公布为准)

生态资源方面:浦江是整个黄浦江沿岸少有的绿色生态居住区,总绿地面积约773万㎡,几乎达到社区绿化全覆盖。

招商中旅·揽阅售楼处电话:400-8787-554
上海招商 中旅·揽阅售楼处电话: 400-8787-554楼盘详情介绍,位置、小区环境、房价、周边商业配套、户型等楼盘详情!