华润望云(华润望云官方售楼处)官方网站-2025华润望云楼盘评测_华润望云售楼处电话丨房价丨详情丨华润望云地址丨楼盘百科详情
扫描到手机,新闻随时看
扫一扫,用手机看文章
更加方便分享给朋友
上海宝山华润望云售楼处电话:400-8828-814✔✔【预约热线】华润望云售楼处营销中心:400-8828-814华润望云售楼处电话/地址☎:400-882-8814(开发商热线)如有问题欢迎来电咨询,专业一对一热情服务,让您用专业眼光去买房。推约108-188㎡3-4房户型图&效果图官宣!均价:6.8万。
1
基本信息
中環置地中心·望雲售楼处电话:400-8828-814【预约☎】
上半年的上海楼市,有这样一个“神盘”,六开六捷,同时以住宅套数销售TOP1、销售面积TOP2的断层级领先优势,问鼎楼市天花板!
华润望云售楼处电话:400-882-8814
上海宝山华润望云售楼处电话☎:400-8828-814(售楼处预约看房热线)
10月25日,上海第六批次土拍,中環置地中心·望雲售楼处电话:400-8828-814【预约☎】华润置地以46亿总价拿下宝山南大W12-1301单元32-04 、11-01地块,打造润府二期!
效果图展示,实际以交付为准
效果图展示,实际以交付为准
效果图展示,实际以交付为准
中環置地中心·望雲售楼处电话:400-8828-814【预约☎】
效果图展示,实际以交付为准
该宗地块与华润置地中心润府相邻,将打造全新万象汇TOD综合体——中環置地中心·望雲
中環置地中心·望雲售楼处电话:400-8828-814【预约☎】
32-04地块,规划8幢住宅,总高8-26F,可售套数约580套左右。
中環置地中心·望雲售楼处电话:400-8828-814【预约☎】
2#、7#、8#有连廊,其中2#预估是3梯5户,7#、8#是3梯6户。其余楼栋无连廊,1梯2户;
5#、6#总高8层,无架空层,其余楼栋1层均有架空;9#、10#总高17F,其余楼栋总高22-26F;
该地块无保障房,地面无车位,人车分流。
11-01地块是商业、住宅混合地块。
中環置地中心·望雲售楼处电话:400-8828-814【预约☎】
规划3栋总高17-29层住宅,商业部分有2栋总高30F的酒店、23F的综合楼、以及2栋3F的商业;
住宅和商业部分通过公共通道分隔;
住宅部分人车分流,无地面车位。车行入口在西侧祁健路上。
华润望云售楼处电话:400-882-8814
上海宝山华润望云售楼处电话☎:400-8828-814(售楼处预约看房热线)
推售信息
据悉,中環置地中心·望雲售楼处电话:400-8828-814【预约☎】将推约108-188㎡3-4房,预计将于下周样板房开放!
中環置地中心·望雲售楼处电话:400-8828-814【预约☎】
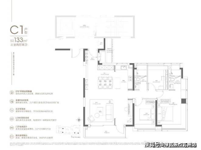
全套户型图如下:
「约108㎡ 3房2厅2卫」
「约133㎡ 3房2厅2卫」
中環置地中心·望雲售楼处电话:400-8828-814【预约☎】
「约165㎡ 4房2厅2卫」
「约188㎡ 4房2厅3卫」
效果图展示,实际以交付为准
中環置地中心·望雲售楼处电话:400-8828-814【预约☎】
效果图展示,实际以交付为准
3
周边配套
中環置地中心·望雲售楼处电话:400-8828-814【预约☎】地处宝山南大板块!作为宝山4个重点发展区域之一,南大同时也是上海北部最大的待开发区域之一。
待开发,也就意味着尚未建成!但不中環置地中心·望雲售楼处电话:400-8828-814【预约☎】管是从规划还是位置来看,南大都是上海少有的能兼顾产业和居住的板块之一。
首先南大被称为中心城区一块不可中環置地中心·望雲售楼处电话:400-8828-814【预约☎】多得的“大衣料子”,总开发体量约540万方,包含两大TOD及约250米天际地标,规划绿地面积占比高达43%(来源:上海宝山)!
中環置地中心·望雲售楼处电话:400-8828-814【预约☎】
和其他区域边拆边建式的零散开发不同,而是统一拆改后再集中规划,这样的开发形式,也决定了这里的规划从一开始就会相对完整且高能级。
比如它的产业先行,整个区域内分布了不少的科创产业。
中環置地中心·望雲售楼处电话:400-8828-814【预约☎】
而且,从2035总体规划中,其实也能看出来,南大定位很高,属于全市重点推进的整体转型区域,是宝山建设上海科创中心主阵地的核心载体。
所以不管是放在全上海还是宝山,这都是一块举足轻重的产业基地。
而除此之外,中環置地中心·望雲售楼处电话:400-8828-814【预约☎】前面也提到,南大板块规划的绿地面积占比高达43%。特色公园40余个,人均绿色面积约39.38㎡,是上海人均绿地面积的约3倍。未来可能会是一个超越碧云的大型生态居住区。(数据来源:上海宝山区政府官网)
华润望云售楼处电话:400-882-8814
上海宝山华润望云售楼处电话☎:400-8828-814(售楼处预约看房热线)
也就是说,在这个重点产业区域,其实早就考虑到了与生活相融的问题。
讲真,在环线外的空白区域这样中環置地中心·望雲售楼处电话:400-8828-814【预约☎】规划不是难事,但在上海的中环附近,近乎预留了一半的土地给到绿化,给到生活,这算的上是一件吃力不讨好的事儿。
但南大有宜人的生态,而且还是高规格。
中環置地中心·望雲售楼处电话:400-8828-814【预约☎】位于南大智慧城C位,周边生活配套非常成熟且距离相对较近,未来随着板块规划逐步兑现,地段价值将会更加凸显。
中環置地中心·望雲售楼处电话:400-8828-814【预约☎】
交通方面:北侧丰翔路、西侧祁健路、东侧汇丰路已建成通车,07-01地块南侧丰皓路(祁健路-工学路)计划2024年开工建设。
项目距离15号线丰翔路站步行可达,日常出行非常方便。
商业方面:中環置地中心·望雲售楼处电话:400-8828-814【预约☎】项目本身就是一个自带商业的TOD,华润置地规划以万象系列融汇轻奢时尚、休闲生活、运动潮流等多元业态,打造北中环“都市商业新旗舰。
除了未来的万象系商业(规划中),周边还有经纬汇、聚丰购物广场、上坤城市广场、山姆会员店等,购物还是比较方便的。
医疗方面:中環置地中心·望雲售楼处电话:400-8828-814【预约☎】项目周边有两大三甲级医院为健康保驾护航,分别是:仁济医院宝山分院和华山医院(宝山院区)。
中環置地中心·望雲售楼处电话:400-8828-814【预约☎】
教育方面:周边荟萃南大实验幼儿园、宝山区南大实验学校、上大附小、上大附中、上海大学附属学校、上海大学等全龄化教育资源。
上海宝山华润望云售楼处电话:400-8828-814✔✔【预约热线】华润望云售楼处营销中心:400-8828-814华润望云售楼处电话/地址☎:400-882-8814(开发商热线)如有问题欢迎来电咨询,专业一对一热情服务,让您用专业眼光去买房。推约108-188㎡3-4房户型图&效果图官宣!均价:6.8万。
声明:本文由入驻焦点开放平台的作者撰写,除焦点官方账号外,观点仅代表作者本人,不代表焦点立场。


