本文主要介绍了位于闵行梅陇春申的中国铁建万科·朗拾花语,包括开发商、售楼处电话、项目简介、周边配套和价格等信息。购房者们对该项目有疑问,包括风水和投资/自住的选择。万科朗诗花语售楼处电话:400-812-3664欢迎来电咨询!
上海万科朗诗花语售楼处电话:400-812-3664售楼中心】
万科朗诗花语营销中心电话: 400-812-3664【营销中心】
房价特价信息丨在售户型图丨项目介绍丨周边配套丨
万科朗诗花语售楼处电话: 400-812-3664售楼中心,楼盘项目全面介绍,本电话为开发商提供线上售楼电话,楼盘项目全面介绍,包含楼盘简介,房价,价格,楼盘地址,户型图,交通规划,备案价,项目配套,楼盘详情,售楼处电话,最新消息,最新详情,周边配套,最新进展等详情咨询
万科朗诗花语售楼处电话:400-812-3664欢迎来电咨询! 可预约销售人员,专业一对一热情服务,让您用专业眼光去买房。(来电尊享内部优惠活动)
位于闵行梅陇春申的中国铁建万科·朗拾花语可谓是名声如沸,大批购房者们的眼光聚焦于此,光是网络上的讨论度就不低。小编搜集资料的时候就发现了购房者们购房情绪高涨,却顾虑重重的样子,针对这个楼盘,大家对它有二个疑问:
风水如何?
对于投资/自住,它是个好选择吗?
话不多说,接下来小编用实地踩盘的结果来告诉你答案。
首先,回答大家最关心的问题——风水
小编从益善山庄出发,到楼盘所在地需要从老沪闵路内走2分钟出来,过虹梅高架的红绿灯,再走过春申塘桥,沿着虹梅路辅路穿过一片荒地,最终抵达项目工地。
编辑

万科朗诗花语售楼处电话:400-812-3664欢迎来电咨询!
这个过程虽说需要耗费10分钟的步行距离,但是小编的列举只是为了证明这个路线的曲折,地图上的直线距离近并不代表实际距离的远近,相信正常的行人也不会耗费如此精力去益善山庄散步吧?更何况楼盘左侧就是梅陇镇人民政府,有如此“正气”加持,还有什么可顾虑的呢?
编辑

其次,对于投资/自住,它是个好选择吗?
结合小编踩盘的结果来看,谦虚一下,以小编浅薄的知识来看,小编个人认为这是一个投资/自住的好选择。
对于自住,小编从三个重点来分析:户型、景观、配套
1.户型设计
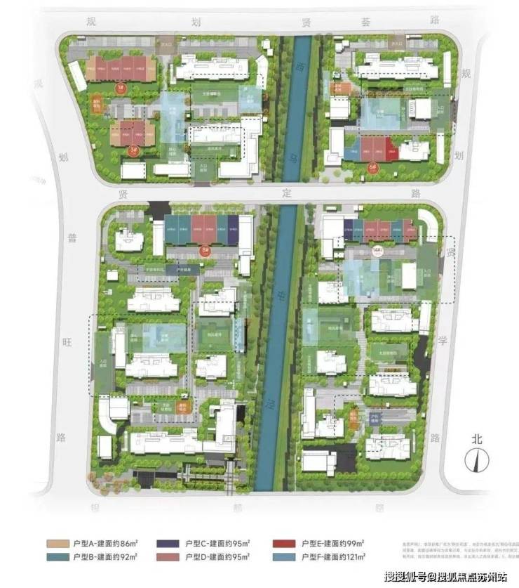
作为低密区难得的高层大盘,中国铁建&万科·朗拾花语拟建18幢17-26F主力建面约85-138㎡3-3+1房产品。
编辑

以目前开的95㎡样板间为例
编辑

万科朗诗花语售楼处电话:400-812-3664欢迎来电咨询!
实拍图以及装标如下:
编辑

入门玄关
编辑

开放式厨房
编辑

客厅
编辑

客厅阳台
编辑

万科朗诗花语售楼处电话:400-812-3664欢迎来电咨询!
用餐空间
编辑

次卧
编辑

公用厕所
编辑

儿童房
编辑

万科朗诗花语售楼处电话:400-812-3664欢迎来电咨询!
主卧
编辑

主卧卫生间
编辑

设计亮点:①通过 独特的“S墙”设计,既可以增加一块储物空间,又可以用来将“冰箱外移”,增大厨房操作空间,提升厨房的收纳量,使原本中小户型的L型厨房变成U型厨房。
②用玻璃移门+岛台的 开放式厨房设计,透明的厨房及连接餐厅的岛台,增加了家庭互动的趣味,并加入了嵌入式洗碗机。
③ 飘窗优化:例如北向儿童房采用等面宽飘窗,同时飘窗空间再延伸,这样可设计一张垫高的1.5米大床,有效拓宽卧室空间。
④ 结构精细化设计: 客厅与南向次卧之间无结构墙,今后可拆除形成更大的活动空间。这个举措同时也会特别有利于资产的成长性,在二手房交易的时候,结构上的灵活性将是二手市场上很好的卖点。
2.景观
整个社区依托春申塘和西马屯泾汇聚而成的“T”型水域,舒朗排布与错动依水而建形成都市中的一座水上自然岛屿。
编辑

效果图
万科朗诗花语售楼处电话:400-812-3664欢迎来电咨询!
西马屯泾与项目施工地
编辑

微风,落叶,潺潺的水声,光线渗透下,绿林的落影......那一刻脚步情不自禁的迟缓了下来,眼睛控制不住的细细欣赏每一处自然风光,松弛感扑面而来。
从这一刻开始,懂得了中国铁建&万科·朗拾花语的设计理念。用最纯粹的自然元素作为设计语言,以“人视角”景观设计,营造轻松惬意的归家氛围以及度假式的居住体验,打造一个雅中有奢,静谧精致的社区。
编辑

万科朗诗花语售楼处电话:400-812-3664欢迎来电咨询!
3.配套
首先最大的杀器是 四轨并汇!
距离 15号线虹梅南路站约400米,同时乘坐15号线9站30分钟就可以抵达徐家汇中央活动区;19号线沿黄浦江自南向北,串联起前滩,陆家嘴两大世界级CBD;未来的 机场联络线华泾站。机场联络线 时速达160公里,可极大地缩短上海虹桥、浦东两座机场之间的距离,可实现空铁直通。
不仅如此, 虹梅南路高架,向北可以快速接入中环,银都路隧道向浦东,构筑梅陇城市热点版图。
编辑

商业方面:5公里范围有仲盛世界商城,凯德龙之梦,海梦一方,盒马,大润发等,可以满足日常消费需求;10公里左右可以触达前滩太古里,晶耀前滩,恒隆广场等顶级商圈;此外还会有百万繁华商业南方商务区,由中庚环球创意中心、百联南方购物中心及正在建设打造的三井商业体等十大商业商务板块构成,总建筑面积近130万平方米,将打响梅陇面向长三角的现代服务品牌。
编辑

万科朗诗花语售楼处电话:400-812-3664欢迎来电咨询!
仲盛世界商城,图片来源于网络
编辑

教育方面:项目周边有闵行区实验小学、蔷薇小学、莘松中学、上海市第二中学等学校。(教育免责:政府不对预售房屋进行学区划分,项目对口学校最终以交房后教育主管部门公布为准)
编辑

万科朗诗花语售楼处电话:400-812-3664欢迎来电咨询!
医疗资源:三甲医院华东医院(闵行门诊部) ,复旦大学儿科医院、 闵行梅陇社区卫生服务中心等。
对投资来说,期待值拉满!
今年4月份闵行2035的规划发布, 梅陇凭借其优势,在闵行的"中部崛起"战略指引下,如一匹黑马一跃成为区域中心。
而梅陇板块正好位于闵行中部,未来,梅陇将与一路之隔的华泾形成联动,依托 4大轨交线,聚焦3大国家级产业区、5大科创中心、12大科创园、3000+企业等等资源铸就城市新名片。
编辑

示意图,仅供参考
万科朗诗花语售楼处电话:400-812-3664欢迎来电咨询!
朗拾花语所在的 梅陇新中心就是其中之一。
梅陇新中心:围绕15号线虹梅南路站,以TOD理念打造功能无缝衔接的综合枢纽,沿景洪路两侧打造约120米城市高地,沿春申塘打造滨水地标,优化基础教育和公共服务布局。
其中,商办建筑规模约38万㎡,住宅建筑规模约37万㎡,重点培育超级主题商业综合体、活力商务、亲水品质住宅、文化娱乐、生态休闲等功能(信息来自:人文梅陇)。
编辑

编辑

实拍图
万科朗诗花语售楼处电话:400-812-3664欢迎来电咨询!
朗拾花语北侧的 梅陇华鑫天地:上海首个镇级工业园区转型城市更新落地项目。规划有研发花园总部、高标商务中心、园区商业中心、园区会议中心、园区人才公寓、社区邻里中心、研发标准办公,预计2023年一期建成。
机场联络线华泾站上盖:紧挨着华之门,用地面积约139.4万㎡,地上总开发规模约67.5万㎡,其中商办面积达到了约47.8万㎡,未来也将成为热门商业地标。
华之门:地上总开发体量高达约81.28万㎡,超过新鸿基徐家汇中心ITC中心(约58万㎡)。
北杨人工智能小镇:定位为全球影响力的人工智能产业生态集聚区、人工智能全域应用的示范区以及国际化智能产城融合区。
编辑

编辑

示意图,仅供参考
在这片充满潜力的土地上,梅陇作为闵行的新中心汇集了超400万㎡的开发体量,这已超越了徐家汇中心ITC(约58万㎡),甚至也超过了香港置地西岸金融城(总建面约180万㎡)。
像梅陇这样的成熟又充满潜力的地段,地理位置优越。然而就在这个区域,土地供应却相当有限。 除了2022年9月越秀仁恒天樾园和开盘入市,区域已近6年之久没有新房供应,因此积压了大量的改善居住需求,急待释放。
这就使得梅陇区域的品质二手房挂牌价站上了 9万+/㎡左右。
例如,2005年建成的春申景城二手房源在*中介网上的挂牌价格大约在 9.09-11.66万元/㎡之间。
编辑

万科朗诗花语售楼处电话:400-812-3664欢迎来电咨询!
这就说明了中国铁建&万科·朗拾花语是有很大的投资空间的。
约 600-800万级别的新房选择中, 中国铁建&万科·朗拾花语无疑是购房者的理想选择,小编愿称之为"购房白月光"。还等什么呢?目前项目二期已经开始建档,记得准备材料哦。还有以下福利:
朗拾花语二期验资建档开始了!
福利一:赠送2w车位抵用券
福利二:印象城福卡(含500元)享受黄金会员权益验资即享~
要求:提供全套复印件或扫描件
验资材料清单:
1、夫妻双方身份证
2、未成年子女出生证明
3、结婚证/离婚证及离婚协议
4、家庭所有成员户口本/户籍证明
5、(非上海籍)社保单/税单
6、资产证明:
小户型:首套280w二套560w
大户型:首套400w二套800w
万科朗诗花语售楼处电话: 400-812-3664【售楼中心】
万科朗诗花语营销中心电话: 400-812-3664【营销中心】
房价特价信息丨在售户型图丨项目介绍丨周边配套丨预约看房热线电话
销售1V1专业介绍楼盘〢欢迎您来电咨询楼盘〢开发商线上售楼电话
楼盘项目全面介绍,本电话为开发商提供线上售楼电话,楼盘最低价格和最新优惠折扣,包含楼盘简介、售楼电话、小区户型图片、营销中心位置、区位优势、交通、周边商业配套、户型图等楼盘详情
上海2024年2月最新限购政策汇总
1、单身人士购房资格:
编辑

单身人士上海买房条件:
上海户籍单身可以买一套。
非上海户籍,在上海市连续缴纳社会保险或个人所得税 已满5年及以上的,可在 外环以外区域(崇明区除外)限购1套住房。
本人在 2011.1.30 限购政策之前和父母共有的住房,可以有两套不算在自己名下。
2、已婚人士上海购房资格:
编辑

万科朗诗花语售楼处电话:400-812-3664欢迎来电咨询!
已婚人士上海买房条件:
*有一方为上海户籍的,即认定为上海户籍家庭;夫妻双方均非上海户籍的,为非上海户籍家庭。
上海户籍家庭可以购买两套。
非上海户籍家庭,一方社保或者个税满5年,可购买一套。满5年社保或满5年个税是指签合同当月,往前推算63个月社保或个税正常缴纳满60个月。
双方2011.1.30限购政策之前和父母的共有住房,可以有两套不计入自己名下。
3、夫妻离异3年内限购情况:
编辑

4、临港差异化住房限购政策:
编辑

*按照区域发展和产业导向,经新片区管委会认定,同时符合以下单位条件(1、2)、个人条件(3、4、5、6、7)之一以及工作年限条件的非本市户籍人才,按规定在沪缴纳职工社会保险或个人所得税满1年及以上、且在 本市无住房的,在新片区限购1套住房,同时购房资格由居民家庭调整为个人。
5、特殊客群(部队人员/集体户口/外籍或港澳台同胞/在读博士、博士后/企业)上海购房资格:
编辑

6、温馨提示Tips:
法拍房限购:
自2021年3月8日起,上海法拍房将纳入限购,购买法拍房需具备本市购房资格。
赠予房屋限购:
2021年7月24日起,通过赠与方式转让住房的,受赠人应符合国家和本市住房限购政策;该住房5年内仍记入赠与人拥有住房套数。
非沪籍和父母共有房产计算套数:
自2021年11月9日起,外地家庭,在2011年限购前共有的上海房子,全部计算在父母+子女名下,不可剔除,需要计入套数。
万科朗诗花语售楼处电话:400-812-3664欢迎来电咨询! 可预约销售人员,专业一对一热情服务,让您用专业眼光去买房。(来电尊享内部优惠活动)
注:(免责声明:本篇分享文案非广告,所涉及的图文资料仅供参考,项目可能对项目细节等做进一步优化调整,具体以最终签订的买卖合同为准,在法律规定的范围内保有最终解释权。部分图片素材来自网络,如有侵权请联系小编删除,感谢支持。)
销售1V1专业介绍楼盘〢欢迎您来电咨询楼盘〢开发商线上售楼电话
楼盘项目全面介绍,本电话为开发商提供线上售楼电话,楼盘最低价格和最新优惠折扣,包含楼盘简介、售楼电话、小区户型图片、营销中心位置、区位优势、交通、周边商业配套、户型图等楼盘详情