合院听风,露台摘星!「鸿湖上」重塑苏州塔尖人居想象!
扫描到手机,新闻随时看
扫一扫,用手机看文章
更加方便分享给朋友
鸿湖上位于吴中经开区城南街道白云街南侧、下田路西侧,占地4.97万㎡,容积率1.02,限高30米,是吴中主城近十年出让的最低密住宅用地。
政府规划明确要求:单套面积≥160㎡、总户数≤220户,注定打造纯高端社区。

该地块(苏地2024-WG-Z17号)是南通市鸿远置业(南通海门国资背景)以总价11.01亿竞得,楼面价:21698.49元/平,溢价率0.46%。
2025年5月,地块开发主体更名为苏州鸿謇置业有限公司,强化本土化运作。

外立面强制采用铝板、石材、真石漆等高端建材;

4层以上住宅须为精装交付,装标≥3000元/㎡,对标一线豪宅配置。


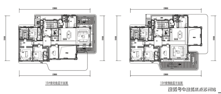
根据规划,项目拟建29栋3-9F住宅,其中,23栋3F合院,6栋9F洋房

面积段约240-360:3层设计,层高3.1-3.5米,户户配备独立庭院,深灰铝板+金色金属板立面,融合宋式建筑风骨与现代质感。



文化基因植入:紧邻宝带桥(苏州第一古桥)与吴文化博物馆,建筑风格需“与大运河、澹台湖界面协调”,呼应苏州水乡文脉。
创新错层露台
9层洋房采用奇偶层错位布局,每户配置约40-60㎡空中花园,实现“垂直森林”居住理念。

精装品质升级:预计打造约180-300㎡大平层,装标超3000元/㎡,配备智能家居系统,主打“墅级空间感”。

1. 文化景观独占性
一线澹台湖+京杭运河:地块三面环水,与宝带桥-澹台湖文化公园(国家文化公园)无缝衔接,堪称“苏州文旅封面”。
博物馆级人文氛围:步行5分钟可达吴文化博物馆,居住与文化体验深度融合。
2. 全维配套零短板
轨交动脉:700米直达地铁2号线宝带桥南站,1站换乘4号线(石湖东路站),2站换乘7号线(郭巷站)。
商业能级跃升:1公里内覆盖龙湖东吴天街、海星生活广场、万达广场,形成城南顶级商圈。
教育医疗:碧波实验小学(省重点)、苏州外国语学校吴中校区、苏大附一院总院等环伺。
结 语
鸿湖上周边新项目很多,苏州旭辉的东吴序,龙湖的东吴原著(已经公开),刚好和该项目形成犄角之势。
不过龙湖东吴原著(合院)、东吴序(55套洋房+23套联排)主打传统改善,本案“文化IP+四代宅”形成代际差。
鸿湖上预计客群为高净值文化精英(宝带桥IP吸引)、主城地缘性改善族、园区外溢高端买家。有兴趣的朋友可以预约了解!咨询热线:18662309054
声明:本文由入驻焦点开放平台的作者撰写,除焦点官方账号外,观点仅代表作者本人,不代表焦点立场。


