湖东新贵,静奢生活即将启幕:紫金·翡丽甲第引领苏州豪宅新风尚
扫描到手机,新闻随时看
扫一扫,用手机看文章
更加方便分享给朋友
最近,苏州的购房政策可谓是利好消息不断。从购房契税补贴到人才房票补贴,各种优惠政策层出不穷,让不少购房者心动不已。而就在这片利好的春风中,一座备受瞩目的豪宅项目——【紫金·翡丽甲第】悄然登场,以其独特的地理位置和奢华的品质,成为了湖东板块的新贵。
基本信息
紫金·翡丽甲第,这个名字听起来就充满了贵气。它位于苏州园区的中心大道北、西洛巷南、锦溪街东,地理位置得天独厚。项目由北京金隅和保利置业两大品牌联手打造,占地面积约4.9万平方米,容积率1.5,总建筑面积达到了11.9万平方米。整个项目规划了6-9层的洋房,户型面积从190㎡到275㎡不等,精装标准不低于5000元/平,堪称湖东板块的豪宅标杆。
值得一提的是,紫金·翡丽甲第是苏州首个不限价地块,楼面价高达39027元/㎡,备案均价63595元/㎡。这样的价格,足以看出项目的稀缺性和高端定位。
区域配套
紫金·翡丽甲第择址园区湖东核芯板块,这里不仅是苏州的经济中心,更是国际化生活的代表。项目周边汇聚了丰富的商业、教育、医疗等资源,生活便利度极高。无论是日常购物、子女教育,还是医疗保健,都能在短时间内得到满足。

品牌价值
保利置业和金隅地产,这两大品牌在房地产界可谓是如雷贯耳。他们联手打造的紫金·翡丽甲第,无疑是苏州豪宅市场的一颗璀璨明珠。在2023年11月29日的苏州第八批集中供地中,北京金隅集团在与15家房企的激烈竞争中,以总价28.97亿元拿下了此次出让中唯一溢价地块,成交楼面价39027元/平方米,溢价率超30%。这样的实力和魄力,足以证明项目的价值和潜力。
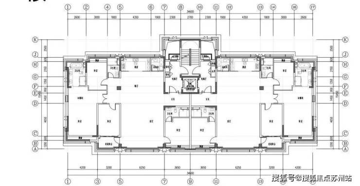
户型鉴赏
紫金·翡丽甲第的户型设计,充分考虑了高端人群的生活需求。无论是190㎡、225㎡,还是275㎡的户型,都做到了空间布局合理,功能分区明确,居住舒适度极高。
建面约190㎡户型,四房两厅三卫:
建面约225㎡户型,四房两厅三卫:

建面约290㎡户型,四房两厅三卫:

未来展望
随着苏州购房政策的不断利好,以及湖东板块的持续发展,紫金·翡丽甲第的未来前景可谓是一片光明。无论是自住还是投资,这里都是一个不可多得的选择。想象一下,未来在这里,你可以享受到湖东的繁华与宁静,体验到国际化生活的便利与舒适,这样的生活,怎能不让人心动?
联系方式
如果你对紫金·翡丽甲第感兴趣,想要了解更多信息,欢迎拨打咨询热线:18936159971。我们的专业团队将竭诚为您服务,帮助您找到理想的家园。
湖东新贵,静奢生活即将启幕:紫金·翡丽甲第引领苏州豪宅新风尚
最近,苏州的购房政策可谓是利好消息不断。从购房契税补贴到人才房票补贴,各种优惠政策层出不穷,让不少购房者心动不已。而就在这片利好的春风中,一座备受瞩目的豪宅项目——【紫金·翡丽甲第】悄然登场,以其独特的地理位置和奢华的品质,成为了湖东板块的新贵。
基本信息
紫金·翡丽甲第,这个名字听起来就充满了贵气。它位于苏州园区的中心大道北、西洛巷南、锦溪街东,地理位置得天独厚。项目由北京金隅和保利置业两大品牌联手打造,占地面积约4.9万平方米,容积率1.5,总建筑面积达到了11.9万平方米。整个项目规划了6-9层的洋房,户型面积从190㎡到275㎡不等,精装标准不低于5000元/平,堪称湖东板块的豪宅标杆。
值得一提的是,紫金·翡丽甲第是苏州首个不限价地块,楼面价高达39027元/㎡,备案均价63595元/㎡。这样的价格,足以看出项目的稀缺性和高端定位。
区域配套
紫金·翡丽甲第择址园区湖东核芯板块,这里不仅是苏州的经济中心,更是国际化生活的代表。项目周边汇聚了丰富的商业、教育、医疗等资源,生活便利度极高。无论是日常购物、子女教育,还是医疗保健,都能在短时间内得到满足。

品牌价值
保利置业和金隅地产,这两大品牌在房地产界可谓是如雷贯耳。他们联手打造的紫金·翡丽甲第,无疑是苏州豪宅市场的一颗璀璨明珠。
声明:本文由入驻焦点开放平台的作者撰写,除焦点官方账号外,观点仅代表作者本人,不代表焦点立场。


