古城四代墅!建发璟园项目来了!容积率1.15!建面约200-240平!传有......
扫描到手机,新闻随时看
扫一扫,用手机看文章
更加方便分享给朋友
速度是真的快!
姑苏区金门板块的纯新盘建发47号地块项目的案名和城市展厅公开了!项目案名为建发璟园,来看下项目亮点剧透:四代墅设计,户型建面约200-240平,超大公区、大面积挑空与高赠送、自带下沉式会所与会所......

规划来看,项目是妥妥的低密度小区,容积率只有1.15,来具体看看这个项目:
纯墅类?
建发金门47号地块项目,即,苏地2024-WG-Z47号地块,位于姑苏区金阊街道金门路北,馨泓路东地块,4月2日,建发以总价53104万元竞得,成交楼面价26054元/平,溢价率23.77%。

该项目的地块用途为城镇住宅用地,占地面积17723.6平。
根据规划信息,项目的总建筑面积35531.39平,容积率1.15.
根据规划,项目拟建8栋4-6F住宅。

1,项目的容积率为1.15,为低密住宅社区;
2,这是新中式的低密住宅社区;
咨询热线:18662309054
2
规划户型出炉
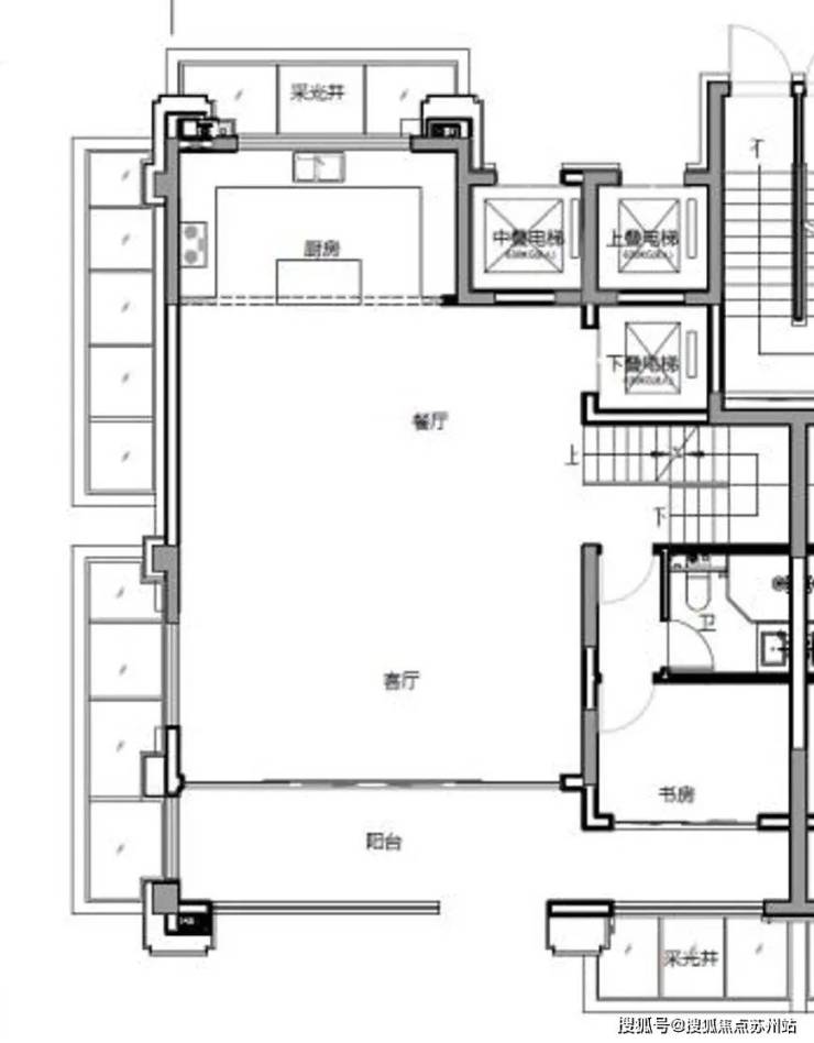
项目公示了3#的户型标准层示意图。



来看看下叠的规划户型图!
整体来看,户型设计是很一般的,一层是动区,做了个带暗卫的书房,把阳台改造进去可以做个套房,但是因为一楼只有一个卫生间,房间的私密性会比较差。
二层也是一个带暗卫的卧室,客厅上空可以改造,北面还有一个卫生间和卧室!
周边界面不错!板块还有新项目
建发47号地块位于姑苏区金阊街道金门路北、馨泓路东。位置上来看其实还不错,周边基本都是住宅小区,居住氛围比较浓。而且项目周边还有一个项目在售,一个项目待售,算是姑苏区存货比较充足的板块。
周边配套来看,目前也是比较齐全的。
交通上,小区南面就是金门路,直接连接新区。西面靠近喜欢快速路,也是东西向大动脉。小区距离1号线桐泾公园站约1公里,往东一站可以换乘2号线。

商业上面,北面是来客茂时尚中心,吃喝玩乐可以一站式满足,此外,南面有彩香一村菜场,日常生活也是比较方便的!大型商业设施上面,东面是石路商圈,有天虹商场、石路步行街、华贸中心(在建)等。
教育设施上面,小区南面有金阊外国语实验学校、苏州市一中分校、第五中学等!
此外,项目周边还有金阊医院、苏大附二院等设施。
板块房价来看,其实很久没有别墅类入市了,板块上一个入市的项目是保利姑苏臻悦,该项目是洋房+小高层的设计,备案均价在4.7-4.8W,如果参照这个价格,你觉得这个项目值吗?咨询热线:18662309054
声明:本文由入驻焦点开放平台的作者撰写,除焦点官方账号外,观点仅代表作者本人,不代表焦点立场。


