众禾嘉苑(售楼处)首页网站-众禾嘉苑售楼中心欢迎您|众禾嘉苑楼盘评测-房价|户型|商圈配套
扫描到手机,新闻随时看
扫一扫,用手机看文章
更加方便分享给朋友
上海嘉定众禾嘉苑售楼处电话:400-8828-814✔✔【预约热线】众禾嘉苑售楼处营销中心:400-8828-814众禾嘉苑售楼处电话/地址☎:400-882-8814(开发商热线)如有问题欢迎来电咨询,专业一对一热情服务,让您用专业眼光去买房。嘉定复华园区 嘉闵线地铁口,加推建面约94-122㎡3房,均价43866元/㎡ 总价约340万起。
众禾嘉苑售楼处电话☎:400-882-8814(预约热线)✔✔✔◆一键预约即2022年二批次土拍地块嘉定区马陆镇嘉定新城JDC10502单元(复华园区)02-01地块,项目由大众以12.4亿元总价竞得,楼板价22364元/㎡,溢价率9.09%。房地联动价4.37万/㎡。
区位示意图
根据设计方案显示,两块地共计规划8栋14-18F高层住宅,规划住宅套数570套。
众禾嘉苑售楼处电话☎:400-882-8814(预约热线)✔✔✔
众禾嘉苑售楼处电话☎:400-882-8814(预约热线)✔✔✔
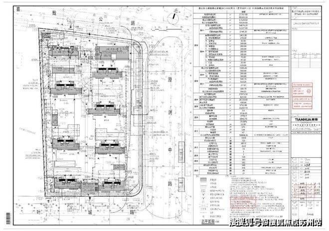
本项目拟建2层配套设施2栋,14层住宅楼1栋,17层住宅楼1栋,18层住宅楼6栋。总建筑总建面85103.1㎡,其中计容建筑面积55534㎡,容积率2.0;共570户。
众禾嘉苑售楼处电话☎:400-882-8814(预约热线)✔✔✔
总平面图
技术经济指标图
众禾嘉苑售楼处营销中心:400-8828-814众禾嘉苑售楼处电话/地址☎:400-882-8814(开发商热线)
效果图
众禾嘉苑售楼处电话☎:400-882-8814(预约热线)✔✔✔◆一键预约去年11月23日上午,大众房产嘉定复华园区商品房项目开工仪式在工地现场隆重举行。
众禾嘉苑售楼处电话☎:400-882-8814(预约热线)✔✔✔◆一键预约
众禾嘉苑售楼处电话☎:400-882-8814(预约热线)✔✔✔◆一键预约众禾嘉苑项目由8幢14-18层的小高层及1幢2层的邻里中心组成,规划商品房528户,规划车位725个,共有地下二层车位,采用全人车分流的设计。
众禾嘉苑售楼处电话☎:400-882-8814(预约热线)✔✔✔◆一键预约
众禾嘉苑售楼处电话☎:400-882-8814(预约热线)✔✔✔◆一键预约众禾嘉苑采用围合式布局设计,社区四至形成有效的社区边界,创造最大约59米楼间距,户户推窗见景。
众禾嘉苑售楼处电话☎:400-882-8814(预约热线)✔✔✔◆一键预约众禾嘉苑采用经典的中轴对称设计手法,社区内以中央景观轴+中央景观花园为核心,规划“一轴、一心、一环、五园”的景观布局,打造了美学会客厅,阳光大草坪,下沉式书吧、环形跑道和五个楼幢景观花园等多个主题景观组团,打造社区人性化、景观功能化、配套全龄化的全维度生态住宅。
众禾嘉苑售楼处电话☎:400-882-8814(预约热线)✔✔✔◆一键预约
众禾嘉苑充分延续江南民居的传统,采用五进式归家礼序,在社区主入口打造星级酒店感归家体验,整个社区通过“入口礼仪门厅→迎宾文化空间→中央景观花园→漂浮会客厅→景观入户大堂/地下大堂”的五进式院落归家空间,使业主归家路充满仪式感。众禾嘉苑售楼处电话☎:400-882-8814(预约热线)✔✔✔◆一键预约
众禾嘉苑售楼处电话☎:400-882-8814(预约热线)✔✔✔◆一键预约
众禾嘉苑主力建面约94-122㎡精装3房,户型以LDKB一体化特色设计,不仅通风、采光俱佳,还更加明亮开放,动线更加合理
众禾嘉苑售楼处电话☎:400-882-8814(预约热线)✔✔✔◆一键预约值得一提的是,项目在装修方面臻选国内外知名家装品牌,打造出价格超配的全系精装配置。
众禾嘉苑售楼处电话☎:400-882-8814(预约热线)✔✔✔◆一键预约
最新消息:嘉定复华园区 嘉闵线地铁口 嘉戬公路站旁全新住宅【众禾嘉苑】推出528套全部房源,建面约94—122㎡精装3房,均价43866元/㎡,已经开盘,可直接认购。众禾嘉苑售楼处电话☎:400-882-8814(预约热线)✔✔✔◆一键预约
最新户型图如下:众禾嘉苑售楼处电话☎:400-882-8814(预约热线)✔✔✔◆一键预约
众禾嘉苑售楼处电话☎:400-882-8814(预约热线)✔✔✔◆一键预约
众禾嘉苑售楼处营销中心:400-8828-814众禾嘉苑售楼处电话/地址☎:400-882-8814(开发商热线)
众禾嘉苑售楼处电话☎:400-882-8814(预约热线)✔✔✔◆一键预约
众禾嘉苑售楼处电话☎:400-882-8814(预约热线)✔✔✔◆一键预约
项目周边配套
商业方面:项目大约400米处就可到达嘉乐·东润广场,约1公里处还有百联嘉定购物中心,满足居民日常生活需求。
众禾嘉苑售楼处电话☎:400-882-8814(预约热线)✔✔✔◆一键预约
众禾嘉苑售楼处电话☎:400-882-8814(预约热线)✔✔✔◆一键预约学校方面:项目周边大约1公里范围内有嘉定区新成路小学、嘉定区成佳学校,基础教育有保障。
众禾嘉苑售楼处电话☎:400-882-8814(预约热线)✔✔✔◆一键预约并且项目西侧为教育规划用地,学校规划用地面积约32581㎡,建筑高度不超过24米,总建筑面积约45000㎡,须满足28班完全中学的办学规模要求(完全中学,就是指一所学校含初中部和高中部)。
众禾嘉苑售楼处营销中心:400-8828-814众禾嘉苑售楼处电话/地址☎:400-882-8814(开发商热线)
众禾嘉苑售楼处电话☎:400-882-8814(预约热线)✔✔✔◆一键预约
其他配套:项目地块周边小区众多,生活氛围较好,距离嘉定体育中心400米,迎园医院等配套。
众禾嘉苑售楼处电话☎:400-882-8814(预约热线)✔✔✔◆一键预约同时,在建的地铁嘉闵线嘉戬公路站就设在附近,建成后,通过嘉闵线往南30分钟可达虹桥枢纽,往北直达苏州太仓。
整个项目采用经典的中轴对称设计手法,使得各个楼栋分布较为均匀,形成有效的社区边界。众禾嘉苑售楼处营销中心:400-8828-814众禾嘉苑售楼处电话/地址☎:400-882-8814(开发商热线)
项目车位配比高达1:1.3,且通过智能化管理实现完全人车分流,在嘉定地区实属少见!
众禾嘉苑售楼处营销中心:400-8828-814众禾嘉苑售楼处电话/地址☎:400-882-8814(开发商热线)园林景观方面,在着重功能性场地设计基础上,以全龄儿童、青年健身、康健花园和会客花园四大重点关注,打造格调、美学、与自然共生的心之居所。
项目效果图,以实际交付为准
众禾嘉苑售楼处营销中心:400-8828-814众禾嘉苑售楼处电话/地址☎:400-882-8814(开发商热线)在时间、自然、爱的三重维度下缔造会客、休闲、阳光、亲子、邻里五大主题功能区,即人车分流、沉浸式多功能共享空间、全龄段儿童活动空间、全时运动健身空间、康体养生空间以及宅间花园组团,塑造集智能化科技、人性化设计、全龄段需求为一体的生活方式。
项目效果图,以实际交付为准
一步一景,将建筑完美融入自然,使业主归家路充满仪式感。
众禾嘉苑一房一价表
众禾嘉苑售楼处营销中心:400-8828-814众禾嘉苑售楼处电话/地址☎:400-882-8814(开发商热线)
上海嘉定众禾嘉苑售楼处电话:400-8828-814✔✔【预约热线】众禾嘉苑售楼处营销中心:400-8828-814众禾嘉苑售楼处电话/地址☎:400-882-8814(开发商热线)如有问题欢迎来电咨询,专业一对一热情服务,让您用专业眼光去买房。嘉定复华园区 嘉闵线地铁口,加推建面约94-122㎡3房,均价43866元/㎡ 总价约340万起。
声明:本文由入驻焦点开放平台的作者撰写,除焦点官方账号外,观点仅代表作者本人,不代表焦点立场。


