星合晋墅:政策春风,双湖畔低密生活美学新标杆
扫描到手机,新闻随时看
扫一扫,用手机看文章
更加方便分享给朋友
近期苏州楼市迎来一系列利好政策,首套房首付降至15%,利率最低3.00%,二孩及以上家庭在住房套数认定时核减1套,公积金贷款利率降至2.85%且额度大幅提升。这些政策不仅降低了购房门槛,更让改善型住房需求迎来了春天。在这样的大背景下,星合晋墅以其独特的低密设计和高端配套,成为苏州改善型住宅的标杆之作。
【星合晋墅】城市生活美学运营商 只定制 不复制
【项目】约50%绿化覆盖率/容积率约1.02
【业态】洋房(7F)+院墅(3F)
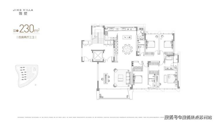
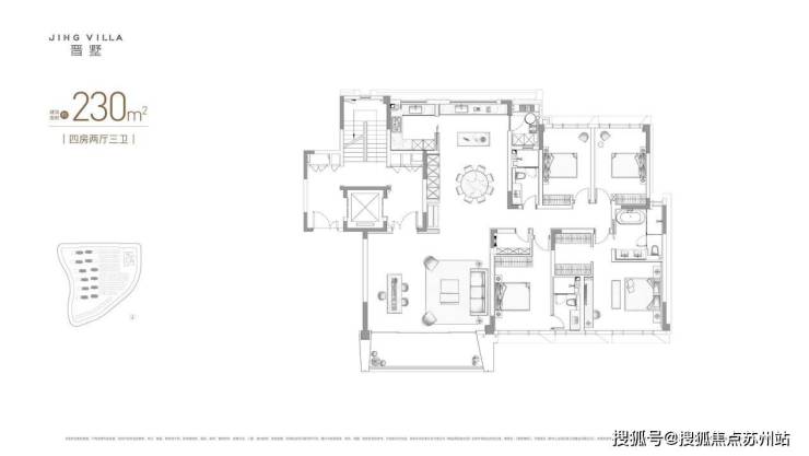
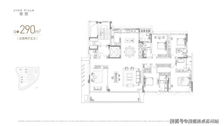
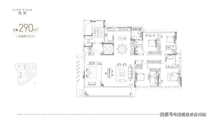
【面积】主推建面约230㎡-350㎡低密洋房;约400㎡-700㎡稀缺院墅。
咨询热线:18662309054
18662309054
区域配套
全维优质配套随心享 约3公里黄金繁华境
一站式全龄教育 书香涵养未来 涵盖幼小初知名学府,华林幼儿园(东华林街)、双湖湾教育幼儿园、翰林小学、尹山湖中学等。
优质医疗资源 全时护航健康 双湖区域内,集聚星海医院、九龙医院、独墅湖医院等权威医疗。
双轨三轴枢纽 高效通达全城 近邻5号&8号地铁,金鸡湖大道、独墅湖大道、金鸡湖隧道三条黄金主轴。
文娱商圈荟萃 国际生活的烟火气 山姆会员店、星湖天地、星月坊商业街等。
与公园为邻 收藏一座城的诗意 1.6KM金鸡湖高尔夫会员专属俱乐部、3KM独墅湖公园等休闲绿境。
品牌价值
星合控股 国际高端底蕴 为生活再设计
2003年进入苏州,深耕园区20余载,倾力打造高端住宅、奢华酒店、潮流商业标杆作品,与时代共进,全维打造国际化高端生活方式。代表作品:苏州晋园别墅|晋合水巷邻里|晋府水巷别墅|金湖湾|洲际酒店|凯悦酒店等
约11亩湖叙SPACE 国际生活的艺术藏馆
双湖之畔的艺术会所,是一处时光放缓、心灵栖居的所在,打造泳池、羽毛球场、高端健身、家族私宴、亲子阅读室等私享空间,演绎圈层生活范本。
户型鉴赏
从"精神场域构建"到"大宅场景空间"
建面约230㎡-350㎡低密洋房
联排产品



优势分析
星合晋墅凭借其低容积率(约1.02)和高绿化率(约50%),在城市中打造了一片静谧绿洲。项目融合洋房与院墅两种业态,满足不同家庭需求。双湖之畔的地理位置,既享受自然美景,又毗邻城市繁华。星合控股20余年高端开发经验,确保项目品质与格调。约11亩湖叙SPACE艺术会所,为业主提供专属社交空间,打造圈层生活范本。
随着苏州城市发展的不断升级,双湖区域的价值将持续提升。当前政策利好为改善型住房提供了绝佳入场时机,而星合晋墅凭借其稀缺的低密产品、高端配套和品牌实力,将成为未来苏州高端住宅市场的标杆。随着周边配套的进一步完善和城市东进战略的推进,星合晋墅的居住价值和投资潜力都将得到充分体现,为业主带来理想生活与资产增值的双重回报。
咨询热线:18662309054
声明:本文由入驻焦点开放平台的作者撰写,除焦点官方账号外,观点仅代表作者本人,不代表焦点立场。


