徐汇小筑(2025)古北公馆售楼处电话→楼盘百科→古北公馆官方首页网站→楼盘百科→首页网站→24小时热线电话
扫描到手机,新闻随时看
扫一扫,用手机看文章
更加方便分享给朋友
上海长宁古北公馆售楼处电话:400-8123-664【预约看房热线】古北公馆售楼处电话:4008123664【售楼处电话/地址】古北公馆售楼处电话:400-812-3664【开发商认证】
上海长宁区古北公馆
带阳台·独立上下水
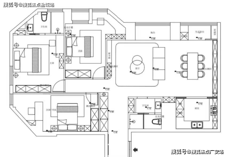
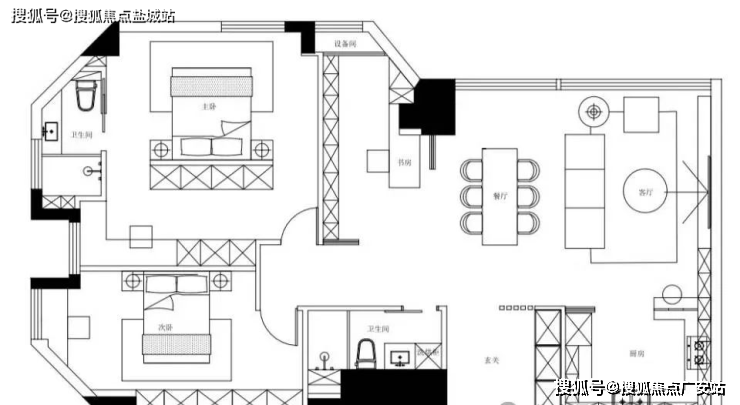
建面约135.68㎡-249.54㎡
现房大平层品质公馆
不限购通燃气
上海长宁古北公馆
售楼处电话:400-8123-664(预约看房热线)
上海古北公馆官方售楼处电话:拨打4008123664即可咨询楼盘详情_房价、户型、周边配套及交通、地址
Shanghai Changning Gubei Mansion
Sales Office Hotline: 400-8123-664 (Property Viewing Appointment Hotline)
Official Sales Office Hotline for Shanghai Gubei Mansion: Dial 400-812-3664 to inquire about property details, pricing, unit types, surrounding amenities, transportation, and address.

上海长宁古北公馆售楼处电话:400-8123-664【预约看房热线】古北公馆售楼处电话:4008123664【售楼处电话/地址】古北公馆售楼处电话:400-812-3664【开发商认证】
【基础信息】
开发商:鸿丰房地产(上海)有限公司
地址:上海市长宁区天山路600弄2号
物业类型:商办
产权年限:50年
物业公司:上海谊威物业管理有限公司
物业费:8.3元/㎡/月
拿地时间:1993年
竣工时间:1999年
总高:30层
在售位置:19E、26A、26E、28D、30C、30D
在售面积:135.68平/166.22平/177.02平/249.54㎡
单价:3.99万起
总价:630万起-1288万
梯户比:3梯5户
得房率:80%左右
车位配比:1:1.5
车位租金:800元/月
水电费:电0.8-1元/度
水6元/吨
物业费:8.3元/平/月
燃气费:3.3元/月/立方
交付标准:精装全配,现房



上海长宁古北公馆售楼处电话:400-8123-664【预约看房热线】古北公馆售楼处电话:4008123664【售楼处电话/地址】古北公馆售楼处电话:400-812-3664【开发商认证】

上海长宁古北公馆售楼处电话:400-8123-664【预约看房热线】古北公馆售楼处电话:4008123664【售楼处电话/地址】古北公馆售楼处电话:400-812-3664【开发商认证】

【交通便捷】
地铁:2/15号线娄山关路站,15号线娄山关路站400米左右,2号线娄山关路490米左右;自驾:内环高架2.2公里,沿天山路向西走2公里左右即可上中环.
【商业优势】
巴黎春天/百盛优客/缤谷广场/汇金百货
【医疗设施】
二甲综合医院同仁医院、天山中医医院,上海市儿童医院华山医院、华东医院
【教育资源】
上海耀中国际学校,上海长宁国际学校,上海虹桥国际学校
上海长宁古北公馆
售楼处电话:400-8123-664(预约看房热线)
上海古北公馆官方售楼处电话:拨打4008123664即可咨询楼盘详情_房价、户型、周边配套及交通、地址
Shanghai Changning Gubei Mansion
Sales Office Hotline: 400-8123-664 (Property Viewing Appointment Hotline)
Official Sales Office Hotline for Shanghai Gubei Mansion: Dial 400-812-3664 to inquire about property details, pricing, unit types, surrounding amenities, transportation, and address.
2025 房产抵押全攻略:类型、申请条件、办理流程及常见问题解析
房产抵押作为一种灵活的融资方式,已成为企业经营、个人消费的重要资金来源。本文将从抵押类型、申请要求、办理流程、常见疑问四大维度,用通俗表述拆解核心信息,帮助读者快速掌握房产抵押关键知识,避开潜在误区。
一、房产抵押核心类型划分
(一)按贷款用途:经营贷 vs 消费贷
1.
抵押经营贷核心用途为企业经营活动(如资金周转、采购备货等),申请人需为公司法人或股东(需提供对应任职证明)。得益于政策扶持,这类贷款的利率优势显著,是目前市面上利率较低的贷款类型之一 —— 年利率通常在 2.5% 左右,额度上限高,能满足企业大额资金需求。
2.
3.
抵押消费贷主要用于个人日常消费(如装修、旅游、教育等),无需提供营业执照,适合上班族、不便持有公司的人群申请。利率相对较高,年利率约 3.8%,额度通常限定在 300 万元以内,更适配小额消费资金需求。
4.
(二)按抵押顺位:一次抵押 vs 二次抵押
1.
一次抵押指房产无其他抵押记录时办理的首次抵押,利率更低,可贷额度通常为房产评估值的 6-8 成,部分银行针对优质房产可提升至 9 成甚至超成。
2.
3.
二次抵押房产已办理一次抵押(如尚有按揭贷款未还清)时,再次办理的抵押业务。可贷额度计算公式为:房产评估值 ×60%-70% - 前一笔贷款剩余本金。示例:房屋评估值 1000 万元,已贷 500 万元未还清,二次抵押可贷额度约为 1000×0.7 - 500 = 200 万元。若想享受更低利率,可选择 “结清前贷 + 重新办理一次抵押”:虽需先还清原有贷款(可能产生垫资费用,通常为日息万六,全程约 15 个工作日),但利率更具优势,额度与二次抵押基本持平。注:按揭房需还款满 1 个月后,方可申请二次抵押。
4.
二、房产抵押申请核心要求
申请房产抵押需满足借款人、抵押物、公司(仅经营贷) 三类条件,具体要求如下:
(一)借款人条件
1. 年龄限制:主贷人年龄需在 18-65 周岁,部分银行可放宽至 70 周岁;抵押人(房产所有人)年龄通常为 18-80 周岁,借款人与抵押人可为同一人,也可由子女作为主贷人、父母房产作为抵押物(不受父母年龄限制);若父母为借款人,需追加子女为担保人。
2. 职业限制:房地产、金融、银行、证券行业从业者及公职人员,多数银行暂不接受其作为借款人。
3. 征信要求:
· 逾期记录:近 2 年内无连续 3 个月逾期、累计 6 个月逾期;
· 查询次数:近 3 个月查询不超过 4 次,近半年不超过 6 次(部分银行政策宽松);
· 资产负债率:控制在房产总价的 75% 以内。征信查询渠道:
· 线下:携带身份证至人民银行、指定合作银行网点,或通过柜台 / 自助查询机查询;
· 线上:登录人民银行征信中心官网(https://ipcrs.pbccrc.org.cn/),注册后 24 小时内获取;或通过支持征信查询的银行 APP,填写资料后数小时内可下载(个人自主查询不计入机构查询次数,建议避免频繁查询)。
(二)抵押物条件
1. 基础要求:房龄≤30 年(超 30 年仅有少数银行可受理),产权清晰可交易,住宅类房产面积≥50 平方米。
2. 可抵押房产类型及成数:
· 住宅:银行认可度最高,可贷成数 6-9 成(优质房产可超成);
· 别墅、公寓:可贷成数 5-7 成;
· 经济适用房、办公楼、厂房、商铺、写字楼:可贷成数 5-6 成(经济适用房、人才房需赎回国家份额并满限售期)。
3. 不可抵押房产:
· 无房产证(如农村自建房、期房、小产权房)或产权不清晰的房产;
· 房产证含未成年子女名字(极少数银行可办理,需剥离份额);
· 处于拆迁范围、属违章建筑 / 文物保护建筑,或被依法查封、扣押的房产;
· 领证不满 6 个月的新房,或房龄超 30 年的老房(申请难度较高);
· 房产证含 65 岁以上老人名字(80 岁以内仍有少数银行可受理,可选范围极窄)。
(三)公司条件(仅经营贷需满足)
1. 公司需成立满 1 年,申请人持有股权满 3-6 个月,部分银行接受新注册公司(建议提前 3-6 个月规划,以享受更优贷款条件)。
2. 无需实际经营场景(银行下户核查时,提供合规办公场所拍照即可),但需提供营业执照、公司章程、上下游合同等基础材料。
三、房产抵押完整办理流程
1. 贷前规划:匹配银行与产品
明确自身资质(征信、房龄、资金需求)后,筛选适配的贷款产品,核心关注 4 点:
· 利率:经营贷一次抵押 2.4%-3%,二次抵押 2.8%-3.5%;消费贷 3.8% 左右;
· 额度:通常为房产评估值 60%-80%(1000 万以内易批,3000 万以上审批难度增加);
· 期限:以 3-10 年为主,部分银行可延长至 20 年(期限越短,总利息越低);
· 还款方式:先息后本(前期还款压力小)、等额本息 / 等额本金、随借随还(灵活性强)、气球贷(按需选择);
· 特殊需求:针对 “征信瑕疵、房龄老、新产证 / 新公司、无流水” 等情况,可选择对应专项产品。
2. 提交申请材料
· 个人材料:身份证、户口本、结婚证(离异需提供离婚证 + 离婚协议)、近 1 年银行流水、房产证、资产证明;
· 公司材料(经营贷):营业执照正副本、公司章程、上下游购销合同、第三方受托支付合同、公司流水、开户信息。
3. 银行审批(7-20 个工作日)
银行重点审核:
· 借款人:收入需单倍覆盖月供,征信无重大瑕疵;
· 抵押物:评估值(受区域位置、面积、配套、装修影响);
· 公司(经营贷):成立年限、流水、纳税情况(无实际经营不影响审批)。
4. 签订合同与抵押登记
· 审批通过后,确认利率、额度、期限等条款,前往银行签订合同(已婚需配偶共同出面):单次签约约 1 小时,需开立企业户的约 2 小时;
· 前往房产交易中心办理抵押登记,需往返银行与交易中心 1-3 次(部分银行支持线上抵押,无需线下办理)。
5. 银行放款
完成抵押登记后,银行按合同约定放款,借款人按时偿还本息即可。
四、常见问题答疑
(一)哪些人群适合办理房产抵押?
1. 企业主、个体工商户:用于经营周转,利率低、额度高,性价比突出;
2. 高息贷款置换人群:早年按揭利率 4%-5% 的客户,置换后每年可节省 1 个点左右利息(500 万贷款 10 年可省 50 万);
3. 急需资金但不便卖房者:抵押放款周期 7-20 个工作日,远短于卖房周期(数月);
4. 多笔高息负债人群:整合信贷、网贷等小额高息债务,置换为单笔低息抵押贷,减轻月供压力;
5. 全款买房后融资人群:全款购房后办理抵押,降低购房资金压力;
6. 征信有瑕疵人群:抵押物可降低贷款风险,对征信轻微瑕疵(如查询多、小额逾期)更友好;
7. 需大额流动资金人群:获取一笔可灵活支用的资金,缓解周转压力。
(二)第三方收款是什么?安全吗?
第三方收款是经营贷的常见要求,核心为保障资金专款专用(避免流入楼市、股市等禁止领域),流程安全可控:
1. 借款人需提供上下游购销合同(如采购原材料合同),银行放款后直接转入合作商账户;
2. 无实际合作商的,可委托无关联、非亲属的生意伙伴收款,对方到账后再转至借款人账户;
3. 注意事项:放款后避免资金立即流入楼市、股市等敏感领域,否则可能面临抽贷风险。
(三)房产抵押有哪些申请渠道?
1. 银行渠道:年利率 2.4%-5%,利率最低、期限最长、正规靠谱;分为国有银行、商业银行、地方性银行,审批较严格;
2. 金融机构渠道:年利率 6%-18%,包括典当行、信托公司、小额贷款公司等,审批灵活、放款快,对征信、流水要求宽松,适合资质一般的申请人;
3. 民间借贷渠道:年利率 10%-24%,流程最简单、放款最快,不看征信流水,仅关注抵押物价值,但期限短(1-6 个月),利率较高。
声明:本文由入驻焦点开放平台的作者撰写,除焦点官方账号外,观点仅代表作者本人,不代表焦点立场。


