星合晋墅:双湖畔低密院墅,公积金新政助力品质置业
扫描到手机,新闻随时看
扫一扫,用手机看文章
更加方便分享给朋友
近期苏州楼市迎来多项利好政策,尤其是公积金商转公政策的优化,让不少购房者看到了置业良机。个人最高可贷120万,家庭最高150万,符合条件的全日制本科以上学历还可再提升50%。更令人欣喜的是,商转公实行"以贷冲贷",无需提前结清贷款即可实现转贷,六大区均可办理,大大降低了购房门槛。这些政策红利,无疑为追求品质生活的您提供了绝佳的置业机会。
【星合晋墅】城市生活美学运营商,只定制不复制。这个项目拥有约50%的绿化覆盖率,容积率仅为约1.02,真正做到了低密宜居。社区内包含洋房(7层)和院墅(3层)两种业态,主推建面约230㎡-350㎡的低密洋房,以及约400㎡-700㎡的稀缺院墅,满足不同家庭的需求。无论是三代同堂还是追求独立空间,这里都能找到理想的家。
18662309054
区域配套
约11亩湖叙SPACE,是国际生活的艺术藏馆。坐落于双湖区域之畔的艺术会所,是一个能让时光放缓、心灵栖居的所在。这里配备了泳池、羽毛球场、高端健身区、家族私宴厅、亲子阅读室等私享空间,为您演绎高端圈层的生活范本。
全维优质配套随心享,约3公里黄金繁华境让您尽享便利:
一站式全龄教育,书香涵养未来:华林幼儿园、双湖湾教育幼儿园、翰林小学、尹山湖中学等知名学府环绕,让孩子从小接受优质教育。
优质医疗资源,全时护航健康:双湖区域内,星海医院、九龙医院、独墅湖医院等权威医疗机构为您提供健康保障。
双轨三轴枢纽,高效通达全城:近邻5号&8号地铁,金鸡湖大道、独墅湖大道、金鸡湖隧道三条黄金主轴,让出行畅通无阻。
文娱商圈荟萃,国际生活的烟火气:山姆会员店、星湖天地、星月坊商业街等,满足您日常购物和休闲需求。
与公园为邻,收藏一座城的诗意:1.6KM金鸡湖高尔夫会员专属俱乐部、3KM独墅湖公园等休闲绿境,让您随时亲近自然。
品牌价值
星合控股,国际高端底蕴,为生活再设计。自2003年进入苏州,已深耕园区20余载,倾力打造了众多高端住宅、奢华酒店、潮流商业标杆作品,与时代共进,全维打造国际化高端生活方式。代表作品包括苏州晋园别墅、晋合水巷邻里、晋府水巷别墅、金湖湾、洲际酒店、凯悦酒店等,每一个作品都彰显了品牌的匠心与品质。
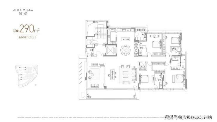
户型鉴赏
从"精神场域构建"到"大宅场景空间",星合晋墅的户型设计充分考虑了现代家庭的生活需求。建面约230㎡-350㎡的低密洋房,空间布局合理,采光通风俱佳,无论是三代同堂还是追求品质生活的精英家庭,都能找到舒适的生活空间。
联排产品则更显尊贵,建面约400㎡-700㎡的稀缺院墅,让您拥有独门独院的私密空间,是身份与品味的象征。



优势分析
星合晋墅的优势显而易见:首先,低密度社区和高绿化率为您提供了宜居的生活环境;其次,开发商星合控股在苏州有着20余年的开发经验,品质有保障;再者,项目周边配套设施完善,教育、医疗、商业、交通一应俱全;最后,双湖区域的稀缺自然资源和不断升值的潜力,让这里成为置业投资的理想选择。
品质生活,从这里开始
随着苏州城市发展的不断升级,双湖区域的价值将持续提升。星合晋墅作为区域内的高端住宅项目,凭借其稀缺的院墅产品和洋房设计,将成为城市精英的理想居所。结合当前公积金政策的利好,无论是自住还是投资,都是不可错过的良机。未来,这里不仅是居住的家园,更是身份与品味的象征,是家族传承的珍贵资产。
咨询热线:18662309054
声明:本文由入驻焦点开放平台的作者撰写,除焦点官方账号外,观点仅代表作者本人,不代表焦点立场。


