2025年关注!四代宅扎堆!超高层也来了!高铁新城供应盘点
扫描到手机,新闻随时看
扫一扫,用手机看文章
更加方便分享给朋友
伴随着中建丨熙辰上院和龙湖未来御湖境的取证,目前高铁新城也就只剩下一个纯新盘了就是,拿地两年多的高融置业高铁新城65号地块,不过好在最近板块内2024年有新地块出让,这两个项目的详细情况来看:
高融置业65号地块
高融置业65号地块项目,即,苏地2021-WG-65号地块,位于相城区高铁新城水景路西、富翔路南,是2021年11月24日,高融置业以底价32162万元竞得,成交楼面价1244元/平。
咨询热线:18662309054

项目的地块用途为商住混合用地,占地面积51691平,容积率5.0。根据要求,其住宅部分为公寓式住宅,且平均建筑高度需满足100米以上,住宅装标为2500元/平。
平面图上来看,项目将打造一栋50F超塔,为办公和酒店和5栋45F住宅。
项目在最近发布了规划变更!
从变更说明来看,变化还是比较大的,其中比较明显的就是部分楼层增加了空中庭院,部分立面也由玻璃变更为铝板+玻璃+金属等!总的来说,品质感上升了,部分楼层也变成了第四代住宅!
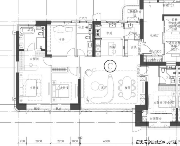
最新公示了1#10层平面图。
1#10层规划户型
此前公示的是2#的平面图,一梯两户设计,只有种4房2卫设计。

4房2厅3卫

4房2厅3卫设计,中西双厨,南向约6米大横厅,主卧开间3.8米,带独立衣帽间和双台盆+浴缸的浴室,南次卧带封闭阳台和独立卫生间。
根据此前官宣,该项目将由CDL新加坡城市发展集团打造。这也是丰隆城市中心的开发商。
从官方发布的消息来看,丰隆超高层综合体项目位于苏州高铁新城中部片区,由新加坡丰隆集团子公司新加坡城市发展有限公司开发建设,计划总投资30亿元人民币,集高端酒店、写字楼、住宅于一体,其中包括一座高度约280米的超高层建筑。项目预计于2029年初完工,致力于建设成为苏州高铁新城的新地标。

苏地2024-WG-Z25号
竞得房企:江苏汇欣鑫房地产开发
成交总价:80249万元
成交楼面价:11369元/平
溢价率:0%
地块位置:相城区高铁新城吴韵路东、陶村街北
地块用途:城镇住宅用地、商务金融用地
地块面积:29411平
地块容积率:1-2.4
声明:本文由入驻焦点开放平台的作者撰写,除焦点官方账号外,观点仅代表作者本人,不代表焦点立场。


