项目地址:中国·苏州·狮子山狮子山澜庭采用日式公寓的风格,整体颜色以简单朴素的深灰色为主,搭配立面面砖,与苏州博物馆西馆的建筑风格遥相呼应。丨一梯两户,3+1开间朝南,南向面宽13.5米,横厅6.2米丨一梯两…
狮山村红盘!狮子山澜庭/澜院
剩余底复现房销售中
狮子山澜庭/澜院
咨询热线:18118152573【同微信】
提前预约看房,中介勿扰

项目基础档案7
项目名称:狮子山澜庭/院(俗称狮山村地块)
项目地址:中国·苏州·狮子山
开发品牌:仁恒 X 华发 X 苏高新
地块指标:总建约24万方,容积率1.27,综合楼面价25094元/㎡
社区规划:东区狮子山澜庭1-26幢,西区狮子山澜院27-37幢
住宅指标:37栋6-8F洋房组成,共674套
户型配置:建面168-190-228㎡洋房宽居,约450-650㎡澜墅产品
车位配比:车位1682个,车位比达到1:2.5
物业服务:仁恒物业,物业费4.25元/平/月
备案均价:一期39500元/平、二期41500元/平、三期43100元/平
交付信息:2023.03狮子山澜院交付;2023.06狮子山澜庭交付
狮子山澜庭

△项目效果图
地段——【新区正核 狮子山前】
1、新区核心 绝版地段:
狮山板块为高新区金融核心板块,聚集了大量的金融机构写字楼及高档住宅,是高新区现代化都市形象的展示区,也是高新区的城市名片。

2、人文荟萃 城市地标:
苏州狮山文化广场是一个将公共文化、科技设施融入开放性山水公园的文化广场。广场包括苏州博物馆西馆、苏州科技馆·工业展览馆、艺术剧院、地下空间和狮山公园5个子项目。目前,计划将狮山全域打造成开放式城市会客厅,文旅科商融合发展的城市公共科学文化中心,成为未来苏州城市的新名片、新地标。


3、咫尺商业 尽享繁华:
项目紧邻龙湖天街、金鹰国际、泉屋百货、美罗、淮海街、香格里拉酒店、日航酒店等商业综合体及高端酒店。百万方的综合体可尽享一站式消费,吃、喝、玩、乐、休闲、购物、度假的需求在这里都可以满足。

4、全龄教育 优质医疗:
狮山实验小学、新区实验中学、新区一中、苏州外国语学校等8大名校环绕,沐浴知识的滋养。明基医院、新区人民医院、苏大附二院在侧,守护人生至美时光。

产品——【大师合著 驭领狮山】
1、狮山正席 低密藏品
仁恒与华发,各自享誉苏州豪宅市场。在苏深耕数年,精雕细琢的一丝一缕都是品质的代名词。两大巨匠,于时代高处握手。以约1325亩真山水作衬,合力铸造稀世之珍的狮山正席,献映苏州一部大师级低密藏品。
△项目效果图

△项目实景图

2、极简立面 东方风范
狮子山澜庭采用日式公寓的风格,整体颜色以简单朴素的深灰色为主,搭配立面面砖,与苏州博物馆西馆的建筑风格遥相呼应。同样延续了江南文化的缂丝立面,城市地标和人居地标和谐共鸣,没有繁杂的工序,只为呈现理性而有序的居住态度。

△项目实景图
3、大师基因 限量墅居
景观设计团队是由贝尔高林操刀,东方文化智慧结合西方先进理念,国际化的造景水准,呈现出依山就势的独特狮山景观表达。移步其中,一种空灵简朴的松弛感迎面而来,自然环境与园林的静谧平衡的恰到好处,呈现出一种自然而然的状态。

△项目实景图
户型——【洋房宽居 & 澜墅产品】
1、洋房户型,精装交付(168/190/228平)
约168㎡ 4房2厅2卫

丨一梯两户,3+1开间朝南,南向面宽13.5米,横厅6.2米
丨主卧套房设计,独立衣帽间,主卫带浴缸,南次卧开间3.4米
丨外卫干湿分离,厨房L型,带家政间,连接一个北向小阳台
约190㎡ 4房2厅3卫

丨一梯两户,3+1开间朝南,南向面宽15米,横厅7.1米
丨主卧套房设计,独立衣帽间,主卫带浴缸,南向次卧套房
丨南北双阳台,带家政间,洄游式动线
约228㎡ 4房2厅3卫

丨巨幅宽境横厅设计,约18m朝南采光面宽,生活空间敞亮通透;
丨双套房卧室,起居间从容自洽;
丨约7m 巨幕阳台,超广角级的瞰景视野,风景在此自由往来。
2、澜墅(洋房底复)地上1层(精装交付)+地下2层(毛坯)
➤打破底复产品的传统设计,创新超大采光井设计;
➤尽可能扩大采光面,将光引入到地下,增加地下空间的通透感和舒适度。
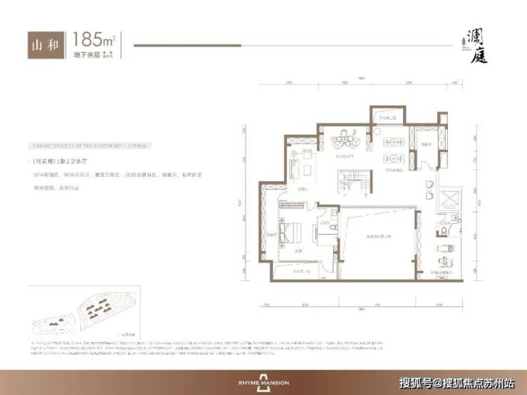
约456㎡ 4+1房2厅4卫



约529㎡ 5+1房2厅5卫



约657㎡ 5+1房2厅6卫



狮山村红盘!狮子山澜庭/澜院
剩余底复现房销售中
狮子山澜庭/澜院
咨询热线:18118152573【同微信】
提前预约看房,中介勿扰
资料来源:该项目笔记为开发商、销售人士创作,