2026新政利好!苏州狮山芯山岚璟庭(山岚璟庭)楼盘全解析-新中式洋房-户型-配套-价格-值不值得买?
扫描到手机,新闻随时看
扫一扫,用手机看文章
更加方便分享给朋友
售楼处电话:400-8800-736;置业顾问:18662309054(微信同号)
最近,楼市传来一个实实在在的利好消息!国家刚刚出台新政,明确从2026年起,个人销售购买满2年的住房将免征增值税。这不仅降低了未来房产交易的成本,也进一步稳定了市场预期,让“房子是用来住的”理念更加深入人心。在这样的政策暖风下,选择一处能够承载长远生活理想的家,显得尤为重要。今天,就带大家走进位于大狮山商务区的 山岚璟庭,看看这座新中式洋房社区,如何将政策利好与品质生活完美结合。

一座生长在狮山芯的东方雅居
项目地址:苏州高新区枫桥街道华山路北、朝红路西
开发品牌:苏高新地产
社区规划:11栋8-10层纯洋房,仅411户
户型面积:约105㎡三房、约148㎡四房
交付标准:全屋精装,配齐三大件
容积率:仅1.2,绿地率约37%
车位配比:高达1:1.6
物业:新永物业
预计交房:2025年6月
山岚璟庭售楼处电话:400-8800-736;置业顾问:18662309054(微信同号)
区域配套:繁华与静谧,在此一键切换
住在这里,生活有多方便?一句话概括:出则繁华,入则宁静。
交通四通八达:门口就是有轨电车1号线(白马涧生态园站),规划中的轨交9号线也值得期待。何山路隧道、北环太湖大道、中环西线组成立体路网,开车去哪都快捷。
商圈环抱左右:从家门口的马涧商业街,到绿宝广场、龙湖狮山天街、金鹰、美罗等大型商场,吃喝玩乐购的需求全能满足。
坐拥天然氧吧:背靠高景山公园,毗邻大阳山国家森林公园、天平山,国家级4A景区白马涧龙池、苏州乐园等都在不远处,周末遛娃、徒步登山说走就走。
教育与医疗无忧:周边有苏州外国语学校、白马涧小学、景山中学等优质教育资源,以及高新区人民医院、科技城医院、明基医院等多家医院保驾护航。
品牌价值:苏高新匠造,演绎新中式美学
作为苏州本土国企标杆,苏高新地产这次在 山岚璟庭 上倾注了满满匠心。
社区采用经典的新中式建筑风格,线条大气舒展,金属挑檐显得格外精致。整个楼盘全是8-10层的低密洋房,楼间距开阔,采光和通风特别好,住起来非常舒服。
园林设计更是讲究,借鉴了苏州古典园林的“晋”风山水意境,打造了“一轴八景”。归家路上有三重礼序,仿佛穿越一座东方雅致门庭,每天回家都充满仪式感。
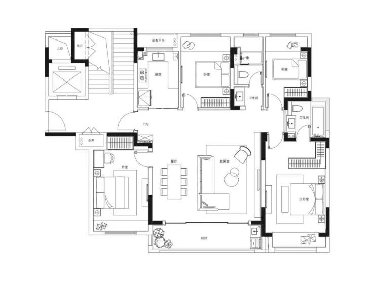
户型鉴赏:阔尺空间,装标惊艳
房子好不好,关键看户型。山岚璟庭 目前主打两款经典户型:
建筑面积约105㎡三房两卫:功能齐全,布局紧凑,是精英家庭或改善首选的理想户型。
建筑面积约148㎡四房两卫:尺度阔绰,大面宽设计让室内充满阳光,套房式主卧带独立卫浴,私密性极佳,充分满足多代同堂或品质改善的需求。
优势分析:细节之处,见证品质
除了好看的“皮囊”,山岚璟庭 更有实在的“里子”。
全龄友好社区:专门规划了儿童游乐区、青年健身跑道和长者休闲花园,让家里每个人都能找到属于自己的活动空间。
一线品牌精装:交付标准堪称“豪华套餐”:东芝中央空调、松下新风、威能地暖全屋标配;厨房用欧派橱柜、老板灶具;卫浴则是汉斯格雅花洒和杜拉维特马桶……真正实现拎包入住,省心省力。
山岚璟庭售楼处电话:400-8800-736;置业顾问:18662309054(微信同号)
与未来共生长,安放一生的诗意栖居
在房产政策日益鼓励长期持有、回归居住本质的今天,选择一套房子,更是选择一种未来生活方式。山岚璟庭 所呈现的,不仅仅是一处居所,更是一个融合了狮山发展红利、自然生态资源与东方人文意境的“都会桃源”。
低密的纯洋房社区,确保了居住的舒适与私密;国企的精工品质,给予了长久的安心保障;而满2年免增值税的政策前景,则让这份资产的选择更具长远眼光。在这里,孩子的童年有山野相伴,长辈的晚年有花园可憩,你的事业与繁华咫尺之遥,生活却能与诗意比邻。
这或许就是我们在城市中寻觅的理想答案:让家成为可以生长、可以珍藏、并与未来价值同行的一生之选。
山岚璟庭,敬候您的品鉴。
声明:本文由入驻焦点开放平台的作者撰写,除焦点官方账号外,观点仅代表作者本人,不代表焦点立场。


