沁沄居|园区东纯新盘案名!联排+洋房!容积率仅1.02
扫描到手机,新闻随时看
扫一扫,用手机看文章
更加方便分享给朋友
园区东甪直板块又来纯新盘了,苏地2024-WG-Z23号地块项目在最近正式公开了案名,为沁沄居!
项目产品来看,还是非常亮眼的,3F联排别墅为主,整体容积率只有1.02,这在整个板块也是比较少的!
详细情况来看:
规划已曝!墅类为主
沁沄居,即,苏地2024-WG-Z23号地块项目,位于吴中区甪直镇甫澄路西侧、南沙路南侧,是2024年10月18日,斜港置业&甪直房地产以底价54373万元竞得,成交楼面价12000元/平。

该项目的地块用途为城镇住宅用地,占地面积44422.4平,总建筑面积82546.09平,计容建筑面积45310.85平,容积率1.02
根据规划,项目拟建建26栋住宅,其中,18栋3F住宅、8栋6F住宅。
咨询热线:18662309054
1,该项目位于吴中区甪直板块,也是板块内的限定款之一;
2,该项目的容积率为1.02,为纯低密的住宅项目;‘
3,项目的产品为叠墅和联排,以联排为主;从位置来看,南低北高;
4,根据要求,住宅的外立面为金属板材、石材、真石漆等中高端建材,项目的品质是较为高端;
5,住宅单套户型面积不得低于140平,这是一个纯改善的住宅社区;
6,项目的住宅建筑总层数6层以上的须按照不低于2000元/平标准进行前期装修,6层及6层以下的毛坯交付;
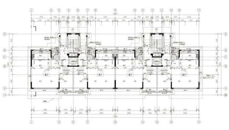
规划户型



周边界面
沁沄居,即,苏地2024-WG-Z23号地块项目,位于吴中区甪直镇甫澄路西侧、南沙路南侧,位置上来说属于甪直板块。
周边界面来看,北面和东面都是住宅小区
周边配套来说,在板块来看也是比较齐全的了。
交通上,目前甪直还没有正式的轨交规划,所以日常出行主要还是依赖自驾。
地块东面就是甫澄中路,往北连接鸣市路,甪直大倒,其中甪直大道往东直接连接金鸡湖大道,去往园区还是比较快的。
南面的话,靠近沪常高速,西面靠近甪直枢纽,往北就是常嘉高速,也是比较方便的。
商业上面来看,北面有安逸生活广场和万嘉生活广场,南面有甪直龙潭农贸市场,此外西北面还有南山维乐城和阳光城丽景湾生活广场,都已经开业了,而且在甪直来说算是比较大的商业配套了。
教育设施上来看,南面有甪直高级中学,北面有甫里中学,西面有人民教育出版社附属实验小学。

房价会新高吗?
甪直作为近园区板块,其实曾经真实的火过,南山维拉甚至出现过连夜排队的景象。但是这几年,板块也是渐渐沉寂了下去,一方面是板块供地比较少,区域内新房项目的减少导致,另一方面也与板块房价的抬升有关,目前板块内新房备案均价基本都在2W以上,而且大多是100平以上。
项目周边项目来看:
旭辉和风:楼面价11217元/平,备案均价22840元/平;
印江南:楼面价11567元/平,备案均价22423元/平;
湖东未来:楼面价11627元/平,备案均价22693元/平;
大境公园时代:楼面价12448元/平,备案均价22500元/平;
东方云境:楼面价12876元/平,备案均价22263元/平;
万盛江南:楼面价11932元/,备案均价29089元/平;
今年板块内也是有项目入市的吴风宸樾府正式取证,备案均价2.7W!
沁沄居项目成交楼面价12000元/平,仅从楼面价来说,算是板块这几年入市项目中的中等。不过板块此前都是以小高层和高层类产品为主,这是比较少见的墅类产品,会有新高出现吗?
咨询热线:18662309054
声明:本文由入驻焦点开放平台的作者撰写,除焦点官方账号外,观点仅代表作者本人,不代表焦点立场。


