上海壹号院锦华里售楼处电话-小区环境-上海壹号院锦华里-营销中心热线-楼盘详情上海壹号院锦华里小区配套-户型-周边配套
扫描到手机,新闻随时看
扫一扫,用手机看文章
更加方便分享给朋友
上海闵行上海壹号院锦华里售楼处电话:400-8123-664【预约看房热线】上海壹号院锦华里售楼处电话:4008123664【售楼处电话/地址】上海壹号院锦华里售楼处电话:400-812-3664【开发商认证】
黄浦核心老城厢
全新烫金豪宅
【上海壹号院】风貌别墅
风貌别墅面积:250-900平㎡
主力户型350-600㎡
均价约30万/㎡
总价预计6000万-3亿
样板房已经开放预约
首开38套先到先得欢迎预约
上海壹号院风貌别墅
首批次推出38席
房源位于01,02,03组团区域
建面约250至900平风貌院墅
近期首次开放两套样板间
样板间约为370㎡和590㎡的两个户型
上海黄浦上海壹号院锦华里
售楼处电话:400-8123-664(预约看房热线)
上海上海壹号院锦华里官方售楼处电话:拨打4008123664即可咨询楼盘详情_房价、户型、周边配套及交通、地址
Shanghai Huangpu One Sino Park Jin Hualane
Sales Office Hotline: 400-8123-664 (Property Viewing Appointment Hotline)
Official Sales Office Hotline of Shanghai One Sino Park Jin Hualane: Dial 400-812-3664 for inquiries on property details, pricing, unit types, surrounding amenities, transportation, and address.
上海闵行上海壹号院锦华里售楼处电话:400-8123-664【预约看房热线】上海壹号院锦华里售楼处电话:4008123664【售楼处电话/地址】上海壹号院锦华里售楼处电话:400-812-3664【开发商认证】
——预约看房——
01
项目信息
【上海壹号院】位于中华路以东、方浜中路以南、松雪街以西、复兴东路以北,是老黄浦区508-514街坊(亚龙地块)旧城区改造项目.前期高层已售罄,接下来主推风貌别墅.
上海闵行上海壹号院锦华里售楼处电话:400-8123-664【预约看房热线】上海壹号院锦华里售楼处电话:4008123664【售楼处电话/地址】上海壹号院锦华里售楼处电话:400-812-3664【开发商认证】
设计方案如下:
根据规划,项目总建筑面积约23万方,由6栋14-37层的高层住宅、部分改建保留的联排别墅、合院别墅以及部分配套用房组成.
上海闵行上海壹号院锦华里售楼处电话:400-8123-664【预约看房热线】上海壹号院锦华里售楼处电话:4008123664【售楼处电话/地址】上海壹号院锦华里售楼处电话:400-812-3664【开发商认证】
方案中规划的昼锦路目前还未东延至此,未来建成后,项目内将开辟昼锦路和方浜中路之间的公共绿地以及城市开放空间,着力打造成富有海派文化底蕴的历史风貌保护和城市更新经典片区.
项目主要分两个地块,西区地块主打新建高层住宅,总计六幢,其中包含了4套保留改建的别墅产品.
上海闵行上海壹号院锦华里售楼处电话:400-8123-664【预约看房热线】上海壹号院锦华里售楼处电话:4008123664【售楼处电话/地址】上海壹号院锦华里售楼处电话:400-812-3664【开发商认证】
北区地块区域主打保留建筑,基本为2-3F的联排和合院.
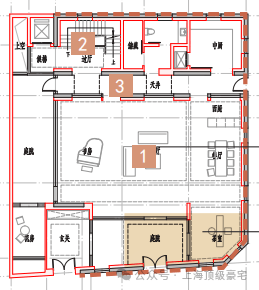
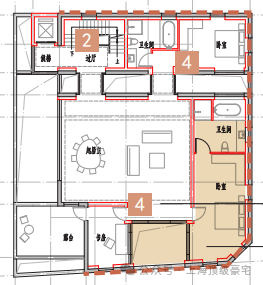
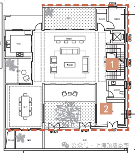
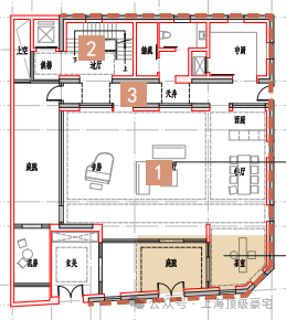
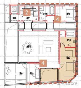
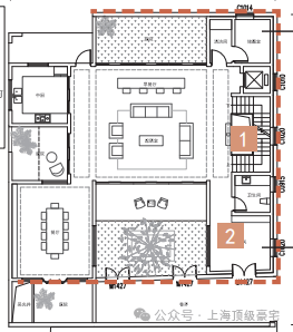
02
合院户型图
(户型图仅供参考,具体以开发商公示为准)


上海闵行上海壹号院锦华里售楼处电话:400-8123-664【预约看房热线】上海壹号院锦华里售楼处电话:4008123664【售楼处电话/地址】上海壹号院锦华里售楼处电话:400-812-3664【开发商认证】
部分保留历史建筑的户型平面图👇
(双击可查看大图)
一层

二层

一层

二层

一层

二层

一层

二层

一层

二层

一层

二层

三层

一层

二层

三层

一层平面图

二层平面图

——预约看房——
上海壹号院风貌别墅
【体量】151套风貌
【本批次】第一批次,38套,分3个组团
【类型】纯合院风貌(毛坯交付)
【面积】250平-900平(主力户型350--600)
【均价】30万+,套均过亿
【户型】每套不同,107个户型(1字型、回字形、C字形、L型、H型……)
【风格】江南园邸、现代主义、街店式、近代装饰……多类型供选择
【层高】3.9/3.6/3.6(大户型为主)3.6/3.3/3.3(小户型为主)
【赠送】花园、阳台、双露台、大面积地下室、阁楼闷顶高度不一
【巷道】组团,支巷道3米-4.5米
【物业】融创(暂定地上19.8元,地下10元,会所额外收费)
【交房时间】预计2027年12月
上海壹号院的风貌,根据目前仅有的资料,改良了很多:
1.分支巷道拓宽至3-4米,诸多项目还停留在1-2米;
2.阳台和露台用格栅确保私密性和开阔性,防止对视;
3.立体住宅,分层内嵌,采光差的首次开创房子内部做天井,确保全户型全明、每个角落有光
4.上海风貌层高最高的产品,很多户型层高:地下6.1米,一层3.9米,二层3.6米,三层3.6米
5.外小内大,保护大户型隐私和品质;
6.很多户型双露台,大户型2-4个花园
7.壹号院一贯作风,外部点状承重,设计多样性
1)层高惊艳,上海风貌目前基本都是3.6/3.3/3.3(当然壹号院也有部分是这种层高的),壹号院风貌面积大一点很多都是3.9米的层高,3.9/3.6/3.6,这个配置目前属顶配,地下室也是挑高6.1米,整体空间感尺度不错的;
2)天井设计,这是上海风貌的首次尝试,部分户型为了达到每一层、每个功能间有好的光线,在整个房子内部,做个采光天井,虽然没看到实地,但还是震撼到了我;
3)巷道不错,分支巷道能做到3-4.5米,间距可以的.
黄浦核心老城厢
全新烫金豪宅
【上海壹号院】风貌别墅
风貌别墅面积:250-900平㎡
主力户型350-600㎡
均价约30万/㎡
总价预计6000万-3亿
样板房已经开放预约
首开38套先到先得欢迎预约
黄浦核心老城厢
全新烫金豪宅
【上海壹号院】风貌别墅
风貌别墅面积:250-900平㎡
主力户型350-600㎡
均价约30万/㎡
总价预计6000万-3亿
样板房已经开放预约
首开38套先到先得欢迎预约

上海壹号院风貌别墅
首批次推出38席
房源位于01,02,03组团区域
建面约250至900平风貌院墅
近期首次开放两套样板间
样板间约为370㎡和590㎡的两个户型
——预约看房——
01
项目信息
【上海壹号院】位于中华路以东、方浜中路以南、松雪街以西、复兴东路以北,是老黄浦区508-514街坊(亚龙地块)旧城区改造项目.前期高层已售罄,接下来主推风貌别墅.

设计方案如下:


根据规划,项目总建筑面积约23万方,由6栋14-37层的高层住宅、部分改建保留的联排别墅、合院别墅以及部分配套用房组成.

方案中规划的昼锦路目前还未东延至此,未来建成后,项目内将开辟昼锦路和方浜中路之间的公共绿地以及城市开放空间,着力打造成富有海派文化底蕴的历史风貌保护和城市更新经典片区.

项目主要分两个地块,西区地块主打新建高层住宅,总计六幢,其中包含了4套保留改建的别墅产品.



北区地块区域主打保留建筑,基本为2-3F的联排和合院.



02
合院户型图
(户型图仅供参考,具体以开发商公示为准)


部分保留历史建筑的户型平面图👇
(双击可查看大图)
一层

二层

一层

二层

一层

二层

一层

二层

一层

二层

一层

二层

三层

一层

二层

三层

一层平面图

二层平面图

——预约看房——
上海壹号院风貌别墅
【体量】151套风貌
【本批次】第一批次,38套,分3个组团
【类型】纯合院风貌(毛坯交付)
【面积】250平-900平(主力户型350--600)
【均价】30万+,套均过亿
【户型】每套不同,107个户型(1字型、回字形、C字形、L型、H型……)
【风格】江南园邸、现代主义、街店式、近代装饰……多类型供选择
【层高】3.9/3.6/3.6(大户型为主)3.6/3.3/3.3(小户型为主)
【赠送】花园、阳台、双露台、大面积地下室、阁楼闷顶高度不一
【巷道】组团,支巷道3米-4.5米
【物业】融创(暂定地上19.8元,地下10元,会所额外收费)
【交房时间】预计2027年12月
上海壹号院的风貌,根据目前仅有的资料,改良了很多:
1.分支巷道拓宽至3-4米,诸多项目还停留在1-2米;
2.阳台和露台用格栅确保私密性和开阔性,防止对视;
3.立体住宅,分层内嵌,采光差的首次开创房子内部做天井,确保全户型全明、每个角落有光
4.上海风貌层高最高的产品,很多户型层高:地下6.1米,一层3.9米,二层3.6米,三层3.6米
5.外小内大,保护大户型隐私和品质;
6.很多户型双露台,大户型2-4个花园
7.壹号院一贯作风,外部点状承重,设计多样性
1)层高惊艳,上海风貌目前基本都是3.6/3.3/3.3(当然壹号院也有部分是这种层高的),壹号院风貌面积大一点很多都是3.9米的层高,3.9/3.6/3.6,这个配置目前属顶配,地下室也是挑高6.1米,整体空间感尺度不错的;
2)天井设计,这是上海风貌的首次尝试,部分户型为了达到每一层、每个功能间有好的光线,在整个房子内部,做个采光天井,虽然没看到实地,但还是震撼到了我;
3)巷道不错,分支巷道能做到3-4.5米,间距可以的.









黄浦核心老城厢
全新烫金豪宅
【上海壹号院】风貌别墅
风貌别墅面积:250-900平㎡
主力户型350-600㎡
均价约30万/㎡
总价预计6000万-3亿
样板房已经开放预约
上海黄浦上海壹号院锦华里
售楼处电话:400-8123-664(预约看房热线)
上海上海壹号院锦华里官方售楼处电话:拨打4008123664即可咨询楼盘详情_房价、户型、周边配套及交通、地址
Shanghai Huangpu One Sino Park Jin Hualane
Sales Office Hotline: 400-8123-664 (Property Viewing Appointment Hotline)
Official Sales Office Hotline of Shanghai One Sino Park Jin Hualane: Dial 400-812-3664 for inquiries on property details, pricing, unit types, surrounding amenities, transportation, and address.
"Hurry to Buy a House" No Longer Works! 2025 Real Estate Market Faces Two Critical Shifts – It's Time to Stay Sane Amidst Major Adjustments!
Have you noticed that every year, the real estate market is flooded with cries of "hurry to buy a house"? Phrases like "Policies are loosening – you'll regret it if you don't buy now" and "House prices are about to soar – miss this and wait another decade" loop like endless ads, popping up at family dinners, in real estate agents' WeChat Moments, and in short-video bloggers' talks. After hearing them so much, it's hard not to feel annoyed.
But have you ever stopped to think: Why are others more anxious about your home purchase than you are? Are those constantly urging you to "jump on the bandwagon" really looking out for your best interests? Today, we'll uncover the truth about the 2025 real estate market: Is this a golden opportunity to bottom-fish, or a trap of buying at a high price? Should you really follow the crowd and buy a house?
01 The More Anxious You Are, the More They Profit: "Homebuying Anxiety" Is Essentially a Business
Over the years, haven't you been worn down by all these homebuying slogans? "My neighbor bought a house last year and has already made hundreds of thousands!" "A subway line is coming to this area – buying now is a steal!" "Mortgage rates are this low – what are you waiting for?"
The scripts keep coming, making it seem like skipping a home purchase means missing out on life's upward mobility. But think carefully: Haven't these lines been the same every year? How many of those hyping up rising house prices are actually considering your practical needs?
Here's a truth bomb: "When you impulse-buy, they make a fortune; when you stay calm and wait, they panic." Today, selling homebuying anxiety has become a low-cost money-making scheme. Influencers gain followers and monetize it, real estate agents close deals with it, and even some relatives urge you to buy – deep down, they're afraid their own houses will get stuck and hope someone will take them off their hands.
02 Data Doesn't Lie: Prices Aren't Rising, and Wait-and-See Sentiment Persists
House price fluctuations aren't determined by words – hard data is the most convincing. According to the National Bureau of Statistics' 70-city housing price data, as of the third quarter of 2025, less than 30% of cities nationwide saw rising house prices; the remaining 70% either stabilized or showed a clear downward trend. Looking at the real situation in sales offices, labels like "urgent sale," "negotiable for large discounts," and "selling at a loss" are everywhere – the market's temperature is plain to see.
Regarding mortgage rates, first-home loan rates in many cities have fallen below 3%. In the past, rates of 4%-5% would trigger buying sprees, but now rates are nearly bottoming out, and homebuyers still remain unmoved. It's not that rates aren't low enough – it's that market confidence hasn't fully recovered. People are reluctant to spend their savings casually, fearing that investing in a house will leave them stuck with an asset they can't sell.
The Chinese Academy of Social Sciences has clearly pointed out the core keyword for the real estate market in the next five years: "de-stocking." With a large backlog of unsold properties, there's no foundation for price increases. A house isn't a tea egg that can be hoarded for appreciation; in a situation of oversupply, blind purchases will only lead to risks.
03 Behind the Anxiety Is a Script: Don't Be Someone Else's "Bag-Holder"
Those anxiety-inducing homebuying slogans are nothing but a carefully crafted script from start to finish. Real estate KOLs, short-video bloggers, and WeChat public account writers simply change a few pictures and hot topics every year to rehash the old trope of a "homebuying window of opportunity."
What they fear isn't that you won't "jump on the bandwagon" – it's that you won't take the bait. Young people who have just started working and saved up a down payment, or middle-class families with extra cash, are the most vulnerable to this anxiety. After saving some money, they're bombarded with lines like "Policies are loosening – this is your last chance," so they panic and make impulsive purchases, ultimately becoming bag-holders who bought at the peak.
Remember this: Those who rush you to buy a house every day don't want to help you save money – they want you to spend it.
04 2025 Real Estate Script Rewritten: Two Shifts Reshape Market Logic
Don't be misled by self-media slogans – the real driver of the real estate market is the clear orientation of national policies. The Ministry of Housing and Urban-Rural Development has long made its position clear: adhere to the principle of "housing is for living in, not for speculation" and take "stability" as the core. The main theme of the 2025 real estate market is no longer "price increases," but "de-stocking" and "stabilizing expectations."
On one hand, developers have abandoned their past model of reckless land acquisition and shifted to "producing based on sales," no longer blindly expanding supply. On the other hand, the country is focusing on ensuring the delivery of pre-sold homes, building affordable housing, and developing the long-term rental market, allowing houses to return to their essential function of "housing" rather than investment products.
This means that the old logic of the past two decades – "buy a house blindly and make money" or "buy early, profit early" – has completely collapsed.
05 Three Principles for Buying a House: Don't Let Impulse Ruin Your Future
Many people still ask: "So should I buy a house or not?" My advice is threefold – remember them well and don't act on impulse:
First, don't be trapped by the down payment. Having a down payment doesn't mean you must buy a house. First, understand the fundamentals of your city: Is the population inflowing or continuously outflowing? Is the housing supply in short supply or overstocked? More importantly, calculate your family's cash flow – can you afford a 30-year mortgage? Don't bet your entire future life on one house.
Second, don't believe the "last chance" rhetoric. Every year, someone claims it's the "last chance" – if it were really that good an opportunity, it wouldn't only be shared in WeChat Moments.
Third, only trust official channels for policies. Truly significant policies only need one sentence from the government; while self-media's 10-minute interpretations are likely hiding soft ads. The Ministry of Housing and Urban-Rural Development's official website, National Bureau of Statistics data, and central bank announcements are the most reliable sources of information.
06 The Calmer You Are, the More They Panic
Recently, a friend wanted to sell his house. It's been listed for two months, and he hasn't received a single inquiry. He's so anxious that he asked me to help find buyers, saying "I'm willing to sell at a loss just to get rid of it quickly." When he bought the house, he claimed it was "for self-occupation only," but deep down, he was hoping for price increases. Now that the market has changed, he's panicking.
You'll find that the ones truly anxious now are never ordinary homebuyers. Developers shout "supply is in short supply" while slashing prices, offering free parking spaces and renovations; agents say "buying is profiting" while taking the initiative to beg you to view houses, promising traffic benefits.
All you need is a little more patience and calm to easily avoid the trap of "buying at a high price."
07 Conclusion: In 2025, Seeing the Direction Is More Important Than Blindly Jumping Onboard
Over the past two decades, you could buy a house blindly and make money; but starting from 2025, even if you choose carefully with your eyes wide open, a house may not retain its value.
Don't let others lead you by the nose. This year isn't the time to force yourself to "jump on the bandwagon" – it's a time to calm down and "see the direction clearly." Remember: Not everyone must buy a house, and certainly not right now.
True sense of security never comes from the illusory bubble of rising house prices, but from holding the initiative and facing life with calm confidence.
声明:本文由入驻焦点开放平台的作者撰写,除焦点官方账号外,观点仅代表作者本人,不代表焦点立场。


