一方水土养育出一方钟灵毓秀,37%水域面积、环伺太湖的鱼米之乡、河湖纵横的江南水乡、星罗棋布的园林院落、数不胜数的名胜古迹、二十六个世界文化遗产,苏州拥有得天独厚、无可复加自然资源和历史文化资源。中心院子不算…
拙政江南别墅_苏州拙政别墅(苏州拙政江南欢迎您)网站首页丨楼盘详情
苏州拙政江南
◆售楼处电话:18118152573【售楼中心】
温馨提示:看房需提前预约,避免临时无人接待,感谢您的配合!

价格:4000万起
面积:797-1064-1309平
占地面积:37909.1㎡
建筑面积:22744.83㎡
容积率:0.60
绿化率:30%
停车位:189(地上1个车位、地下车位188个)
楼栋总数:13栋
总户数:56户
物业公司:中铁建物业
物业费:9.8元/㎡·月


上有天堂,下有苏杭;一语赞叹,流传千年。苏州东临上海,西抱太湖,南接浙江,北依长江,是长江三角洲城市群重要的中心城市之一。一方水土养育出一方钟灵毓秀,37%水域面积、环伺太湖的鱼米之乡、河湖纵横的江南水乡、星罗棋布的园林院落、数不胜数的名胜古迹、二十六个世界文化遗产,苏州拥有得天独厚、无可复加自然资源和历史文化资源。钟灵毓秀、温婉儒雅,这是苏州给外界的最深印象。
而今,在拙政园这尊沉淀了无数历史人物与故事的园林翘楚一巷之隔的土地上,中国铁建·拙政江南项目(备案名:抱拙别墅)落子于此。项目东侧坐落着著名的拙政别墅;朝南紧邻举世闻名的拙政园,同时苏州博物馆及忠王府也在地块南侧;西临苏州档案馆(远眺北寺塔);北靠北园路与苏州平江古城护城河,土地价值不可复制。地块整体面积约37909平方米,容积率0.6,绿地率30%,规划56席中式合院别墅。
拙政江南周边配套
周边直线3km范围内有14个地铁站(北寺塔、察院场、苏州火车站、平河路、临顿路、相门、乐桥、山塘街、苏锦、养育巷、平泷路东、东环路、石路、三元坊),轨道交通发达,距离最近的地铁站是北寺塔。
周边直线1km内有27个公交站,距离最近的齐门站仅有305m,周边公共交通极为便捷。
直线3km范围内有43个幼儿园; 29个小学,如苏州市敬文实验小学校、东中市实验小学校、平江实验学校小学部、苏州市善耕教育集团勤惜实验小学校、平直实验小学等; 28个中学,如江苏省苏州外国语高级中学校、江苏省苏州艺术高级中学、江苏省苏州第一中学、苏州工业园区星港学校(东港校区)、苏州市第三中学等。

中国铁建·拙政江南复兴中国园林美学,汲取吴门画派、八卦等传统文化精髓,将园林景观设计成立体的山水长卷,打造出移步易景,步步皆景,身处其中,宛如天成,营造出”园中有家,家中有园“。“青出于蓝而胜于蓝”,项目在传统文化中推陈出新,重塑经典中传承创新,保留传统坡屋顶举折形式,呈现更加轻盈感的歇山顶与硬山顶;保留传统三段式中式建筑模型,辅以更加通透的视角,更加硬朗的线条,更加简约的层次;保留传统木质与小青瓦的材质、肌理,用吕金、钛锌瓦取代,更精致细腻,传世百年;保留传统滴水瓦意向,呈现更加简化的现代化瓦当形式;室内室外空间的借用和延伸,一院千景,一景万境。中国铁建·拙政江南是国家文物局监管重点保护的项目之一,在中式美学的基础上,探索创新,获得13项专利,运用新材料、新技术在保留传统审美意向的同时,也从现代视角考量,升华材质、构造。在国际上,项目刷新印象,荣膺5项国际权威国际大奖,揽获了“国际住宅建筑大奖 、意大利A‘design awards 、美国金块奖 、MIPIM Awards”等国际奖项,获得行业的认可。同时注重精致社会气质,打造尊贵、清雅、自然极致的居住风格,独处一隅。引用“姑苏留白之美、院落市内外借景、艺术与理实交融”三大设计理念呈现自然与文化的空间,透过空间产生宁静的梦幻,在纯粹的空间中感受生活之美。

中国铁建·拙政江南是由世界500强企业集团中国铁建股份有限公司旗下——中国铁建地产倾力打造。中国铁建地产以“做中国最具价值的美好生活服务商”为使命,秉承“诚信、创新永恒;精品、人品同在”的价值观,传承大国文化,构筑经典作品。中国铁建地产倾力打造中国铁建·拙政江南项目,以复兴中国园林文化为己任,传承中国文化,复兴东方美学,礼敬姑苏,致敬中国。
中国铁建地产匠心营建,紧密围绕“锥体理念”战略,占位核心城市的核心地段,历经多年耕耘,成功打造了“江南系”三大高端产品线——城市大平层的都会雅居系列、兼顾城市繁华和高端低密的江南院子系列以及拥有出色自然环境的度假别院系列。数载砥砺不断登攀,到2019年,已有十二大高端项目美好落地。作为中国铁建地产江南系产品打造的高端住宅现象级IP,中国铁建·拙政江南三年潜心匠筑积淀,倾力营造中国铁建集团的扛鼎之作。

820平别墅样板房
先看了一套820平的样板房,这套是台湾设计大师邱德光作品,拎包入住7000多万。无独有偶,仁恒藕前有套样板房也是邱德光设计的,牛逼的人果然到处发光。
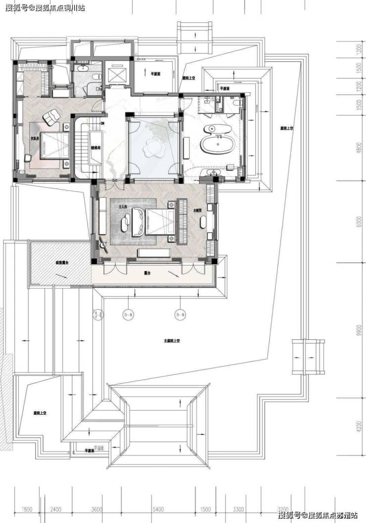
来看看户型(一楼两个卧室+一个茶室+客厅+厨房;二楼两个卧室。因为通风采光设计比较常规,所以地下空间的作用不大):

1F平面图
进门(从北面进门)即可见四水归堂的天井,天井+四面玻璃落地窗,解决了传统中式住宅室内较暗的问题。对于这套房子来说,天井是核心设计元素。

四水归堂的天井

二楼天井是这样的,所有的空间都靠它来补光
虽然中心院子不算大,房子也不是最大,但这套是我觉得设计最均衡的房子,设计者更多的考虑了各家庭成员的平等性和私密性。

客厅大的刚刚好
把中心庭院做小(仍然是整个建筑关系的核心),做出更多的庭院,并将其分散到各个建筑空间处,使园林无处不在。

中心庭院不算大
无论是厨房、餐厅、客厅也好,还是茶室、老人房、客房也罢,要么出门是花园,要么抬头见景色。

餐厨框景

四时茶室(来,干了这一杯)

老人房私属小庭院

老人房的卫生间
老人房自带小庭院以及这么大的卫生间,真的是一个非常尊老爱老的户型。

一楼客房也带小院子
无论你是做饭,吃饭,喝茶,或者一家人待在一起读书撸串,都能见到院子里四时的美景。可谓是:春有百花秋有月,夏有清风冬有雪 。

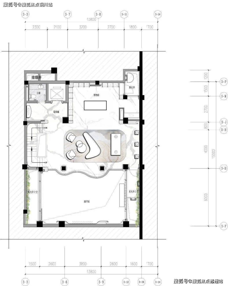
2F平面图

二楼主卧(图片来自设计腕儿)
卧室不能太大,太大了睡觉不踏实。我朋友说太大了不聚气,很有道理。

主卧连接的阳台(阳光明媚春正好)

主卧衣帽间和梳妆台

主卫(大到可以先跑个半马)

二楼公主房也是两面采光

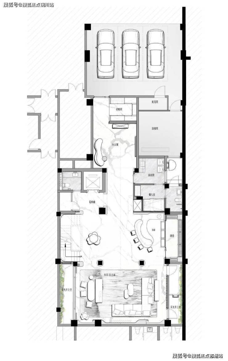
B1平面图
这么大的地下空间,两个小采光井不够用。如果是我来设计这个房子,我会把天井直通到地下一层,这样,地下室中心就敞亮了。另外,把东侧的庭院做成下沉式庭院,并通过外部楼梯和地上庭院连接在一起。

类似这样(中海真没充值)

B2平面图
地下室我没拍,所以就不放图了。很多地下室看起来好看,装修也特费钱,但实际使用的效果要大打折扣。
05
1064平样板房
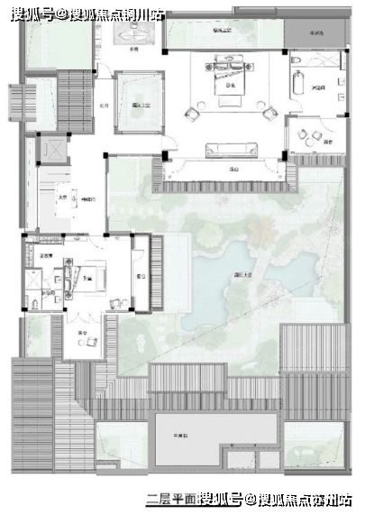
看的第二套别墅是1064平的,拎包入住8000多万。设计理念是围绕中心庭院布局整座建筑。

这套别墅有着比较大的中心庭院
来看看户型图:

除东侧为高墙外,客厅,厨房,卧室,书房围绕着中间的庭院依次展开。通过建筑物三面转折以及中间的小庭院,塑造了各个空间的独立性。

客厅东面老人房观景视野

从客厅赏中心庭院视野

厨房(左侧有小庭院为厨房补光)

视野超棒的餐厅
整个院子的南侧为书房及两个卧室,为了增加这边的日照、改善通风情况,特地在中间设置了3个大小不一的庭院。
各空间虽然相对独立,但又可以通过中心庭院隐隐向望,增强了建筑群落的幽深感。


二楼楼梯处看主卧露台

从二楼次卧俯瞰中心庭院
这套花园大且开阔,再加上独特的建筑风格,给人一种度假酒店的感觉。

这套房子有一个比较明显的缺点:东边是另外一户,另一户的三扇窗子可以观察这一套房子和院子的大部分动静,所以我们看到开发商在院子里种了一棵大树用来遮挡。



总结下:优点是院子大,敞亮,功能空间相对独立,缺点是隐私性不够好。相比于820平户型的均好性,这套将更多的景观和阳光给了主人。从家庭成员居住的平等性角度来看,我更欣赏820平的建筑设计。
拙政江南别墅_苏州拙政别墅(苏州拙政江南欢迎您)网站首页丨楼盘详情
苏州拙政江南
◆售楼处电话:18118152573【售楼中心】
温馨提示:看房需提前预约,避免临时无人接待,感谢您的配合!