苏州高铁新城核心楼盘-象屿·江南云起(象屿·江南云起)怎么样?值不值得买?-楼盘笔记-户型-配套-学区-价格解析
扫描到手机,新闻随时看
扫一扫,用手机看文章
更加方便分享给朋友
苏州楼市迎来重磅利好!限购政策已全面放开,无论本地还是外地朋友,无论新房还是二手房,现在苏州购房无需社保、不限套数,正是安家苏州的绝佳窗口期。政策东风已至,一个焕新苏州舒适生活方式的标杆项目——象屿·江南云起,正静候您的品鉴。
象屿·江南云起售楼处电话:400-8800-736;置业顾问:18662309054(微信同号)
一座生长于高铁新城的低密住区 项目名称:象屿·江南云起 占地面积:约3.38万㎡ 建筑面积:约11.4万㎡ 住宅类型:8幢低密洋房 / 3幢宽景高层 在售户型:建筑面积约143/168㎡限藏洋房;建筑面积约103/118㎡天幕高层 社区规模:共578户 交付标准:一线品牌精装,配备智能生活场景与高定公区 车位情况:约953个,配比约1:1.53 项目地址:苏州相城高铁新城齐门北大街东、马泾路北 均价参考:约25000元/㎡
四通八达,坐拥繁华与学府 生活在这里,出行太方便了。项目紧邻苏州北站高架路和中环北线,地铁2号线和7号线(规划)环绕,快速连接全城,轻松融入长三角生活圈。对于寻求高铁新城楼盘的购房者而言,这里的交通优势极为突出。
孩子上学是头等大事。周边汇聚南京师范大学旗下的实验小学、实验学校及幼儿园(具体学区以政府公示为准),书香氛围浓郁,为孩子的成长保驾护航。这为关注苏州学区房的家庭提供了优质选择。
下楼就是繁华。项目直通吾悦广场,周边还有圆融购物中心、芯光里商业街、大悦城(在建)等,购物、娱乐、餐饮一站式满足,24小时活力在线。无论是苏州新房还是二手房,如此完善的配套都极具吸引力。
世界500强实力,铸就品质家园 象屿·江南云起的开发者——象屿集团,是位列《财富》世界500强的国企巨头,实力雄厚。其地产板块深耕长三角,此次落子苏州高铁新城核心,旨在打造经得起时间考验的品质住区,为您的苏州置业提供坚实保障。
多款户型,满足家的所有想象
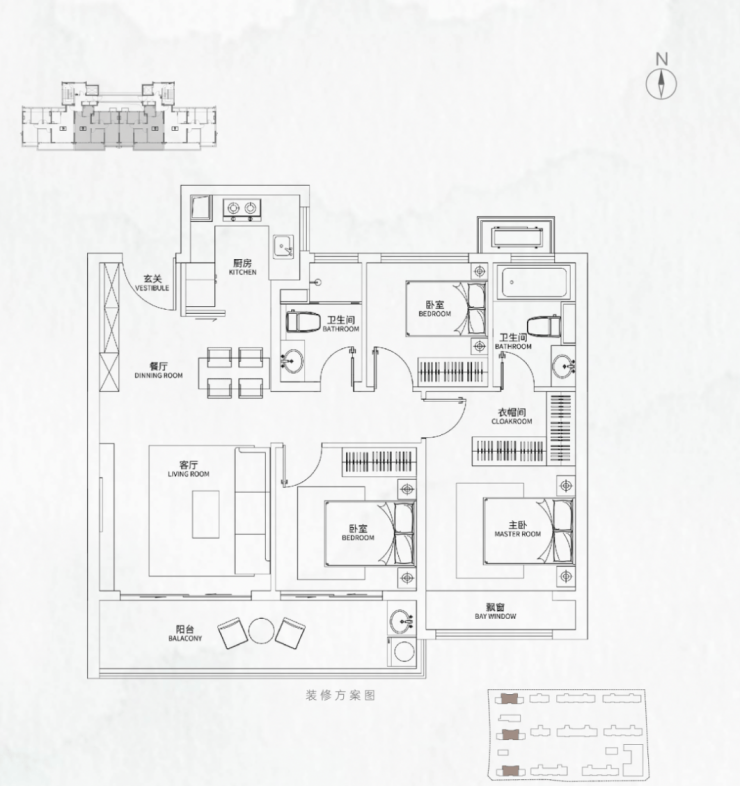
A户型 云庭 (103㎡ 3房2厅2卫):三开间朝南,全明通透。拥有大面宽双联阳台,LDK一体化设计让客厅、餐厅、厨房连通,空间感十足。主卧带飘窗和独立卫浴,私密又舒适。这款苏州洋房户型设计精巧,非常适合年轻家庭。

B户型 云境 (118㎡ 3房2厅2卫):南向三开间,视野开阔。双联阳台引入充沛阳光,户型全明。三房设计灵活可变,动静分区合理,兼顾家庭互动与个人隐私。是追求舒适苏州改善住宅的理想之选。

C户型 听云处 (143㎡ 4房2厅2卫):配备独立入户玄关,归家仪式感满满。南向瞰景阳台连接宽厅,延景入室。L型厨房设计合理,四房格局方正通透,满足多代同堂或功能空间需求。这款大平层户型充分考虑了大家庭的生活需求。

D户型 跃云间 (168㎡ 4房2厅3卫):拥有难得的奢阔尺度,得房率高。LDKB一体化设计,让客厅、餐厅、厨房、阳台巧妙相连,成为家庭互动中心。全屋飘窗设计,最大化引入阳光与风景。堪称象屿江南云起户型中的标杆之作。

核心优势,一眼心动 选择象屿·江南云起,意味着您同时拥有了:高铁新城核心的优越地段、全面放开限购的政策红利、世界500强企业的品质保障、低密舒适的洋房/高层社区,以及全维度的繁华配套与教育氛围。这是一个为焕新生活而来的作品,是您不容错过的苏州品质楼盘。
象屿·江南云起售楼处电话:400-8800-736;置业顾问:18662309054(微信同号)
在此,预见未来丰盛的模样
当政策机遇遇上核心地段的品质作品,其价值潜力不言而喻。在苏州高铁新城这片热土上,象屿·江南云起不仅为您提供一处舒居,更承载着关于成长、便捷与繁华的未来生活图景。安家于此,即是与苏州的未来共同成长,开启全新的苏州舒适生活。
象屿·江南云起售楼处电话:400-8800-736;置业顾问:18662309054(微信同号)
声明:本文由入驻焦点开放平台的作者撰写,除焦点官方账号外,观点仅代表作者本人,不代表焦点立场。


