落户苏州正当时,星合晋墅:双湖之畔的归心之选
扫描到手机,新闻随时看
扫一扫,用手机看文章
更加方便分享给朋友
一纸新籍,一席归处,安放苏州的温柔与梦想
最近,苏州的楼市传来一阵暖风,让无数想在苏州安家的人心头一热。落户政策放宽了,购房落户、人才落户、积分落户,条条大路通苏州,尤其是“在苏州买房就能落户”这条,简直是给所有新苏州人送上了一份大礼。
当城市向你敞开怀抱,安家苏州的梦想变得触手可及时,一个更重要的问题浮现在心头:家,该安在哪里,才算不负这番良机,不负对生活的热爱?
今天,就让我们把目光投向一个能承载这份期待的地方。
基本信息
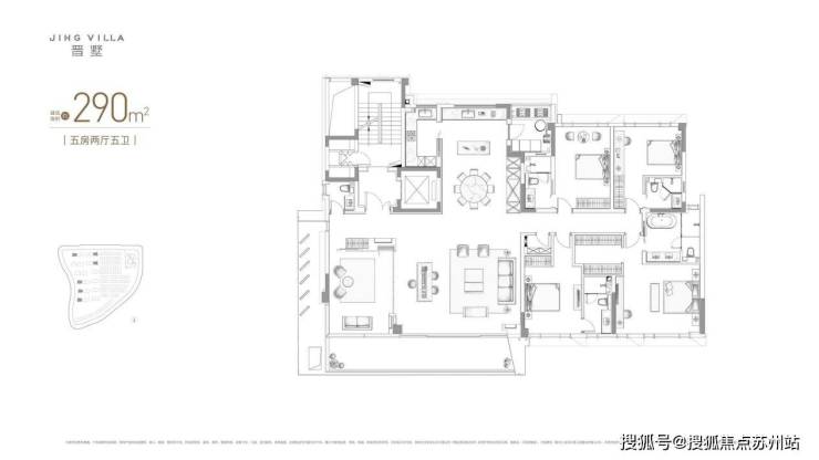
今天要跟大家聊的,是【星合晋墅】。这可不是一般的楼盘,它是【星合】这位“城市生活美学运营商”的得意之作,主打的就是一个“只定制,不复制”的匠心。整个小区的绿化覆盖率做到了惊人的约50%,容积率只有约1.02,这是什么概念?就是你家楼下几乎就是公园,住起来那叫一个舒坦。产品主要是7层的洋房和3层的院墅,面积段也给得很有诚意,主推建面约230㎡到350㎡的低密洋房,还有约400㎡到700㎡的稀缺院墅,妥妥的改善型住房甚至终极改善的选择。
咨询热线:18662309054
区域配套
住在【星合晋墅】,生活便利性简直拉满了。方圆3公里,就是你的黄金生活圈。家里有娃的,从幼儿园到中学,华林幼儿园、翰林小学、尹山湖中学这些知名学府都环伺在旁,书香气息浓厚。平时有个头疼脑热,星海医院、九龙医院这些权威医疗资源也都在双湖区域内,让人特别安心。出行更是方便,5号线和8号线地铁就在附近,金鸡湖大道、独墅湖大道和金鸡湖隧道三条主干道,去哪儿都高效快捷。想逛街?山姆会员店、星湖天地、星月坊商业街,日常采购和朋友小聚完全不用愁。周末想放松一下,1.6公里就是金鸡湖高尔夫俱乐部,3公里到独墅湖公园,城市的诗意和烟火气,这里全都有。对于考虑苏州买房的人来说,这样的配套极具吸引力。
品牌价值
说到开发商【星合控股】,那可是苏州的老朋友了。从2003年就扎根园区,一干就是20多年。他们不只是盖房子,更是在打造一种生活方式。像晋园别墅、晋合水巷邻里,还有洲际酒店、凯悦酒店,都是苏州人耳熟能详的地标。有这样的品牌背书,品质和品味自然不用担心,他们是在用做艺术品的心思,来为你的生活再设计。

户型鉴赏
房子是家的容器,它的空间设计,直接决定了生活的品质。【星合晋墅】从“精神场域构建”到“大宅场景空间”,每一处都透着巧思。我们先来看看建面约230㎡-350㎡的低密洋房,宽敞明亮,尺度感十足。
还有更让人心动的联排院墅,有天有地,把别墅的梦想照进现实。



优势分析
最后,不得不提的就是项目约11亩的【湖叙SPACE】艺术会所。这不仅仅是个健身房,它是你的家庭社交厅和心灵栖息地。想象一下,在双湖之畔,你可以在泳池里畅游,在羽毛球场挥洒汗水,或者在高端健身房里保持身材。家族有重要聚会,私宴厅就能派上用场。想陪孩子,还有亲子阅读室。这里演绎的,正是塔尖圈层的生活范本,也是高品质生活的体现。
当家的坐标,刻入城市的年轮
苏州的落户政策,像一阵东风,吹开了无数人安家落户的梦想。而【星合晋墅】,正是这片梦想土地上最值得珍藏的果实。它不仅仅是一套房子,更是你与这座城市深度链接的凭证。未来,当你在双湖的晨光中醒来,孩子在窗明几净的书房里读书,家人在楼下公园里散步,你会庆幸,在最好的时机,做出了最正确的选择。选择【星合晋墅】,就是选择了一种与苏州同频共振的高品质生活,让家的故事,成为这座城市美好篇章的一部分。
联系方式
心动不如行动,想亲身体验这份美好,赶紧联系吧!
咨询热线:18662309054
声明:本文由入驻焦点开放平台的作者撰写,除焦点官方账号外,观点仅代表作者本人,不代表焦点立场。


