在苏州园区“一主两副四片多点”的战略格局构建下,斜塘所在,交汇于金鸡湖中央商务区、独墅湖科教创新区、高端制造与国际贸易区和苏州园区东站副中心之上,享更高能级城市规划,必然汇聚时代潮向与发展力。大师修为|匠筑传…
【建屋·新棠玥】
新一代玥系开篇作品

【项目概况】
占地面积:约4万㎡
户型面积段:165-225㎡ 四房三卫
建筑密度:19.8%
容积率:1.7
住宅类型:11栋13-17F小高层
项目地址:苏州工业园区独墅湖大道与星塘街交汇处西北侧
咨询热线:18662309054


建屋·新棠玥由「新建元」与「苏州恒泰」联袂打造,是赋新园区时代人居的全新开场,也是31载园本之心在产城融合之下的人居在地新实践。
新建元|产城融合集成服务服务商
新建元集团立足工业园区,作为园区成立时间最早、规模最大的国资企业,以引领产业创新、推动城市繁荣为己任,为助推区域产业转型升级、提升民众美好生活品质而不断前行,努力践行“创新改变城市”的核心理念,矢志成为产城融合的创领者。
咨询热线:18662309054

代表项目:金鸡湖右岸客厅
苏州恒泰|城市功能优化服务商
苏州恒泰控股集团有限公司,是中新合作苏州工业园区直属的大型国有企业,净资产138亿元,资产总规模365亿元,集团突出商业地产、产业地产、租赁住房三大主营业务,累计开发各类物业载体760万平方米,目前已成为中新合作苏州工业园区商业地产、产业地产、租赁住房领域重要的载体持有者和运营商。
咨询热线:18662309054
代表项目:苏州中心

斜塘汇聚园区卓越发展经验,从产城融合到人城境业全合,构建卓越领先的园区盛景,以更开放的姿态享受时代红利与配套先行的高屋建瓴,已成为园区人居高地,承载时代所向。

十字交汇 |执笔园区未来
在苏州园区“一主两副 四片多点”的战略格局构建下,斜塘所在,交汇于金鸡湖中央商务区、独墅湖科教创新区、高端制造与国际贸易区和苏州园区东站副中心之上,享更高能级城市规划,必然汇聚时代潮向与发展力。

高浓自然圈
金鸡湖右岸客厅/独墅湖公园/弥陀泾
高效出行圈
独墅湖城市主干道/星塘街/约4km苏州东站(在建)
高教创新圈
工业园区图书馆/独墅湖文体中心湾国际中心
缤纷生活圈
湖东CBD/奥体中心/邻瑞广场(山姆店)/斜塘老街
咨询热线:18662309054

新建元建屋,采撷31载园区人居理念,落子斜塘,绘策时代,以玥系高端产品线展开新质时代人居所需,着力于传承苏式人居文脉,塑新时代符号大宅,以国际前瞻视野与在地文化开启全新作展开苏式人居的场域精神。

大师修为 |匠筑传世美学巨匠携手,联袂执笔,以国际前沿美学理念,演绎具备时代精神的美学场域,创见苏州新人文作品,致敬时代的精英人物。

建筑设计 宋照青 Lacime Architects日清设计创始人代表作品:上海新天地/上海中星美华村/华东师范大学丽娃河畔书吧

*宋照青大师会所设计手稿
巨匠联袂执笔 共绘枕河私屿
景观设计| A&N尚源景观
精装设计| Yan Design大研设计
泛光设计| bpi照明设计

玥系开篇|建屋·新棠玥
枕河而居,时新境进,溯源苏式人居之源,承续沧浪之六境,以土地文脉为天赋,从归家仪式、建筑立面、景观设计、奢美空间、服务营造等高阶人居需求,重构人居新境,演绎园区人居的新一页。


繁华静处,心有私屿。建屋·新棠玥,以新质人居为要求与前瞻,描绘人与城市共创的时代符号,赋新园区时代人居新意。迭写时代的园意与城市的生生不息。


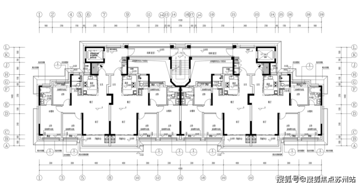
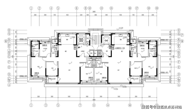
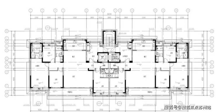
批前公示户型示意图(参考):

10#14F小高层标准层

1#17F小高层标准层(建面约175平)

咨询热线:18662309054
6#16F小高层标准层(建面约215㎡)