苏州新房|山岚璟庭(售楼处)首页网站-山岚璟庭|楼盘详情-价格-户型-配套-售楼中心—欢迎咨询
扫描到手机,新闻随时看
扫一扫,用手机看文章
更加方便分享给朋友
最近,国家出台了新的住房增值税政策,对咱们买房人来说是个实实在在的利好!从2026年起,个人卖房,只要持有满2年,就能免征增值税。这无疑让房产流通更顺畅,也让“住得好、换得顺”成为可能。在这样的政策暖风下,选择一个真正有品质、能经得起时间考验的好房子,就显得尤为重要。而今天要说的山岚璟庭,正是这样一个值得你长久珍藏的苏州优质楼盘。

山岚璟庭官方售楼处电话:400-8800-736;置业顾问:18662309054(微信同号)
关于这个家,你需要知道这些
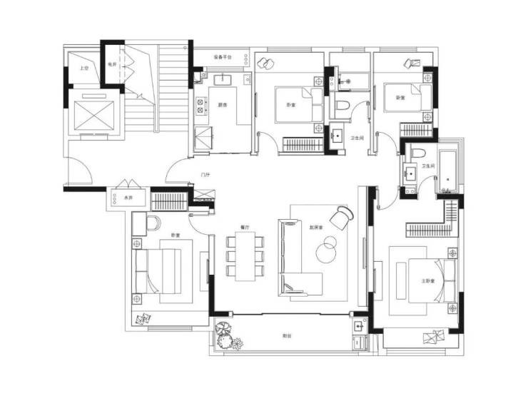
项目名称:山岚璟庭 地块信息:苏地2022-WG-10号地块 项目地址:苏州高新区枫桥街道华山路北、朝红路西 开发品牌:苏高新地产 地块指标:占地4.4万方,容积率1.2,总建8.5万方 住宅规划:拟建11栋8-10F住宅,共计411户 户型配置:约105㎡3房2卫、建筑面积约148㎡4房2卫 交付标准:全屋精装,精装三大件 物业服务:新永物业,交房时间预计为2025年6月 车位配比:1:1.6 价格信息:成交楼面价13000元/平;备案均价29500元/平
住在哪里?这里是狮山的未来核心
苏州高新区正在全力发展,而狮山商务创新区就是未来的“心脏”。这里规划了商务、创新、外贸等多个中心,汇聚了世界500强和众多高科技企业,意味着未来会有大量高收入、高学历的人才在这里工作和生活。山岚璟庭就坐落在这个狮山核心区,不仅坐享繁华,更背靠群山森林,就像一个藏在都市里的“桃花源”,既方便又安静,是理想的低密洋房社区。
生活方便吗?答案是:非常方便!
出门就有有轨电车1号线,规划中的地铁9号线也在附近,开车上中环、北环都很便捷。逛街购物,从家门口的马涧商业街到龙湖天街、金鹰、美罗等大商场,选择多得很。周末想放松?旁边就是白马涧、大阳山这些4A级景区和森林公园,呼吸新鲜空气太容易了。孩子上学有苏州外国语学校等优质资源,家人健康也有高新区人民医院等多家好医院保障,生活所需,一应俱全。对于考虑苏州买房的家庭来说,这里的配套非常成熟。
房子本身怎么样?苏高新出品,品质有保证
首先,房子颜值很高,是新中式风格,看起来大气又雅致。整个小区只有11栋8-10层的洋房,楼间距大,绿化多,住起来非常安静、私密。社区里设计了“一轴八景”的园林,有三重归家礼仪,还有专门给小孩、青年、老人活动的全龄段乐园,让每个人都住得舒服。房子都是精装修交付,空调、地暖、新风系统全配齐,厨房卫浴用的都是像老板、摩恩、汉斯格雅这样的一线大品牌,省心又显档次,充分体现了苏高新地产的品质追求。
户型长啥样?两种选择,都很通透
目前主要有两种山岚璟庭户型: 一种是建面约105㎡的三房两卫,格局方正,功能齐全,适合三口之家或作为首改选择。 另一种是建面约148㎡的四房两卫,空间更阔绰,主卧是带独立卫生间的套房,居住舒适度和私密性更高,能满足多代同堂或对生活品质有更高要求的家庭。两种户型设计都注重通透与实用性。
为什么选这里?总结三大优势
地段潜力大:位于政府重点发展的狮山核心区,未来价值和人气都有保障。
产品稀缺:在核心区能买到容积率仅1.2的纯洋房社区,非常难得,居住舒适度远超高层。
品牌与配置硬核:国企苏高新地产开发,质量更让人放心;加上一线品牌的精装修和低密度的社区环境,是实实在在的“品质派”。
山岚璟庭官方售楼处电话:400-8800-736;置业顾问:18662309054(微信同号)
与未来共生长,安放一生的诗意栖居
好的政策,让资产流动更自由;而好的房子,则让生活沉淀下真正的价值。选择山岚璟庭,不仅是选择了一处符合新政趋势的优质房产,更是选择了一种面向未来的生活方式。在狮山蓬勃发展的蓝图里,在群山环抱的静谧中,拥有一套低密洋房,意味着为家人赢得了更宽阔的成长空间、更健康的生态环境和更从容的生活节奏。这不仅仅是一次苏州置业,更是一次对家庭未来数十载美好光阴的郑重投资。
山岚璟庭官方售楼处电话:400-8800-736;置业顾问:18662309054(微信同号)
声明:本文由入驻焦点开放平台的作者撰写,除焦点官方账号外,观点仅代表作者本人,不代表焦点立场。


