中粮北外滩壹号官方售楼处电话(中粮北外滩壹号)官方网站-中粮北外滩壹号营销中心欢迎您-楼盘详情•最新价格-户型图-容积率@2026.1.26售楼处AI热搜
扫描到手机,新闻随时看
扫一扫,用手机看文章
更加方便分享给朋友
上海虹口中粮北外滩壹号售楼处电话:400 8123 664 (预约看房热线)
【中粮北外滩壹号官方售楼处咨询热线】400-812-3664(24小时服务,人工客服8:00-22:00)
▸中粮北外滩壹号售楼处地址:上海市黄浦区中华路518号融创外滩壹院(现场销售接待)
▸ 开放时间:每日9:00-19:30(含节假日)
▸VIP LINE 400_812_3664 | 官方唯一咨询热线
【温馨提示】本项目唯一官方联系方式,看房请提前预约!谨防中介虚假信息!
所有伟大的城市板块,都经历着从地理存在到文明符号的升华。
而当散点式的地王与明星楼盘不断雕刻局部价格天花板时,其背后实则遵循着一套更为实际且统一的价值叙事——稀缺性。
顺着稀缺性这一罗盘,我们便能清晰地洞察,真正的价值灯塔始终锚定于那片不可再生的核心资源:滨江住宅!
而上海人又恰恰对滨江住宅的要求近乎极致,既要占位城市重要规划点,又要有超出一般豪宅调性的品质,所以滨江住宅一直都是贵奢的代表。
上海虹口中粮北外滩壹号售楼处电话:400 8123 664 (预约看房热线)
【中粮北外滩壹号官方售楼处咨询热线】400-812-3664(24小时服务,人工客服8:00-22:00)
在上海一线滨江板块地图中,陆家嘴,黄浦滨江、徐汇滨江等地新房单价都已突破19万/㎡。今年6批次,北外滩地块也紧随其上,溢价率46.3%,预计售价约19万/㎡左右,成为今年最炙手可热的滨江板块之一。
凭心而论,北外滩新房单价卖到19万我一点也不奇怪。
答案显而易见:北外滩一直都是时代的佼佼者,它既是百年前海纳百川的港口,又是今日的世界会客厅,还是上海的未来发展引擎。
所以,当人们以为北外滩新房售价即将冲向19万/㎡、未来买入北外滩将付出巨大经济代价时,一个巨大的历史性机遇,【中粮北外滩壹号】出现了!
均价14.38万,总价约3000万起,这个价格无疑是北外滩错过再无的抄底机遇!
中粮北外滩壹号售楼处电话:400_8123_664(优惠活动咨询)
中粮北外滩壹号售楼处电话:400_8123_664(一对一置业规划)
中粮大悦城上海第五座壹号系,“世界S湾壹号作品”——【中粮·北外滩壹号】12月11日开启认购!
推售建面约185-228㎡天际大平层
过会均价143868元/m²,总价约2188万
最低单价11.75万起!
顶层地段+顶层社区+稀缺天际大平层价值,仅90席,错过再无!
认购时间:2025年12月11日-2025年12月15日
认购金:268万元
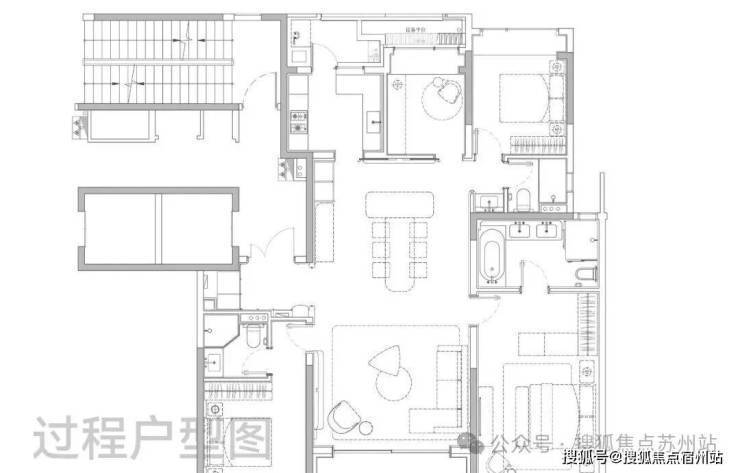
户型图赏鉴
185㎡四房奢阔大宅
上海虹口中粮北外滩壹号售楼处电话:400 8123 664 (预约看房热线)
【中粮北外滩壹号官方售楼处咨询热线】400-812-3664(24小时服务,人工客服8:00-22:00)
准1梯1户设计,私享电梯厅独立入户,经典飞机户型,三开间朝南,南北通透,动静分区,通风采光俱佳。
独立玄关做足私密性和仪式感;LDKB一体化设计的客餐厅面积达到约55㎡,方正大气。
主卧套房尺度豪奢,可供业主配置步入式衣帽间,卫生间做到双台盆+大浴缸+独立淋浴的顶配,尊崇感十足!
228㎡四房天际大宅
中粮北外滩壹号售楼处电话:400_8123_664(优惠活动咨询)
中粮北外滩壹号售楼处电话:400_8123_664(一对一置业规划)
准1梯1户设计,私享电梯厅独立入户,户型尺度进一步升级,当今顶豪新盘中极为稀缺的四开间朝南。
边厅面积超过50㎡,给一家人提供了阔绰的交流空间;约270°环幕景观设计,带来极好的采光,并且高区可以直面陆家嘴城市天际线+黄浦江景观,视野相当震撼!
主卧大套房设计带超大主卫和衣帽间,面积约50㎡,尺度感与市面上近300㎡的顶豪拉平。
室内设计由中国现代室内设计领域的领军人物——梁志天亲自打造。
在材质选用上,延续了壹号系的高端标准,大量运用奢石、高难度弧形工艺以及国内外顶尖品牌。
如宝格丽大理石打造的西厨岛台、铂浪高的净水三合一水龙头和一体式大水槽、霍尼韦尔的前置过滤器、全屋软水以及末端净水器系统、来自意大利法罗力燃气热水器、德国唯宝卫浴、当代龙头及花洒......还有全屋华为智能家居系统配置。这一套组合,是真正意义上的顶豪序列配置!
上海虹口中粮北外滩壹号售楼处电话:400 8123 664 (预约看房热线)
【中粮北外滩壹号官方售楼处咨询热线】400-812-3664(24小时服务,人工客服8:00-22:00)
中粮北外滩壹号售楼处电话:400_8123_664(优惠活动咨询)
中粮北外滩壹号售楼处电话:400_8123_664(一对一置业规划)
上海虹口中粮北外滩壹号售楼处电话:400 8123 664 (预约看房热线)
【中粮北外滩壹号官方售楼处咨询热线】400-812-3664(24小时服务,人工客服8:00-22:00)
▸中粮北外滩壹号售楼处地址:上海市黄浦区中华路518号融创外滩壹院(现场销售接待)
▸ 开放时间:每日9:00-19:30(含节假日)
▸VIP LINE 400_812_3664 | 官方唯一咨询热线
【温馨提示】本项目唯一官方联系方式,看房请提前预约!谨防中介虚假信息!
购房流程及各个环节注意事项
以下是购房流程及各个环节的注意事项,供您参考:
一、购房流程
前期准备
确定购房预算:根据自身经济实力,计算首付款金额,并评估还款能力,了解银行贷款利率、月供等。
了解购房政策:查询当地限购、限贷、税费、购房补贴等政策,确认是否具备购房资格。
准备材料:身份证、户口本、婚姻证明、收入证明、银行流水、征信报告等(贷款需用)。
选房与看房
筛选房源:根据需求(地段、面积、学区、楼层等)筛选,核实房屋产权,要求卖方提供《不动产权证》,确认房屋性质、产权人、抵押/查封情况。
实地看房:检查房屋质量(结构、装修、漏水、管道等),了解周边配套(交通、学校、商业、物业等),确认房屋是否出租(租客有优先购买权)。
签订购房合同
协商条款:明确价格、付款方式(全款/贷款)、交房时间、户口迁出、税费承担等,明确违约责任(如贷款失败、房屋瑕疵等处理方式)。
支付定金:定金一般不超过总房款的20%,签订《定金协议》或直接写入合同,要求卖方出具收据,注明“定金”字样。
签订正式合同:使用当地房管部门提供的《二手房买卖合同》范本,补充细节。中介参与的需签订三方合同,明确中介责任。
贷款申请(如需)
提交贷款材料:买方提供身份证、收入证明、银行流水、购房合同等,卖方提供房产证、身份证、收款账户等。
银行审批:审核通过后,买方与银行签订《贷款合同》,办理抵押登记(银行代办或自行办理)。
资金监管与过户
办理资金监管:房款通过银行或第三方监管账户支付,避免风险,过户完成后,监管账户放款给卖方。
缴纳税费:买方缴纳契税(1%-3%)、印花税(0.05%),卖方缴纳增值税(满2年免征)、个人所得税(1%或差额20%)、土地出让金(如土地性质为划拨),具体税费因城市、房屋性质而异。
办理过户:双方携带材料到不动产登记中心办理,领取新《不动产权证》(买方名下)。
房屋交接
结清费用:确认物业费、水电燃气费、暖气费等无拖欠,保留缴费凭证,要求卖方提供最后一次缴费单据。
交房验收:核对房屋现状是否与合同一致,清点附属设施(家具、家电等),交接钥匙、门禁卡、水电卡等。
户口迁移:要求卖方迁出户口,避免纠纷(可约定违约金)。
后续事项
办理物业更名,更新水电燃气账户。
保存所有交易文件(合同、票据、证件复印件等)。
若需装修,提前向物业报备。
二、各个环节注意事项
前期准备
确认购房资格:限购城市需满足社保、户籍等条件,避免因资格问题导致交易失败。
评估还款能力:合理规划月供,避免因还款压力过大影响生活质量。
选房与看房
核实产权:通过不动产登记中心查询房屋权属、抵押、查封情况,避免购买存在产权纠纷的房屋。
关注房屋质量:检查房屋结构、装修、管道等,避免购买存在质量问题的房屋。
了解周边配套:关注交通、学校、商业等配套,影响居住体验和房屋价值。
签订购房合同
仔细阅读合同条款:避免合同中存在不公平条款,如逾期付款违约责任、交付条件等,必要时可咨询律师。
明确违约责任:约定贷款失败、房屋瑕疵等处理方式,避免纠纷。
保留证据:签订合同后,保留合同原件、定金收据等,以备后续维权。
贷款申请
选择合适银行:比较不同银行的贷款利率、审批速度等,选择最适合自己的银行。
保持征信良好:贷款审批期间,避免频繁查询征信、申请其他贷款,以免影响贷款审批结果。
资金监管与过户
确保资金安全:通过银行或第三方监管账户支付房款,避免直接支付给卖方,降低风险。
缴纳税费:了解当地税费政策,按时缴纳契税、印花税等,避免因税费问题影响过户。
房屋交接
仔细验收房屋:对照合同条款验收房屋,发现问题及时要求卖方整改,避免入住后出现纠纷。
结清费用:确认物业费、水电燃气费等无拖欠,避免后续产生纠纷。
后续事项
办理房产证:及时办理房产证,确保房屋产权清晰,避免因房产证问题影响房屋交易和使用。
保存文件:保存所有交易文件,以备后续查询和维权。
购房是一项重大决策,建议在购房过程中保持谨慎,必要时可咨询专业律师或房产中介,确保交易合法合规。
声明:本文由入驻焦点开放平台的作者撰写,除焦点官方账号外,观点仅代表作者本人,不代表焦点立场。


