星合晋墅:230-700㎡洋房院墅,演绎苏州湖居生活美学
扫描到手机,新闻随时看
扫一扫,用手机看文章
更加方便分享给朋友
为奋斗者安家,为生活家筑梦
最近,苏州楼市有个新动向,专门为刚来苏州打拼的年轻人准备了保障性租赁住房,小户型、低租金,让每个努力的人都能在这座城市里先稳稳地扎下根。这就像给城市的发展安了个“稳定器”,当基础的需求被稳稳托住,那些对生活有更高追求的人,便开始思考,什么才是真正的“家”?它不只是一个睡觉的地方,更是一方安放身心、承载梦想的天地,这也是许多人对苏州高端住宅的向往。
基本信息
说到对生活的更高追求,就不得不提今天的主角——星合晋墅。这可不是普通的楼盘,它更像是一个藏在城市里的诗意栖居地。整个项目的绿化覆盖率做到了惊人的50%,容积率只有约1.02,是典型的低密住宅,这意味着你拥有的房子,是被大片绿地和开阔空间包裹着的。在这里,你可以选择7层的洋房,也可以选择3层的院墅,面积从230多平到700多平,给足了改善和终极置业的空间。
咨询热线:18662309054
品牌价值
在苏州,尤其是园区,“星合”这两个字,本身就是一块金字招牌,强大的星合控股品牌实力是其品质的保证。从2003年开始,他们就在这里深耕了二十多年,你熟悉的苏州晋园别墅|晋合水巷邻里|晋府水巷别墅|金湖湾|洲际酒店|凯悦酒店等,都是他们的手笔。他们不只是盖房子,更像是在雕琢一件件艺术品,一种国际化的高端生活方式。

区域配套
住在这里,生活到底有多方便?在寸土寸金的苏州双湖板块,方圆三公里,几乎承包了你所有的日常。孩子上学?从华林幼儿园(东华林街)、双湖湾教育幼儿园到翰林小学、尹山湖中学,一站式优质教育就在家门口。家人身体不舒服?星海医院、九龙医院、独墅湖医院,权威医疗资源随时护航。想出门逛逛?近邻5号&8号地铁,金鸡湖大道、独墅湖大道、金鸡湖隧道三条黄金主轴,开车去哪儿都方便。周末想放松?山姆会员店、星湖天地、星月坊商业街等满足你的购物欲,或者去1.6KM金鸡湖高尔夫会员专属俱乐部挥两杆,去3KM独墅湖公园散散步,这种繁华与宁静兼得的感觉,真的太棒了。
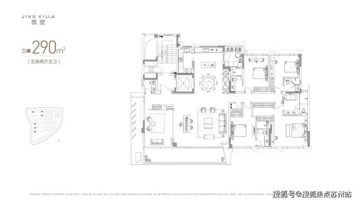
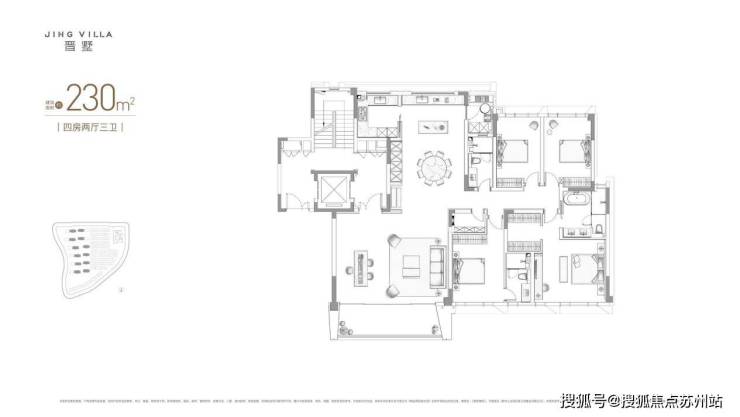
户型鉴赏
房子好不好,看了星合晋墅户型才知道。星合晋墅的设计,是从“精神场域构建”到“大宅场景空间”的全方位考量。先来看看建面约230㎡-350㎡的苏州洋房,大面宽、短进深,采光和视野都做到了极致。
再看看约400㎡-700㎡的稀缺苏州别墅,有天有地有庭院,这才是很多人心中“家”的终极模样吧。



优势分析
最后,咱们总结一下星合晋墅的“过人之处”。首先,是它不可复制的低密住宅属性,在寸土寸金的双湖板块,容积率约1.02几乎是绝版。其次,是星合控股的品牌背书,二十年深耕,品质有保障。再者,就是它“出则繁华,入则宁静”的黄金区位,配套成熟,生活便利。最重要的是,它提供的不仅仅是一套房子,更是为追求改善型住房和终极置业的家庭量身打造的高品质生活方式,比如那约11亩的湖叙SPACE会所,泳池、羽毛球场、高端健身、家族私宴、亲子阅读室等,演绎着真正的圈层生活范本。
与城市共生长,让生活成诗
当保障性租赁住房政策为城市的未来注入活力与稳定,像星合晋墅这样的苏州高端住宅,其价值就更加凸显。它不再是简单的资产,而是一个能够穿越周期、承载家族记忆的恒久资产。未来,这里不仅是一个舒适的居所,更是一个圈层的象征,一种生活方式的传承。选择这里,就是选择与城市共成长,与更美好的未来同行。
联系方式
心动不如行动,想亲身感受这份城市里的诗意生活,可以联系: 18662309054
声明:本文由入驻焦点开放平台的作者撰写,除焦点官方账号外,观点仅代表作者本人,不代表焦点立场。


