2026.苏州星河湾(售楼处电话) 苏州星河湾售楼中心电话- 销售中心 - 环境 - 户型 - 价格 - 地址 - 楼盘最新详情 - 配套 - 电话 - 梯户比 - 售楼处地址
扫描到手机,新闻随时看
扫一扫,用手机看文章
更加方便分享给朋友
「苏州星河湾」售楼处咨询电话:400-8673-567本项目暂不接受临时到访,过来参观样板房请记得提前来电预约!
【苏州星河湾】售楼部热线:400-8673-567(已认证)✅✅
【苏州星河湾】客户经理电话:400-8673-567(微信同号)✅✅
温馨提示:为了给您提供更高更好的接待服务质量,看房请提前致电售楼处预约!✅✅
【有免费看房车接送服务,如需预约,请致电售楼处】✅✅
木渎,真的沉寂了好久!
板块内2023年仅出让了2宗宅地,2024年没有新地块出让,今年也只挂牌了一宗宅地,还没开拍!不过板块其实还有些存货的,苏州星河湾正是其中之一。
在此前公示中,9种户型全部出炉,3.6米层高,13.6米阳台,全明卫套房,南北双阳台,270°八角窗设计、buff叠满,木渎新卷王诞生了?
苏州星河湾售楼处电话☎:400-8673567✅【售楼热线】苏州星河湾营销中心热☎400-867-3567✅苏州星河湾售楼处地址☎400-8673-567✅

实景示范区公开!层高3.6米
苏州星河湾,即,苏地2022-WG-51号地块,位于吴中区木渎镇金长路北侧、金枫路西侧,2022年10月31日,苏州惠润置业有限公司以底价119779万元竞得,成交楼面价15500元/平。
苏州星河湾售楼处电话☎:400-8673567✅【售楼热线】苏州星河湾营销中心热☎400-867-3567✅苏州星河湾售楼处地址☎400-8673-567✅

项目的建设单位为苏州铂润房地产置业有限公司,则是,惠润置业和星河湾联合开发。
苏州星河湾售楼处电话☎:400-8673567✅【售楼热线】苏州星河湾营销中心热☎400-867-3567✅苏州星河湾售楼处地址☎400-8673-567✅

项目的地块用途为城镇住宅用地,占地面积42931.6平,总建筑面积114171.67平,计容建筑面积77276.88平,容积率1.8.
根据规划,项目拟建11栋14-21F住宅。
苏州星河湾售楼处电话☎:400-8673567✅【售楼热线】苏州星河湾营销中心热☎400-867-3567✅苏州星河湾售楼处地址☎400-8673-567✅

项目此前规划调整来看,变化也是比较大的,项目的一至三层的外墙立面调整为石材立面,品质感更高了!
苏州星河湾售楼处电话☎:400-8673567✅【售楼热线】苏州星河湾营销中心热☎400-867-3567✅苏州星河湾售楼处地址☎400-8673-567✅
苏州星河湾售楼处电话☎:400-8673567✅【售楼热线】苏州星河湾营销中心热☎400-867-3567✅苏州星河湾售楼处地址☎400-8673-567✅

规划户型出炉!挺有特点
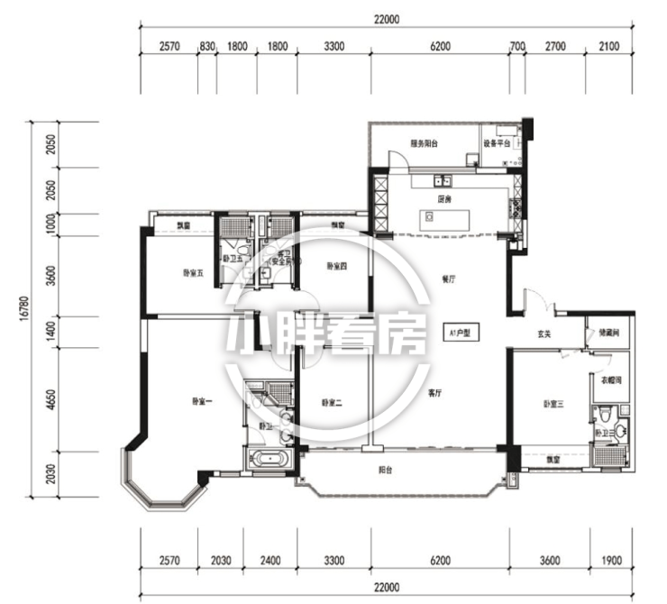
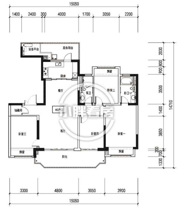
在此前公示中,项目公示了9种户型!
一起先睹为快!





4房3卫的房屋套型,6米大宽厅;
南向四开间,13.6米三开间大阳台
超大主卧,带内卫,设计有双台盆+浴缸
南向次卧做了类套房设计
厨房连接服务阳台,生活比较方便
苏州星河湾售楼处电话☎:400-8673567✅【售楼热线】苏州星河湾营销中心热☎400-867-3567✅苏州星河湾售楼处地址☎400-8673-567✅


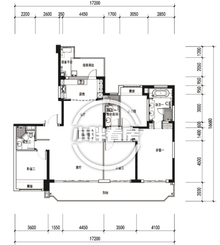
A4户型与上个户型是比较相似的,主要区别就是尺寸上有差异,次卫的空间更大一点,主卧的内卫少了一个淋浴间。


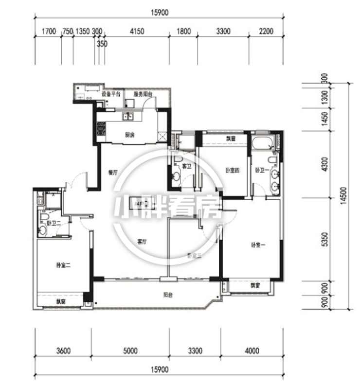
这一户型是4房2卫设计,户型格局上与上个户型是很相似的,不过南次卧没有内卫。

界面不错!居住氛围浓
苏州星河湾,即,苏地2022-WG-51号地块,位于吴中区木渎镇金长路北侧、金枫路西侧,属于木渎板块。
周边界面来看,其实也还不错,居住小区比较多,居住氛围比较浓。
北面是博济科技创新园,东面是金枫南路,南面是仁恒溪棠,西面是河流。
苏州星河湾售楼处电话☎:400-8673567✅【售楼热线】苏州星河湾营销中心热☎400-867-3567✅苏州星河湾售楼处地址☎400-8673-567✅

周边配套来看,也是比较不错的。

交通方面:
项目东侧是金枫南路,自驾出行比较方面;
地铁方面,项目北侧1公里之内有1号线金枫路站,南侧1公里内有大冶桥站。
商业方面:
北侧有浙建枫华广场,1公里之内就是悠方商场;
西南方向1.5公里则是天虹商场;
教育方面:
项目西侧有范仲淹实验小学和附属幼儿园;
苏州星河湾售楼处电话☎:400-8673567✅【售楼热线】苏州星河湾营销中心热☎400-867-3567✅苏州星河湾售楼处地址☎400-8673-567✅

价格会有惊喜吗?
木渎板块目前新房市场价格起伏也是比较大的,项目周边来看,比较近的就是璟翠雅园和仁恒溪棠。
璟萃雅园此前取证整体备案均价28051元/平,总价区间在258-528万元。
仁恒溪棠的整体备案均价31196元/平,备案总价区间在469-509万元。
从楼面价来看,璟翠雅园16966元/平,仁恒溪棠则和星河湾&惠润置业木渎51号地块项目楼面积一致都是15500元/平
不过从产品上来说,仁恒溪棠首批房源都是洋房,苏州星河湾则是小高层和高层,产品类型上来说也是有差异的。所以价格也是比较让人好奇!
苏州星河湾售楼处电话☎:400-8673567✅【售楼热线】苏州星河湾营销中心热☎400-867-3567✅苏州星河湾售楼处地址☎400-8673-567✅
声明:本文由入驻焦点开放平台的作者撰写,除焦点官方账号外,观点仅代表作者本人,不代表焦点立场。


