最新动态:高铁新城首个低密院墅:绿城宸庐,规划总图有调整
扫描到手机,新闻随时看
扫一扫,用手机看文章
更加方便分享给朋友

01、
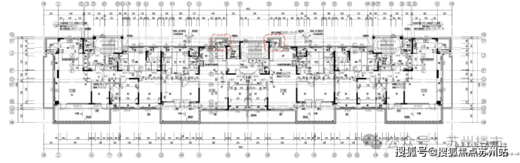
根据规划公示显示,绿城宸庐项目将打造12幢住宅,其中7幢3F合院,3幢6F叠加,2幢11F四代宅洋房。

变更说明:
1、规划总图调整:
1.1、取消东侧红外线消防车道,东南角增加紧急消防口;
1.2、西北角设人行及非机动车出入口;
1.3、地面总图部分消防车道转弯内径由7米调整为10米;
1.4、地库出地面楼梯位置调整;
1.5、中心庭院增加景观连廊;
2、1~7楼由坡屋面调整为平屋面,平立面相应调整;
3、8#、10#、11#楼立面造型调整,平面功能调整,门窗形式调整;
4、12#、13#楼中间户增设生活阳台,整体立面相应调整;
5、9-2#楼平面功能重新调整,整体立面造型相应调整;
6、确定本项目已入选“两智一全”住宅项目,根据政策容积率及机动车车位配置要求:
6.1、本项目消控室、门卫室及增配的物业服务用房不计容积率;
6.2、本项目人行出口与周边轨道交通站点的步行距离在300米范围内,其机动车配建停车指标可折减至90%。

扫码预约
从此前公示的大门也可以看出,该项目的品质和颜值,双双在线,并且配备会客空间,功能性也能满足高端业主的需求。

从公示的效果图可以看出,洋房为奇偶错层露台,户户可有花园。
叠加的立面效果也很震撼,大面积玻璃以及顶部延伸露台,超大面宽,整体通透,采光充足。

变更后的联排首层平面图同步曝光,功能更齐全,立面更美观啦~


该地块规划文件显示,住宅总层数6层以上的,须建设成品住宅,装修标准不低于2000元/㎡;总层数6层及6层以下的,鼓励建设成品住宅。咨询热线:18662309054
作为高铁新城首个低密院墅,该项目承袭绿城豪宅及应,打造合院+叠加+四代宅洋房,建面约160-315㎡,是改善们的最新选择!
绿城宸庐即2025-WG-Z04号地块,位于相城区高铁新城民乐路东、陶村街北,龙湖未来御湖境旁。
该项目是相城区为数不多的溢价地块,今年3月份,经历了14轮出价,最终由苏州宏腾&江苏汇欣鑫以总价5.35亿拿下,成交楼面价15827.88元/㎡,溢价率5.52%!
该项目位于高铁新城南部成熟片区核心,2024年以来,伴随着高铁北站能级的提升和新一轮扩建的开启,高铁新城板块价值进一步夯实。

交通方面:紧邻地铁2号线大湾站,高铁站近在咫尺。
教育方面:周边集聚了苏州大学实验学校、南京师范大学苏州实验学校、南京师范大学相城实验小学等教育资源。
商业配套上:片区内拥有吾悦广场、圆融广场等大型综合体,以及印象水街美好荟、芯光里商业街等时尚街区,为居民提供了多样化的购物和休闲体验。
文体休闲配套方面,高铁新城文体中心正在加快建设中,而心汇湖公园也已投入使用,苏州国际会展中心等顶级文化设施也即将开工建设,为片区居民提供了丰富的文化生活咨询热线:18662309054
声明:本文由入驻焦点开放平台的作者撰写,除焦点官方账号外,观点仅代表作者本人,不代表焦点立场。


