楼盘评测|金融街融悦沁庭-金融街融悦沁庭营销中心-图文详解-户型解析-周边配套-优缺点分析
扫描到手机,新闻随时看
扫一扫,用手机看文章
更加方便分享给朋友
楼市再迎重磅利好!国家刚刚发布新政,个人销售购买满2年的住房,将免征增值税。这不仅降低了二手房交易的成本,更传递出稳定市场、支持合理住房消费的积极信号。政策暖风频吹,正是安家置业的绝佳窗口期。而说到安家,一个既能享受当下醇熟配套,又能坐拥未来无限潜力的品质住区,无疑是明智之选。今天,就带大家走进吴中太湖新城的宝藏楼盘——金融街融悦沁庭。
一座纯粹的洋房社区
金融街融悦沁庭坐落于飞速发展的吴中太湖新城核心,是一个纯粹的7-10层低密洋房社区。整个小区仅609户人家,容积率低至1.6,车位配比高达1:1.5,居住舒适度直接拉满。项目外立面采用高成本的干挂铝板搭配三玻两腔Low-E玻璃,颜值与品质双双在线。更难得的是,交付时中央空调、新风、地暖“三大件”以及软水系统全部为您配齐,诚意十足。
双地铁环绕,出行快人一步
住在这里,出行太方便了!项目距离地铁4号线和在建的7号线“木里站”仅约150米,是名副其实的双地铁盘。无论是去园区、新区还是其他核心区域,都能快速通达。再加上周边的友新高架、东太湖大道等城市干道,无论是日常通勤还是周末出游,都能畅行无阻,完美满足苏州置业的交通需求。

名校为邻,孩子的起跑线在这里
教育是家庭的头等大事。金融街融悦沁庭与华中师范大学苏州湾实验小学仅一路之隔,孩子上学安全又省心。此外,华中师范大学苏州实验中学、北美国际高级中学等优质学府环伺,从幼儿园到高中的全龄段教育矩阵,为孩子的成长保驾护航。选择这里,就是为孩子选择了优越的起跑线。

实力品牌,安心置业的后盾
买房看品牌,靠谱最重要。项目由“中国华尔街缔造者”金融街控股,与吴中太湖新城的开发主体——苏州国太发展联袂打造。这是金融街在苏州打造的第三座“融悦系”作品,前两座(融悦湾、融悦时光)已是区域标杆。强强联合,为您的家园品质和未来价值提供了坚实保障,是您安心置业的可靠后盾。
融悦沁庭效果图
匠心户型,诠释美好生活尺度
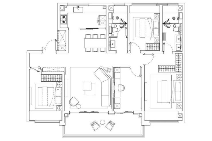
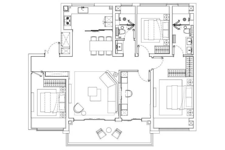
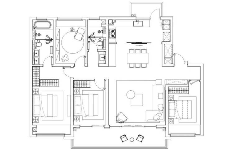
房子最终是用来住的,户型是关键。金融街融悦沁庭主打建面约115-152㎡的纯粹洋房,得房率高,空间利用率更佳,充分诠释了美好生活的尺度。
约115㎡三房:三开间朝南,约5.5米宽厅连接大阳台,主卧套房设计,功能齐全。
约130㎡四房:三卧朝南,LDKB一体化餐客厨空间,双联阳台,空间灵动。
约152㎡四房:四开间朝南,拥有LDBK家庭聚场、中岛厨房及南北双阳台,尺度阔绰。
在太湖畔,预见未来的诗意栖居
当政策的东风遇上板块的崛起,价值便有了清晰的轨迹。吴中太湖新城,这座正在崛起的“未来之城”,聚集了永旺、歌林等繁华商业,快手电竞馆、橙天嘉禾剧场等文化地标,以及在建的市立医院总院。选择金融街融悦沁庭,不仅是选择了一处低密、舒适、配套齐全的纯洋房家园,更是握紧了一张通往太湖时代美好生活的船票。在这里,每一天都浸润在湖光水色与城市繁华之中,未来生活的画卷,正徐徐展开。
如果您对这座纯洋房社区心动,欢迎随时咨询! 售楼处热线:18662309054(微信同号)
声明:本文由入驻焦点开放平台的作者撰写,除焦点官方账号外,观点仅代表作者本人,不代表焦点立场。


