闵行花语前湾售楼处电话-小区环境-花语前湾-营销中心热线-楼盘详情花语前湾
扫描到手机,新闻随时看
扫一扫,用手机看文章
更加方便分享给朋友
花语前湾售楼处电话:400-8828-814【售楼处电话】(来电尊享优惠活动)
上海闵行花语前湾售楼处地址:400-8828-814【售楼处地址】(来电尊享优惠活动)
花语前湾售楼处电话:400-8828-814【售楼处电话】重磅消息!位于闵行前湾的大热盘,中国铁建·花语前湾已经取证!
具体认购时间:3月7日-3月11日。
推出394套建筑面积约90-123㎡房源,均价约68878元/㎡。
项目房型落位图,以实际交付为准
花语前湾售楼处电话:400-8828-814【售楼处电话】这个项目的入市,让上海今年约700万级的市场,迎来了一个“更强者”。一个全方面都更强且没有短板的项目。
我们先用一张图简单概括一下,这个项目的强悍:
上海的中心地位,其实正在从传统市区往虹桥转移了。
原因有两点:
第一,虹桥的枢纽职能。
花语前湾售楼处电话:400-8828-814【售楼处电话】此前据官方统计预测,2024年春运期间:虹桥枢纽预计到发总量2200万人次,占上海全市对外交通总量的52%。
日均到发客流55万人次,同比2023年同期增长40%,较2019年同期增长12%。
花语前湾售楼处电话:400-8828-814【售楼处电话】如今不少人对于上海的初印象,就是虹桥以及周边的商业。虹桥已经成为了上海的一张新名片。而这,就是虹桥作为长三角一体化中心的地位体现。
第二,虹桥的产业职能。
虹桥国际中央商务区建设三周年来,税收实现三年复合增长率20%以上,主要经济指标高于全市平均水平。
累计引进总部类企业超500家、去年引进的重点产业和投资类项目同比增长54%。
这里已经是上海经济发展的强劲活跃增长极,也是上海未来的新中心。
而闵行前湾,则是整个虹桥的宠儿。
花语前湾售楼处电话:400-8828-814【售楼处电话】这是虹桥唯一一个整体开发,并且受限高影响很小。整个区域内各方面的资源更是拔尖。如果问外环放开限购后谁更值得买,前湾一定是第一选择。
而作为前湾板块唯一的新房项目,中国铁建花语前湾又如何能错过呢?
在上海,地铁无疑是传递价值、外溢需求、运输财富的血管。
所有更具价值和潜力的板块,都是多轨交环绕的区域,例如徐家汇、前滩以及莘庄等区域。
花语前湾售楼处电话:400-8828-814【售楼处电话】而前湾同样是一个三轨交环绕的区域,这在700万级中首屈一指,汇聚四面八方人流、购买力,高通达性也能更好激活未来商办势能。
前湾将是大虹桥新交通中心。
示意图
其中,示范区线(建设中)连接长三角和虹桥枢纽;
13号线西延站(建设中)13号线向东可去市区,横穿长风、武宁、南京西路,还能通过换乘直达静安寺、徐家汇等城市CBD。
地铁25号线(规划中)则是直通长宁古北、徐汇等区域。
*25号线信息来源《虹桥国际中央商务区-综合交通专项规划(2021-2035)送审稿》
更重要的是,这三条轨交都将经过前湾并交汇在芳乐路站,距离中国铁建花语前湾直线约680米。
要知道,地铁房只有实现步行进站才有意义。
花语前湾售楼处电话:400-8828-814【售楼处电话】按此标准,2023年12个批次216个新房(去重后),只有49个能称得上步行进站的地铁房,占比仅约五分之一,臻稀程度可见一斑!
而一个项目步行范围内汇聚三条轨交,如此高的轨交覆盖度放眼全市都是佼佼者。
除了轨交外,花语前湾在生活方式方面的表现,与其他约700万级新房完全就是两个档次。
项目周边的资源能级之高、规划之完善、距离之近,是真正匹配市区千万级豪宅的存在。
项目区位示意图
商业方面:花语前湾西侧就是开市客和在建的前湾印象城MEGA,集齐两大王炸商业。
开市客周末流量很大,而如果你是花语前湾业主,不用堵车,步行过去即可。
示意图
花语前湾售楼处电话:400-8828-814【售楼处电话】花语前湾售楼处电话:400-8828-814【售楼处电话】根据印力集团的信息,前湾印象城MEGA将“国际化社交度假漫游湾”的核心DNA融入建筑设计、主题场景、品牌等各个方面,并将重塑在地文化的活性与个性,构建混合文化、艺术、时尚、建筑、商业、饮食文化和自然生态的国际生活新图景,计划于2025年开业。
前湾印象城MEGA效果图
还有上海超极合生汇,预计2025年竣工。等花语前湾交房,前湾大型商业配套基本都能落地了。
医疗方面:项目步行范围内新虹桥国际医院中心,其中包含华山医院(西院)在内的10家医院、1家医技中心数十个特色门诊,医疗配套之完善,能级之高,上海罕见。
上海新虹桥国际医学中心实景图
教育方面:周边还有华师大7所学校!
花语前湾售楼处电话:400-8828-814【售楼处电话】早在板块起步阶段,华漕镇管理部门就和华师大教育集团签署合作框架协议,合作共建7所公办学校,包含幼儿园到初中的十二年教育。
此外,前湾还拥有美、新加坡、韩、英、台商子女学校、诺德安达双语学校等7所外国语学校。
(免责声明:周边学校等相关教育设施仅为介绍周边已建、在建或规划教育资源,并不承诺为划片学区,学校划分以官方公示为准。)
花语前湾售楼处电话:400-8828-814【售楼处电话】这个配套资源的含金量,以及带给花语前湾业主的生活舒适度,全市罕见。对于约700万级的购房者来说,真的找不到更好的。
对于寸土寸金的上海,生态永远是稀缺且昂贵的词。
来看上一个生态居住区,碧云如今的成就,您就明白了:
碧云这个高知名度的板块,近4年来只有1195套二手房成交数据。这个成交量远远低于陆家嘴、世博以及张江这些产业区。
花语前湾售楼处电话:400-8828-814【售楼处电话】而原因,我想大家应该也清楚。碧云的房子,出售后就再找不到更好的,也更有可能买不回来。
所以,“惜售”始终是碧云国际住区潜移默化的主基调!
而在前湾,政府规划了约100万方前湾公园,10倍于陆家嘴中心绿地的体量。
示意图,以实际落地为准
花语前湾售楼处电话:400-8828-814【售楼处电话】未来,这座百万方的公园将深度融入上海“一江一河”大生态空间格局,成为上海西翼重要的生态建设地标。
同时,前湾成为长三角生态绿色会客厅和世界级滨水中央公园的重要载体。
这个生态体量和能级直逼碧云等老牌生态住区。
示意图,以实际落地为准
花语前湾售楼处电话:400-8828-814【售楼处电话】更重要的是,根据聚力华漕的消息,前湾公园中的前湾广场即将完工,拥有约1.3万方中央大草坪。
示意图,以实际落地为准
清晨,下楼去公园就可以展开一场环湖慢跑,每一次深呼吸都是清鲜的畅快。
傍晚,都市霓光交相辉映,在落日余晖下沿湖游步。
这种生活可能会成为你在花语前湾的日常。
关于社区,有一点说在前面:
项目艺术示范区已经实景呈现,整个项目的很多细节大家已经能在现场看到。
花语前湾售楼处电话:400-8828-814【售楼处电话】你再也不用站在沙盘前憧憬,可以一边徜徉美丽的示范区,一边想像未来美好蓝图。这是中国铁建作为央企的担当,也是对于花语前湾产品力的信心。
先来看下示范区美图:
项目示范区实景图
花语前湾售楼处电话:400-8828-814【售楼处电话】再看项目内部,公区的标准非常高,且处处透露着:“让居者在城市快节奏生活中能够感受到静下来、慢下来的感受,在独处中治愈身心。”
比如,双面环河,将宜居属性发挥到极致:
花语前湾售楼处电话:400-8828-814【售楼处电话】花语前湾售楼处电话:400-8828-814【售楼处电话】项目汲取城市水系成为日常的风景,约350米滨水景致营造河流半环绕之势,同时地块远离主干道,U型公共绿地围绕,营造了闹中取静、亲近自然的生活方式。
中国铁建·花语前湾效果图
仅供参考,具体以实际交付为准
独有的新江南风格:
花语前湾售楼处电话:400-8828-814【售楼处电话】花语前湾于约23万方土地之上,以一轴三带四园,打造现代东方风格的写意景观,让家园温度可感可视化的同时,也让项目贴合前湾“东潮西溯”特征。
中国铁建·花语前湾效果图
仅供参考,具体以实际交付为准
花语前湾售楼处电话:400-8828-814【售楼处电话】花语前湾售楼处电话:400-8828-814【售楼处电话】项目规划“一轴三带四园”景观布局、约800㎡阳光草坪、三大中心花园、生态景观一应俱全,在花语前湾,生活是极其丰富多彩的,两块地块中间设有260米长邻里生活街区,约4000㎡公共街区配套,极大便利了业主生活娱乐购物需求,将成为社区重要的时尚、社交、休闲聚场。
中国铁建·花语前湾效果图
仅供参考,具体以实际交付为准
别开生面的架空层:
花语前湾售楼处电话:400-8828-814【售楼处电话】架空层不仅放置了沙发,供简单的会客,接待。更精心打造中西厨设备及手工桌区域,可满足业主不定时举办VIP活动,比如亲子厨房、烘焙体验、艺术插花、手工制作灯笼、水吧接待等。
花语前湾售楼处电话:400-8828-814【售楼处电话】在我看来,这很有趣也很有品味,回家经过这样的架空层,能让业主在繁忙生活中享受片刻闲适;你下楼就能找到志同道合的朋友,可以惬意社交、娱乐、运动。
强烈的尊贵感和归家仪式感:
项目主入口仿照五星级酒店打造环岛式落客区,超48米星级酒店式迎宾门廊、约10米挑高归家大堂。
中国铁建·花语前湾效果图
仅供参考,具体以实际交付为准
毫无疑问,不管是仪式感、实用性还是宜居度,花语前湾都做到了极致。
这足以媲美市区千万豪宅新江南风格社区,谁能不心动?
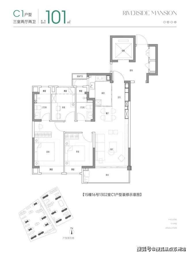
户型方面,项目主推的建面约101㎡3房创新户型,具有引领潮流的意义:
LDKG设计让客、餐、厨、阳台四个空间打破传统布局中的“隔阂”,几个功能区独立又互通,将空间功能进一步放大。
与竞品相比,该户型客厅阳台间无剪力墙,全通透无遮挡。功能空间的扩容,增加采光与通风,丰富生活的创造性。
全卧飘窗设计,向外延展空间的同时,拓宽景观视野。

中国铁建·花语前湾建面约101㎡样板间实景图
仅供参考,具体以实际交付为准
此外,不封阳台,户型附加值高,可享受的空间也更多。
项目本次一共推出5种户型,户型多元,选择面大,总有一款适合您。
花语前湾售楼处电话:400-8828-814【售楼处电话】
说完户型,再来看看大家都非常重视的室内。
在这方面其实大家都很卷,而花语前湾的出现,把室内的装修卷上了新的高度。
项目全屋三大件配齐:东芝(或同等档次品牌)中央空调、威能(或同等档次品牌)地暖、松下(或同等档次品牌)新风。
中国铁建·花语前湾建面约101㎡样板间实景图
仅供参考,具体以实际交付为准
厨房配有方太三件套(或同等档次品牌)油烟机+燃气灶+12套嵌入式洗碗机。
中国铁建·花语前湾建面约101㎡样板间实景图
仅供参考,具体以实际交付为准
卫生间使用杜拉维特(或同等档次品牌)整体智能马桶、汉斯格雅(或同等档次品牌)花洒+龙头。
中国铁建·花语前湾建面约101㎡样板间实景图
仅供参考,具体以实际交付为准
武装到“美妆冰箱”的魔鬼细节:
项目全屋配备入户玄关柜,内部活动板可调,鞋柜自带鞋柜精灵。
厨房配备前端净水器、凉霸。在水槽下方还贴心设计檐口翻板收纳和拉篮。
中国铁建·花语前湾建面约101㎡样板间实景图
仅供参考,具体以实际交付为准
全屋墙布交付,甚至连局部免漆木饰面格栅+仿大理石岩板也是交付标准,诚意之高见微知著。
花语前湾售楼处电话:400-8828-814【售楼处电话】在卫生间,主卧镜柜内置美妆冰箱,方便女主人储物各种面膜,化妆品等物件。客卫镜柜内置插座,可以给电动牙刷、剃须刀充电,吹头发也不用扯长长的电线。
中国铁建·花语前湾建面约101㎡样板间实景图
仅供参考,具体以实际交付为准
三轨交汇,前湾C位
中国铁建·花语前湾
已经取证
三批次加推394套
建筑面积约90-123㎡房源
项目:中国铁建·花语前湾
地址:上海市闵行区朱建路开市客往东约400米处
产品:建面约90-123㎡房源
交通贴士:13号线西延伸&示范区线芳乐路站,规划25号线
花语前湾售楼处电话:400-8828-814【售楼处电话】(来电尊享优惠活动)
上海闵行花语前湾售楼处地址:400-8828-814【售楼处地址】(来电尊享优惠活动)
最近,上海购房政策频出,贷款LPR也发生较大变化,本文汇总了上海购房的最新信息,涉及政策、限购、贷款。
上海买房必备,建议星标关注收藏备查。
一、上海2024年2月最新限购政策
2024年1月30日,上海市住建委发布本市住房限购政策:自2024年1月31日起,在本市连续缴纳社会保险或个人所得税已满5年及以上的非本市户籍居民,可在外环以外区域(崇明区除外)限购一套住房(含新建商品住房和二手住房)。
二、售楼处电话:400-8828-814【售楼处电话】上海2024年2月最新人才住房政策
三、上海2024年2月最新购房商贷款政策
根据相关政策,上海地区的首套房贷利率是LPR的基础上再减10个基点,故从今天开始,上海地区执行最新贷款利率情况是首套房3.85%,意味着上海首套房贷利率迎来“3时代”。
二套房在LPR基础上加30个基点为4.25%,青浦、嘉定、松江、奉贤、宝山、金山、临港新片区的二套房贷利率则为4.15%。
而未调整前,上海地区执行首套房利率是4.1%,最低首付款比例不低于30%;二套房主城区房贷利率4.5%,最低首付款比例不低于50%,非主城区房贷利率4.4%,最低首付款比例不低于40%。
四、上海2024年2月最新公积金贷款政策
声明:本文由入驻焦点开放平台的作者撰写,除焦点官方账号外,观点仅代表作者本人,不代表焦点立场。


