政策红利叠加,星合晋墅筑梦园区理想家园
扫描到手机,新闻随时看
扫一扫,用手机看文章
更加方便分享给朋友
近期苏州楼市迎来多重利好政策,为购房者送上实实在在的"红包"。新房补贴0.5%政策延续至年底,换房退个税政策持续至2025年底,还有旧房装修补贴最高可达3万元。这些苏州楼市政策红利叠加,正是置业升级的黄金时机。今天,就让我们一起走进星合晋墅,感受这座城市生活美学运营商精心打造的人居典范。
星合晋墅,这座位于苏州园区的低密住宅社区,以其约50%的绿化覆盖率和约1.02的容积率,在城市中营造出一片宁静绿洲。社区内精心规划了7层的舒适洋房和3层的尊贵院墅两种业态,满足不同家庭的需求。目前主推建面约230㎡-350㎡的低密洋房,以及约400㎡-700㎡的稀缺院墅,每一处空间都经过精心设计,只为给业主带来最舒适的居住体验。
18662309054
区域配套
生活在星合晋墅,意味着拥有全维优质的生活区域配套,约3公里范围内尽享黄金繁华。
一站式全龄教育,书香涵养未来。社区周边汇聚了华林幼儿园、双湖湾教育幼儿园、翰林小学、尹山湖中学等知名学府,让孩子从小浸润在浓厚的学术氛围中。
优质医疗资源全时护航健康。双湖区域内,星海医院、九龙医院、独墅湖医院等权威医疗机构环伺,为家人健康保驾护航。
双轨三轴枢纽,高效通达全城。项目近邻5号&8号地铁,金鸡湖大道、独墅湖大道、金鸡湖隧道三条黄金主轴,无论是日常通勤还是周末出游,都能轻松抵达城市的每个角落。
文娱商圈荟萃,国际生活的烟火气。山姆会员店、星湖天地、星月坊商业街等商业配套,满足您购物、餐饮、娱乐的全方位需求。
与公园为邻,收藏一座城的诗意。1.6KM可达金鸡湖高尔夫会员专属俱乐部,3KM范围内独墅湖公园等休闲绿境,让您随时享受自然之美。
品牌价值
星合控股,作为国际高端生活运营商,自2003年进入苏州,已在园区深耕20余载。他们倾力打造高端住宅、奢华酒店、潮流商业等标杆作品,与时代共进,全维打造国际化高端生活方式。从苏州晋园别墅到晋合水巷邻里,从晋府水巷别墅到金湖湾,再到洲际酒店、凯悦酒店等,星合控股的每一个作品都彰显着非凡品质与品味。

特别值得一提的是,星合晋墅约11亩湖叙SPACE,作为双湖之畔的艺术会所,是一处时光放缓、心灵栖居的所在。这里精心打造了泳池、羽毛球场、高端健身、家族私宴、亲子阅读室等私享空间,为业主演绎圈层生活的范本。
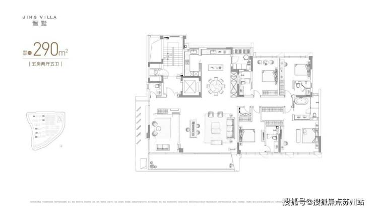
户型鉴赏
星合晋墅从"精神场域构建"到"大宅场景空间",每一处细节都彰显着匠心独运。建面约230㎡-350㎡的低密洋房,空间布局合理,采光通透,无论是三代同堂还是追求品质生活的年轻家庭,都能找到属于自己的舒适空间。
更值得一提的是社区内的联排院墅产品,建面约400㎡-700㎡的稀缺院墅,不仅拥有私家花园,更彰显着非凡的身份与品味。每一处空间都经过精心设计,让家成为心灵的港湾。



优势分析
星合晋墅的优势不仅体现在硬件设施上,更体现在生活的方方面面。首先,项目拥有超低容积率和高绿化覆盖率,在城市中营造出一片宁静绿洲,让业主远离喧嚣,享受自然。其次,项目区域配套完善,无论是教育、医疗、交通还是商业,都能满足现代生活的全方位需求。再者,星合控股20余年的品牌积淀,确保了项目的品质与口碑。最后,项目户型设计合理,空间利用率高,无论是自住还是投资,都具有很高的价值。
在当前苏州楼市政策利好的背景下,星合晋墅不仅是一个理想的家园,更是一项明智的投资选择。随着苏州城市发展的不断推进,园区板块的价值将持续攀升。星合晋墅凭借其优越的地理位置、完善的配套、卓越的品质和强大的品牌背书,未来价值可期。
特别是在当前多重苏州楼市政策利好的加持下,无论是首次置业还是改善型需求,都是入手的绝佳时机。换房退个税政策、新房补贴政策以及旧房装修补贴政策,都将大大降低置业成本,让更多人能够拥有理想中的家园。
星合晋墅,不仅是一处居所,更是一种生活美学的体现。在这里,您可以享受到城市与自然的和谐共生,感受到高品质生活的魅力。选择星合晋墅,就是选择了一种更加美好的未来。
联系方式
咨询热线:18662309054
声明:本文由入驻焦点开放平台的作者撰写,除焦点官方账号外,观点仅代表作者本人,不代表焦点立场。


