中环云悦府售楼处电话→中环云悦府售楼中心→中环云悦府楼盘百科→首页网站→楼盘百科→首页网站→24小时热线电话价格-地址-楼盘详情-户型配套-售楼处电话
扫描到手机,新闻随时看
扫一扫,用手机看文章
更加方便分享给朋友
上海普陀中环云悦府售楼处电话:400-8123-664
案场预约制 看房需提前来电预约登记
温馨提示:点击上方号码可直接拨打电话
请务必致电与销售确认时间,仅预约客户可进入销售现场,感谢您的支持
最新消息,800万级王炸盘!三轨交+醇熟配套+双国企匠造「象屿交控·中环云悦府」三期正在热销中!
中环云悦府售楼处电话:400-8123-664中环云悦府售楼处电话:400-8123-664

中环云悦府售楼处电话:400-8123-664中环云悦府售楼处电话:400-8123-664中环云悦府售楼处电话:400-8123-664中环云悦府售楼处电话:400-8123-664
Prix total environ 8 millions de classes
总价约800万级
Intersection à trois voies par le centre
中环旁 三轨交
Shuangsok qualité fabriquée par le fabricant
双国企品质匠造
Elephant orchid contrôle ・ central yunyue house
象屿交控·中环云悦府
Heavy pound à venir!
重磅来袭!
Acheter une maison à shanghai, en particulier dans le quartier central de shanghai pour améliorer le groupe de clients, la qualité de la vie a des exigences très élevées, plus le désir de la qualité du logement de classe "luxe"!
在上海买房,尤其是在上海中环置业的改善客群,对居住品质更是有着超高要求,更渴望“奢侈品”级的住房品质!
Pas seulement la qualité. Le terrain, le prix, le développement futur ne sont pas des facteurs qui seront pris en compte lors de l’achat d’une maison.
不仅仅是品质,地段、价格、未来发展,无一不是买房时会考虑到的因素。
Vous pouvez acheter une maison à shanghai, souvent «vous ne pouvez pas avoir le poisson et l’ours». Vouloir trouver un produit équilibré pour le développement de tous les aspects, est «difficile comme un jour».
可在上海买房,往往是“鱼与熊掌不可兼得”,想要找到一个全方面发展均衡的产品,可谓是“难如登天”。
La qualité, le terrain, le développement futur est bon, mais bien au-delà du budget;
品质、地段、未来发展好的,却远超预算;
Les nouvelles maisons dans le budget, souvent un peu manque en termes de qualité, de terrain, de développement futur, etc.
预算内的新房,往往在品质、地段、未来发展等处稍有欠缺。
Mais aujourd’hui, mais il y a une telle nouvelle plaque, situé dans le centre de la ville, trois voies croisées autour, autour de l’alcool assorti, excellente qualité, le rapport qualité-prix est également extrêmement élevé!
可如今,却有这样一个新盘,位于市区中环、三轨交环绕、周边配套醇熟、品质优秀、性价比也是极高!
C’est un combattant polygonal entièrement développé!
可谓是全面发展的多边形战士!
TA est guang lanta contrôle ・ central yunyue house!
TA就是象屿交控·中环云悦府!
Numéro de téléphone du bureau des ventes de yunyue central :400-8123-664
中环云悦府售楼处电话:400-8123-664中环云悦府售楼处电话:400-8123-664

Numéro de téléphone: 400-8123-664central yunyue hall des ventes: 400-8123-664central yunyue hall des ventes :400-8123-664
中环云悦府售楼处电话:400-8123-664中环云悦府售楼处电话:400-8123-664中环云悦府售楼处电话:400-8123-664中环云悦府售楼处电话:400-8123-664
【 guang lanta contrôle ・ central yunyue hall 】 image réelle de la zone de démonstration
【象屿交控·中环云悦府】示范区实景图
Xiangyu yu contrôle ・ central yunyue fu pour environ 8 millions de classe de marché, je pense que la réduction de la dimension de la présence de la frappe:
象屿交控·中环云悦府对于约800万级的市场而言,我认为是降维打击的存在:

Numéro de téléphone du bureau des ventes de yunyue central :400-8123-664
中环云悦府售楼处电话:400-8123-664中环云悦府售楼处电话:400-8123-664
Ressources complémentaires abondantes pour profiter de la qualité de vie
丰富配套资源 纵享品质生活
Puxi acheter une maison autour du sujet ne peut pas ouvrir - la boucle.
浦西买房绕不开的话题——环线。
Plus la boucle intérieure, plus le prix de l’immobilier, la théorie de la boucle ne finit jamais!
越往内环走、房价越贵,环线理论永不落幕!
Le yunyue hall central a un emplacement de disque rouge naturel. Plus près du centre et de la ville, il est destiné à être extraordinaire.
中环云悦府拥有天生的红盘位置,更靠近中环、更靠近市区的地段让它注定不平凡。
La certitude de la ville, parce que dans ces endroits que les yeux peuvent atteindre, les oreilles peuvent entendre et les mains peuvent atteindre, il y a une vie mûre et parfaite. Les écoles, la culture, les cercles d’affaires, le métro et les hôpitaux ne doivent absolument pas s’inquiéter. Qui peut maintenant refuser une telle énergie mûre assorti!
对市区的笃定,是因为在目光所及、耳所能听、手所能及的这些地方,有成熟而完善的生活配套,学校、文化、商圈、地铁、医院是完全不必担忧的,现在谁还能拒绝如此高能的成熟配套!

Numéro de téléphone du bureau des ventes de yunyue central :400-8123-664
中环云悦府售楼处电话:400-8123-664中环云悦府售楼处电话:400-8123-664
Le choix entre les zones urbaines et non urbaines, comme si vous avez le choix entre les chambres principales et les chambres d’hôtes, le résultat parle d’elle-même.
对市区和非市区的选择,就好像让你在主卧和客卧中选择一样,结果不言而喻。
La zone urbaine est le centre d’une ville. La zone urbaine centrale a souvent un positionnement de développement plus élevé, plus de voix et contient également de plus grandes perspectives de développement.
市区是一座城市的中心,中心城区往往有着更高的发展定位、更多的话语权、也蕴含了更大的发展前景。
Central yunyue house est situé à côté et plus près de la centrale, un tel emplacement est développé transport interurbain, logement très confortable;
中环云悦府位于中环旁且更靠近中环,这样的位置城际交通发达,自住非常舒适;
En même temps, il est une maison de métro standard, à environ 500 mètres à ligne droite de la station kean lu sur la ligne 15, pour atteindre facilement les différents nœuds commerciaux.
同时它还是标准的地铁房,直线距离15号线祁安路站约500米,轻松到达各个商业节点。
Numéro de téléphone du bureau des ventes de yunyue central :400-8123-664
中环云悦府售楼处电话:400-8123-664中环云悦府售楼处电话:400-8123-664
Rendu, pour référence seulement
效果图,仅供参考
En ce qui concerne l’autoconduite, il dispose d’un réseau de circulation routière tridimensionnel à trois côtés et quatre côtés:
在自驾方面拥有三横四纵的立体式道路交通网络:
Sanheong: shanghai jia express, beijing shanghai express et la ligne centrale surélevée;
三横:沪嘉高速、京沪高速、中环高架;
Quatre longitudinales: la baie surélevée centrale, la grande vitesse de la boucle extérieure, la baie surélevée nord-sud, la baie surélevée de la route de yixian.
四纵:中环高架、外环高速、南北高架、逸仙路高架。
Peut atteindre la ville de nanxiang xingcheng ainsi que le cercle d’affaires de daning et le cercle d’affaires de pentagone, le cercle d’affaires de jingan, le cercle d’affaires de xintiandi, le district d’affaires de hongqiao, le cercle d’affaires de lujiazi, par la ligne circulaire centrale peut rencontrer le cercle de vie métropolitain de tous les grands centres urbains de shanghai.
可以通达南翔印象城以及大宁商圈和五角场商圈,静安商圈、新天地商圈、虹桥商务区,陆家嘴商圈,通过中环线可满足上海各大城市中心都市生活圈。
Numéro de téléphone du bureau des ventes de yunyue central :400-8123-664
中环云悦府售楼处电话:400-8123-664中环云悦府售楼处电话:400-8123-664
Les transports en métro sont également très accessibles. Trois lignes de métro facilitent les déplacements:
地铁交通也是十分方便,三条地铁线让出行更简单:
Ligne 15: kean road 1 et 2 à distance droite d’environ 500 mètres;
15号线:祁安路1、2号口直线距离约500米;
Il est également à environ 500 mètres de la station de métro gu longlu.
距离古浪路地铁站直线距离也是约500米左右。
Numéro de téléphone du bureau des ventes de yunyue central :400-8123-664
中环云悦府售楼处电话:400-8123-664中环云悦府售楼处电话:400-8123-664
Ligne 11: accès à la route qilian dans un rayon de deux kilomètres
11号线:两公里内可达11号线祁连山路
Ligne 26: la ligne super grand périphérique central (en projet), greffé sur la ligne 15 gulongang road station ainsi que la ligne 11 qilian mountain road. Après l’ouverture à la circulation, il sera possible d’atteindre les différents secteurs de la zone commerciale centrale à partir de ce projet. Le futur projet réalisera trois voies autour du réseau de transport ferroviaire.
26号线:中环超级大环线(规划中),嫁接15号线古浪路站以及11号线祁连山路,通车之后从本项目可达中环各个板块商圈,未来项目会实现三轨环绕轨道交通路网。
Numéro de téléphone du bureau des ventes de yunyue central :400-8123-664
中环云悦府售楼处电话:400-8123-664中环云悦府售楼处电话:400-8123-664
Schéma du métro ligne 15
地铁15号线示意图
Comparé à d’autres maisons neuves dans le même segment de prix sur le marché.
相比于市面上其他同价段的新房。
Le soutien de yunyue house est rare, les vêtements, la nourriture et le logement, l’éducation médicale et l’écologie sont tous facilement disponibles, pas besoin d’attendre du tout, ou s’inquiéter d’acheter est la planification future.
云悦府的配套是难得的衣食住行、医疗教育生态全是现成就有的,完全不需要等待,或者担心买的是未来规划。
À environ 300 mètres en ligne droite du projet, c’est le parc de la rivière momoura qui sera bientôt ouvert et construit, un bon choix pour la vie future loisirs peut être accessible à pied.
距离项目直线约300米,就是即将开建的桃浦河公园,未来生活休闲步行可达的一处好选择。
Renderings centre yunyue bureau des ventes tel :400-8123-664 centre yunyue bureau des ventes tel :400-8123-664
效果图中环云悦府售楼处电话:400-8123-664中环云悦府售楼处电话:400-8123-664
À environ 500 mètres en ligne droite du projet sur la ligne 15, station qian lu, en construction sur le projet de couverture du métro TOD.
距离项目直线约500米的15号线祁安路站,在建TOD地铁上盖项目。
Il est prévu que la construction sera terminée en 2024, avec une superficie totale de construction d’environ 91.000 ㎡. Il est positionné comme un complexe commercial de type communautaire qui intègre plusieurs modes de vie et de shopping, de divertissement, de restauration et de nourriture, de loisirs, de remise en forme, de formation des enfants et de divertissement.
预计2024年竣工,总建筑面积约为9.1万㎡,定位为集生活购物、娱乐、餐饮美食、休闲、健身、儿童培训及游乐等多重业态为一体的社区型商业综合体。

Centre yunyue bureau des ventes téléphone :400-8123-664 centre yunyue bureau des ventes téléphone :400-8123-664 rendu
中环云悦府售楼处电话:400-8123-664中环云悦府售楼处电话:400-8123-664效果图
Autour actuellement également construit surface environ 5000㎡ taopu xingpin vera communauté de type commercial pour répondre aux besoins de la vie quotidienne, a introduit une variété de formats de la marque, tels que la restauration, les loisirs, la remise en forme, l’éducation et ainsi de suite.
周边目前还有建面约5000㎡桃浦星品荟社区型商业以满足日常生活需求,引入了餐饮、休闲、健身、教育等多种业态品牌。
En outre, la baie de mopu «TOP ONE» dans le jardin supérieur de mopu zhichuang en tant que nouveau corps commercial, la surface commerciale totale est d’environ 25 000 parties.
另外,桃浦智创TOP园内的桃浦湾“TOP ONE”作为新晋商业体,总商业面积约2.5万方。

central
中环
Central yunyue hall des ventes tel :400-8123-664 central yunyue hall des ventes tel :400-8123-664
中环云悦府售楼处电话:400-8123-664中环云悦府售楼处电话:400-8123-664示意图
En ce qui concerne l’éducation, il est entouré de ressources éducatives telles que l’école maternelle putuo du fonds mondial pour les enfants (public), l’école expérimentale putuo (public), l’école venda (public) et l’école expérimentale Thomas (privé).
教育方面,周边更是儿童世界基金会普陀幼儿园(公办)、上外附属普陀实验学校(公办)、文达学校(公办)、托马斯实验学校(民办)等教育资源环绕。
Soutien médical, à une distance linéaire d’environ 2km à l’intérieur de l’hôpital spécialisé de troisième niveau shanghai deji, l’hôpital tianyou.
医疗配套,直线距离约2km范围内有三级专科上海德济医院、天佑医院。
Toute la région, en termes de lots, d’assortiments, de perspectives et de valeurs, est au sommet du cercle central.
整个区域论地段、论配套、论前景、论价值,都是中环线上的佼佼者。
Donc, nous avons toujours dit momoura sera la couronne sur le futur central.
所以我们一直说,桃浦会是未来中环上的王冠。
Et la perle de la couronne est sans aucun doute xiangyu yu control central yunyue fu, qui est entouré par une double croisée de rails et à seulement 1,5 km de la centrale.
而王冠上的那颗明珠,无疑就是双轨交环绕、距离中环仅约1.5km的象屿交控·中环云悦府。
Il faut déplorer que la vision du site de l’île des orchidées n’ait jamais déçu.
不得不感叹,象屿的择址眼光,从未让人失望过。
Maison de très haute qualité
超高品质住宅

Numéro de téléphone du bureau des ventes de yunyue central :400-8123-664
中环云悦府售楼处电话:400-8123-664中环云悦府售楼处电话:400-8123-664
Les deux entreprises d’état fabriquent l’interprétation de la plaque véritable benchmark
双国企匠造 诠释板块真标杆
Pour les produits, xiangyu yu contrôle · zhonghuan yunyufu est créé par xiangyu yu estate & zhejiang xiaoyu contrôle double fortune world 500, les deux entreprises d’état.
产品方面,象屿交控·中环云悦府是由象屿地产&浙江交控双《财富》世界500强、双国企打造。
Et les produits du département "yue fu" de l’île des orchidées, est certainement l’un des courants supérieurs de shanghai.
而象屿的“悦府”系产品,绝对是上海的顶流之一。
Le groupe immobilier elephant island est bien connu de tous.
象屿地产集团大家都非常熟悉。
Présent à shanghai depuis 2005, avec près de 20 ans d’expérience mûre et de développement, nous avons réussi à créer des projets classiques tels que daning yue house, hongqiao yue house, park yue house, riding yue house, hongqiao jiayue, shanghai wai, red house, park 1872.
自2005年就已进入上海,近20年成熟开发经验,成功打造了象屿大宁悦府、虹桥悦府、公园悦府、滨江悦府、虹桥嘉悦府、上海年华、蟠龙府、公园1872等经典项目。
Parmi eux, xianglanta ningyue fu est devenu l’un des points de référence toujours érigé sur le périphérique central de shanghai.
其中,象屿大宁悦府更是成为了始终竖立在上海中环线上的标杆之一。
En 2023, le troisième lot de terre battu, eleguang yu a été successivement dans le lac jiading yuanxiang et bonghyan jinhuizi deux grands projets de qualité, apparaîtra en 2024.
2023年第三批次土拍,象屿又先后在嘉定远香湖和奉贤金汇落子两大优质项目,都会在2024年面世。
C’est une reconnaissance pour la meilleure vision du site, la valeur des produits du groupe lantau.
这是对于象屿集团择址眼光、产品价值更好的认可。

Numéro de téléphone du bureau des ventes de yunyue central :400-8123-664
中环云悦府售楼处电话:400-8123-664中环云悦府售楼处电话:400-8123-664
Schéma, sources de données
示意图,数据来源链家
Et après de nombreuses années, l’île des orchidées de elephant est tombée une fois de plus près de la huanhuan central, va créer un tout nouveau projet "yue fu".
而时隔多年,象屿又一次落子中环旁,将打造了全新的“悦府”项目。
Ce sera sans aucun doute la nouvelle couverture de qualité de la centrale, mais aussi la série centrale 2023!
这无疑会是中环新的品质封面,也会是中环2023年的立序之作!
Plus important encore, cette fois, l’île de xiang yu se joindra à la province de zhejiang pour mener à bien ce grand projet ensemble.
更重要的是,这一次象屿还将联手浙江交控,一起来完成这个伟大的项目。
Zhejiang XTC est une entreprise leader dans l’industrie résidentielle dans la province de zhejiang.
浙江交控是浙江省住宅产业领军企业。
Notre société a été fondée dans les années 1990, a remporté les titres de l’entreprise de marque immobilière chinoise, unité de réputation nationale AAA, leader de l’industrie résidentielle de zhejiang, top 10 marques immobilières de zhejiang, etc.
公司创始于上世纪90年代,曾荣获中国房地产品牌企业、国家AAA级信誉单位、浙江省住宅产业领军企业、浙江省房地产品牌10强等称号。
En outre, nous avons créé le centre d’affaires international de hangzhou mingzhu, le printemps de linan taoli, la ville d’émeraude de hangzhou, hangzhou xiaolu, shanghai zhetiei changfeng centre, la péninsule de jiaxing lijiang, zhoushan hofeng xiaolu et beaucoup d’autres projets de qualité célèbres de zhejiang.
更是打造了杭州明珠国际商务中心、临安桃李春风、杭州翡翠城、杭州晓庐、上海浙铁长风中心、嘉兴丽江半岛、舟山荷风晓庐等众多浙江知名品质项目。

Numéro de téléphone du bureau des ventes de yunyue central :400-8123-664
中环云悦府售楼处电话:400-8123-664中环云悦府售楼处电话:400-8123-664
Shanghai changfeng centre rendu
上海长风中心效果图
La coopération entre les deux entreprises d’état, les produits du département de yue atterrissent une fois de plus dans la zone centrale, sans surprise.
双国企的合作,悦府系产品再一次落地中环,无不让人惊喜。
Cette fois guang yu yu contrôle ・ central yunyue maison est une nouvelle œuvre, du niveau de l’apparence au sens du rituel, du paysage à la configuration de la communauté, est le top de la correspondance!
本次象屿交控·中环云悦府更是迭新之作,从颜值到仪式感,从景观到社区配置,都是顶配!
Niveau d’apparence: la façade globale du bâtiment du projet au premier et au deuxième étage de la partie du socle est en Pierre, la partie principale de trois étages et plus est principalement en verre + mur rideau en aluminium.
颜值:项目整体建筑立面一二层基座部分为石材,三层及以上主体部分以玻璃+铝板幕墙为主。
Le mur rideau léger, la frontière tridimensionnelle et la couronne de tour en cristal, l’effet global du bâtiment est moderne et raffiné, en accord avec l’esthétique de l’art contemporain.
光感幕墙、立体边框、晶体塔冠,建筑整体效果现代精致,契合当代艺术美学。
À l’avenir, d’innombrables personnes qui traverseront le centre de la ville pourront admirer cette belle silhouette urbaine, symbole de l’identité du propriétaire.
未来无数人从中环驶过,都能眺望到这道靓丽的城市天际线,这是业主身份的象征。

Schéma central yunyue bureau des ventes tel :400-8123-664 central yunyue bureau des ventes tel :400-8123-664
示意图中环云悦府售楼处电话:400-8123-664中环云悦府售楼处电话:400-8123-664
Sens de la cérémonie: si vous rentrez chez vous en voiture, ce garage bien conçu vous donnera certainement un sentiment plus fort de distinction.
仪式感:如果您是驾车归家,那这个精心设计的车库,一定会给你更强烈的尊贵感。
Combiné avec le hall d’entrée au-dessus du sol et le souterrain, ainsi que tous les foyers d’ascenseur de la zone publique, ont adopté la configuration de couverture carrée de qualité, ce sens de cérémonie, ne peut être expérimenté que dans les dizaines de millions de maisons de luxe dans la ville.
再加上地上地下入户大堂以及所有的公区电梯门厅,都采用了品质精装配置,这个仪式感,只能在市区大几千万的豪宅中才能体验。

Renderings centre yunyue bureau des ventes tel :400-8123-664 centre yunyue bureau des ventes tel :400-8123-664
效果图中环云悦府售楼处电话:400-8123-664中环云悦府售楼处电话:400-8123-664
Soutien de la communauté: la communauté a environ 2000 étages ou environ club souterrain, les fonctions comprennent: piscine chauffée, salon, gymnase, salle de yoga, salle de jeux, parc pour enfants, etc., à l’avenir, sans quitter la communauté peut répondre aux besoins de loisirs et de sports de divertissement.
社区配套:社区拥有约2000平左右的地下会所,功能包含:恒温泳池、会客厅、健身房、瑜伽室、棋牌室、儿童乐园等,未来不出小区就可以满足休闲娱乐运动的需求。
Il y a aussi dans la communauté environ 150 places de parc pour tous les âges pour les enfants, environ 600m de piste de randonnée circulaire, et quatre espaces de zonage surélevés....
社区内还有约150平的全龄段儿童乐园、约600m的环形漫步跑道、还有四大架空层分区空间...

Renderings centre yunyue bureau des ventes tel :400-8123-664 centre yunyue bureau des ventes tel :400-8123-664
效果图中环云悦府售楼处电话:400-8123-664中环云悦府售楼处电话:400-8123-664
Type de maison: ce lot a lancé 244 ensembles de surface de construction environ 99-155㎡3-4 pièces, environ 81.000 /㎡!
户型:本批次推出244套建面约99-155㎡3-4房,约8.1万/㎡!
Dont la grande chambre quadruple de 155m² est une première!
其中155m²的大四房更是首开!
Le prix total est d’environ 8 millions à bord de la voiture centrale, honnêtement cet avantage de prix, est déjà manqué plus.
总价约800万起就能上车中环旁,说实话这个价格优势,已经是错过不再了。
Mais xiangyu et zhejiang ont donné, mais pour ce produit assez avantageux en termes de prix, a ajouté un niveau plus élevé de couverture rigide:
但象屿和浙江交投,却为这个颇具价格优势的产品,加入更高水准的精装标准:
Pour faciliter la vie quotidienne, comme la maison de luxe traditionnelle trois grandes pièces, le projet utilise daikin marque climatisation centrale chauffage au sol deux fournitures, et le vent frais de gransko.
为日常起居提供便利,像传统的豪宅三大件,项目采用大金品牌中央空调地暖两联供,以及格兰斯柯的新风。
Espace cuisine, sélection des nouvelles hottes, plaques de cuisson, lave-vaisselle de siemens, etc.
厨房空间,甄选西门子新款的抽油烟机、灶具、洗碗机等。
Même les réfrigérateurs qui ne sont pas fournis dans la plupart des projets sont livrés en standard. Ils sont également spécialement configurés avec une prise de rail, un épurateur d’eau avant et une bulle froide, une porte de levage en verre métallique sur rail pour un nettoyage esthétique et facile.
甚至连大部分项目不配备的冰箱也是交付标准,还特别配置了轨道插座、前端净水器和凉霸、吊轨金属玻璃移门,既美观又方便清理。
中环云悦府售楼处电话:400-8123-664中环云悦府售楼处电话:400-8123-664
中环云悦府售楼处电话:400-8123-664中环云悦府售楼处电话:400-8123-664
卫浴方面,采用高仪的台盆、龙头、智能马桶、淋浴花洒等。
中环云悦府售楼处电话:400-8123-664中环云悦府售楼处电话:400-8123-664
主卫创新定制“美妆冰箱”,满足业主对美妆、护肤用品冷藏的需求足见开发商对成本的舍得。中环云悦府售楼处电话:400-8123-664中环云悦府售楼处电话:400-8123-664
入户后,玄关柜也是交付标准,不仅配备了“除臭精灵”,下方更预留了扫地机器人的空间,整个精装不仅是单纯的大牌堆砌,更体现了“拎包入住”的实用性。中环云悦府售楼处电话:400-8123-664中环云悦府售楼处电话:400-8123-664
中环云悦府售楼处电话:400-8123-664中环云悦府售楼处电话:400-8123-664
大门更是自带猫眼的四合一智能门锁,配合定制的门牌号与logo集合而成的入户门,彰显着主人的品位与尊贵地位。
中环云悦府售楼处电话:400-8123-664中环云悦府售楼处电话:400-8123-664
中环云悦府售楼处电话:400-8123-664中环云悦府售楼处电话:400-8123-664
项目此次的室内装标除了品质大牌外,还精研了人居的细节,所选款型除了是耳熟能详的大品牌外,更是选用搭配了贴近市场的功能新款。
在其他开发商贴着装修标准算账线做设计的时候,象屿和交控选择高于市场标准去做装标配置,真正可谓诚意十足。
在当前的市场行情下,项目通过打磨,真正能专心花时间做产品,除了彰显了背后两家开发商的硬实力也充分展示了开发商的一种品质和责任担当,也确实看出来两家500强国企都不想辜负浦西中环线这一黄金地块。
从这一点上看,中环云悦府在产品端无疑也是降维打击的存在,整体配置放眼上海时下的单价10万+以内所有产品,云悦府的产品力是相当能打的,这份产品答卷相信购房者到了实地看完后,都能被打动且真实感受到满满的诚意。
示意图,非交付标准

中环云悦府售楼处电话:400-8123-664中环云悦府售楼处电话:400-8123-664
高能规划发展 决定未来高度

2023年以来,普陀中外环房地联动价持续走高,先是从7.9万/㎡,涨到8.3万/㎡,再到8.55万/㎡。在四批次土拍中,更是狂飙至10.2万/㎡!同样中环旁,同一个行政区,从7.9万/㎡,到10.2万/㎡,不到一年的时间,房价相差整整2.3万/㎡!
中环旁作为上海发展更有潜力的区域,不仅有环线带来的区位优势,还有各项政策利好倾斜,产业、教育、医疗、轨交等配套资源加持,这里是购房者紧盯和看好的区域,大家用“真金白银”力挺,才会带来如此的数据涨幅。
除了前文提到的配套、品质、地段等,项目的高能级未来发展实力也不容小觑!
能够决定一个板块未来高度的,一直都是产业的加持。
象屿交控·中环云悦府位于桃浦智创城核心区,桃浦智创城板块,总体规划437万方,是目前上海中心城区现存不可多得、可成片开发的“黄金宝地”。
桃浦智创城公司董事长王慎曾说,将按照黄浦江两岸的开发标准和现代化国际大都市中心城区的一流标准来规划建设桃浦智创城。
从定位上来说,桃浦智创城要打造的是中心城区转型迭新的示范区与上海科创中心重要承载区,从形式上来说和张江科学城有点像,但是要更加细致、功能更全。

效果图中环云悦府售楼处电话:400-8123-664中环云悦府售楼处电话:400-8123-664
光商办体量就规划了约207万方,已经超过了约197万方的前滩、约126万方的新天地,再加上76万方的科创板块,区域后续的发展绝对值得期待。

示意图中环云悦府售楼处电话:400-8123-664中环云悦府售楼处电话:400-8123-664
这些并不是“喊口号”,而是实打实的在逐步落地。
目前部分建成的体量中最大的项目是智创TOP产城综合体,规划建筑面积有113万方,同时已经开始对外招商。作为桃浦地区转型发展的首发项目,由临港集团下属上海市工业区开发总公司主导开发。

示意图中环云悦府售楼处电话:400-8123-664中环云悦府售楼处电话:400-8123-664
目前,智创TOP的A区已先后引入了东方雨虹、德爱威、乐凯新材料等先进材料头部企业,上海电力高压、李园实业等总部办公相继入驻,这些都是税收千万级的总部型企业。已经能够可以形成产业链创新链的基础,而这种园区集聚、龙头带动的业态也是桃浦产业发展从零开始的一个很好开端!
另外,周边几个商办地块也在推进进度。其中包含了603地块的华谊集团就地转型项目,604地块的英雄天地项目。
中环云悦府售楼处电话:400-8123-664中环云悦府售楼处电话:400-8123-664
效果图
随着多年的开发,产城高度融合发展的国际化生态示范区初具规模。

中环云悦府售楼处电话:400-8123-664中环云悦府售楼处电话:400-8123-664
示意图
相信不久后,桃浦智创城将会有大量的高知人才在此居住和工作。

中环云悦府售楼处电话:400-8123-664中环云悦府售楼处电话:400-8123-664

中环云悦府售楼处电话:400-8123-664中环云悦府售楼处电话:400-8123-664
在社区配套方面:社区拥有约2000平左右的地下会所,功能包含:恒温泳池、会客厅、健身房、瑜伽室、棋牌室、儿童乐园等

中环云悦府售楼处电话:400-8123-664中环云悦府售楼处电话:400-8123-664
效果图
社区内还有约150平的全龄段儿童乐园、约600m的环形漫步跑道、还有四大架空层分区空间...
中环云悦府售楼处电话:400-8123-664中环云悦府售楼处电话:400-8123-664
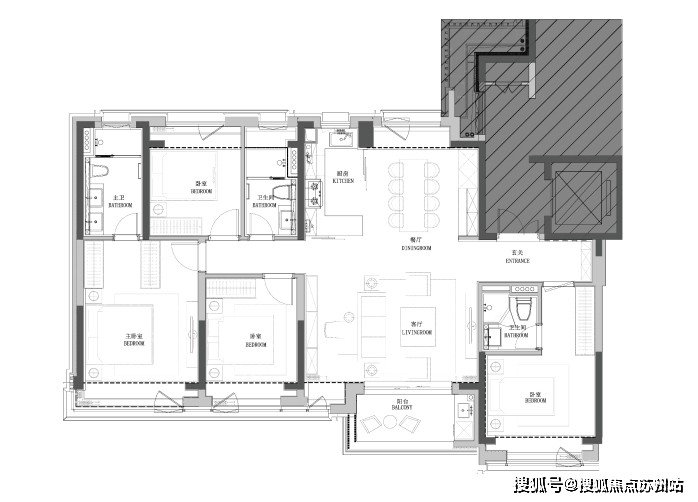
项目户型图如下:
(过程稿,仅供参考以开发商正式公示为准)
建面约87m²3房2厅1卫
建面约99m²3房2厅2卫
中环云悦府售楼处电话:400-8123-664中环云悦府售楼处电话:400-8123-664
建面约135m²4房2厅2卫
中环云悦府售楼处电话:400-8123-664中环云悦府售楼处电话:400-8123-664
建面约155m²4房2厅2卫
项目样板间


中环云悦府售楼处电话:400-8123-664中环云悦府售楼处电话:400-8123-664
中环云悦府售楼处电话:400-8123-664中环云悦府售楼处电话:400-8123-664



中环云悦府售楼处电话:400-8123-664中环云悦府售楼处电话:400-8123-664


这套设计以"多元之美"为核心理念,让色彩成为空间的绝对主角。设计师在张扬艺术表现力的同时,精准把握了居住功能的平衡,让绚丽的色彩不仅停留在视觉层面,更与生活场景完美融合,打造出既充满艺术张力又舒适宜居的独特空间。

平面布置图



空间以原木与暖白为基调,硬装简洁统一,营造出自然温润的氛围。大面积的原木元素赋予家居独特的个性,而柔和的色调又带来温馨舒适的居住感,让整个家在简约中透出温暖,在自然中彰显质感。


客厅以浓烈的色块碰撞与不规则几何图形挥洒创意,每一处笔触都暗藏巧思——跳脱的色块象征家人的鲜明个性,随性的线条勾勒女儿的奇思妙想。这些充满张力的艺术表达,在空间中交织成独特的视觉诗篇,让整个客厅焕发着鲜活的艺术生命力。



这款灯具以传统烛台为灵感,通过现代设计语言重塑经典。其精妙的造型既保留了古典韵味,又赋予前卫个性。当灯光亮起,柔和光晕缓缓流淌,营造出温暖怀旧的氛围,让人仿佛穿越时空,重温烛光摇曳的浪漫往昔。



桌面采用三块原木创意拼接,天然木纹错落交织,呈现出温暖质朴的肌理。突破传统的造型设计充满浪漫主义色彩,大胆的构成手法与自然材质碰撞,既展现原始木质的温润美感,又彰显特立独行的设计格调。




餐厅运用横向视觉设计,将视线自然引向上方。通过层次分明的空间构图,如展开卷轴般的艺术效果。在保留采光通透性的同时,将原本单调的视野转化为一幅若隐若现的流动画卷,让用餐空间充满诗意般的视觉韵律。




黄铜吊灯以绽放的花瓣为形,轻盈垂落如荷叶摇曳,在光影流转间凝固时光的诗意,为空间注入灵动的艺术气息。



灯罩轻柔环抱光源,当点亮时,光线从细腻的缝隙间流淌而出,化作均匀柔和的光晕,在空间中温柔漫散。



开放式格局打破传统走廊的束缚,让空间豁然贯通。精心设计的布局与细腻的装饰细节相得益彰,营造出通透大气的整体效果。







床头后方空间打造嵌入式书桌,既提升空间利用率,又为女儿辟出一方安静的学习天地。团队以专业素养为根基,将严谨的工作态度与创新热情注入设计,通过理性规划与艺术表达的完美结合,最终呈现出一个既实用又充满温度的梦想居所。





福建·福州|项目地点
240㎡|项目面积
北城梁筑|设计机构
Howie|项目摄影


本案是福清市的一处极简主义住宅,以纯白色调和极致简练的造型语言,在满足功能需求的基础上重构空间关系。设计师通过精准的尺度把控与纯粹的设计笔触,将空间、人与物件巧妙融合,用最克制的设计手法,演绎出富有诗意的生活场景,在简约中展现深邃的空间感染力。

平面布置图




摒弃既定风格框架,以去标签化的设计语言,为居住者构筑一方自由生长的空间画布,让生活在此自然舒展,折射出独特的时代精神印记。


客厅突破传统布局,以艺术策展思维重构空间:米黄洞石层板陈列着环球收藏,钴蓝地毯铺就艺术基底,纯白棉麻沙发与红洞石茶几宛若雕塑装置,共同构筑出充满精神性的生活艺廊。



空间褪去风格外衣,以纯粹留白成就居住者的诗意独白。开放式格局中,每个角落都成为自我对话的舞台,不是潮流的复刻,而是构筑可呼吸的精神栖居地。




空间中的每件器物都是业主亲手挑选的时光印记,如同不断生长的记忆切片。家并非完成态,而是随着居住者的生活叙事,在时间长河里持续演变的生命体。



108㎡ | 建筑面积
廿上设计事务所 | 设计公司
福建 福清 | 项目地址
Lizi | 摄影版权
图片:北城梁筑、廿上设计事务所
文字整理:建E室内设计网
如有侵权,联系删除
更多设计案例,可以去建E网查看下载
www.justeasy.cn
-


私宅设计:173㎡干净的空间里,藏着一屋子的阳光
Benoit Viaene | 比利时设计的静谧克制

私宅设计:450㎡暗黑个性化住宅,将热爱融入日常点滴!
上海普陀中环云悦府售楼处电话:400-8123-664
案场预约制 看房需提前来电预约登记
温馨提示:点击上方号码可直接拨打电话
请务必致电与销售确认时间,仅预约客户可进入销售现场,感谢您的支持
声明:本文由入驻焦点开放平台的作者撰写,除焦点官方账号外,观点仅代表作者本人,不代表焦点立场。


