苏州难得小户型!又一纯新盘曝光!两房为主!
搜狐焦点苏州站 2025-12-08 16:44:22
用手机看
扫描到手机,新闻随时看
扫一扫,用手机看文章
更加方便分享给朋友
在拿地1年多之后,相城区渭塘板块纯新盘73号地块项目的建设工程规划批后公示,这也是项目信息首次曝光。项目地块用途为城镇住宅用地,建筑面积126530.23平,计容建筑面积87003.03平,最大建筑高度59.…
在拿地1年多之后,相城区渭塘板块纯新盘73号地块项目的建设工程规划批后公示,这也是项目信息首次曝光。

渭塘73号地块项目,即,苏地2023-WG-73号地块,位于相城区渭塘镇渭中路南、玉盘路东,是2023年11月1日,禾之江置业&渭塘房地产74681 以底价74440万元竞得,成交楼面价8500元/平。
项目地块用途为城镇住宅用地,建筑面积126530.23平,计容建筑面积87003.03平,最大建筑高度59.8米,容积率1.98,绿地率38%。
根据规划,项目拟建8栋19F住宅。咨询热线:18662309054
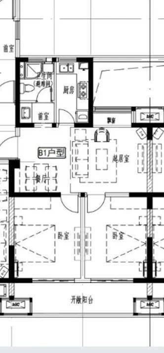
同时,项目公示了11#的户型标准层示意图。
3-8#,19F小高层
西边户
中间户
1#、2#
A1户型
C户型
- End -
更多楼盘信息
声明:本文由入驻焦点开放平台的作者撰写,除焦点官方账号外,观点仅代表作者本人,不代表焦点立场。


