星合晋墅:双湖畔低密豪宅,政策利好助力品质安家
扫描到手机,新闻随时看
扫一扫,用手机看文章
更加方便分享给朋友
政策春风拂面,安家正当时
近期苏州楼市迎来多重利好政策,公积金新政的出台为购房者提供了实实在在的支持。从贷款额度上浮到利率下调,从多子女家庭专项优惠到人才补贴,再到首付比例的降低,一系列政策组合拳让购房门槛大幅降低,让更多人有机会实现安家梦想。
特别是对于追求品质生活的改善型购房者,购买绿色建筑或"两智一全"住宅可享受额外20%的贷款额度上浮,而星合晋墅正是这样一处集高品质与绿色环保于一体的理想居所。在政策利好的加持下,选择一处心仪的家园,已成为当下许多家庭的明智之选。
基本信息
星合晋墅,这座位于苏州双湖之畔的高端住宅项目,以其约50%的绿化覆盖率和约1.02的低容积率,打造了一个远离喧嚣、亲近自然的居住环境。项目融合了洋房(7层)和院墅(3层)两种业态,主推建面约230㎡-350㎡的低密洋房,以及约400㎡-700㎡的稀缺院墅,满足不同家庭对空间的需求。在这里,每一处设计都彰显着"只定制,不复制"的城市生活美学理念,让居住成为一种艺术。
18662309054
区域配套
生活在星合晋墅,意味着拥有全维优质的生活配套,约3公里范围内即可畅享黄金繁华。教育方面,周边有华林幼儿园、双湖湾教育幼儿园、翰林小学、尹山湖中学等知名学府,为孩子的成长提供优质教育环境。医疗资源同样丰富,双湖区域内集聚了星海医院、九龙医院、独墅湖医院等权威医疗机构,为家人健康保驾护航。
交通出行也十分便捷,近邻5号和8号地铁线,同时拥有金鸡湖大道、独墅湖大道、金鸡湖隧道三条黄金主轴,高效通达全城。商业配套方面,山姆会员店、星湖天地、星月坊商业街等商圈环绕,满足日常购物和休闲需求。此外,1.6KM可达金鸡湖高尔夫会员专属俱乐部,3KM范围内有独墅湖公园等休闲绿境,让您与自然为邻,收藏一座城的诗意。
品牌价值
星合控股,作为国际高端生活运营商,自2003年进入苏州以来,已在园区深耕20余载。公司倾力打造了众多高端住宅、奢华酒店、潮流商业标杆作品,与时代共进,全维打造国际化高端生活方式。从苏州晋园别墅、晋合水巷邻里、晋府水巷别墅,到金湖湾,再到洲际酒店、凯悦酒店等,星合控股的每一个作品都彰显着深厚的国际底蕴和对品质生活的执着追求。
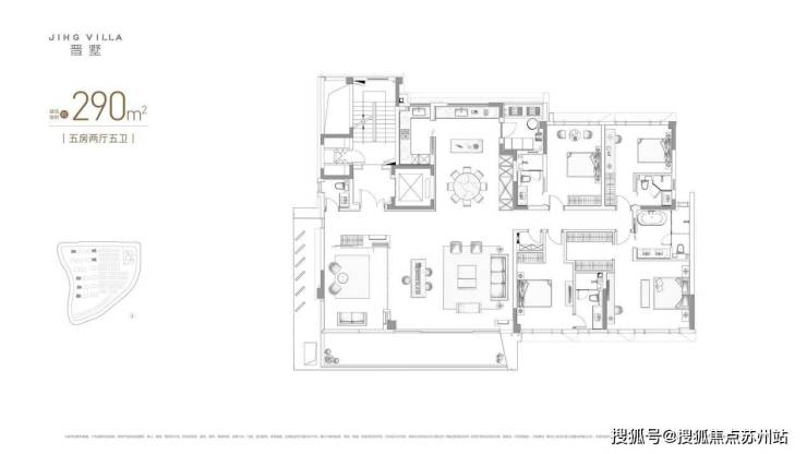
户型鉴赏

星合晋墅从"精神场域构建"到"大宅场景空间",精心打造建面约230㎡-350㎡的低密洋房,每一处细节都彰显着匠心独运。无论是空间布局还是功能设计,都充分考虑了现代家庭的生活需求,让居住更加舒适便捷。
联排产品更是将空间感与私密性完美结合,为您提供更加尊贵的居住体验。
优劣势分析



优势:
低密度社区:容积率仅约1.02,绿化覆盖率高达50%,居住环境舒适宜人
优质区位:双湖之畔,约3公里范围内配套齐全,生活便利
品牌保障:星合控股20余年高端开发经验,品质有保障
产品稀缺:洋房和院墅产品面积较大,适合改善型需求
圈层价值:高端会所配套,汇聚精英人士,提升社区价值
劣势:
价格较高:作为高端项目,总价相对较高
户型面积较大:对于小家庭可能不够经济实用
位置相对偏远:虽然配套齐全,但距离市中心有一定距离
预见未来,生活在此绽放
随着苏州城市发展的不断推进,双湖区域的价值将持续提升。星合晋墅作为区域内的高端住宅项目,不仅拥有得天独厚的自然环境和完善的配套,更承载着对未来生活的美好向往。在政策利好的加持下,这里不仅是安家立业的理想之地,更是资产保值增值的明智选择。
未来,随着区域配套设施的进一步完善和城市功能的不断升级,星合晋墅的居住价值和投资潜力将进一步凸显。选择这里,不仅是选择一处居所,更是选择一种高品质生活方式,一种与城市共成长的人生姿态。
咨询热线:18662309054
声明:本文由入驻焦点开放平台的作者撰写,除焦点官方账号外,观点仅代表作者本人,不代表焦点立场。


