桃园新著2025首页网站|桃园新著售楼处电话|桃园新著在售户型|小区配套|最新价格|周边详情|容积率|楼盘详情
扫描到手机,新闻随时看
扫一扫,用手机看文章
更加方便分享给朋友
苏州桃园新著售楼处电话:400-8828-814✔✔【预约热线】桃园新著售楼处营销中心:400-8828-814桃园新著售楼处电话/地址☎:400-882-8814(开发商热线)如有问题欢迎来电咨询,专业一对一热情服务,让您用专业眼光去买房。 国企匠造,公园洋房 。102㎡洋房、134/143㎡叠墅,均价:19000,“城”熟配套,舒适生活,三园环绕,城市绿肺。
桃园新著售楼处电话:400-882-8814
太仓桃园新著售楼处电话☎:400-8828-814(售楼处预约看房热线)
一、项目基本信息
东区(太平路以西,湿地公园南,气象局西)
桃园新著售楼处电话:400-882-8814
太仓桃园新著售楼处电话☎:400-8828-814(售楼处预约看房热线)
西区(柳园路以西,弇山路以北,桃园菜场东)
所属区位:省级开发区-太仓市高新区(娄东街道)
开发商:城发集团-太仓市明城置业有限公司
总占地面积:53535.6平方米
总建筑面积:127937.83平方米
容积率:1.6
绿地率:37%
总幢数:东区19幢住宅,西区4幢住宅
总套数:758套(叠加66户,洋房692户)其中东区583户,西区175户
车位配比:东区1.5,西区1.3
产品类型:分别为6层/7层/8层/9层/10层/11层
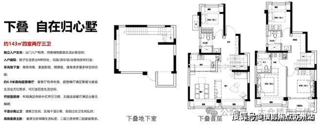
物业类型:102㎡洋房、134/143㎡叠墅
交付标准:精装+毛坯
桃园新著售楼处电话:400-882-8814
太仓桃园新著售楼处电话☎:400-8828-814(售楼处预约看房热线)
【城发 让城市更美好】
太仓城市发展集团有限公司成立于2009年,系太仓市国有资产监督管理委员会所属国有一级公司,聚焦城市建设、城市运营、房地产综合开发三大主业;
国企开发商兼具更雄厚的资金实力、更强的产品营造能力,更精细的管理能力,夯实品质基础,呵护每一份放心。
♚ 千年太仓 百强县市 ♚
桃园新著售楼处电话:400-882-8814
太仓桃园新著售楼处电话☎:400-8828-814(售楼处预约看房热线)
【上海下一站·太仓·下一站上海】
列入虹桥国际开放枢纽带重要节点城市
太仓桃园新著售楼处电话☎:400-8828-814(售楼处预约看房热线)太仓作为上海下一站,沪太同城化正全线加速,依托长三角一体化时代机遇,太仓正在全面飞速发展,城市潜力无限!
1993-2023年,30年完成“全国综合实力百强县市”、”中国德企之乡”、“创新之城”的伟大蜕变。
♚ “城”熟配套 舒适生活 ♚
桃园新著售楼处电话:400-882-8814
太仓桃园新著售楼处电话☎:400-8828-814(售楼处预约看房热线)
【一条太平路 繁华一座城】
主城的好 懂生活的太仓人都懂!
太仓桃园新著售楼处电话☎:400-8828-814(售楼处预约看房热线)项目位于高新区核心板块,(老城区板块)交通四通八达,辐射周边多条主干道,门口就是太平路,过两个红路灯即可到达人民路,享一步繁华,西侧沪宜公路往南无缝对接上海。
太仓桃园新著售楼处电话☎:400-8828-814(售楼处预约看房热线)主城区历史发展积淀深、配套醇熟、生活便利度高、极具生活气息;同时也是政府着力打造的高端生态宜居区。这里土地资源稀缺,住宅用地寸土寸金。城发桃园新著项目精心选址于老城区核心位置,闹中取静,打造主城目前首位低密度高端品质住区。
♚三园环绕 城市绿肺♚
太仓桃园新著售楼处电话☎:400-8828-814(售楼处预约看房热线)
【生态氧吧,住在公园里】
在桃园新著 推窗即自然 下楼就是公园
项目周边弇山园、净水公园和太仓湿地公园,傲人自然资源,环绕犹如天然氧吧、城市绿肺,社区以内外景观一体化理念呼应城北河大美之景。
♚ 黄金路段 成熟即享 ♚
南洋广场
万达广场
大润发
【万达 南洋广场 大润发 商圈丰富】
吃饭 逛街 休闲 购物 买菜 生活真方便!
太仓桃园新著售楼处电话☎:400-8828-814(售楼处预约看房热线)3公里繁华生活圈,紧邻万达/南洋两大商圈,玛丽蒂姆酒店,丽景商业广场,桃园菜场等,中心菜场,大润发,成熟配套唾手可得,满足吃喝玩乐一站式需求。
♚ 学府环伺 书声琅琅 ♚
太仓第一中学
弇山小学
华顿外国语
太仓桃园新著售楼处电话☎:400-8828-814(售楼处预约看房热线)项目周边学府环绕,弇山小学、太仓第一中学、华顿外国语、新区中学,均在项目约2公里范围内。(本宣传不对学区及入学条件做任何承诺,学校划分及入学条件以政府相关部门最终批准方案为准。)
♚ 优质医疗 便捷生活 ♚
太仓市第一人民医院
太仓中医院
太仓桃园新著售楼处电话☎:400-8828-814(售楼处预约看房热线)双医院配套,太仓市第一人民医院、太仓市中医院,科室全覆盖,约10分钟内均可到达,全天候贴心关照健康。
【大美园林·诗画生活】
精心雕琢,归家礼序遇见美好生活
5重渐进式景观,通过外围围墙景观带——园区入口大堂——迎宾景观——组团景观小品——精装单元门庭,形成独有的五重渐进空间感,使得园区内的住户的安全感全及私密性得到最大的保障。
太仓桃园新著售楼处电话☎:400-8828-814(售楼处预约看房热线)
公共景观以现代美好生活为蓝本,结合功能性打造6大景观主题:意趣会友、陌上花境、儿童游乐、颐养休闲、健身共享、慢跑生活。
太仓桃园新著售楼处电话☎:400-8828-814(售楼处预约看房热线)
匠心雕琢,居住新美学
社区高颜值设计,住起来才有面子!
太仓桃园新著售楼处电话☎:400-8828-814(售楼处预约看房热线)
苏州桃园新著售楼处电话:400-8828-814✔✔【预约热线】桃园新著售楼处营销中心:400-8828-814桃园新著售楼处电话/地址☎:400-882-8814(开发商热线)如有问题欢迎来电咨询,专业一对一热情服务,让您用专业眼光去买房。 国企匠造,公园洋房 。102㎡洋房、134/143㎡叠墅,均价:19000,“城”熟配套,舒适生活,三园环绕,城市绿肺。
声明:本文由入驻焦点开放平台的作者撰写,除焦点官方账号外,观点仅代表作者本人,不代表焦点立场。


