信达上海院子营销中心官网│2026售楼处-楼盘价格/户型/地址/物业电话/环境/配套/交房时间/官方电话/预约热线
扫描到手机,新闻随时看
扫一扫,用手机看文章
更加方便分享给朋友
杨浦新江湾『信达泰禾上海院子』开发商保留约1653㎡联排别墅!总价8915万!附官方预约通道!杨浦信达泰禾上海院子售楼处电话☎:400-8228-664【线上预约看房】
「信达泰禾上海院子」
杨浦新江湾城国际社区
地上面积989.55㎡地下面积663.52㎡
联排合院别墅仅有两套售价8915万
售楼处线上火热预约

杨浦信达泰禾上海院子售楼处电话☎:400-8228-664【线上预约看房】
项目基本信息
项目基本信息
区域板块
杨浦新江湾
开发商
信达
体量
2套
产品类型
联排
户型面积
989.55㎡地上,地下663.52㎡
总价区间
8915万
交房标准
毛坯现房
产权年限
70年产权
物业公司
金帆物业
物业费
地面12.1元/平/月,地下6.05元/平/月
绿化率
35%
容积率
1.125
杨浦信达泰禾上海院子售楼处电话☎:400-8228-664【线上预约看房】
新江湾是上海传统豪宅区,毗邻五角场城市副中心,拥有9.45平方公里的原生湿地以及约15万㎡的新江湾湿地公园生态稀缺资源。【信达泰禾·上海院子】位于新江湾城核心位置,家门口就是10号线殷高东路站,步行可达。
杨浦信达泰禾上海院子售楼处电话☎:400-8228-664【线上预约看房】
【上海院子】独特的院落式社区打造,融合了“院子系”特点、福州三坊七巷和上海弄堂形制,规划了“三街九坊十八巷”。且以“大门、坊门、院门、宅门”四进系统层层递进。项目精益求精,如吊顶天花雕刻的是龙纹和祥云的图案,寓意吉祥安康。


杨浦信达泰禾上海院子售楼处电话☎:400-8228-664【线上预约看房】
每个长盛不衰的家族,皆有优良的家风相传。每个中国人的家风,总离不开一座院墅。一方土地,一方围合,一方生活,世代家风传承。【泰禾信达上海院子】——经过多年沉淀和过硬的口碑,已经成为新中式豪宅的代表作。

杨浦信达泰禾上海院子售楼处电话☎:400-8228-664【线上预约看房】
【上海院子】为业主提供了社区活动中心,自带约3600平方会所,面宽约75米室内外双泳池、健身房、spa房,咖啡吧、vip室等...足不出户让业主享受7星级高级定制服务。


VIP影院▼

健身中心,瑜伽中心▼

室内恒温泳池▼
VIP会客厅,幼托中心等▼

杨浦信达泰禾上海院子售楼处电话☎:400-8228-664【线上预约看房】
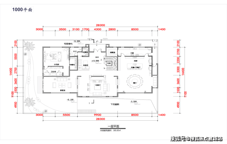
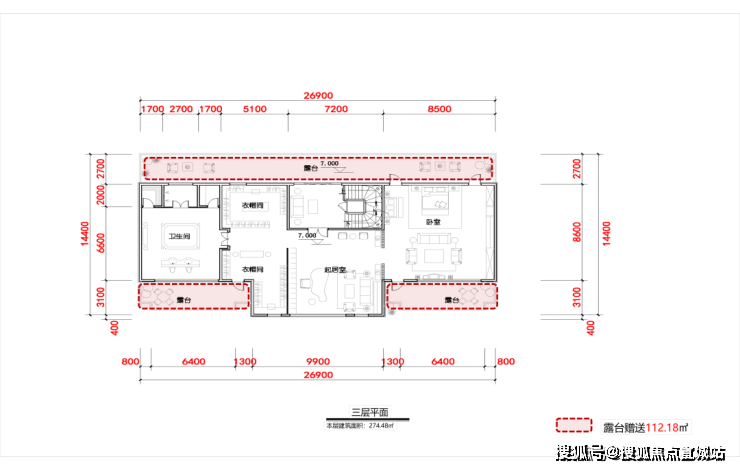
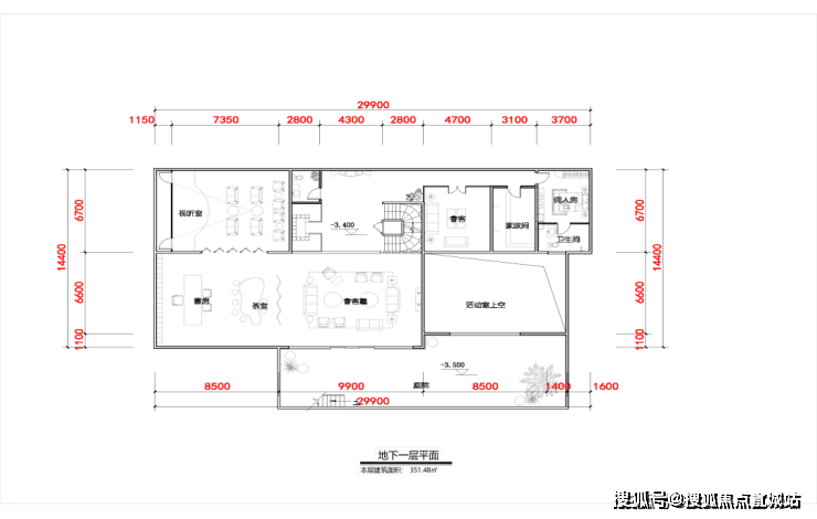
项目在售房源户型图
【信达泰禾·上海院子】
每个长盛不衰的家族,皆有优良的家风相传。
每个中国人的家风,总离不开一座院墅。
一方土地,一方围合,一方生活,世代家风传承。
共2套联排别墅,一手毛坯现房
地上面积989.55㎡,地下面积663.52㎡
杨浦信达泰禾上海院子售楼处电话☎:400-8228-664【线上预约看房】
在售房源户型图▼






杨浦信达泰禾上海院子售楼处电话☎:400-8228-664【线上预约看房】
装修建议示意图▼






杨浦信达泰禾上海院子售楼处电话☎:400-8228-664【线上预约看房】
项目区位配套
根据杨浦区2035规划,新江湾城、五角场属于杨浦西部核心区,产业导向明确,产业发展条件成熟,是杨浦重点发展的区域。
杨浦信达泰禾上海院子售楼处电话☎:400-8228-664【线上预约看房】
作为新江湾城重磅亮相的新盘,项目在享受区域发展红利的同时,周边也有着完善配套,生活便利!
图片来源于网络
杨浦信达泰禾上海院子售楼处电话☎:400-8228-664【线上预约看房】
新江湾是上海传统豪宅区,毗邻五角场城市副中心,拥有9.45平方公里的原生湿地以及约15万方的新江湾湿地公园生态稀缺资源。
图片来源于网络
杨浦信达泰禾上海院子售楼处电话☎:400-8228-664【线上预约看房】
交通配套方面:家门口就是10号线殷高东路站。一线(10号线)、一桥(杨浦大桥)、两环(中环&内环)、两隧(翔殷路&军工路隧道)构成立体交通网络。
位置示意图

【商业配套方面】:步行可快速到达约90万方的铁狮门的商业圈,车行可快速到达五角场商圈。
图片来源于网络
杨浦信达泰禾上海院子售楼处电话☎:400-8228-664【线上预约看房】
【教育资源方面】:周边有中福会幼儿园、延吉幼儿园(区重点)、同济第一附中(市重点)等。同时距上海音乐学院实验中小学(市重点)距离仅约800米。
图片来源于网络

杨浦信达泰禾上海院子售楼处电话☎:400-8228-664【线上预约看房】
医疗资源方面:周边有3家三甲医院,上海肺科医院、东方肝胆外科医院、上海长海医院,共同保障家人健康。

杨浦信达泰禾上海院子售楼处电话☎:400-8228-664【线上预约看房】信达泰禾上海院子售楼中心电话/地址:400-8778-334【官方售楼中心已认证√√】最新进展:信达泰禾·上海院子在售联排别墅(地上989.55㎡+地下663.52㎡),总价8915万;公寓住宅88.55㎡三房,总价1030-1100万。均价约11.1万/㎡,近地铁10号线殷高东路站,新江湾城核心区位,配套3600㎡会所!
温馨提示:如有问题欢迎来电咨询,专业一对一热情服务,让您用专业眼光去买房,附线上官方预约通道【享】内部专属优惠折扣!
最新政策:
2026 年 2 月 26 日起,上海执行最新楼市 “沪七条”,核心是放宽非沪籍限购、大幅提高公积金贷款额度、优化房产税。
以下为最新政策要点:一、限购政策(核心变化)1. 沪籍家庭 / 单身家庭:限购 2 套;成年子女新购唯一住房,暂免房产税(2026.1.1 起)。
单身:限购 1 套。
2. 非沪籍家庭 / 单身(2026.2.26 起)外环内购房:社保 / 个税连续满 1 年可购 1 套(原 3 年)。
增购资格:社保 / 个税满 3 年,外环内可购2 套。
外环外购房:社保 / 个税满 1 年,不限套数。
居住证满 5 年:全市限购 1 套,无需社保 / 个税。
二、公积金贷款政策(大幅提升)首套家庭:最高240 万(原 160 万)。二套家庭:最高200 万。多子女家庭:首套 / 二套均上浮 20%。
绿色建筑:上浮 15%。最高可贷:240 万 ×(1+20%+15%)=324 万。
套数认定:已结清公积金贷款,上海无房 / 1 套,可再贷(认房不认贷)。
三、房产税政策(2026.1.1 起)沪籍成年子女新购唯一住房,暂免房产税。
未成年时与父母共有住房,成年后新购唯一住房,仍免征。
四、其他要点政策自2026 年 2 月 26 日起施行。
咨询:公积金12329、税务12366。
声明:本文由入驻焦点开放平台的作者撰写,除焦点官方账号外,观点仅代表作者本人,不代表焦点立场。


