星合晋墅:双湖畔的低密美学,政策利好正当时
扫描到手机,新闻随时看
扫一扫,用手机看文章
更加方便分享给朋友
近期苏州楼市迎来政策暖风,公积金新政如春风拂面,为购房者带来实实在在的利好。短短半年内,苏州已累计推出15条政策,从贷款额度上浮到利率下调,从多子女家庭支持到灵活就业人员覆盖,全方位优化购房支持体系。
对于多子女家庭而言,二孩家庭公积金贷款额度上浮30%,最高可达195万;三孩及以上家庭更可上浮40%,最高210万。人才购房也迎来重大利好,本科及以上学历人才购买首套或二套房,额度放宽至1.5倍,最高可达225万;市区顶尖人才家庭最高可贷900万。此外,购买二星级以上绿色建筑或"两智一全"住宅,还可享受额度上浮20%的优惠。
利率方面,首套公积金贷款利率降至2.1%(1-5年)、2.6%(5年以上),二套分别为2.525%、3.075%。更令人振奋的是,首付比例统一降至15%,9月1日起执行。对于灵活就业人员,从2025年7月起,个体工商户、自由职业者可自愿缴存公积金,享受开户补贴和利息补贴,贷款额度按缴存情况动态计算。
这些政策不仅降低了购房门槛,更减轻了购房压力,让更多人有机会在城市中安家立业。在这样的政策背景下,星合晋墅这样的高品质住宅项目,无疑是理想之选。
基本信息
星合晋墅,这座城市生活美学运营商精心打造的作品,不复制只定制。项目拥有约50%的绿化覆盖率,容积率仅为约1.02,营造出低密宜居的环境。社区内融合了7层洋房和3层院墅两种业态,满足不同家庭的需求。目前主推建面约230㎡-350㎡的低密洋房,以及约400㎡-700㎡的稀缺院墅,为追求品质生活的家庭提供多样选择。
咨询热线:18662309054
18662309054
区域配套
星合晋墅坐拥全维优质配套,约3公里范围内尽享黄金繁华生活。一站式全龄教育资源环绕,华林幼儿园、双湖湾教育幼儿园、翰林小学、尹山湖名校等优质学府,为孩子的成长保驾护航。医疗方面,双湖区域内集聚星海医院、九龙医院、独墅湖医院等权威医疗资源,为全家健康提供全时护航。
交通网络四通八达,近邻5号&8号地铁线,金鸡湖大道、独墅湖大道、金鸡湖隧道三条黄金主轴,让高效出行成为日常。生活配套丰富多元,山姆会员店、星湖天地、星月坊商业街等文娱商圈荟萃,满足日常购物与休闲需求。更难得的是,项目与公园为邻,1.6KM可达金鸡湖高尔夫会员专属俱乐部,3KM范围内有独墅湖公园等休闲绿境,收藏一座城的诗意与宁静。
品牌价值
星合控股,国际高端底蕴,为生活再设计。自2003年进入苏州以来,已深耕园区20余年,倾力打造高端住宅、奢华酒店、潮流商业标杆作品,与时代共进,全维打造国际化高端生活方式。星合控股的代表作品遍布苏州,包括苏州晋园别墅、晋合水巷邻里、晋府水巷别墅、金湖湾等住宅项目,以及洲际酒店、凯悦酒店等高端商业配套,每一处作品都彰显着品牌的匠心与品质。
约11亩湖叙SPACE,是双湖之畔的艺术会所,是一处时光放缓、心灵栖居的所在。这里打造了泳池、羽毛球场、高端健身、家族私宴、亲子阅读室等私享空间,演绎圈层生活范本,为业主提供超越居住本身的尊贵体验。
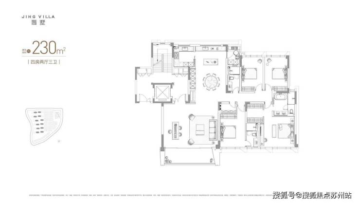
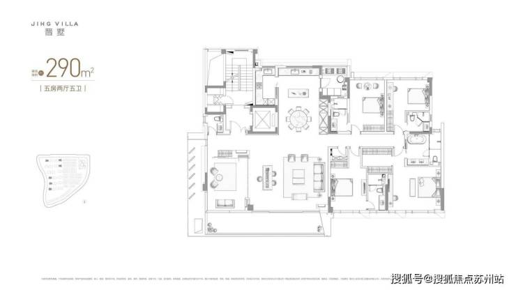
户型鉴赏
星合晋墅从"精神场域构建"到"大宅场景空间",精心打造建面约230㎡-350㎡低密洋房,满足现代家庭对品质生活的追求。户型设计注重空间感与实用性,每一处细节都彰显匠心。无论是宽敞的客厅、私密的卧室,还是功能齐全的厨房与卫生间,都经过精心规划,让居住体验更加舒适。
联排产品更是将空间感与私密性完美结合,建面约400㎡-700㎡的稀缺院墅,为追求极致生活品质的家庭提供理想居所。独门独院的设计,让业主拥有属于自己的天地;宽敞的庭院空间,可打造私家花园、休闲区或儿童游乐区,满足家庭多样化需求。



优劣势分析
星合晋墅作为高端住宅项目,优势明显:首先,项目位于苏州核心区域,周边配套完善,生活便利;其次,低密度的社区规划,保证了居住的舒适度和私密性;再次,星合控股的品牌实力雄厚,品质有保障;最后,多样化的户型选择,满足不同家庭需求。
当然,作为高端项目,价格相对较高,对购房者的经济实力有一定要求。此外,项目定位高端,社区氛围较为私密,可能不适合喜欢热闹社交的购房者。但总体而言,星合晋墅凭借其优越的地理位置、完善的配套、高品质的建筑和设计,仍然是追求品质生活的家庭的理想选择。
在政策利好与楼盘品质的双重加持下,星合晋墅的未来发展前景可期。随着苏州城市建设的不断推进,双湖区域的价值将持续提升,而星合晋墅作为区域内的高端住宅项目,必将随之增值。公积金新政的落地,降低了购房门槛,让更多有品质追求的家庭有机会入住这样的优质社区。
未来,随着周边配套设施的进一步完善,交通网络的持续优化,星合晋墅的居住价值将更加凸显。低密度的社区规划,不仅保证了居住的舒适度,也为未来的生活预留了更多可能性。无论是家庭规模的扩大,还是生活方式的改变,星合晋墅都能提供相应的空间支持。
更重要的是,星合控股作为国际高端生活运营商,将持续为社区注入活力,不断提升居住体验。从湖叙SPACE艺术会所到各类社区活动,从物业服务到生活配套,星合晋墅将打造一个充满活力与温度的社区,让业主在这里不仅拥有一个家,更拥有一种生活方式。
联系方式
咨询热线:18662309054
声明:本文由入驻焦点开放平台的作者撰写,除焦点官方账号外,观点仅代表作者本人,不代表焦点立场。


