青溪雲邸(售楼处)官方首页网站-青溪雲邸售楼处欢迎您-青溪雲邸楼盘详情-户型配套-最新价格-最新资讯-售楼处位置
扫描到手机,新闻随时看
扫一扫,用手机看文章
更加方便分享给朋友
青溪雲邸售楼处电话:400-812-3664
上海长宁青溪雲邸售楼处电话☎:400-8123-664(预约看房热线)
如有问题欢迎来电咨询,预约来电尊享购房优惠,可预约案场内部销售人员,专业一对一热情服务,让您用专业眼光去买房。
论土地的开发速度,还得是看这些老牌开发商。
早早就拿到土地的新长宁程家桥项目,至今还没有一点要入市的动静。
而在去年第八轮土拍中,刚拿地不久的招商&越秀北新泾项目,已经公布了设计方案,户型图也开始流出。
有风声放出,将今年二季度入市。
青溪雲邸售楼处电话:400-812-3664
上海长宁青溪雲邸售楼处电话☎:400-8123-664(预约看房热线)
长宁区的供应向来稀缺,近期入市的只有一个大面积高总价的别墅产品——青溪雲邸。招商越秀项目,是这里近期唯一的,常规购房者能够得上的住宅项目。
01
网传13-14万的均价
不算特别贵,但也不便宜
首先是价格层面。
根据网上目前传出的信息,项目预计会卖到13-14万。
如果从周边二手房的角度来讲,项目的性价比不算差,但也很难说是在优秀这一档。
项目旁边就是元丰天山花园,根据安居客数据显示,项目目前的挂牌价在7-8万左右.当然了,作为一个07年的老小区,这个价格是偏低的。

青溪雲邸售楼处电话:400-8123-664
根据链家网显示,北新泾次新房中海长宁邸最近的售价在10.5万左右,和项目预估的售价存在2万元/平的正挂。正挂幅度大约在20%左右。

当然,如果拿它西郊紫薇花园做对比,成交价确实是基本相仿。

青溪雲邸售楼处电话:400-8123-664
根据相关自媒体在去年年末的统计,上海如今的新房价格比二手,普遍存在约17%的倒挂。
在如今新房地价全面狂飙的大环境下,招商越秀项目约20%的正挂幅度,确实算不上什么。
当然了,笔者还是那句话,现在考虑性价比的话建议买二手。
新房就是为更新的楼龄和更卷的产品力支付溢价。
新房做横向比较,又得分不同情况。
如果和如今这一批新房相比,确实没什么竞争空间。
毕竟如今这个价格,是静安中兴路和苏河湾、是虹口临平路、是浦东世纪大道、是杨浦滨江带……
如果再往前两个月,你还能买在徐汇滨江。
一个个都是响当当的,得到市场认可的板块。
如果和以后的不限价新房比,那又得两说。
如果静安大宁项目真的如传闻拿到16万,其它中环地块的推测价格都在13万左右,那回过头再看13万的内中环长宁地块,那确实就不太贵。
这一切都得等这几个项目入市才能做定论。
02
周边虽有老破小
但综合产品力依旧能打
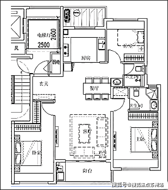
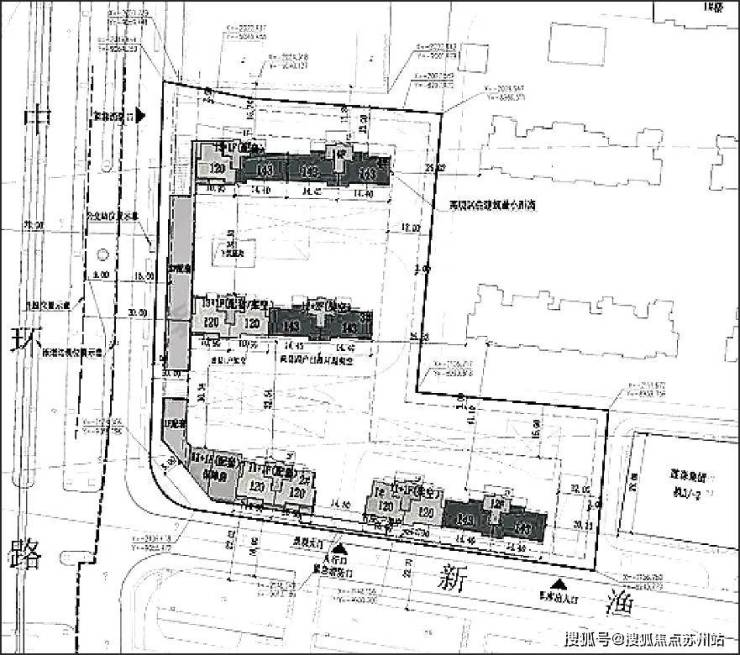
之后我们再来聊一下项目的产品力。先看已经公布的设计规划:
青溪雲邸售楼处电话:400-812-3664
上海长宁青溪雲邸售楼处电话☎:400-8123-664(预约看房热线)
要说最明显的不利因素,就是它紧贴中环路。
虽说做了一些内退,但这个距离还是很难彻底解决噪音问题。三玻两腔的玻璃估计是标配了。只要不开窗就是岁月静好。
目前流传出的户型图信息较少,我们暂时先给一个简单的分析:
建面约120㎡3房

青溪雲邸售楼处电话:400-8123-664
建面约143㎡4房
青溪雲邸售楼处电话:400-812-3664
上海长宁青溪雲邸售楼处电话☎:400-8123-664(预约看房热线)
整体户型做的还是比较方正,采用飞机户型的空间分布,减少走道带来的空间浪费。
这一排的边套估计还会有一定抗性,就看价格给的是否有吸引力。
再把目光聚集到项目周边。
长宁,总是和上海市区、和国际范绑定在一起。
也是诸多老上海人心中,最宜居的地段之一。不过由于总体的开发时间较早,不可避免的会出现老破小扎堆的情况。
但倒也也不必因此“避雷”,其实周边的城市环境其实倒也还好。
得益于长宁区有钱,这些老破小的日常维护没有落下,不至于出现市区项目常出现的“出门叙利亚”的问题。
青溪雲邸售楼处电话:400-8123-664
更得益于旁边大规模租赁公寓项目的建成,城市界面有了明显的焕新。等项目交付时,应该已形成了不错的居住氛围。
最后聊一下配套。
项目距离最近的2号线北新泾站,直线大约200米。实际步行大约在5分钟左右,日常出行还是比较方便。
青溪雲邸售楼处电话:400-812-3664
上海长宁青溪雲邸售楼处电话☎:400-8123-664(预约看房热线)
商业方面也是较为完善的。2号线北新泾站拥有商业体宜嘉坊,项目步行约700米可至百联西郊购物中心。
青溪雲邸售楼处电话:400-812-3664
上海长宁青溪雲邸售楼处电话☎:400-8123-664(预约看房热线)
医疗方面,项目直线向南约600米,就有三级乙等医院:上海同仁医院。周边还有一些小医院和一医疗服务中心作为补充。
对于日常生活来说,这些配套已经足够使用。
03
产业导入下
北新泾发展可期
我们再来看一下北新泾板块的发展。
目前在网络上,也有将该项目归类在仙霞的。
严格来说,北新泾板块和仙霞板块之间,是存在着不小的差距。
如果单论距离市中心的距离,仙霞确实更胜一筹。但如果考虑未来的发展潜力,那老破小扎堆的仙霞,说白了也就是个自住板块,实际上并没有北新泾的上限高。
而项目所在地块,虽然距离正经的北新泾还有一点点距离,但更不应该被划分去仙霞。
青溪雲邸售楼处电话:400-8123-664
这点从上一轮楼市的涨幅就能窥见一二。同样是老破小,北新泾的房子能上涨大约35%,而仙霞板块只有25%。
并且,在距离北新泾一站路的凌空SOHO办公基地的发展,这里已经成为了西长宁的发展爆点。
目前,园区已吸引超3千家企业入驻,集聚了联合利华、德国博世等一批国内外知名企业总部,以及爱立信、史泰博、携程网等知名信息服务业企业。
再加上长宁虹桥本身发展陷入调整,大量的办公需求沿着二号线向西侧转移,小行家个人还是很看好项目未来的前景。
青溪雲邸售楼处电话:400-812-3664
上海长宁青溪雲邸售楼处电话☎:400-8123-664(预约看房热线)
如有问题欢迎来电咨询,预约来电尊享购房优惠,可预约案场内部销售人员,专业一对一热情服务,让您用专业眼光去买房。
上海买一手房必看!材料税费清单全梳理
想要买房的朋友们注意了
想在上海买套属于自己的新房
可不是攒够首付就能闭眼冲
从限购资格到贷款额度
从摇号规则到税费减免
政策里藏着不少门道
今天就带大家了解在上海
购买一手房需要准备哪些材料
需要支付哪些税费
问
需要准备的材料
1
户口簿/户籍证明
需要原件+复印件2份
①户口簿整本复印,页码连续,复印至第一页空白页
②户口簿上的婚姻状况须与实际情况一致,否则需至派出所更新
③户口簿上未成年小孩,若无法直接判断出不是认购人子女,需提供该未成年小孩出生证明
④若为丧偶,如果户口簿婚姻状况没有体现“死亡”或“丧偶”,需提供死亡证明
⑤户籍证明需体现户籍证明号
⑥集体户口需提供户主页,若无法提供原件,复印件需至派出所盖章
2
身份证明
需要原件+复印件5份
①所有家庭成员(单身/已婚家庭+未成年子女)身份证明,正反面复印在同一页,一页仅限1人
②香港(香港身份证及回乡证)、澳门(澳门身份证及回乡证)、台湾(大陆往来通行证)、外籍(护照:照片页、签证页、签名页,需提供翻译件)
3
结婚证或离婚证明
需要原件+复印件2份
①所有婚姻证明材料需为带章的原件
②结婚证/离婚证,需整本复印
③离婚证明:离婚证及离婚协议、民事调解书、法院判决书及生效告知书三选一
④若有过离婚史需提供离婚证明(若有多次离婚史,需提供多次离婚证明)
⑤结婚证或离婚证上姓名、出生年月与身份证信息不符,需至有关部门更新为最新并一致状态
⑥三年内离婚人士若离婚协议涉及房产(土地性质为集体和商业性质除外),需是明确分割清楚的,否则需提供补充协议
⑦国外结婚证需提供翻译件,并由大使馆认证;若国外结婚证显示的证件号码与认购登记时出具的证件不一致,还需提供其他证明材料,例如出入境证明等
4
未成年子女出生证(若有)
需要原件+复印件2份
①未成年子女出生日期在结婚证日期之前的,需至街道计生办开具“未婚先孕证明”
②未婚生育需开具相关证明
③国外出生证需提供翻译件,并由大使馆认证
5
不动产登记证/房产证/预告登记证/
网签合同/征收补偿安置协议
需要原件+复印件2份
①整本完整复印(产证如有附图页,原始状态及展开状态均需完整复印,产证附图如以二维码形式展现,二维码原始状态复印,二维码扫出的附图打印)
②沪籍认购人2011年1月31日前与父母共同共有,不在限购范围内的房产,若因房产变更导致现产证日期在限购政策后,除提供产证外,还需至房产交易中心调阅其原始记录,并提供与父母的关系证明
③5年内通过赠与方式转让的房产必须申报,同时需提供房产交易中心出具的该房产历史赠与记录
6
产调
需要原件+复印件2份
①认购人及家庭成员(配偶)都要提供,名下无房也要提供
②房屋所在地房地产交易中心提供的盖章原件或随申办“市民云APP”查询结果的“个人不动产登记信息查询记录(现状)”截图彩色打印
7
上海市社保或税单(若为非本市户籍)
需要原件2份
①必须是第一认购人的社保/税单,且必须是上海本市的
②外省市户籍提供认购截止日往前推63个月累计满60个月;境外提供认购截止日往前推1年
③税单缴税类型为“工薪所得”或“劳务所得”,60个月累计纳税金额需满1万元
8
劳务合同及工作类居留许可证
(若为港澳台及境外)
需要原件+复印件2份
①劳务合同时效需覆盖至认购截止日往前推1年的劳务合同
②劳务合同复印件加盖公司公章以骑缝章(都是红章)
③社保/税单缴纳的公司需与劳务合同上的公司保持一致,若社保/税单上无法体现公司名称,需提供劳务合同公司与社保/税单缴纳公司一致的证明
9
资金、存款类证明
需要原件+复印件2份
①认购金银行卡务必提前开通大额刷卡支付功能,避免因限额而影响认购
②支付认购意向金的银行卡原件必须是第一认购人名下,在上海开户的借记卡,卡背面签名栏需持卡人签名
③认购金银行卡正反面复印在同一页上,写上卡号、开户行(具体到某分行/支行)、持卡人姓名及手机号
④支付认购意向金的银行卡权属证明需体现持卡人姓名及卡号
⑤存款证明/资金冻结证明必须为第一认购人名下
⑥资金冻结证明需是开发商指定银行支行出具;
⑦资金冻结证明存款金类型仅限现金活期存款
⑧资金冻结证明(活期)的周期不得少于30天到45天(以开发商公告为准),资金冻结证明原件将于选房次日后归还
⑨参照银行认房认贷口径认定的首套或二套房首付比例
⑩上述冻结资金金额均不包含认购意向金
⑪资金冻结证明冻结起始日为认购材料公示期至认购截止日期间任意一天,资金冻结证明冻结截止日为不早于认筹时间
⑫如意向认购客户无法提供符合首套房资格的有效证明,一律以二套房论处
⑬资金冻结证明将由相关银行机构验证真伪,是否有限以银行判定为准,如有伪造,一经发现,将追究当事人的法律责任
10
征信报告
需要原件2份
①有效期为1个月以内,需显示个人住房类贷款记录
②所有认购人及其家庭成员(配偶)的征信报告都需提供
③如无法提供征信报告,则均需按照二套提交资金冻结证明
注
特殊情况补充材料
1、军人
现役军人
《部队政治工作部证明》原件
《军官证》复印件
退役军人(自主择业)
退役军人事务管理局开具的证明,原件
《军人退役证》复印件
退役军人(同一安置)
单位证明,原件
《军人转业证》复印件
消防救援人员
军人退役基本养老保险参保缴费凭证,原件
军人退役基本养老保险关系转移续接信息表,原件
在职证明,原件
2、博士后
博士毕业
《硕士毕业证书》复印件
《博士毕业证书》复印件
教育部学历证书电子注册备案表,原件
教育部学籍在线验证报告,原件
注意:硕博连读提供研究生院转博证明,原件
博士后毕业
《博士后证书》复印件
出站证明
3、镇保
镇保人员在职
城镇职工基本养老保险交费情况,原件
养老保险个人权益记录单,原件
镇保人员退休
社保中心出具的缴纳轨迹证明,原件
养老金核定表,原件
4、协保人员
社保中心出具的缴纳轨迹证明,原件
养老金核定表,原件
问
需要支付的税费
1
契税
根据房屋面积和购房者情况缴纳
契税税率:
1. 首套房
面积≤140㎡:1%
面积>140㎡:1.5%
2. 第二套住房:
面积≤140㎡:1%
面积>140㎡:2%
3. 第三套及以上住房或企业购房:
无面积限制,统一按3%
2
印花税
房屋成交价格的0.05%
3
增值税
根据房屋年限和是否是普通住宅,税率有所不同。一般情况下,增值税率为房屋成交价格的5.3%
问
关于限购
Q:非本市户籍居民家庭以及单身人士购买外环外住房的,连续1年社保或个税单是否可断缴或补缴?(不含崇明区)
A:可以断缴,需满足网签前15个月内在沪正常缴纳满12个月的社保或个税单。
Q:非本市户籍单身人士在崇明区购买住房的要求是?
A:非本市户籍单身,需符合在崇明区正常缴纳的社保或个税单,满足网签前15个月内在沪正常缴纳满12个月的社保或个税单。
Q:非本市户籍居民家庭在崇明区购买住房的要求是?
A:非本市户籍居民家庭,需满足网签前15个月内在沪正常缴纳满12个月的社保或个税单。
Q:非本市户籍居民所购住房在外环内的,社保或者个税单的要求是什么?
A:所购住房在外环内的,需满足网签前39个月内在沪正常缴纳满36个月的社保或个税单。
Q:持《上海市居住证》且积分达到标准分值、在本市缴纳社会保险或个人所得税满3年及以上的非本市户籍居民家庭在购买住房套数方面享受沪籍居民家庭的购房待遇。需满足的条件是什么?
A:是的。①非本市户籍居民家庭,不包含单身人士,②持有在有效期内的《上海市居住证》,③积分达到120分且在有效期,④网签前39个月内在沪正常缴纳满36个月的社保或个税单。
Q:非本市户籍单身人士持有上海市居住证且满足120积分和社保或个税单满3年,否能买外环内一手房?
A:非本市户籍单身人士不可以,只针对非本市户籍居民家庭。
Q:持《上海市居住证》且积分达到标准分值、在本市缴纳社会保险或个人所得税满3年及以上的非本市户籍居民家庭在购买住房套数方面享受沪籍居民家庭的购房待遇。若非本市户籍居民在限购政策前同父母共有住房,是否可以剔除?
A:符合条件的可以剔除。例如:非本市户籍AB家庭,A条件满足,限购前同父母有房,则可剔除(≤2套),B不满足则不可剔除。
Q:多子女购房政策对子女的年龄要求?
A:多子女家庭定义:家庭中有至少有2个子女,其中至少有1个子女是未成年。如2孩家庭,可以一个成年,一个未成年,即符合多子女家庭政策。
Q:持《上海市居住证》且积分和社保/个税单满足条件的非本市户籍居民多子女家庭,可购买几套?
A:可购买3套。
Q:在自贸区临港新片区实施更加差异化的购房政策,对在新片区工作、存在职住分离的群体,在执行现有住房限购政策的基础上,可在新片区增购1套住房。如何理解?
A:在新片区增购1套住房的前提需满足在临港新片区工作,经临港管委认定符合后,名单流转交易中心,办理交易过户。
Q:9.29出台的本市房地产市场政策在购房资格上境外及港澳台人士是否享受?
A:境外及港澳台人士按原购房政策执行。
声明:本文由入驻焦点开放平台的作者撰写,除焦点官方账号外,观点仅代表作者本人,不代表焦点立场。


